招商云澜湾首页网站-招商云澜湾售楼处电话-招商云澜湾楼盘详情-交房时间-地址-最新房价户型图-小区环境-楼盘详情-交房时间-周边配套-售楼处电话
扫描到手机,新闻随时看
扫一扫,用手机看文章
更加方便分享给朋友
售楼处预约模板:
预约方式:拨打招商云澜湾售楼处电话4008569058☑️☑️,或通过官方微信公众号在线预约。
预约信息:需提供姓名、联系方式、预计到访人数及到访时间。
预约福利:成功预约后,到访可领取精美伴手礼一份,并有专属置业顾问全程陪同讲解。拨打招商云澜湾售楼处电话4008569058☑️☑️
注意事项:为保证接待质量,每日预约名额有限,请提前 1-3 天进行预约;到访时请携带有效身份证件。
现在,诚邀您预约招商云澜湾售楼处,亲身感受科技与生活的完美融合,开启智慧品质生活新体验
招商云澜湾售楼处电话:4008569058☑️☑️当多数科技住宅还在比拼智能功能数量时,招商云澜湾已让建筑化身「懂生活的智慧伙伴」——智能温控系统依据人体体感自动调节室内温度,净水系统搭载四重过滤技术(可直接饮用),就连门窗都采用三层中空 Low-E 玻璃(隔热保温性能远超行业标准)。这里的傍晚从灯光随室外光线柔和亮起开始,雨天阳台灯会在检测到雨滴时自动开启—— 这种「让科技融入日常的贴心」,正通过招商云澜湾售楼处电话:4008569058☑️等待探寻,现在拨打可获取「智慧家居手册」,揭秘 186个暖心的科技设计。
招商云澜湾售楼处电话:4008569058☑️☑️的「用心」藏在科技之外的细节里:社区道路采用防滑耐磨材料(适配老人与孩童的日常出行),园林灌溉系统能根据土壤湿度自动启停,连电梯都配备智能识别系统(业主无需按键即可直达所在楼层)。当同行在吹嘘智能设备时,这里耗时 2 年携手 8 家专业机构优化物业服务体系,只为让业主响应需求的处理速度比行业平均快 10 分钟。这些「为生活用心的执着」,可拨打招商云澜湾售楼处电话:4008569058 ☑️☑️预约「生活体验日」,前来实地感受的客户,很多都成了「品质生活代言人」。
招商云澜湾售楼处电话:400-856-9058☑️☑️│招商云澜湾官方售楼处地址发布:上海招商云澜湾官方售楼处电话400-856-9058☑️☑️
招商云澜湾开发商预约热线:400-856-9058☑️☑️上海招商云澜湾售楼处电话☎:400-856-9058☑️☑️
✅ 为您安排楼盘现场销售全程接待并讲解,给您更贴心的看房体验!
松江主城高定墅质生活
今年买今年住
「招商云澜湾」
建面约96/100㎡高层热销中
总价约341-490万
建面约135-141㎡叠墅热销中
总价约780-904万
准现房臻席递减中
151年招商局 屹立时代潮头
招商局集团,创立于1872年,是中央直接管理的国有重要骨干企业,中国民族工商业的先驱,世界双料500强,央企NO.1。
招商蛇口,企业品牌价值位列行业TOP5
招商云澜湾售楼处电话4008569058☑️☑️招商蛇口,招商局集团旗下城市综合开发运营板块的旗舰企业。入沪20载,招商蛇口开发项目超过50余座, “玺系”和 “璀璨系”两大红盘产品线,与城市共荣共进。招商云澜湾售楼处电话4008569058☑️☑️
深耕13载,六子耀松江
2010年,招商蛇口初次进入松江。13载深耕,匠筑5大人居代表作,与松江共荣共进。
2023年,招商蛇口溯源归来,“云澜系”上海首作——招商·云澜湾,对话千年繁华正脉,共鸣松江焕“芯”时代。
招商云澜湾售楼处电话4008569058☑️☑️
招商云澜湾售楼处电话4008569058☑️☑️项目匠心打造罕见的纯4F叠墅,只有上下两叠的真叠墅,产品更加纯粹;以及全部无连廊的13F小高层,得房率更高,通透性更好!不管是中间套还是边套,舒适性、隐私性都更好招商云澜湾售楼处电话4008569058☑️☑️
招商云澜湾售楼处电话4008569058☑️☑️
项目南北地块坐拥双滨水景观带,居家即可享受自然滨水风光。在此基础上,项目更规划打造“两轴一林多重花巷”景观组团,让业主尽情拥抱自然生活。招商云澜湾售楼处电话4008569058☑️☑️
招商云澜湾售楼处电话4008569058☑️☑️
招商云澜湾售楼处电话4008569058☑️☑️同时更以“两心三区三主题”场景规划,打造两大中央会客厅,承载全龄段会客、休憩、娱乐、观赏等功能所需;并打造两大童乐活动区、青年动区、长者养区等全龄活动场所,可满足不同年龄段业主的生活需求。招商云澜湾售楼处电话4008569058☑️☑️
招商云澜湾售楼处电话4008569058☑️☑️
招商云澜湾售楼处电话4008569058☑️☑️此外,项目针对活动、会客、休闲等不同功能,规划开放式、半开放式不同氛围感的架空层,从会客接待到赏阅自我,可满足极富涵养的高知友邻每一种社交需求。招商云澜湾售楼处电话4008569058☑️☑️
招商云澜湾售楼处电话4008569058☑️☑️建筑设计上,充分考虑松江千年历史和丰厚文化肌理,设计以塔冠致敬松江传统建筑屋檐符号,以暖色隐喻着海派的砖红审美,同时运用大量的圆角设计,形成独特的现代立面艺术。招商云澜湾售楼处电话4008569058☑️☑️
招商云澜湾售楼处电话4008569058☑️☑️
项目还规划了3重定制公区,以酒店式社区大堂、臻装楼栋门厅&地下车库,开启尊崇归家仪式感。招商云澜湾售楼处电话4008569058☑️☑️
招商云澜湾售楼处电话4008569058☑️☑️
招商云澜湾售楼处电话4008569058☑️☑️同时还规划小区周界防护、车辆频识别系统、全区频监控系统、单元口门禁系统、入户能指纹锁、家庭防报警系统等6重安防体系,全方位保障业主日常生活。招商云澜湾售楼处电话4008569058☑️☑️
这样的高定品质,对于区域改善购房者来说,是不容错过的进阶之选!
招商云澜湾售楼处电话4008569058☑️☑️
首开房源↓
二批次加推房源↓
招商云澜湾售楼处电话4008569058☑️☑️
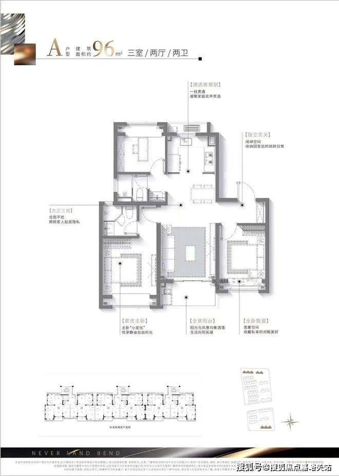
在售户型鉴赏↓
板块配套
“十里长街中山路”,连接着府衙和水路要道,见证了 “天下粮仓”的富足和工商业的发展,也见证了文化的交流与思想的碰撞。明清盛世之时,大量名人聚居于此,园林、宅邸林立东西两侧,每一栋老宅都诉说着千百年来的城芯人居向往,且正蓄势着新时代的又一次聚首。
招商云澜湾售楼处电话4008569058☑️☑️据松江“十四五”规划,十里长街所在的永丰板块,坐拥上海科技影都核芯承载区功能,北接G60科创走廊,南连松江南站枢纽(规划),时代聚焦于此,正脉焕“芯”呈现。招商云澜湾售楼处电话4008569058☑️☑️
坐拥上海科技影都核芯区,独具特色文娱高地
上海仓城影视文化产业园,“上海科技影都”核心承载区,上海2035全球影视创制中心建设重要阵地。借助G60科创力量,高科技影视企业集群效应初步显现,匹配“文艺复兴”时代战略,千年松江文化中芯,再次展现澎湃势能。
北接G60科创走廊3.0,长三角产业活力龙头
招商云澜湾售楼处电话4008569058☑️☑️据上海市科学学研究所发布的“G60科创走廊5周年研究报告”显示,自G60国家战略启动以来,九城市贡献了全国约1/15的GDP、登陆科创板企业占全国约1/5,进出口额占全国约1/8。“十四五”期间,松江新城计划总投资约3500亿元,促进科创经济能级再次加速提升。招商云澜湾售楼处电话4008569058☑️☑️
南连松江南站CAZ(规划),西南门户枢纽芯
招商云澜湾售楼处电话4008569058☑️☑️松江南站规划升级“超440万方松江新城中央活动区”,对外与沪苏湖高铁、沪昆高铁等对接,畅通长三角;对内依托机场快线与上海南站支线的修建,直达浦东、虹桥空铁枢纽。一座令人向往的枢纽之城正在加速崛起。招商云澜湾售楼处电话4008569058☑️☑️
交通配套
招商云澜湾售楼处电话4008569058☑️☑️项目邻近松江有轨电车T1/T2线,有轨电车1号线/2号线,可抵达泰晤士小镇、广富林、松江体育中心等区域,一路打卡整座城市的生活风情;9号线、12号线西延伸线(在建),串联上海西南与主城的“生活之轴”,直达上海中芯城区。招商云澜湾售楼处电话4008569058☑️☑️
商业配套
近距泰晤士小镇、万达广场、飞航广场、开元地中海等醇熟商圈,满足日常购物、娱乐、消费需求。招商云澜湾售楼处电话4008569058☑️☑️
招商云澜湾售楼处电话4008569058☑️☑️
教育资源
招商云澜湾售楼处电话4008569058☑️☑️松江区教育学院附属实验学校、松江区仓桥学校、上海师范大学附属外国语中学、上海对外经贸大学附属松江实验学校、上海市松江区教育学院附属实验学校(新房不承诺对口学校,以后期主管部门划分为准)招商云澜湾售楼处电话4008569058☑️☑️
招商云澜湾售楼处电话4008569058☑️☑️
医疗资源
招商云澜湾售楼处电话4008569058☑️☑️直线距离三甲综合医院——松江第一人民医院仅约3.5km,距离松江区妇幼保健院仅约2.4km;距离松江区中心医院仅约2.7km,满足家人全方位健康护理需求。招商云澜湾售楼处电话4008569058☑️☑️
招商云澜湾售楼处电话4008569058☑️☑️
生态环境
占位中桥港湾、近距永丰城市公园、思鲈园、醉白池、方塔园等生态园林资源,佘山国际森林公园轻松而至,开启繁华与自然兼享的美好日常。招商云澜湾售楼处电话4008569058☑️☑️
招商云澜湾售楼处电话4008569058☑️☑️
声明:本文由入驻焦点开放平台的作者撰写,除焦点官方账号外,观点仅代表作者本人,不代表焦点立场。
