🗝️江湾鸿玺售楼处电话:400-8894-986 / 4008894986🗝️
📲江湾鸿玺营销中心热线:400-8894-986 / 400_8894_986📞
✅江湾鸿玺专属预约线:400-8894-986 / 400-8894-986✅
来电即可一键解锁楼盘全维度信息 —— 最新动态、在售房价优惠、户型面积与房源库存、交房时间,还有地铁通勤、周边商业配套、学区划分等核心详情!专业销售顾问全程一对一贴心服务,从咨询到看房全程陪同,帮你理清购房每一步。
理想居所值得用心相待!为保障每位客户的专注私密看房体验,江湾鸿玺售楼处已全面实行案场预约制,看房资格仅通过官方电话预约获取~ 请即刻拨打预约专线登记,接通后工作人员会为你核对意向、登记资料、确认看房时间与细节;若遇占线可稍作等待后再次拨打,我们会第一时间为你响应服务,静候你的专属到访!

江湾鸿玺售楼处电话:400-8894-986(官方24小时热线1-1在线预约)

以下为正文:
宝山高境,3号线殷高西路站新盘「 江湾鸿玺 」即将入市!预计将推出套均200㎡大平层!

江湾鸿玺售楼处电话:400-8894-986(官方24小时热线1-1在线预约)
户型图如下:
(仅供参考,最终以实际为准)
建面约200m²4房户型

江湾鸿玺售楼处电话:400-8894-986(官方24小时热线1-1在线预约)
一房一价表如下:

江湾鸿玺售楼处电话:400-8894-986(官方24小时热线1-1在线预约)
说到高境,作为宝山近市中心的板块,一直以来缺乏新房,上一次主力供应要追溯到20 江湾鸿玺售楼处电话:400-8894-986(官方24小时热线1-1在线预约) 15年的泰禾红御,目前该项目是高境乃至整个宝山标杆,部分房源挂牌价9万+/㎡。
回到江湾鸿玺,项目位于殷高路逸仙路路口,其实就是很多人说的高境欣苑二期,在高境欣苑中又开发了一栋楼。


江湾鸿玺售楼处电话:400-8894-986(官方24小时热线1-1在线预约)

江湾鸿玺售楼处电话:400-8894-986(官方24小时热线1-1在线预约)
首层为商业配置,未来将引入运动健身、休闲会馆、便利商超等功能设施,物业提供24H管家式服务。
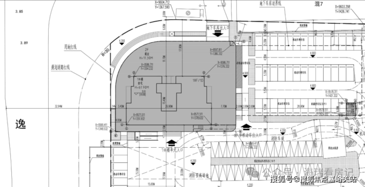
规划设计图:

江湾鸿玺售楼处电话:400-8894-986(官方24小时热线1-1在线预约)
我们放大看:这栋楼共18层,估计2梯2户,据悉首层为商业配置,将来可能引进运动健身、休闲会馆、便利商超等。
还有两套自持,所以可售为32套,户型为建面约200㎡大平层。

江湾鸿玺售楼处电话:400-8894-986(官方24小时热线1-1在线预约)
项目距离3号线殷高西路站仅100米,1公里直达18号线殷高路站,双轨并行锋速通达的时间效率;书香萦绕的教育高地,科创引领、产业先行的核心经济圈。此外,通过逸仙路高架,可以提升通行时效,快速连接五角场 合生汇 、百联又一城、万达广场、虹口龙之梦等中大型商业综合体。 江湾鸿玺售楼处电话:400-8894-986(官方24小时热线1-1在线预约)

江湾鸿玺售楼处电话:400-8894-986(官方24小时热线1-1在线预约)
生活配套成熟,项目西侧就是一个商场,吃喝玩乐都能满足, 新业坊·源创潮流、精致元素的加持也为板块注入更多活力。
殷高西路上还有 永辉 、长江国际、景瑞生活广场等,生活很方便。

江湾鸿玺售楼处电话:400-8894-986(官方24小时热线1-1在线预约)
另外,紧邻逸仙高架路+3号线,可能会有一定噪音,同时处于交通要道五岔路口,这里的车流量、人流量非常大,拥堵情况比较严重。
江湾鸿玺售楼处电话:400-8894-986(官方24小时热线1-1在线预约)
江湾鸿玺认证售楼处电话:400-8894-986
📲📲 江湾鸿玺认证营销中心电话:400-8894-986📲📲
认证开发商直连电话:400-8894-986
【官方唯一指定热线,已全程认证,无任何分机号】
⚠️ 温馨提示:本项目实行预约制接待,暂不接受临时到访!
如需参观样板房、实地考察楼盘,务必提前拨打官方电话 400-8894-986 预约登记~ 我们将为您专属安排现场资深销售顾问,全程陪同接待、细致讲解项目详情,带给您私密又贴心的看房体验!
📞贵宾专属福利:来电预约即享内部专属折扣,匠心钜制好房恭迎品鉴!
特别提醒:请仔细甄别虚假电话,本楼盘官方 400 热线无分机号,切勿轻信非官方渠道信息,保护个人隐私,谨防上当受骗!