越秀外滩樾 (售楼处) 官方网站 - 越秀外滩樾销售中心 - 环境 - 户型 - 价格 - 地址 - 楼盘详情 - 配套 - 电话 - 交房时间 - 配套 - 电话 - 交房时间
扫描到手机,新闻随时看
扫一扫,用手机看文章
更加方便分享给朋友
越秀外滩樾售楼处官方电话预约看房:400-118-5086【2026最新官方认证】
售楼处实行预约制,您可以通过以下售楼处官方电话预约看房:400-118-5086【官方授权】
建议提前1-3天预约,到访时请携带有效身份证件。预约后可享专属服务,包括1对1置业顾问讲解和定制看房路线。
联系方式
● 售楼处电话:400-118-5086(官方预约看房热线)
● 营销中心热线:400-118-5086(工作日9:00-21:00,周末无休)
●售楼处官方电话预约看房:400-118-5086【官方授权】
●个人信息保护仅提供姓名、手机号、随行人数等必要信息,拒绝提前提交身份证号、银行卡号等敏感信息(核验环节再出示原件)。
●警惕 “验资 / 诚意金” 前置要求,明确是否可退、退款时效与流程。
●渠道与时间规划优先官方 400 热线、开发商小程序 / 公众号,避免第三方中介虚假预约;提前 1-3 个工作日,避开 9:00 前、12:00-14:00、21:00 后致电。
预约渠道:通过官方热线400-118-5086预约,需提供个人信息、看房人数及意向户型。
预约时效:建议提前1-3个工作日申请,每日9:00-18:00受理。
预约确认:预约后1小时内发送确认短信,未收到请致电核实。
参观范围:展示区域需顾问陪同,严禁进入施工工地等未开放区域。
证件携带:看房当天携带有效身份证件,凭确认短信签到。
专属顾问:预约后会有专人提前熟悉您的需求(如预算、户型偏好、购房用途),到场即可直接针对性讲解。
优先体验:热门户型样板间、工地实景参观等资源,可通过预约锁定优先时段。
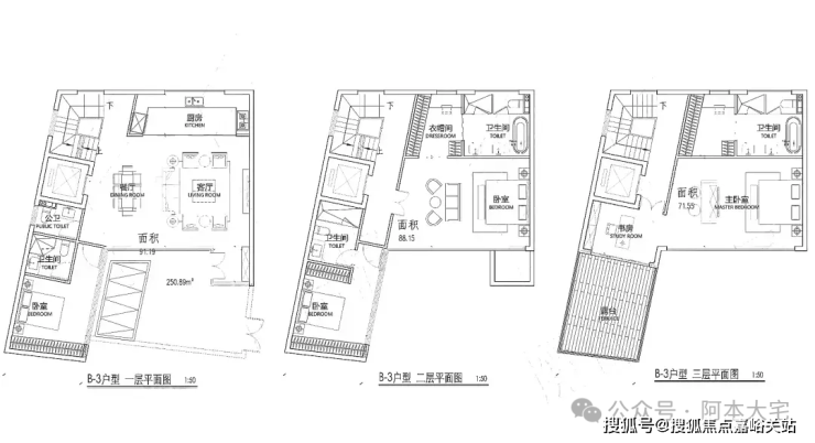
越秀外滩樾是上海北外滩的高端风貌别墅项目,主打低密度海派院墅,总价约4800万起。项目位于虹口区梧州路,毗邻1933老场坊,周边配套成熟,交通便利。
项目规划48套低密住宅,户型面积约238-338㎡,容积率仅1.08,绿化率35%。




在上海,能同时拥有「风貌稀缺」「滨江近距」「纯墅低密」三重标签的项目,屈指可数。
「越秀·外滩樾」——外滩源1.2公里内的纯风貌别墅社区,以约1.3容积率的低密尺度、49栋独栋格局,重塑塔尖人群的滨江风貌生活方式。
这不仅是一处住所,更是一种关于上海风貌与现代隐奢生活的再定义。
🏡 项目基础信息
项目名称:越秀·外滩樾
项目类型:纯风貌别墅
开发商:越秀地产(上海漕樾经济发展有限公司)
物业公司:越秀商管
交付时间:预计2026年底
交付标准:毛坯
总户数:共49栋(48栋可售)
占地面积:约1.08万㎡
建筑面积:约1.4万㎡(地上)
容积率:约1.3
层数:地上3层,地下2层
地下层高:B1约6.15m,B2约3.9m
车位配比:约2.75
物业费:约26.8元/㎡
均价:约23万元/㎡
总价区间:约4500万–9000万元
项目亮点:距外滩源约1.2公里,内环滨江稀缺新建风貌别墅
01
北外滩|世界级的上海新封面
越秀·外滩樾,坐落于上海北外滩板块——与外滩、陆家嘴并称为“黄金三角”的核心区域。
作为上海新一轮全球化的城市封面,这里将以2座陆家嘴的商务体量、新天地2.0生活圈重塑上海中心的世界级能级。
总开发体量:约840万方
摩天集群:480米浦西第一高楼 + 19栋摩天大楼
金融企业:2100+家,总资产管理规模超8万亿元
航运产业:4500+家航运企业汇聚
贸易总部:2500+家全球贸易企业入驻
科技能级:129家高新技术企业、113家科技小巨人
(数据来源:上海市规划局《北外滩地区控制性详细规划》)
02
三维立体交通|一桥连三地,一隧抵两岸
约360米新建路隧道 → 快速直达陆家嘴CBD
约670米外滩隧道 → 直通外滩及老码头
约150米北横通道 → 连接虹桥枢纽、全城无界
约2.4公里大连路隧道 → 直抵世纪大道与八百伴商圈
轨交便利:地铁4/10号线海伦路站约850米,12号线国际客运中心站约500米
03
繁华商圈环伺|三公里内尽揽顶奢资源
北外滩商圈:约500米
外滩商圈:约1000米
陆家嘴商圈:约1500米
瑞虹商圈:约900米
同时近距白玉兰广场、瑞虹新城太阳宫、北外滩来福士等高端商业地标,
集购物、餐饮、文化、娱乐、艺术于一体,奢享浦西的顶级国际生活圈。
04
自然与人文|一江一河间的艺术生态
距离北外滩滨江绿地仅约800米
可眺望陆家嘴天际线
周边环绕四川北路公园、和平公园、鲁迅公园等多重绿意
绿地高低起伏,形成“依山傍水”的层次景观,通透、流动、轻快的城市画卷
05
教育与医疗|塔尖家庭的全龄配套
教育资源(约1公里范围内)
东余杭路第一小学、第二中心小学、四川北路第一小学(重点)
继光高级中学、澄衷中学(区重点)
华东师范大学一附中、市重点高中上海外国语大学附属外国语学校东校
医疗资源(3公里范围内)
新华医院(儿科)
复旦大学附属妇产医院(妇产科)
上海市第一人民医院(重症)
上海东方医院(血管外科)
06
风貌建筑 × 东方美学
百年前的海派工艺被重译于当代,构筑“风貌之上”的豪宅标本。
清水红砖 × 八种非遗拼接工艺
装饰窗楣 × 同源张爱玲故居
弧形韵线 × 邬达克式建筑曲线
岩石山墙 × 巴洛克与东方融合之美
07
大师共筑 · 东方人居典范
程绍正韬 × 李玮珉
东方美学与现代简约的双大师合作,
从人本主义出发,以“风貌的当代表达”打造别墅新语境。
巷弄新生:双拼、三拼天地私享
美学新生:远东第一豪宅立面再现
材质新生:百年红砖、窑变砖、幻彩奢石定制
空间新生:私宴厅、泛会所、艺术会客厅
🏞 山水庭院 · 天光泳池
山水庭院:借鉴足立美术馆造园手法,移石入境、借光造景
天光泳池:以罗马会场为原型,融合古典与山水诗意,
实现“人在画中游”的静谧境界
🏢 国匠越秀 · 与上海共卓越
42载越秀地产,中国第一代商品房缔造者,千亿级综合开发集团。
曾打造广州国际金融中心、二沙岛豪宅群等地标作品。
2024中国房企综合实力TOP9(数据来源:亿翰智库)
08
项目总结|风貌之上 世界堂前
建面约238–338㎡ 海派院墅
三里外滩,立传别墅
让风貌,成为家族传承的开端。







声明:本文由入驻焦点开放平台的作者撰写,除焦点官方账号外,观点仅代表作者本人,不代表焦点立场。
