绿城逸庐售楼处电话:400-9975-759
绿城逸庐营销中心电话:400-9975-759绿城逸庐售楼处电话:400-9975-759
绿城逸庐营销中心电话:400-9975-759绿城逸庐售楼处电话:400-9975-759
绿城逸庐营销中心电话:400-9975-759绿城逸庐售楼处电话:400-9975-759
绿城逸庐营销中心热✅✅ 400-9975-759✅✅ 绿城逸庐售楼处地址|预约热线:400-9975-759✅✅ 本电话为开发商提供线上售楼电话

绿城逸庐售楼处电话:400-9975-759
绿城逸庐营销中心电话:400-9975-759
楼盘项目全面介绍:包含楼盘详情,最新房价,户型图,容积率,小区配套环境,楼盘简介,售楼处位置,户型图,交通规划,备案价,项目配套,楼盘详情,售楼处电话,最新消息,最新详情,最新进展等详情咨询。
如有问题欢迎来电咨询,专业一对一热情服务,让您用专业眼光去买房。
自825新政后,上海楼市的成交量显著上升,不少粉丝前来 绿城逸庐售楼处电话:400-9975-759
绿城逸庐营销中心电话:400-9975-759咨询,多出的房票到底该投给什么样的产品?
我认为真正穿越时代的产品,一定拥有三大条件: 极具潜能的地段资源+绝对稀缺的产品形态+长期主义的圈层服务。
而看完【 绿城·逸庐】, 产品力三个字,在我心中有了具象化的答案。如 绿城逸庐售楼处电话:400-9975-759
绿城逸庐营销中心电话:400-9975-759果打算在浦东买房,这个项目真的得来看一下,它绝对会刷新购房者对于产品的认知——真正的「六边形战士」,从不只是嘴上说说!

地段上:都知道张江作为浦东的产业老大,拥有科创霸主的地位,但职住失衡,板块内已无新房供应。张江每年持续吸引大量的高知、高收入人才,这些人的高端居住需求亟需得到满足。
【绿城·逸庐】地处北蔡楔形绿地,与正张江一线之隔。绝佳的地理位置,让项目吃到一线红利,且在未来十年甚至数十年的时间中,都能维持着 高姿态、高潜力、高价值。

潜力上:北蔡楔形绿地是浦东烫金核心区域内,继陆家嘴、前滩、碧云、三林滨江之后, 最后一块成片开发区域。
绿城逸庐售楼处电话:400-9975-759
换句话说,这片区域是目前整个浦东的发展侧重点, 浦东未来10年“更高标准”的支柱板块,将得到大量资源倾斜。
产品力上:此次绿城拿出满满的诚意,在上海历史上第一次做到了 在首开前就展示全维实景示范区。这样的做法史无前例,同时也是绿城这个品牌的底气证明。
项目实景图
全户型样板间、会所、架空层、中央景观、车库等全部实景展现,它的品质,所有的客户 看得见、摸得着!
毫无疑问,【绿城·逸庐】是各维度都领先了浦东10年的作品!
项目首开大捷!
首推建面约120-145㎡高层&约208-216㎡叠墅!
装标5000元/m
过会均价106938元/m²,总价约1070万起
项目首开热销18亿,成为当前浦东现象级红盘,目前还有少量房源在售!

绿城逸庐售楼处电话:400-9975-759
绿城逸庐营销中心电话:400-9975-759

效果图曝光
效果图曝光

感兴趣的朋友赶紧来看吧
避免大客流影响服务质量、影响到您的参观体验
仅接受预约参观,感谢您的理解与支持!
绿城逸庐售楼处电话:400-9975-759
户型图赏鉴绿城逸庐售楼处电话:400-9975-759
绿城逸庐营销中心电话:400-9975-759
高层户型图


绿城·逸庐高层深研张江思想者居住需求,打造Design、Detail、Dynamic的 “3D魔法收纳系统”,让空间承载更多生活想象。

绿城逸庐售楼处电话:400-9975-759
绿城逸庐营销中心电话:400-9975-759
科学化设计前置户型规划,充分考虑未来的居住、收纳的N重场景, 类一梯一户(不分户型)的设计让可用空间向外延伸,L型玄关、餐边柜的设计,无一不将空间利用最大化。
精细化场景直击日常,双面玄关分设“超级鞋柜”与“百宝盒”;厨房分区收纳、卫浴美妆镜柜、卧室大女主衣柜、餐边柜超能装的囤货属性等,让精致融入点滴。
灵动次卧、餐厅隐藏式满柜收纳区等诸如此类的动态化演变,让家随生活一同成长。
绿城逸庐售楼处电话:400-9975-759

绿城·逸庐收纳的艺术,藏在家的每一处细节里,让每一寸空间都得到充分利用,不断为生活扩容。

绿城逸庐售楼处电话:400-9975-759
绿城逸庐营销中心电话:400-9975-759
叠墅户型图


绿城逸庐售楼处电话:400-9975-759
绿城逸庐营销中心电话:400-9975-759
随着城市生活节奏的加快、家庭结构的多样性与对精神空间的需求,人们对低密舒居 绿城逸庐售楼处电话:400-9975-759
绿城逸庐营销中心电话:400-9975-759愈加渴望。绿城·逸庐建面约208-216m²泊心墅境,用尺度勾勒低密生活的舒适本真。
一层会客区、一层居住区,精心规划的空间分层,构建出一条流畅且有仪式感的生活动线。
会客区与卧室动静分离,使社交聚会、朋友小型派对不会打扰私人休憩;居住区的纯粹性让居者能够安静休憩,营造慢生活的节奏感,三套房的奢阔设计,同时满足多代家庭成员对独立与舒适的双重需求。

绿城逸庐售楼处电话:400-9975-759
绿城逸庐营销中心电话:400-9975-759
下叠地下室,以整层面积和开阔空间构建家庭的精神私地,成为每位家庭成员兴趣与创意的自由舞台。这里既可以是自由创作的工作室、茶室或游戏室,也可以改造成私人健身房、酒窖、影音室,灵活满足家中各年龄层成员的多样兴趣与精神需求。
上叠露台为日常社交、休闲提供开阔的空中视野。这里是城市里难得私享的静谧角落,揽天地于怀,观四季盛景。

土拍回顾及规划
3月28日,2025年上海第三批次土拍,绿城以总价 291590 万元竞得浦东北蔡地块,溢价率 40%, 折合楼板价 71412 元 /㎡,且装修标准不低于 5000 元 /㎡。
绿城逸庐售楼处电话:400-9975-759

绿城逸庐售楼处电话:400-9975-759
绿城逸庐营销中心电话:400-9975-759
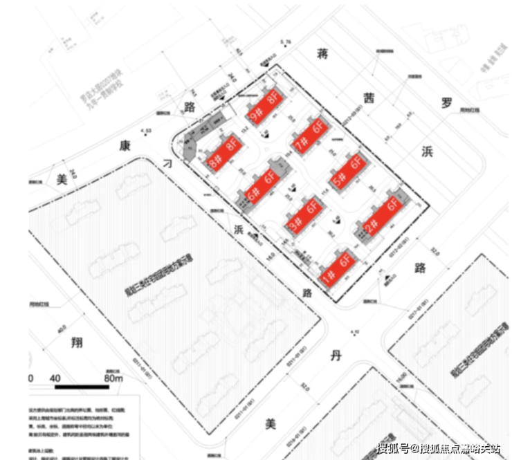
项目基地处于浦东新区北蔡(镇/街道)范围,地块东至规划七路,南至规划一路,西至规划四路,北至规划二路。

根据设计方案显示,项目拟建4栋14-16层的小高层住宅与5栋4-5层的叠拼。

在建筑上,绿城·逸庐沿用庐系“现代形,东方意”的内核。小高层以金色线条勾勒挺拔轮廓,大面玻璃搭配轻盈檐角,既有东方风骨,又具摩登质感;叠墅区则强调“东方屋檐下的院落感”,通透立面搭配简约线条,让阳光与清风自由穿梭,勾勒出“飘逸东方之美”。
景观上,绿城·逸庐借鉴豫园的造景手法,以国际视野解构东方园林,带来叠石、景桥、悬亭等特色景观,为忙碌的身心,打造知停而行的庭园。
/ 松风枫影 /
归家门庭之前,松的苍劲、枫的灵动构画一场「松风枫影」的归家礼序。
阶梯式水景,以幽静的潺潺之声,让城市的喧嚣悄然退场。
步入门厅,玉石照壁隐贵的东方意蕴,照应生活的雅逸,也照应人们的内心。
/ 景观中轴 /
景观中轴,油松为林,化作家境的第一幕序章。
林下,一条蜿蜒的溪流,将小高层与叠墅分置两边,又巧妙的连接成一个有机的整体。
当视野穿过松林,影影绰绰间的延伸感,顺着溪流向前,却不知自然在哪里终了,山水从哪里开始。
/ 立体山水 /
而最令人惊艳的,当属约6米地势差打造的下沉式山水庭院,山、石、水、林有序交织,犹如一幅“豁然开朗”山水轴卷,每一步皆是景致,每一处皆有不同。
太行金景石层叠成丘,岭南古桩铁冬青与原生乌桕树相映成趣,瀑布落溪、溪转成涧、涧聚成池的生态景观,让“山水”不再是远观的画卷,而是可步入的秘境。沿连廊慢行,亦或者坐听流水如琴音婉转,清风携草木清香拂面,城市的喧嚣在此彻底消散。
会所打造上,绿城·逸庐深知张江科创精英的生活节奏,以“全维复合型会所”回应“张弛平衡”的需求,让会所成为“私属能量场”与“高阶社交平台”的结合体。
整个会所环抱山水庭院,无边界设计让自然与空间无缝交融。
茶室宛如悬空的透明玻璃盒子,将饮茶的瞬间化作“坐看云起时”的禅意修行。在这里,饮者会友、观林、赏石……尽享自然的馈赠与隐逸的宁静。
自然的簇拥,才能给予身心放松的自由。
游泳池、健身房等运动空间的设计中,大面积落地玻璃消弭了室内外的界限,让自然与人无间交融。
在这里,游泳、运动、社交,每一种场景都能让人在“繁华与静谧”“忙碌与松弛”间找到平衡,在为高质量圈层社交提供多重选择的同时,也为居者提供丰富的互动空间。
生活配套
交通方面:项目紧邻“浦东南北动脉”罗山路高架,享“一纵(罗山路)三横(内环、中环、外环)”骨干路网,可快速通达陆家嘴、世博前滩、杨浦滨江等核心区域。轨道交通方面,拥有18号线(芳芯路站约1.5km)和16号线(华夏中路站约2km)双轨交资源。
绿城逸庐售楼处电话:400-9975-759
商业方面:项目本身享有规划中的滨水商业街区(南侧川杨河沿岸)。半径5km范围内,覆盖浦东山姆会员店、宜家、长泰广场、科学之门、复地活力城、巴黎春天等成熟商圈,10km半径更可无缝衔接国金、世纪汇、世博源、前滩太古里等顶级商业地标。
绿城逸庐售楼处电话:400-9975-759
绿城逸庐营销中心电话:400-9975-759
教育方面:板块规划高起点,已签约引进浦东协和双语学校(具体位置待定),并规划新建1所初中、1所小学、2所幼儿园(部分已获批,年底开工)。政府还规划“学校活力街区”,保障通学安全,板块整体定位高端商品房社区,未来生源圈层有保障。
北蔡楔形绿地规划小学效果图
医疗方面:项目西侧规划新建社区卫生院。5km范围内分布上海中医药大学附属曙光医院、上海市第一妇婴保健东院和交通大学第九人民医院浦东分院等三甲医院,为您和您的家人健康保驾护航。
生态休闲:作为上海2035总规明确的10片楔形绿地之一,北蔡楔形绿地占地约10.6平方公里,以 “森林绕城、城市森林”为定位,成为浦东核芯生态支点,让生活浸润于推窗即景的森氧日常。
根据规划,未来这里的绿化覆盖率将超70%、森林覆盖率超50%、人均公园绿地面积超82平方米,出门200米就能见到休闲绿地,是浦东核心区难得的「城市绿肺」。
项目作为这个黄金三角的居住极,依托稀缺生态资源和绿城高端产品力,填补了张江区域缺乏高品质国际化居住区的空白。
感兴趣的朋友赶紧来看吧
避免大客流影响服务质量、影响到您的参观体验
仅接受预约参观,感谢您的理解与支持!
绿城逸庐售楼处电话:400-9975-759
上海楼市动态:上海官宣第九批次土拍;保利置业爱国路项目、建发美兰湖项目规划公示;金陵华庭、中信泰富外滩道、翡雲悦府、中海云邸玖章、尚园、上江南贤庐过会。
【土地】
1.上海官宣第九批次土拍!11月24日开槌
上海市土地市场网发布第九批次涉宅用地出让公告,共推出9宗地块, 计划于11月24日组织现场交易。

这批地块覆盖杨浦(2 宗)、宝山(2 宗)、嘉定、奉贤、青浦(2 宗)及浦东等区域,总出让面积约 28.9 公顷,总建筑面积达 55.26 万平方米。
中铁建与象屿陆续在官网披露多宗住宅用地招标计划:象屿锁定浦东川沙PDP0-0706单元C05A-18地块;
中铁建则同步布局杨浦定海社区K8-03地块与宝山共康板块N120702单元B2-08双轨交地块。
【规划、产品】
1.保利置业爱国路项目规划公示
据官网显示,杨浦区定海路街道152街坊D1-7地块商品住宅项目建设工程规划设计方案公示。
据显示,杨浦定海社区D1-7地块拟建14-26层小高层&高层住宅。
2#楼为26层高层,3#楼为16层小高层,5#楼为14层小高层,6#楼为16层小高层,7#楼为26层高层;另有一栋保障性租赁住房。
全部楼栋底层局部架空,6#和7#楼一层、二层设置社区卫生服务点、物业配套等。
社区内部有下沉式庭院、景观架构等。

在10月举行的上海第八批次土拍中,杨浦定海社区D1-7地块,4家参与竞争,经过43轮竞价,溢价率达到了14.69%;
最终由保利置业以总价261620万拿下,成交楼板价69958元/平。
2.建发美兰湖项目规划设计方案已正式公示
项目涵盖4幅地块,容积率介于1.2-1.6之间,限高40-60米,将打造31栋4-17F住宅产品,整体规划为“洋房/小高层叠墅”的组合形态。

其中0216-03地块内,还配置了一块十二班幼儿园规划用地。
东侧两宗地块容积率为1.2,紧邻美兰西湖公园,生态优势得天独厚;西侧两宗地块容积率1.5-1.6,密度略高但仍处于舒适区间。
该项目由建发以底价竞得,起拍总价约23.23亿元,楼板价约21300元/㎡;扣除公租房面积后,实质楼板价约22421元/㎡。
【过会、网签】
1.上海近期将入市新房项目官宣,共6个新盘

据网上房地产公示,本次上市6个商品住房项目,共约7.66万平方米,合计393套。
主要分布浦东、黄浦、杨浦、闵行、奉贤 5个区域。
(1)前期去化99%,金陵华庭三期T2楼王已过会、均价20.6万/m²
金陵华庭三期T2楼王已过会!推出39套建面约370㎡收官大平层以及一套建面约730㎡顶层复式,过会均价20.6万/m²,相比上一批次涨价1000元/㎡。
最后批次加推的是T2西边户,建面约370㎡大平层&730㎡顶复,项目从视野、户型设计和装标各个维度,都足以匹配外滩顶豪的站位。
(2)120㎡一梯一户,中信泰富外滩道首开121套房源、均价13.85万/㎡
中信泰富外滩道待认购,首推121套约119-192㎡3-4房,已过会均价
13.85万/㎡。
项目首推地块,主力面积段为约190㎡以及120㎡两档,5号楼楼王则为约220㎡顶豪,以及少量约100㎡产品。户型之优越,几乎可以说是上海新建商品房品质的一次“断代式的飞跃”。
(3)娄山杰掌舵,翡雲悦府六批次官宣涨价9500元
翡雲悦府六批次产品位于一期社区内,建面约175-220㎡的叠墅产品,18#22#2幢共16套,已过会。
位于二期三批次7#8#建面约113㎡高层房源,已过会。均价11.37万元/㎡,相比上一批次涨价9500元/㎡。

二期的地块位于上园的南侧,同样有地下消防通道与九年一贯制学校相连,整体南向面宽比较大。从小区出入口步行到地铁站大概800多米的距离,属于地铁房的范畴。
(4)涨价6000元/㎡,中海云邸玖章压轴32套房源过会
中海·云邸玖章压轴楼王32套约148㎡4房已过会,均价12.6万/㎡,往期少量约104-148㎡3-4房,均价12万/m²,涨价6000元/㎡,总价1150万起。

在2024年四季度的土地出让中,中海分别拿下杨浦滨江三幅地块,三个地块相距不远,预计很快就会入市!
(4)一批次22天去化64%,尚园二批次再推36套别墅
全新别墅尚园二批次待认购!,36席建面约172-179㎡精装,过会均价61450元/m²。
项目一批次于10月12日,推出44套房源,截止到11月3日,已售28套,去化64%。

(4)前期去化75%,上江南贤庐三期涨价5255元/㎡
奉贤新城上江南贤庐三期已过会,即将认购,推出建面约162-280㎡三房四房,约4.49万/㎡,相比上一批次涨价5255元/㎡。
项目前期共推出220套房源,截止到11月3日,已售164套,去化75%。
