中环置地中心·望云(售楼处)电话→中环置地中心·望云售楼中心前台电话→2026望云楼盘百科→楼盘网站→楼盘测评→望云售楼中心电话→来电预约看房
扫描到手机,新闻随时看
扫一扫,用手机看文章
更加方便分享给朋友


宝山·南大 全新盘
加推建面约108-188㎡3-4房
均价67477元/㎡ 正在认购中
中环旁双轨交地铁上盖 共86套房源
万象汇TOD综合体
售楼处线上预约中
2024年10月25日华润以底价拿下宝山区大场镇W12-1301单元32-04、11-01地块,随着二期地块的顺利出让,标志着整个丰翔路站TOD项目中环置地中心的版图由此补全!

望雲TOD新品上市
百万方底盘之上的进化论
望雲TOD,以“无界之城”的构想,在城市与自然之间、烟火与诗意之间,打开了一种无界共生的城市空间。以百万方TOD底盘为核心,实现互通互联,实现“人、站、产、城、商、居”一体化全盘高阶塑造,共建一座“地上一座城,地下一座城,云端一座城”的立体之城。

望雲TOD,以百万方TOD的复合逻辑为底,回应城市的未来之问,为理想人居提供了最具当代表达的答案。以“无界”为原点,从TOD+Walk、TOD+Park、TOD+Mixc、TOD+Luxury四大维度,构筑一座具备未来感的无界之城。从交通的高效到空间的复合,从居住的舒适到产业的聚集,一切关于理想生活的想象,在这里浓缩为现实的触感。

TOD+Walk无界真正TOD地铁串联地库入户,与城市无缝衔接
地库直联15号线丰翔路站,接驳1/2/3/9号线,无风雨归家系统,从容穿越城市的四季风雨,构建真正意义上的地铁无缝链接地库入户体验。通道连廊还连通街区商业、万象汇商业,实现无界联通,随时随地,享受烟火生活。

秉承“商务生态缔造者”的品牌理念,中環置地中心以一流的办公产品和全新的商务配套,升级城市商务印象,打造科创新城一站式TOD商办综合体办公楼宇,为企业发展赋能,激发城市、区域、产业的活力,推动片区产业转型升级。

TOD+Mixc 以街区编织城市,以万象聚合生活
以万象汇引领的区域型购物中心示范作品,聚焦周边高知客群、科创园精英等人群,打造引人入胜、充满期待、无尽探索的,值得共享的消费体验场所,目标成为区域消费者品质生活方式的全新必选地。



从生活街区到万象商业,再到150米超高层办公,以立体链接系统构筑完整漫步环线,不止串联了丰富的公共空间与资源,更塑造了多元活力的城市场景,一站式整合都市的生活体验场景,进阶为北上海商业和商务新中心,引领生活的迭代新生。

TOD+Park 将最珍贵的自然留白,交还给城市与人
这不仅是一场关于生态的表达,更是关于生活哲学的构建。推窗即见绿意,外有约13万方走马塘滨水绿廊与南大中央公园(在建中),内有定制园林与归家仪式感空间。在快节奏的都市肌理中,为松弛生活预留一片天然的后场。内外双园,营造如度假般的轻盈日常,让自然成为生活的背景音。

TOD+Luxury 中心之上万象主场 限量美学作品
在住宅营造上,品质人居与缤纷商业、创新办公和谐共融共创,以社区生活与滨水绿廊为载体,以蓝绿湾区、公园都芯为理念,打造上海“复合型、生态性、识别性”俱佳的,具备号召力的海派国际生活范式。

项目本次的边套设计了大量的飘窗、转角飘窗、主卧270度落地窗等设计,所以整个立面运用了大量的玻璃,构建出了非常极致的窗墙比。

同时,南侧还运用了铜色的铝板和浅色金属板,这样立面风格,再搭配上塔冠的造型,实在太抓眼球了。

景观方面,项目由翊象设计主创设计团队操刀设计。
整个社区以 主景花园联动 自然教室、 休闲交谊与 艺术空间,形成婉转游园的酒店式迎宾水院。
同时,以 超奢戏水池与 尊享休闲会所为核心,联动 架 空层,串联休 憩廊架与 横向端景,打造核心奢享场景。
另外,整个项目拥有包 括泛会所(戏水池、健身场所)、场景化网红架空层泛会所等全维社交场景。

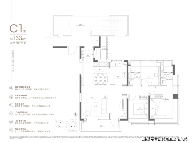
据悉,中環置地中心·望雲加推86套房源,建面约108-165㎡3-4房产品。建面约165㎡公园头排全景舱新品上市,建面约133㎡绝版户型最后收官。过会均价67477元/㎡,其中52套108㎡户型为6幢楼中间套,均价6305元/㎡,总价613万起!首排2幢165㎡户型32套,均价72059元/㎡,一路之隔马塘公园,一览众山小!目前已开启认购!
示意图,仅供参考
加推房源全套户型图如下:
108㎡的入门级三房,起步门槛相比润府提高不少。
这个户型,入户玄关收纳、双开间的阳台、宽大的U型厨房,和套房主卧带步入式衣帽间+全景式飘窗,是比较突出的亮点;

133㎡可以说是108㎡的进阶款,同样的三房两厅两卫,大面宽横厅、半开放式厨房设置岛台,加上主卧L型飘窗,再一次验证了华润置地豪宅化的产品思路。
此次加推位于6#号楼,楼下即是景观戏水池,凭借奢享园林景观的上佳位置,随时随地亲子嬉戏,无遮挡享绿意景观,真正的推窗见景。超阔面宽,墅级采光面,270°全景飘窗,无遮挡全景飘窗,开阔视野,引窗外繁华与自然入室;LDBK+X宽厅,构造大客厅,妥帖收藏家人的一切欢然时光。

外,像私享的入户梯厅可以做家庭小型储藏库;沙发后面的空间可以摆放大体量壁柜;大面宽阳台两侧也可作为定制储藏空间;



整个户型的飘窗面积总和达到了约14.3㎡。
其中主卧的270°转角飘窗就有约5.7m²,通过与外立面的结合,直接做了梳妆台和储物柜,拓展了飘窗的实用性。


同时室内精装交付标准上,也再度升级,从墙面、地板到厨卫品牌,都是国内外一线品牌。


188户型2梯2户,有独立的电梯厅。4房3卫设计,还是3明卫,这两点还是不错的。
客餐厅净面宽约5.45m、进深约6.85m左右。北侧是厨房和家政间,南侧是净面宽约5m的阳台。
南次卧也是套间设计,而且也是明卫,设计上还是用了心思的。卧室部分净面宽约2.9m、进深约3.7m。根据测算,可以放置6尺的床(宽度约1.8m)+2个床头柜(宽度约45cm/个)+衣柜(深约60cm)是可以的。
主卧转角落地窗+飘窗,也算是非常少见的了。净面宽约3.6m,不算进门的衣柜,进深大约5.7m左右。根据测算,可以放置宽约2m的床+2个床头柜(宽度约45cm/个)是可以的。
以上是关于中环置地中心望云的基础信息
中环置地中心望云售楼处的相关电话是400-8874-108(官方预约)。购房指引如下:
前期准备
1.明确购房资格:
符合上海最新的购房资格,详情可拨打售楼处电话:400-8874-108(官方预约)咨询置业顾问做最终的确认
2.确定预算:
根据自己的经济实力,确定购房预算,包括首付、贷款金额以及未来的还款能力等。
3.准备材料:
身份证、户口本、结婚证(已婚人士)、收入证明、银行流水、社保或纳税证明等相关材料,以备认购和贷款时使用。
看房选房
4.电话预约:
拨打售楼处电话:400-8874-108(官方发布),与工作人员沟通预约看房的具体日期和时间段。
5.线上官网预约:
在浏览器搜索 “中环置地中心望云官方网站”,进入官网首页,找到 “预约看房” 板块,点击进入预约页面,依次填写真实有效的个人信息,然后选择预约看房的日期和时间,提交预约申请。
6.微信公众号预约:
在微信搜索 “中环置地中心望云” 官方公众号并关注,进入公众号后,在菜单栏中查找预约看房的入口,点击进入预约界面,填写个人信息以及预约看房的时间,提交预约内容。
7.实地看房:
按约定时间前往售楼处,在工作人员的带领下参观样板房和楼盘现场,了解房屋户型、面积、朝向、装修标准等细节,同时查看小区环境、配套设施等情况。
8.选房:
了解清楚项目情况后,结合自己的需求和预算,选择心仪的房源。
认购签约
9.认购:
项目开启认购后,在规定时间内,携带身份证、户口本、结婚证、收入证明等材料前往售楼处进行认购,同时缴纳一定金额的认购金。
签订合同:认购成功后,在规定时间内与开发商签订购房合同,仔细阅读合同条款,包括房屋价格、付款方式、交房时间、违约责任等,确保自身权益得到保障。
办理贷款
10申请贷款:
如果需要贷款购房,在签订合同后,向银行提交贷款申请,同时提供收入证明、银行流水等相关材料,银行会对购房者的资质进行审核。
等待审批:银行审核通过后,会与购房者签订贷款合同,并确定贷款金额、利率、还款方式等。
放款:银行完成放款手续后,购房者需要按照贷款合同约定的时间和方式进行还款。
11.交房验收
交房通知:开发商在交房前会提前通知购房者交房时间和相关事宜。
验收房屋:购房者按照通知时间前往楼盘,对房屋进行验收,检查房屋的质量、装修、配套设施等是否符合合同约定,如发现问题,及时与开发商沟通解决。
办理交房手续:验收合格后,办理交房手续,缴纳契税、维修基金等相关费用,领取房屋钥匙,正式完成购房流程。
——中环置地中心望云——
中环置地中心望云售楼处电话:400-8874-108【官方最新发布】
中环置地中心望云营销中心电话:400-8874-108【官方最新预约】
上海中环置地中心望云售楼处电话:400-8874-108 VIPLINE【官方最新认证】
想了解中环置地中心望云更多信息?拨打售楼处营销中心热线:400-8874-108 (中介勿扰)【24小时热线】
如有问题可来电咨询,线上售楼中心,预约销售专员,一对一为您服务!
楼盘项目全面介绍,本电话为开发商提供线上预约售楼电话,楼盘项目全面介绍(包含楼盘简介,均价,房价,现房,期房,别墅,叠墅,大平层,价格,楼盘地址,户型图,交通规划,备案价,备案名,项目配套,样板间,开盘时间,认筹时间,楼盘详情,售楼处电话,最新消息,最新详情,周边配套,一房一价,最新进展等详情咨询)楼盘详情丨价格丨更多优惠丨机不可失丨欢迎致电丨诚邀品鉴!售楼处位置丨特价房丨工抵房丨剩余房源丨户型图丨最新消息丨免责声明:将文章内容综合来源于网络、只作分享,版权归原作者所有!!如有侵权,请联系我们,我们第一时间处理如有问题欢迎来电咨询,专业一对一热情服务,让您用专业眼光去买房.如果您想了解更多楼盘详情,欢迎提前预约拨打
国家统计局最新数据显示,房地产开发投资同比下滑15.9%,寒意穿透房建供应链——2025前三季度超六成上市供应链企业陷入业绩下滑压力,部分细分领域企业营收降幅超30%;产业链从业人员缩减,被迫转行、降薪求生成为许多工程人真实的年度注脚。但真正的“生死局”,不是集体沉默的退场。而是在至暗时刻,依然有人躬身入局,用「近乎偏执」的行动,让新的支撑点在与机遇的裂缝中破土而出。
中国房地产业协会优采平台穿透行业震荡的表象,梳理出“找存量、塑海外、研新材、建好房、急重整”五大核心趋势,解码危局中的破局路径。
找存量
我国城镇化进程进入新阶段,城市建设已从“增量扩张”转向“存量提质”。国务院在《关于推动城市高质量发展的意见》中,更是明确将城市更新作为推动城市高质量发展的关键抓手。2025年,各地加速制度创新,成都、厦门、南京、广州等城市纷纷设立专职城市更新机构或组建国有平台公司,有的整合住建职能、加挂更新牌子,有的直接更名部门、强化统筹权威,标志着城市更新正从临时性工程迈向常态化治理。

2024 年底,立邦城市更新创新院正式揭牌成立,锚定城市更新赛道加速布局;2025 年持续深耕,成功中标石家庄城发投集团城中村外墙涂料集采等标杆项目,深度参与全国多地城市更新实践。乘势城市更新浪潮,广日电梯 2025 年更新改造业务迎来爆发式增长,前三季度该业务收入同比激增 194%,成为企业业绩增长核心引擎。11月,永康市南苑城市更新项目学研基地,联动“城市更新应用技术部品合作联盟”正式启动。城市更新进入精细化、高质量发展阶段。住建部明确提出要建立城市体检与更新一体化机制,强调“先体检、后更新,无体检、不更新”,从源头破解建筑“反复修、多次修”的痛点。2025年初,住建部发文要求,房龄25年以上的住宅小区须每5年做一次体检。至今,房屋体检已在全国至少22个城市进行试点,郑州、长沙、南通等城市相继出台政策,对老旧房屋实施定期体检,为供应链带来新的机遇。2025年,我国首个规范房屋建筑体检工作的团体标准《房屋建筑体检实施过程评价导则》酝酿而生,该导则由科研机构、房地产企业、工程检测单位联合参编,突破了传统技术标准的局限,为城市更新“先体检、后更新”的原则提供了关键的执行依据。

2025年3月,全国政协委员、三棵树涂料股份有限公司董事长兼总裁洪杰在两会期间就推广房屋体检和维修制度以及推动产业转型升级等话题,建议在全国范围内推广成熟的房屋体检和维修制度。此后,时任中国建筑防水协会秘书长朱冬青,以及东方雨虹、科顺股份、北新建材等头部防水企业积极响应并表态支持该建议,且积极拓展修缮服务业务。
塑海外
国内行业规范化进程持续推进的同时,房建供应链头部企业加速全球化步伐,以本土化产能建设、精准渠道拓展等多元举措布局全球市场,推动中国制造优势向海外延伸,成为2025年行业发展的重要亮点。
东方雨虹多维推进海外布局:1月,马来西亚生产研发物流基地顺利完成首次试生产;2月,东方雨虹旗下天鼎丰中东有限公司在沙特达曼正式启动工厂土建施工,夯实亚非区域供应;7月,收购智利建材连锁超市Construmart S.A.;11月东方雨虹全资子公司拟收购巴西水泥添加剂及混凝土外加剂企业Novakem60%股权,快速渗透南美市场;12月正式发布海外五项核心战略举措,实现从产品到品牌生态输出的升级。2025年,中国联塑在坦桑尼亚、埃塞俄比亚、越南、菲律宾、安哥拉、乌兹别克斯坦等地的生产基地都已开启运营,加上美国、印尼,马来西亚、泰国、柬埔寨等基地支撑,已形成贴近市场、快速响应的全球供应网络,持续深化东南亚、非洲、中亚、北美的产能布局。
海信加码海外产能枢纽:2月,埃及新显示器工厂奠基并推进本地化生产,二期将拓展冰箱、空调等白电制造;9月,海外最大的泰国HHA智能制造工业园开工,投产后将辐射东盟、打通全球市场通道。立林以差异化策略布局海外,聚焦数字家庭与智能生态构建,在中东与头部房企合作提供高端智能家居解决方案,在东南亚通过示范工程提升品牌影响力。
研新材
2025年,建筑节能新材料成为行业热点,尤其无电制冷类涂料备受关注,涂料龙头企业集体布局——6月,富思特发布其核心黑科技产品“无电制冷涂层”;嘉宝莉建筑涂料推出了纳米自洁无电制冷涂料,可帮助空气温度下降10℃;立邦创新推出的“双核气凝胶保温隔热系统”和“辐射制冷外墙涂料”都可以有效为建筑降温、节省能耗;科顺旗下顺易洁新材料公司打造无电制冷解决方案……

“好材料”支撑“好房子”建设。在住建部科技与产业化发展中心联合多方共建的“好房子科技展”上,碳纤维、复合防火玻璃等筑牢建筑安全;高隔声系统、自愈合防水材料等提升居住舒适;气凝胶玻璃、发电玻璃幕墙等驱动绿色节能;智能调光玻璃实现光影智慧控制,重构未来住宅建造与体验逻辑。共研共创成为产业协同新趋势。房企与供应商围绕“6633”好房子建设要点深化合作:中建智地与北新建材、华为等签订长期协议,联合研发绿色建材;针对噪声控制、智能化适配等课题,定制开发隔声楼板、安防监护设备等产品;招商蛇口北京公司亦联合供应商,在项目中采用“主动减震(电引机)+被动隔声(墙体)”方案治理电梯噪声,以定制化研发适配品质居住需求。富轩与德国柯梅令合作推出外铝内塑的“暖芯”产品,与极景门窗的“泰山”系列共同开辟了“铝塑共生”的全新赛道,融合了铝合金的坚固与塑料的保温优势,为高性能门窗提供了新解决方案。
建好房

2025年,“好房子”建设迎来政策与市场的双重共振——首次写入政府工作报告,《住宅项目规范》新国标落地,14项硬指标为住宅品质划定不可逾越的底线;住建部“6633”新方向进一步明确实践路径,多地加速推进现房销售试点,让“高质量居住”从理念真正迈向实操。2024—2025年,中海地产、招商蛇口、华润置地等十余家头部房企纷纷发布企业级“好房子”标准体系。
7月,住建部《“好房子”建设经验做法(第一批)》正式发布,绿色低碳、智慧化、全龄友好的第四代住宅明确成为市场主流方向。从北京的全龄友好社区试点,到深圳的绿色智慧住宅示范项目,再到杭州的超低能耗“好房子”样板间,政策经验正加速转化为可复制、可推广的建设实践;不少房企联合供应链企业深度协同,将被动式超低能耗技术、全屋智能系统、适老化改造设计等核心要求融入项目全周期,让第四代住宅的居住优势直观呈现,一批“好房子”标杆项目在全国范围内持续出圈,成为行业转型的鲜活范本。
在顶层设计之下,配套标准加速落地,为“好房子”建设筑牢支撑。住建部主导的“好房子”系列国标图集全面启动,通过6大主题、10项核心内容的全链条可视化指引,精准破解行业长期存在的“6633”共性痛点;9月,以该国标图集为核心纽带的“好房子标准化协作创新平台”应运而生,打通标准制定、技术转化、项目落地的“最后一公里”,推动产业链上下游形成标准共识与协作合力。9月《热泵热水系统的选用及安装》25S127、12月《建筑防水》(25J950)两项国家建筑标准设计图集相继发布,为“好房子”建设的核心技术环节提供了权威统一的实施依据,标志着行业正式从“有标准可依”迈向“依标准精建”的深度转型。
材料端的标准门槛同步抬高:3月发布的《建筑防水卷材安全和通用技术规范》GB 45320—2025,明确禁止纸胎油毡等落后材料使用,强制要求防水卷材寿命与建筑结构设计年限匹配;涂料行业强制性国标《涂料中有害物质限量 第1部分:建筑涂料》GB 30981.1-2025完成迭代,将腻子、稀释剂等辅助材料全面纳入管控,对VOC等有害物质限值提出更严苛要求。一系列标准升级从源头倒逼供应链绿色转型,与“好房子”向“绿”而行的建设导向同频共振,筑牢品质根基。
急重整
3月,大华股份公告称拟以12.03亿元出售旗下智能家居品牌乐橙(华橙网络)54.92%股权。交易完成后,大华将彻底退出乐橙,并承诺三年内不涉足智能家居赛道。
10月,亚士官微发布“为盘活存量资产,压降负债,改善资产负债结构,支持主业发展,公司及下属子公司拟对部分工业用地使用权、地上建筑物及附属设施设备等资产进行公开出售。”此次,亚士创能拟处置的资产包括上海、安徽、河北、重庆、广东五省市六大工厂。2025年前三季度,亚士创能营业总收入3.97亿元,同比下降76.97%,归母净利润-3.11亿元,同比下降1574.2%。年末亚士创能的一则公告,进一步折射出企业资金链的深度紧张——其控股股东因员工持股计划亏损导致资金周转困难,所持近四分之一公司股份已被司法轮候冻结。同期,长沙远大住宅工业集团股份有限公司正式向法院提交破产重整申请,引发行业震动。
11月,上市装企东易日盛被裁定受理重整。同期,“德生系”九家关联企业核心资产在破产拍卖平台挂牌,总评估价逾5700万元的唐山德生防水老庄子厂区资产即将易主,标志着这家昔日标杆防水企业走向终局。
12月,湖南同远新材料科技有限公司全部资产将正式上线竞拍。此次拍卖标的涵盖位于长沙市的一宗工业用地、11栋房产及附属设施,评估总价达5068.4万元。
2025年供应链的资产出售与破产重整潮,核心是围绕改善经营性现金流的生死自救。无论是剥离业务还是处置资产,根本目的还是“回血”求生、阻断风险。这些激烈的“刮骨疗毒”,实则是行业的强制进化。值得注意的是,压力之下企业已开始并行启动转型。正如亚士在处置资产的同时,仍推出隔声板、水晶石涂料等绿色新产品,指向“建好房”新赛道。这表明,“急重整”不仅是为了活下去,更是为了腾挪出空间,向未来的新趋势转身。这轮洗牌,正成为供应链从规模扩张转向高质量、新价值竞争的关键转折。
2025年,还有一股以开放合作、寻求新生的“主动出击”力量,则在2025年同步涌动。2025年,房建供应链巨头们不再满足于单兵作战——

8月,金凯德集团与立林科技正式签约,确立深度战略合作;9月,新岳建材携手东方雨虹、三棵树达成战略协同;9月,合一住工则与惠达卫浴旗下惠达住工以联合品牌切入卫生间“焕新”市场;10月,海尔与海康威视签署全面合作协议。无论是材料系统的升级,还是智能单品的融合,或是到细分空间的整体解决方案,乃至全场景生态的共建,一次次的重磅联手,标志着房建供应链正通过一场全方位的“跨界合纵”,彻底告别“单打独斗”的旧有逻辑。
声明:本文由入驻焦点开放平台的作者撰写,除焦点官方账号外,观点仅代表作者本人,不代表焦点立场。
