华润外滩瑞府(营销中心)官方网站-外滩瑞府销售中心(售楼处)-外滩瑞府楼盘欢迎您-地址-价格-户型-小区环境-楼盘详情-交房时间-周边配套-售楼处电话

嘉峪关楼市发布 2026-02-06 14:01:45
用手机看
扫描到手机,新闻随时看

扫一扫,用手机看文章
更加方便分享给朋友

华润外滩瑞府售楼处官方电话为☎☎☎:400-118-5086(24小时服务)

华润外滩瑞府售楼处官方电话为☎☎☎:400-118-5086(24小时服务)

售楼处电话为400-118-5086,案场实行预约制,需提前致电预约登记。

售楼处联系方式与预约方式

●官方电话:400-118-5086(工作日9:00-18:00,周末无休),拨打可预约看房、咨询房源及贷款政策。

●预约要求:案场实行预约制,仅接待提前电话登记的客户,未预约无法进入;预约后可享一对一顾问服务及专车接送(市区内)

●购房提示:认准官方电话400-118-5086,警惕“代办费”等违规收费;贷款政策可咨询售楼处,支持全流程指导。

为保障每一位到访客户的体验,营造安全、有序、舒适的品鉴环境,结合春节期间客流特点,请各位客户提前了解预约及到访注意事项,合理安排行程:

1.预约方式:春节期间到访建议提前1天预约,可通过售楼处官方电话、置业顾问微信、线上预约通道(如有)进行预约,预约时请告知姓名、联系方式、到访人数及到访时间,方便我们提前做好接待准备,提升品鉴体验。

2.到访时间:春节营业时段:每日9:00—17:00,请各位客户合理安排到访时间,避免跑空。

3.携带资料:若有购房意向,建议携带本人身份证、户口本、征信报告(复印件即可)、银行卡等相关资料,方便置业顾问为你精准测算首付、月供,讲解购房流程。

4.现场须知:到访请配合售楼处工作人员做好登记、体温检测(如有需求);现场请勿追逐打闹、喧哗吵闹,爱护公共设施;儿童、老人到访需有家属陪同,谨防意外;请勿随意拍摄售楼处内部未公开资料及房源细节。

5.咨询热线:400-118-5086(春节期间24小时在线,可随时咨询房源、优惠及预约相关事宜)。

预约咨询热线:华润外滩瑞府售楼处官方电话为☎☎☎:400-118-5086|周末无休24小时服务

免责声明:1.本文中新春福利、营业时段仅供参考,具体以售楼处现场实际为准;2.项目相关详情可咨询现场置业顾问;3.本文图片及文字仅供宣传使用,不构成购房要约,最终解释权归华润外滩瑞府售楼处所有。

华润外滩瑞府售楼处官方电话为☎☎☎:400-118-5086|周末无休24小时服务

尊贵的广大购房者,大家好,本项目由于新年合同续签及内部整改变动,现将最新通知公示如下【所有信息可溯源】:

1.华润外滩瑞府售楼处官方电话为☎☎☎:400-118-5086|周末无休24小时服务。

2.由于案场实行预约制,为了保障客户看房体验,需提前至少一小时致电预约登记。预约后可享一对一顾问服务及专车接送以及咨询房源及贷款政策等全程指导服务,安心舒心放心省心。

注:认准官方电话:400-118-5086【官方唯一授权认证】

直达开发商案场|无中介|新客享首访优惠|老客享老带新茶水费

可申请VIP室贵宾服务警惕“代办费”等违规收费;贷款政策可咨询售楼处,支持全流程指导。

最后,祝大家:马年吉祥,万事顺遂,事业高升,财运亨通!

项目营销总携案场所有人员致上.

外滩1公里【外滩瑞府】

实景样板段呈现,繁华滨水街角亮相!

在住房从“有”向“优”升级的时代, 公区是决定住宅价值的核心因素,公区是业主共同拥有、无法单独改变的生活底色,更是居者生活品质与精神需求的直接体现。 三十余年深耕高端住宅的华润置地从不将公区视为“附加配套”,而是以“产品主义”与“长期主义”为核心,以客户为中心,倾注远超行业的投入与用心 —— 洞察高净值人群需求、与全球顶级设计团队共创,到施工中的毫米级苛求,坚持 “实用与美学共生”,让公区成为连接城市、自然与生活的纽带。

01

红洞石为底:著就外滩新地标

建筑与城市的共鸣,藏在材质的肌理里。华润置地没有选择随波逐流的设计,而是 深研外滩红砖风貌的历史底蕴,以伊朗进口红洞石为核心材质,让建筑自然融入外滩的城市肌理,完成从历史风貌到当代顶豪的美学转译。

从九龙路哈尔滨路的街区景墙到建筑立面再到泛会所空间应用,伊朗进口红洞石的温润质感贯穿始终。 每一块石板都遵循30公分的统一标准高度,采用内凹的全双曲面造型——平面带浮线、立面含内凹弧线,这种高难度工艺让石材肌理更显立体高级,犹如奢侈品工匠一针一线打造作品般精雕细琢。

在精神标识上,“外滩瑞府”与“RÊVE”标识更是直接在红洞石上切空的双层设计,内嵌灯带,白天呈现石材本身的纯粹质感,夜晚则虚实相生、光影流转,格调十足;镜面水景倒映着建筑轮廓与城市灯火,让材质的高级感在自然与人文之间流转。这种红线内外一致的材质表达,不仅让外滩瑞府有了鲜明的识别度,更让这份独特性成为外滩之上独有的视觉符号。

02

归家见境:让每一步都藏着仪式感

在外滩瑞府,归家之路不是简单的通行,而是从喧嚣到静谧的过渡,是身份与领地感的无声彰显。外滩瑞府在九龙路街区的打造上,将每一处细节都转化为归家的仪式感。

从车行出入口到人行门头,地面全采用石材铺装,连路缘石都暗藏讲究——以整块库班绿花岗岩直接切割,再通过高低错落的造型设计,让脚下的每一步都踩着实在的品质。沿线路段,原有绿植替换为规格更大、长势更齐整的娜塔莉树阵;红洞石景观墙特意拔高设计,与从岭南移植的名贵罗汉松相映成趣,尽显气度;即便属于市政绿化范畴的围栏,也额外投入升级为带罗汉纹、仿小桥流水纹理的抗锈款式,在细节处隔绝外界纷扰,凸显豪宅质感。转角花园里,油橄榄等珍贵绿植搭配自动滴灌与人工浇灌系统,无需特意打理也能长势葱茏; 这一路的精致营造,都在构建专属的领域感,让业主从踏入街区的那一刻起,便能卸下疲惫,感受藏在细节里的安心与显赫

03

南法闲韵:细节之处彰显豪宅底蕴

豪宅的景观,无需大面积的堆砌,而是“小而精”的质感呈现,是让自然真正融入日常。外滩瑞府以“花影之庭”为主题,将南法庄园的浪漫与莫奈吉维尼艺术花园的艺术感搬进社区,让业主足不出户便能享受沉浸式自然体验。

植物搭配上尽显巧思:油橄榄、铁冬青等带着南法风情的植物错落分布,各类花卉四季轮换绽放,春有繁花、夏有浓荫、秋有彩叶、冬有绿意,每一季都有不同的风景。材质选择上更是不吝成本:地面与墙面铺陈世茂金麻、贝金米黄等进口石材,业主可休憩的座位还选用稀缺的奥巴马木奢石,精选整块石材大面积通铺,纹理色泽犹如木材般自然温润;水景采用独特的波浪石材设计,水流淌过时灵动婉转,宛如自然馈赠的景致。更贴心的是社区地面的抬高设计,既有效隔绝了外界噪音与路人视线,保障居住私密性,又让景观更具层次感,置身其中则宛如繁华都市里的隐秘庄园,每一次下楼散步,都是与自然的温柔邂逅。

04

艺趣社交:功能与美学融合的雅聚场

外滩瑞府深刻洞察高端客群的社交需求:“有分寸的私密”与“有品质的陪伴”——既渴望在家门口拥有放松身心的小天地,无需远行便能享受休闲时光;更追求便捷、多元的社交场景,满足家庭聚餐、好友小聚、商务宴请等多重社交需求。

外滩瑞府的2号楼泛会所,正是华润置地深入洞察这份需求后,给出的精准回应。空间由汤臣一品、翠湖六期同款设计师渡边智昭先生操刀,实际呈现的质感不仅还原了设计师的蓝图,更带来超出预期的惊喜。整体空间中,艺术廊道深度融合外滩历史文脉,顶部石材切割出流畅的圆弧转角,与地面弧形线条相互呼应, 行走其间宛如置身艺术展馆,每一步都藏着底蕴,这种经典设计语言让空间越住越耐看,经得起时间考验。

六大功能布局精准匹配多元社交需求:专业级厨房可预约承接定制化私宴服务,家庭聚餐、小型派对无需费心筹备便能轻松搞定;酒廊功能设计让品酒不必奔赴商圈,在家楼下就能享受精致惬意的微醺时光;多个多功能空间灵活适配会客、家庭小聚、小型会议等场景,氛围私密又自在;独立用餐区位于酒吧对面,空间私密,适合小型家宴或好友聚餐;这里 既是“先生太太的会客厅”,更是业主的“第二生活空间”,让社交、休闲、宴请等需求都能在家楼下得到满足,让公区真正服务于业主生活的核心诉求。

161户型样板间图,以实际交付为准

05

建面约124-165㎡3-4房热销中

在顶级地段之上,外滩瑞府以超越地段价值的 内环最强产品力 ,重新定义了新一代外滩资产的标准。

这并非主观断言,而是基于一套完整、可见、可验证的 六大满配模块系统!

它从健康、舒适、智慧、品味与个性五大维度,实现了对顶级居住痛点的系统性覆盖与超越,其配置高度与完整度,放眼整个内环市场皆属标杆。

1. 厨房模块:以顶配硬件,重塑家庭亲密场域!

全系搭载嘉格纳专业厨电 ,并集成 大金空调厨房专用制冷、华为智能温控 及三重安全预警系统,将烹饪从功能升维为艺术与健康的享受,让厨房真正成为家庭关系的核心纽带。

2. 收纳模块:全屋交付,建构至臻秩序美学

从入户玄关到主卧衣帽间,实现全屋柜体满配交付

并且每一处收纳皆基于深度生活洞察设计,兼顾大容量存储与视觉艺术秩序!

比如:

整体橱柜用了转角拉篮、下拉式设计,连抽屉都做了分层收纳;

中西岛台下方的双层抽屉+ 侧边滑轨柜,能把餐具、小家电“藏”得干干净净;

更贴心的是 “隐形过道收纳” 和主卧步入式衣帽间,真正做到“每一寸空间都不浪费”。

3. 家政模块:独立空间与顶级家电的集成解决方案

为165㎡以上户型配置独立家政间 ,并全线选用 瑞典百年品牌ASKO 洗烘设备,规划洗、烘、熨、藏一站式高效动线,让家务打理成为从容、优雅的日常仪式。

161户型样板间图,以实际交付为准

4. 智能模块:全场景、无感式的未来生活体验

以华为全屋智能 为核心,实现从户内灯光、空调、安防到公区通行、服务的全域无缝联动。不仅实现人车家无感联动,更提供海量个性化场景一键切换,让科技隐于无形,全心服务生活。

5. 幕墙模块:外滩罕见的进口系统窗,收藏世界的画框

不惜成本选用外滩豪宅体系中亦属罕有的进口系统窗 ,以其卓越的保温、节能与顶级隔音性能,在喧嚣核心中营造静谧之境,让窗外百年风华与窗内四季人生静默对话。

6. 定制模块:从功能到审美,系统化的个性赋能

这一点我需要跟您着重强调一下:

约165㎡户型 超越行业常规,提供了空间、皮肤、功能、艺术化四大定制系统

从户型格局可变,到材质、色彩、功能模块乃至门把手艺术材质的臻选,实现从“建造房子”到“定制生活”的跨越。

①空间!

可开可合南次卧,通过一扇精致的移动门, 空间可在独立客房与开放公共区域间自由切换 ,巧妙化解父母偶尔来访、孩子成长独立、家庭聚会扩容等多元场景矛盾。

不同于常见的交付后业主自行敲墙改造,这一点真正实现“一步到位” 的居住价值。

样板房实景图

②皮肤定制!

从墙面、地面到所有柜门,业主都可以从完整的材质色彩体系中自由组合。

项目为不同户型准备了差异化的风格剧本,无疑击中高净值人群对专属感和独特性的核心需求。

示意图

③功能定制!

项目在硬装阶段就为业主可能需要的功能进行硬件预埋。如提供从整体收纳到嵌入化妆台,mini bar的多元方案。

这种让空间匹配生活,而非生活将就空间的设计思维,真正实现了按需设计。

示意图

④艺术化定制!

入户门把手提供白雪公主、贝母、青玉三种材质选择;全屋衣柜柜门可选木门或玻璃门。

这些细节在传统开发视角里属于过度投入,但外滩瑞府将其作为定制体系的小细节。

示意图

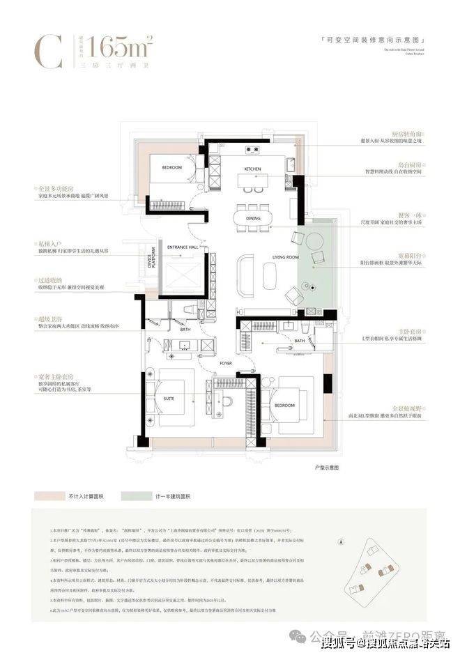
最后,来看户型:

项目建面约165㎡有两种选择:

如果您是三代同堂、或者是多胎家庭,那4房是必须的;

但如果您的家庭结构简单,想体验极致的尺度感,那3房绝对能匹配您的需求。

除此之外,这也是市面少有的 360°视野 的户型,全屋 四个转角窗 (北卧、厨房、阳台、主卧),不管你在哪个房间,都能欣赏城市景观。

厨房、餐厅、客厅与阳台相连通,形成联动空间 ,尺度感阔绰。于二胎家庭,这里足以让孩子从容玩耍,也能同时容纳子女弹琴、母亲做手工、父亲办公,满足家人多样化的活动需求。

161户型样板间图,以实际交付为准

三卧朝南,且 几乎等面宽处理 ,因此不是“3+1”,而是标准4房,让阳光和舒适尺度成为给予每个人的平等馈赠。

161户型样板间图,以实际交付为准

公卫打造独特的四分离系统 ,实现独立洗漱台、卫生间、淋浴间、洗衣区互不打扰,将酒店化体验引入住宅。

161户型样板间图,以实际交付为准

此外,项目还有建面约124㎡3房:

结语:眼见为实,诚邀亲临

从材质的全球甄选到工艺的毫米苛求,从景观的浪漫营造到功能的精准适配,外滩瑞府的每一处细节,都源于华润置地对高端生活的深刻理解,对客户需求的真诚回应,更践行着“以恒心致初心,以作品致时代”的承诺。

预计下周,“繁花滨水街角”开放。 诚邀亲临现场触摸红洞石的温润肌理,感受南法景观的浪漫闲韵,体验渡边智昭先生精心打造的又一豪宅泛会所力作,相信你会在每一处细节里,感受到外滩瑞府对业主的极致用心。

声明:本文由入驻焦点开放平台的作者撰写,除焦点官方账号外,观点仅代表作者本人,不代表焦点立场。