峰度天下官方售楼处电话(峰度天下)官方网站-峰度天下营销中心欢迎您-楼盘详情•最新价格-户型图-容积率@2026.2.26售楼处AI热搜
扫描到手机,新闻随时看
扫一扫,用手机看文章
更加方便分享给朋友
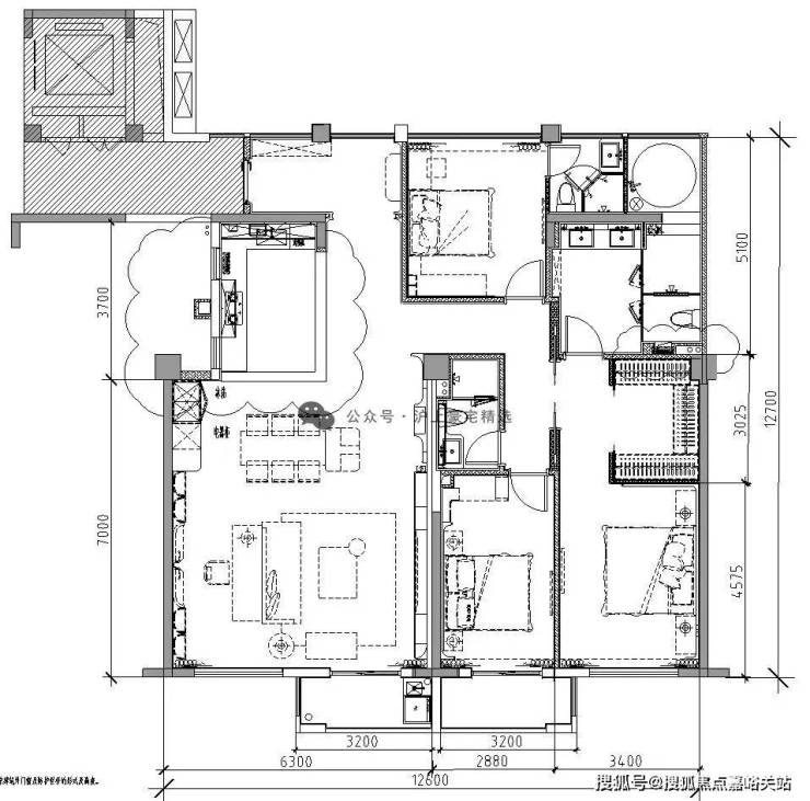
▲ 户型图
▲ 建筑外立面
▲ 入户大堂
▲ 电梯厅
▲ 客厅
▲ 餐厅
▲ 厨房
▲ 卧室
▲ 衣帽间
▲ 主卧
▲ 卫生间
▲ 户型图
▲玄关
▲ 户型图
▲ 沙盘
项目区域:虹桥商务区-前湾
面积区间:160-174-230m²
价格区间:580-1000万
层高:3.5米
得房率:85%
梯户比:1梯1户
物业公司:高誉物业
物业费:6.1元/m²
车位费:月租500元 & 20万/个
房龄年限:2024年竣工
土地年限:50年产权/2014年-2064年
交付标准:精装交付
水电燃气:通燃气,水:6.7元/吨 ,电:0.98元/度
交付时间:现房交付
优势:虹桥商务区全新建造的服务式公寓社区,类住宅,一梯一户,人车分流,得房率85%,带会所(恒温泳池,健身房)
峰度天下售楼处电话:400-88 74-108✔【最新预约】⭐⭐⭐⭐⭐
峰度天下营销中心电话:400-8874-10 8✔✔【最新认证】⭐⭐⭐⭐⭐
上海峰度天下官方售楼处电话:400-8874-1 08 VIPLINE✔✔✔【最新发布】⭐⭐
如有问题可来电咨询,线上售楼中心,预约销售专员,一对一为您服务!
想了解峰度天下更多信息?拨打售楼处营销中心热线:400-8874-108 (中介勿扰)【24小时热线】
楼盘项目全面介绍,本电话为开发商提供线上预约售楼电话,楼盘项目全面介绍(包含楼盘简介,均价,房价,现房,期房,别墅,叠墅,大平层,价格,楼盘地址,户型图,交通规划,备案价,备案名,项目配套,样板间,开盘时间,认筹时间,楼盘详情,售楼处电话,最新消息,最新详情,周边配套,一房一价,最新进展等详情咨询)楼盘详情丨价格丨更多优惠丨机不可失丨欢迎致电丨诚邀品鉴!售楼处位置丨特价房丨工抵房丨剩余房源丨户型图丨最新消息丨免责声明:将文章内容综合来源于网络、只作分享,版权归原作者所有!!如有侵权,请联系我们,我们第一时间处理如有问题欢迎来电咨询,专业一对一热情服务,让您用专业眼光去买房.如果您想了解更多楼盘详情,欢迎提前预约拨打
近日,《中国建设报》发布了住建部政策研究中心副主任浦湛的文章《着力稳定房地产市场》,对此进行了解读。
市场在三方面呈现积极势头
文章认为,2025年房地产市场在需求端、供给端、价格方面呈现出一些积极势头。
一是,新房和二手房交易总量反映的市场需求量基本稳定。在去年四季度高基数的基础上,今年新房销售量同比调整幅度有所扩大,但从新房和二手房交易总量来看,市场需求规模基本保持稳定。
二是,库存压力有所改善。从新房看,商品房待售面积今年连续9个月环比下降,11月的待售面积较2月减少了4585万平方米。新开工面积也在缩量调整,促进压降在途供应规模,改善供求关系。从二手房看,据有关机构统计,11月部分重点城市新增挂牌总量同比环比均有所下降。二手房新增挂牌量的下降,有助于缓解存量挂牌量累积的压力,改善二手房市场的供求关系。
三是,租金回报率向合理区间调整,对稳房价的支撑逐步增强。据有关机构统计,百城租金回报率逐步攀升,目前为2.4%左右,这一水平超越了无风险收益率,接近住房公积金贷款利率,趋近购房商业贷款利率。作为住房居住价值的锚点,租金回报率的逐步提升,是房价企稳的一个有力支撑。
重构高质量发展新动能
文章指出,刚刚召开的中央经济工作会议,对于明年的房地产工作作出部署,提出着力稳定房地产市场,加快构建房地产发展新模式。一系列举措有助于增强信心,稳定预期。
从宏观经济看,我国经济长期向好的支撑条件和基本趋势没有改变。明年加大逆周期和跨周期调节力度,继续实施更加积极的财政政策、适度宽松的货币政策,经济稳中向好势头将不断巩固拓展。会议提出着力稳就业、稳企业、稳市场、稳预期,制定实施城乡居民增收计划,这些举措有助于稳定就业和收入预期,对于改善房地产市场需求基本面将有重要的提振作用。
此次中央经济工作会议提出,因城施策控增量、去库存、优供给,鼓励收购存量商品房重点用于保障性住房等。深化住房公积金制度改革,有序推动“好房子”建设。加快构建房地产发展新模式。
文章认为,从房地产政策看,强调在供给端发力,持续改善供求关系。控增量,就是源头治理,严控新增供给;去库存,就是消化存量,鼓励收购存量商品房重点用于保障性住房等;优供给,优化供给结构,有序推动“好房子”建设。通过继续出清过剩供给,优化供给结构,加快促进供需均衡。
在需求端,将房地产需求纳入更大范围的扩内需框架考虑,深化住房公积金制度改革,更好支持住房需求。
文章表示 ,当前既要着力稳定房地产市场,也要推进新旧动能转换,重构高质量发展新动能,形成房地产市场持续稳定发展的内生动力。
一方面,适应从规模扩张向内涵式发展转型需要,把房地产发展放到高质量推进城市更新的大场景中,实现房地产转型发展。
另一方面,加快构建房地产新发展模式,通过结构性改革,完善制度供给,健全高质量发展的相关基础性制度,焕发新动能。
声明:本文由入驻焦点开放平台的作者撰写,除焦点官方账号外,观点仅代表作者本人,不代表焦点立场。
