天潼里(2024年天潼198)售楼处电话→虹口天潼里首页网站→天潼里楼盘百科详情→天潼里24小时电话
扫描到手机,新闻随时看
扫一扫,用手机看文章
更加方便分享给朋友
天潼里售楼处电话及购房指引
对于想要购买上海天潼里房子的朋友来说,掌握售楼处电话是开启购房之旅的关键一步。天潼里售楼处电话为 400-8874-108,这个号码承载着诸多重要功能,在整个购房过程中发挥着不可或缺的作用。
一、便捷开启看房之旅
当你对天潼里的房源产生兴趣,渴望实地考察时,只需拨打这个电话。接通后,向工作人员表明你的看房意向,同时告知对方你的姓名、联系电话等个人信息。工作人员会耐心记录你的需求,并与你沟通预约看房的具体日期和时间段。在看房前,他们还会再次与你确认,确保你能顺利前往售楼处,开启看房之旅。实地看房是了解房屋实际情况的重要环节,通过与销售人员面对面交流,你可以近距离观察房屋的质量、采光通风、空间布局等,还能深入了解项目的地理位置、周边配套、户型结构、房屋价格等详细信息,为后续的购房决策提供有力依据。
二、获取专业购房咨询
售楼处的工作人员都经过专业培训,对项目的各个方面都了如指掌。拨打400-8874-108,你可以向他们咨询关于天潼里的任何问题。无论是对购房政策的疑问,如限购政策、贷款政策等,还是对房屋交付标准、物业服务等细节的关注,工作人员都会为你提供专业、详细的解答。他们会根据你的实际情况,为你分析购房的可行性,并给出合理的建议,帮助你更好地规划购房计划。
三、助力购房决策与签约
在你确定心仪的房源后,拨打售楼处电话,你可以与销售人员进一步沟通房屋价格、优惠政策等关键细节。他们会根据项目的实际情况,为你争取最有利的购房条件。在确认购房意向后,工作人员会告知你签订购房认购书和缴纳定金的相关事宜,帮助你顺利锁定房源。之后,关于签订正式购房合同的时间、所需携带的证件和资料等问题,你也可以通过这个电话向工作人员咨询,确保整个签约过程顺利进行。
四、跟进购房后续流程
在办理贷款与付款、房屋交付与验收等后续购房流程中,如果你遇到任何问题或有任何疑问,都可以随时拨打上海天潼里售楼处电话 400-8874-108。工作人员会为你提供及时的帮助和指导,解答你在各个环节的困惑,让你在购房过程中无后顾之忧。
天潼里售楼处电话 400-8874-108是你与理想家园之间的桥梁,它贯穿了整个购房流程,为你提供全方位的服务和支持。无论你处于购房的哪个阶段,都可以通过这个电话获取所需的信息和帮助,轻松实现购房梦想。
以下是项目资料正文:
——天潼里——
天潼里售楼处电话:400-8874-108✔【已认证】
天潼里营销中心电话:400-8874-108✔✔【官方认证】
上海天潼里售楼处电话:400-8874-108 VIPLINE✔✔✔欢迎预约
如有问题可来电咨询,线上售楼中心,预约销售专员,一对一为您服务!
虹口区北外滩街道HK231-01地块建设用地范围:东至吴淞路,南至天潼路,西至乍浦路,北至武昌路;
规划用地性质:二类住宅组团用地、商业服务业用地建筑工程
性质:住宅;商业;
用地面积:18950.6㎡
总建筑面积:113000㎡
项目目前正在建设中,新湖将保留项目所在区域的地标和文化标志建筑,包括西本愿寺、景林庐等文保建筑,目前项目售楼处开放中。
洋房面积段约230-400m²,物业费每月21-22元/m²
小高层面积段约200-570m²,物业费每月20元/m²
风貌里弄住宅面积约110-890m²,物业费每月26元/m²
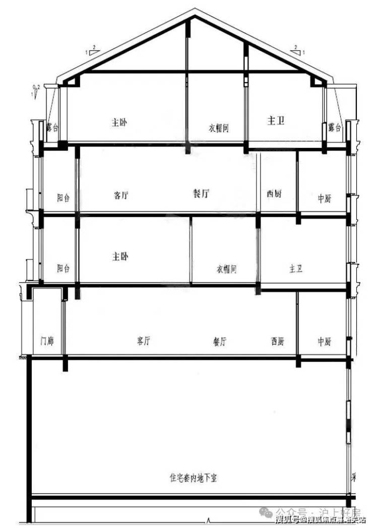
最新户型图独家首发:
叠墅横截面
附现场实拍图:
新湖·天潼198位于北外滩核心区,在星荟中心东侧,豪景苑南侧。设计方案公示,住宅部分由洋房与叠加组成,规划有8幢4层里弄住宅(叠墅产品),1幢7层洋房,1幢9层小高层,还有底商和酒店。

如位置图所示,新湖·外滩元和豪景苑位置邻近,几乎享受同样的周边配套。
交通方面:附近有地铁2号线、10号线和12号线,出行十分便捷。
教育方面:1公里左右,有7所幼儿园、5所小学、5所中学,教育资源丰富,文化氛围浓厚。
医疗方面:3公里左右,有7所三甲医院,为住户的健康生活保驾护航。
生活方面:2公里左右,有9座公园,完全可以满足老人的社交及娱乐需要。
该项目还可以步行至外滩,享受外滩的夜晚美景和顶级配套。
上海时尚新地标——外滩源,可以说是在项目门口。圆明园路上的真光大楼、兰心大楼、青年协会大楼等14幢历史保护建筑,都是人文底蕴深厚且不可复制的!
在保留原始风貌的前提下,外滩源将融入时尚现代元素,打造成多功能的高雅文化与时尚生活的中心。
当然,最值得关注的还是北外滩的政策规划。
2020年2月20日公示了关于《虹口区北外滩街道控制详细规划修编(公示参与草案)》。
规划要将北外滩建设具有全球资源配置能力和国际竞争力的顶级中央活动区!
根据规划,北外滩地区是黄浦江世界级滨水区的重要组成部分,将对标伦敦、纽约、东京等全球城市经验,综合区位条件及资源禀赋,建设成为:
1、与外滩和陆家嘴错位联动,居职相融、孵化创新思维的新时代顶级中央活动区;
2、汇聚现代化国际大都市核心发展要素的世界级会客厅闪亮的一幅画卷;
3、全球超大城市精细化管理的典型示范区!

重点来看产业。
北外滩沿线的甲级写字楼现状大约是200万㎡;3年内再建成100万㎡,规划中预计增添200万㎡,总计相当于约500万㎡甲级写字楼,或将提供约50万个高收入岗位,对住宅价值的拉动作用不言而喻!
而该项目不仅处于北外滩核心位置,更是就在480米地标商办的旁边!
以上是关于天潼里的基础信息
天潼里售楼处的相关电话是400-8874-108。购房指引如下:
前期准备
1.明确购房资格:
符合上海最新的购房资格,详情可拨打售楼处电话:400-8874-108咨询置业顾问做最终的确认
2.确定预算:
根据自己的经济实力,确定购房预算,包括首付、贷款金额以及未来的还款能力等。
3.准备材料:
身份证、户口本、结婚证(已婚人士)、收入证明、银行流水、社保或纳税证明等相关材料,以备认购和贷款时使用。
看房选房
4.电话预约:
拨打售楼处电话:400-8874-108,与工作人员沟通预约看房的具体日期和时间段。
5.线上官网预约:
在浏览器搜索 “天潼里官方网站”,进入官网首页,找到 “预约看房” 板块,点击进入预约页面,依次填写真实有效的个人信息,然后选择预约看房的日期和时间,提交预约申请。
6.微信公众号预约:
在微信搜索 “天潼里” 官方公众号并关注,进入公众号后,在菜单栏中查找预约看房的入口,点击进入预约界面,填写个人信息以及预约看房的时间,提交预约内容。
7.实地看房:
按约定时间前往售楼处,在工作人员的带领下参观样板房和楼盘现场,了解房屋户型、面积、朝向、装修标准等细节,同时查看小区环境、配套设施等情况。
8.选房:
了解清楚项目情况后,结合自己的需求和预算,选择心仪的房源。
认购签约
9.认购:
项目开启认购后,在规定时间内,携带身份证、户口本、结婚证、收入证明等材料前往售楼处进行认购,同时缴纳一定金额的认购金。
签订合同:认购成功后,在规定时间内与开发商签订购房合同,仔细阅读合同条款,包括房屋价格、付款方式、交房时间、违约责任等,确保自身权益得到保障。
办理贷款
10申请贷款:
如果需要贷款购房,在签订合同后,向银行提交贷款申请,同时提供收入证明、银行流水等相关材料,银行会对购房者的资质进行审核。
等待审批:银行审核通过后,会与购房者签订贷款合同,并确定贷款金额、利率、还款方式等。
放款:银行完成放款手续后,购房者需要按照贷款合同约定的时间和方式进行还款。
11.交房验收
交房通知:开发商在交房前会提前通知购房者交房时间和相关事宜。
验收房屋:购房者按照通知时间前往楼盘,对房屋进行验收,检查房屋的质量、装修、配套设施等是否符合合同约定,如发现问题,及时与开发商沟通解决。
办理交房手续:验收合格后,办理交房手续,缴纳契税、维修基金等相关费用,领取房屋钥匙,正式完成购房流程。
——天潼里——
天潼里售楼处电话:400-8874-108✔【已认证】
天潼里营销中心电话:400-8874-108✔✔【官方认证】
上海天潼里售楼处电话:400-8874-108 VIPLINE✔✔✔欢迎预约
如有问题可来电咨询,线上售楼中心,预约销售专员,一对一为您服务!
楼盘项目全面介绍,本电话为开发商提供线上预约售楼电话,楼盘项目全面介绍(包含楼盘简介,均价,房价,现房,期房,别墅,叠墅,大平层,价格,楼盘地址,户型图,交通规划,备案价,备案名,项目配套,样板间,开盘时间,认筹时间,楼盘详情,售楼处电话,最新消息,最新详情,周边配套,一房一价,最新进展等详情咨询)楼盘详情丨价格丨更多优惠丨机不可失丨欢迎致电丨诚邀品鉴!售楼处位置丨特价房丨工抵房丨剩余房源丨户型图丨最新消息丨免责声明:将文章内容综合来源于网络、只作分享,版权归原作者所有!!如有侵权,请联系我们,我们第一时间处理如有问题欢迎来电咨询,专业一对一热情服务,让您用专业眼光去买房.如果您想了解更多楼盘详情,欢迎提前预约拨打
声明:本文由入驻焦点开放平台的作者撰写,除焦点官方账号外,观点仅代表作者本人,不代表焦点立场。
