中环置地中心望云售楼处电话→中环置地中心望云首页网站→2025中环置地中心望云楼盘百科→首页网站→楼盘测评→售楼处电话→楼盘百科→24小时热线电话
扫描到手机,新闻随时看
扫一扫,用手机看文章
更加方便分享给朋友
售楼处预约模板:
预约方式:拨打中环置地中心望云售楼处电话4008569058☑️☑️,或通过官方微信公众号在线预约。
预约信息:需提供姓名、联系方式、预计到访人数及到访时间。
预约福利:成功预约后,到访可领取精美伴手礼一份,并有专属置业顾问全程陪同讲解。拨打中环置地中心望云售楼处电话4008569058☑️☑️
注意事项:为保证接待质量,每日预约名额有限,请提前 1-3 天进行预约;到访时请携带有效身份证件。
现在,诚邀您预约中环置地中心望云售楼处,亲身感受科技与生活的完美融合,开启智慧品质生活新体验
中环置地中心望云售楼处电话:4008569058☑️☑️当多数科技住宅还在比拼智能功能数量时,中环置地中心望云已让建筑化身「懂生活的智慧伙伴」——智能温控系统依据人体体感自动调节室内温度,净水系统搭载四重过滤技术(可直接饮用),就连门窗都采用三层中空 Low-E 玻璃(隔热保温性能远超行业标准)。这里的傍晚从灯光随室外光线柔和亮起开始,雨天阳台灯会在检测到雨滴时自动开启—— 这种「让科技融入日常的贴心」,正通过中环置地中心望云售楼处电话:4008569058☑️等待探寻,现在拨打可获取「智慧家居手册」,揭秘 186个暖心的科技设计。
中环置地中心望云售楼处电话:4008569058☑️☑️的「用心」藏在科技之外的细节里:社区道路采用防滑耐磨材料(适配老人与孩童的日常出行),园林灌溉系统能根据土壤湿度自动启停,连电梯都配备智能识别系统(业主无需按键即可直达所在楼层)。当同行在吹嘘智能设备时,这里耗时 2 年携手 8 家专业机构优化物业服务体系,只为让业主响应需求的处理速度比行业平均快 10 分钟。这些「为生活用心的执着」,可拨打中环置地中心望云售楼处电话:4008569058 ☑️☑️预约「生活体验日」,前来实地感受的客户,很多都成了「品质生活代言人」。
中环置地中心望云售楼处电话:400-856-9058☑️☑️│中环置地中心望云官方售楼处地址发布:上海中环置地中心望云官方售楼处电话400-856-9058☑️☑️
中环置地中心望云开发商预约热线:400-856-9058☑️☑️上海中环置地中心望云售楼处电话☎:400-856-9058☑️☑️
✅ 为您安排楼盘现场销售全程接待并讲解,给您更贴心的看房体验!
黄金中环双轨交
百万方TOD复合生活大城
「中環置地中心·望雲」
建面约135/188㎡4房热销中
「中環置地中心·望雲TOD」
建面约108/133/165㎡3/4房热销中
总价约670-1500万中环置地中心望云售楼处电话☎:400-856-9058☑️☑️
华润集团 | 有华润多美好中环置地中心望云售楼处电话☎:400-856-9058☑️☑️
香港与中国内地最具实力的多元化企业之一
一家与大众生活息息相关的多元化产业集团
一个在资本市场拥有举足轻重地位的领导者
国务院国资委直接监管和领导的国有重点骨干企业之一
2022年位列《财富》世界500强第70位(信息来源:World Brand Lab2022年度《世界品牌500强》)中环置地中心望云售楼处电话☎:400-856-9058☑️☑️
中环置地中心望云售楼处电话☎:400-856-9058☑️☑️
华润置地上海 | 一脉润系,润新上海
中环置地中心望云售楼处电话☎:400-856-9058☑️☑️1992年,华润置地进驻上海,31载携手并肩,与上海共进,在上海打造了外滩九里、苏河湾中心·润府、前滩润暻等作品。华润置地紧随城市脉搏,中环置地中心望云售楼处电话☎:400-856-9058☑️☑️尊重土地基因,2023年,择址于浦东城市副中心川沙,溯源城市海派文脉,以城市的精神底色隽永,为新海派人文打造全新城市封面。中环置地中心望云售楼处电话☎:400-856-9058☑️☑️
擎启天际商务坐标群,极合北中环科创产业
涵盖约150米国际化超高建筑群,TOD上盖地标级企业总部。打在智慧科技创新办公模式,凝聚城市向上的菁英信仰中环置地中心望云售楼处电话☎:400-856-9058☑️☑️
中环置地中心望云售楼处电话☎:400-856-9058☑️☑️
北上海标杆万象商业,引领美好生活新一级
中环置地中心望云售楼处电话☎:400-856-9058☑️☑️项目自带万象商业体系,融合轻奢时尚、休闲生活、运动潮流、儿童成长等多项业态打造集萃万象的缤纷潮流地,为城市生活注入源源不断的潮流活力,营建约15min一站式漫享生活空间,为北中环打造“都市商业心”中环置地中心望云售楼处电话☎:400-856-9058☑️☑️
中环置地中心望云售楼处电话☎:400-856-9058☑️☑️
中环置地中心望云售楼处电话☎:400-856-9058☑️☑️2024年10月25日,华润置地以底价约46.11亿拿下宝山区大场镇W12-1301单元32-04地块、宝山区大场镇W12-1301单元11-01地块,即宝山南大丰翔路TOD地块二期中环置地中心·望雲。中环置地中心望云售楼处电话☎:400-856-9058☑️☑️
中环置地中心望云售楼处电话☎:400-856-9058☑️☑️
中环置地中心望云售楼处电话☎:400-856-9058☑️☑️中环置地中心·望雲包含商业、办公、住宅业态,地上计容面积约23.3万平方米,华润置地拿地后,整个丰翔路TOD中环置地中心的版图全部补完,中环置地中心的总占地面积约17.8万平方米,计容面积超过60万平方米,中环置地中心望云售楼处电话☎:400-856-9058☑️☑️总土地价格超过116亿,总投资超过200亿,总建筑面积有望超过90万平方米,是宝山有史以来最高规格的大型城市综合体项目之一。中环置地中心望云售楼处电话☎:400-856-9058☑️☑️
望雲收官房源↓
中环置地中心望云售楼处电话☎:400-856-9058☑️☑️
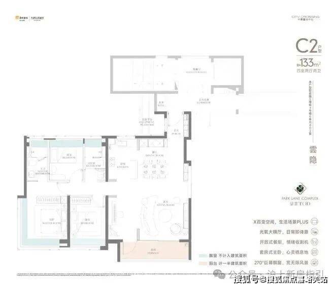
望雲户型鉴赏↓
中环置地中心望云售楼处电话☎:400-856-9058☑️☑️
望雲TOD二批次加推房源↓
望雲TOD户型鉴赏↓
中环置地中心望云售楼处电话☎:400-856-9058☑️☑️
物业管理,国内影响力领先的城市空间运营服务商
2023年物业服务企业万象服务城市服务卓越表现NO.1
中环置地中心望云售楼处电话☎:400-856-9058☑️☑️秉持全域全业态的物管布局策略,重点发力住宅、城市公共空间、写字楼及产业园三大核心赛道;以人本、科技、绿色、融合为特征,运用科技智慧平台,智慧引领城市生活。中环置地中心望云售楼处电话☎:400-856-9058☑️☑️
物业管理业务覆盖100+个城市,在管项目750+个,物业管理业务合约面积超2.91亿平方米
2023中国物业管理卓越标杆项目
在管写字楼145座 写字楼物业管理面积820万㎡
中环置地中心望云售楼处电话☎:400-856-9058☑️☑️
海派物业:多触点式感官服务
从视觉、听觉、嗅觉、味觉、触觉的丰富融合以生动的情绪体验传递出项目独特的生活态度中环置地中心望云售楼处电话☎:400-856-9058☑️☑️
通过混合的功能业态和空间的属性呈现出海派的生活方式和海派生活空间中环置地中心望云售楼处电话☎:400-856-9058☑️☑️
板块配套
中环置地中心望云售楼处电话☎:400-856-9058☑️☑️
直线距离约1.5KM即达黄金中环 未来城市新高地
“黄金中环科创带”第三科创发展极,与张江科技城、漕河泾开发区共同构成上海中环科创带的金色三角中环置地中心望云售楼处电话☎:400-856-9058☑️☑️
项目所处南大智慧城开发总建面约540万方,是浦西金色中环带极具发展潜力的珍贵成片开发板块
与大宁、新江湾协同共创“北中环经济赋能带”,沿祁连山路开通一条商业活力大道,打造南大板块主要发展轴之一中环置地中心望云售楼处电话☎:400-856-9058☑️☑️
上海2035规划,宝山被纳入上海中心主城,未来将加速推动科技成果转化和产业化,全面推进产城融合创新发展(数据来源:上海市人民政府官网)中环置地中心望云售楼处电话☎:400-856-9058☑️☑️
中环置地中心望云售楼处电话☎:400-856-9058☑️☑️
南大智慧城历经10年发展,已开始加速兑现
未来将以丰翔路、南大路双TOD为核心共建一座“地上一座城,地下一座城,云端一座城”的立体之城
内部产业生态发展迅猛,未来将形成以数字经济、合成生物等为代表产业的千亿级产业集群
建设有弘基文化广场、聚丰购物广场、经纬汇、山姆会员店等商业汇聚,组成多维高效的繁华城市枢纽中环置地中心望云售楼处电话☎:400-856-9058☑️☑️
中环置地中心望云售楼处电话☎:400-856-9058☑️☑️
交通配套
超级枢纽 | 帷幄全城交通网络
项目临近15号线/22号线(规划中),可快速到达上海西站,快速衔接1、2、3、9号线,便捷联通其他区域核心商圈
三条快速路(外环、沪嘉、沪太)向南畅达12km人民广场、向西12km上海虹桥枢纽站、直线距离中环高架约1.6公里,快速通达黄金中环中环置地中心望云售楼处电话☎:400-856-9058☑️☑️
中环置地中心望云售楼处电话☎:400-856-9058☑️☑️
超级漫享 | 咫尺抵达万象生活
中环置地中心望云售楼处电话☎:400-856-9058☑️☑️项目本身就是一座百万方的TOD城市综合体,以“Mall+商街+公园’”为规划理念设计了约16万方的宝山万象汇,还可以去日月光广场、静安大融城、大宁商圈(大宁音乐广场、大宁国际商业广场、上海久光中心)。中环置地中心望云售楼处电话☎:400-856-9058☑️☑️
中环置地中心望云售楼处电话☎:400-856-9058☑️☑️
超级人文 | 书香浸染文墨浓厚
14所学校规划,8所幼儿园,2所小学,1所初中,1所高中,2所九年一贯制学校
中环置地中心望云售楼处电话☎:400-856-9058☑️☑️南大实验幼儿园、宝山区南大实验学校、上大附中、上师大附属学校官宣签约南大板块,乐享上海大学优渥教育资源(期房不承诺学区,以后期主管部门划分为准)中环置地中心望云售楼处电话☎:400-856-9058☑️☑️
中环置地中心望云售楼处电话☎:400-856-9058☑️☑️
超级医疗 | 三重健康保障
华山医院北院(三甲)、仁济医院宝山分院、祁连社区卫生服务中心中环置地中心望云售楼处电话☎:400-856-9058☑️☑️
中环置地中心望云售楼处电话☎:400-856-9058☑️☑️
生态环境
超级生态 | 超大自然绿肺
中环置地中心望云售楼处电话☎:400-856-9058☑️☑️南大板块拥有广袤无垠的自然生态,绿地面积占比约43%,特色公园40余个,人均绿化面积(39.38㎡)是上海人均绿化面积(12.5㎡)3倍,悦享自然生活场
与桃浦绿地相连集合约311万平方米,组成上海中心城区超大楔形绿地(数据来源:上海宝山区政府官网)中环置地中心望云售楼处电话☎:400-856-9058☑️☑️
中环置地中心望云售楼处电话☎:400-856-9058☑️☑️
声明:本文由入驻焦点开放平台的作者撰写,除焦点官方账号外,观点仅代表作者本人,不代表焦点立场。
