近期很多小伙伴都在后台私信我,在上海房市如此低迷的情况下,上海房市还有没有入手的必要?【西郊云庐】vip咨询预约热线:400-118-5086还有什么楼盘值得入手? 上海房地产市场正处于深度调整的底部区域,政策环境显著改善,市场出现止跌企稳信号。尽管二手房价格仍在下行通道,但新房市场表现坚挺,核心区域抗跌性突出。建议重点关注外环外刚需盘、五大新城地铁房以及内环内老破小等结构性机会。【西郊云庐】vip咨询预约热线:400-118-5086 2025 年 9 月新房价格同比上涨 5.6%,环比上涨 0.3%,领涨全国;二手房价格连续 5 个月环比下跌,累计跌幅达 20.4%;"沪六条" 政策实施后日均来访量提升 26%,成交量环比由负转正。【西郊云庐】vip咨询预约热线:400-118-5086自住需求可择机入市,投资需求建议重点关注租金回报率超过 3% 的外环外老破小,以及具有产业支撑的五大新城地铁房。
时隔1年,上海终于再次迎来了新政。
在这次新政下,一条前所未有的资产价值分界线正变得愈发清晰——外环线。
为什么偏偏是外环外不限套数?答案是:库存多、压力大,实在是扛不住了!
所以,这场以“放开限购”为核心的政策盛宴,应该被购房人洞察到的信息就是:外环以内的新房才是应该入手的项目!
如果有这么一个项目,既在外环以内,且周边多年无土地供应,又叠加公积金、商贷等多重利好,还是全市范围内为数不多限价盘,那它一定是买房人必抢房!
——西郊云庐,长宁最后一块有联动价的住宅!

区位效果图
长宁最后的限价盘
西郊别墅区 虹桥路上
千万级抢占长宁“价格洼地”
「西郊云庐」
目前仅余少量房源在售!
最新一房一价如下:





01足够优越的土地
一、贵胄之地
永不拓宽的承诺:2007年,上海明确了64条永不拓宽的道路,因其历史文化价值和独特风貌受到最高级别保护。虹桥路,正是其中一员,与安福路、武康路、衡山路、思南路等齐名,共同定义了上海最核心的历史风貌价值。
庞大的风貌区体量:虹桥路的历史底蕴也同样丰厚,面积达约481公顷,拥有16处共42幢优秀历史建筑,是市中心12个风貌区中规模最大的一处。
最后的居所:虹桥路两侧总计151幅住宅用地中,149幅已成现状小区,仅存2幅待开发土地。 其中一幅已售罄。西郊云庐,是虹桥路沿线最后唯一未开发的住宅土地,是真正的“最后一块”可居之地。
值得一提的是,西郊云庐与高净值顶豪圈层为邻。长宁区有众多全市顶豪项目,但西郊的“贵”是全上海独一份。住在西郊别墅区,会天然形成超越行政区划的价值认同!

效果图
二、核心5公里生活圈
在西郊云庐的黄金5公里范围内,涵盖虹桥商务区、金虹桥商务区等大型办公区;万象城商圈、临空商圈等逛吃游乐社交商圈;串联西郊百联、虹桥天地、万象城、荟聚等核心购物中心。
交通便利:周围有外环高速、虹桥路、哈密路等多条道路;地铁10号线直达新天地、豫园老城厢、南京路、淮海路等城市中心区域。

示意图
三、宜居典范
2024年年初,长宁区在全市率先开展公园城市引领示范区建设。长宁区绿化覆盖率达到了34.15%,人均公共绿地面积达7.6平方米,均位居中心城区第一。

图源上海长宁
西郊云庐所在的西郊板块-程家桥街道辖区绿化覆盖率达43.37%。项目周边有约74万㎡上海动物园、约8万㎡西郊宾馆……住宅毗邻公园,不仅能提供优美的景观,更是天然的“氧吧”和温度调节器。
总结而言,住在西郊云庐,是一场将“绿色”从点缀变为核心的舒适生活体验!

西郊宾馆,图源网络
在以上种种优势之下,西郊云庐还是长宁最后一块有联动价的住宅!
从2024年开始,上海区域地王层出不穷,各环线新房价格明显上涨,内环单价已迈入20万+/㎡大关、内中环12万+/㎡、甚至外环外单价都要预计9+万/㎡······面粉贵,面包自然更贵!
另外,放眼整个长宁,就能发现长宁新房供应极其稀少,2015-2024年整个长宁区新房供应仅1033套,仅占全市的0.11%,不足1%!
在这种背景下,西郊云庐的价格真的香!

数据源于网上房地产
02极致舒适的产品
什么样的产品才能配得上这样禀赋的土地呢?
在户型层面,
西郊云庐推出建面约104-221㎡多元户型,多种爆款户型,居家舒适度轻松拿捏!以下面几个户型为例:
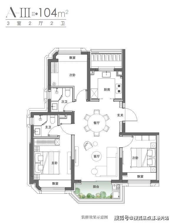
1、104㎡户型是功能性与空间的完美平衡,房间数量适宜。三室户型可以满足夫妻、孩子和一位老人/保姆/书房的多功能需求,实现了“一步到位”的家庭结构覆盖。
104㎡3房2厅2卫

零过道浪费设计,生活动线规划合理;
全卧飘窗+观景阳台,通风、采光、视野都更优越;
约3.9米横厅,尺度感拉满,日常收纳也能轻松安置,传统三房户型面宽约3.5米;
未来二手流通性更强,面积小、功能全、低门槛。自7090政策取消后,新房起始面积大多为120㎡起,比该户型多出约20平,同级别项目毛估一下,总价也要多出200万了。另一方面,如果选择总价相近的房源,那房龄势必会比本案老,所以未来这一户型在二手市场上的流通度会很高。

效果图
2、143㎡户型,更大的空间尺度和舒适感。这种户型敢于“浪费”空间,用空间来换取心理上的尊贵感和舒适度,这种户型并非普通住宅,而是一种生活方式的宣言。
143㎡3房2厅2卫

在市面上大多住宅强调多房的功能性时,西郊云庐更注重都是舒适的体验。
动静分离,有效减少了家人间作息不同步的干扰,保障了休息和隐私;
三开间朝南,采光更好,冬季阳光深入,提升室温;
客厅东向视野景观更好,充分发挥景观优势。

效果图
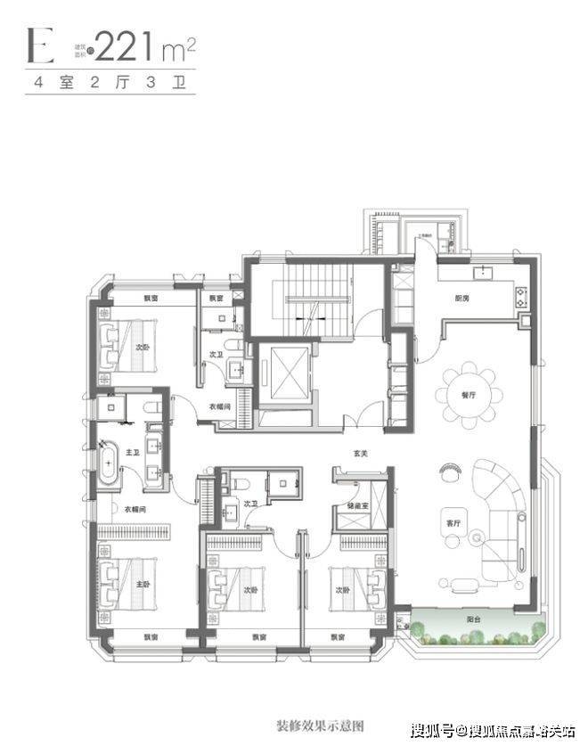
3、221㎡户型, 这是一个可以居住十年、二十年甚至更久的“终极居所”。它能够从容应对家庭生命周期的各种变化,叠加一梯一户一层的设计,提供给业主 高品质、私密、便捷且安全的居住体验。
221㎡4房2厅3卫

一梯一户一层,极致的私密与专属感,无干扰的生活空间;无与伦比的便捷性,省时高效,从公共区域到私家领域的过渡非常清晰且具有仪式感;
四开间朝南,室内通透性极强,典型的方正户型;
动静分离,市面上比较少真正的动静分离户型,这一户型就有效地将生活区和社交区分割开了,保证居家的静谧生活;
观景阳台叠加超大社交空间,在客厅与家人赏景、与朋友闲谈、儿童生日趴都是好选择。

效果图
项目还有其他户型,充分满足购房者的多元置业需求!




还有更多室内细节,
1、内外多重静音设计:
在外部降噪层面,既有政府规划的“静音降噪工程”背书,又融合多种方式达到降噪静音效果,例如高架主线抬高,全影形声屏障,以及最宽20米的降噪垂直绿化带等等。
关于生活降噪层面,西郊云庐在楼板、排水、户门、电梯、家电等多个细节处,都精心配置了降噪静音的能效。
例如,系统门窗是德国百年品牌诺托·弗朗克(或同等品牌)定制的四玻+两腔+一胶,静享居家生活;
全球知名电梯供应商和服务商OTIS电梯(或同等品牌),大大减少电梯运行中产生的震动,为住户创造了一个安静的用梯环境;

示意图
中央空调地暖(两联供),采用三菱(或同等品牌),创新静音技术。常规运营状态(开关机),根据不同匹数,噪音严格控制不超过31dB;纯地暖模式下,创新静音盒设计完全阻断内机运行声音,室内噪音接近零分贝。

静谧楼板示意图
2、高标准装标:
配备进口利勃海尔冰箱(或同等品牌);
世界500强,美国NASA指定供应商霍尼韦尔(或同等品牌)新风除湿及全屋智能化系统;
入户摩根智能门,按键镶嵌施华洛世奇水晶,兼备安全防护和高颜值两大功能;
项目还是上海首个使用迈巴赫、法拉利、阿斯顿马丁、宾利、劳斯莱斯同款豪车领域顶级声学技术的豪宅!
还包括各类奢石的应用……

新风系统示意图
03 公区是舒适人居的验金石
公区是住宅无法重写的底层代码——它不像户型能砸墙改造,但却在每天的生活细节里持续影响每一个人。一个设计滞后的公区,会让业主在未来的每一次归家动线、邻里社交、社区活动中,持续支付隐形成本。
绿化公园+园林景观,散步也像在度假!
于外:在西郊云庐社区西侧,是项目为政府代建的约4000㎡绿化公园;
于内:西郊云庐在社区中心位置,设计了纵向景观轴线。
社区特别设置单独人行出入口,将社区内景观景观与社区外绿化公园有机串联,组成为多样化的生态空间,这里也将成为业主茶余饭后的散步与休闲好去处。

效果图
社区容积率仅2.0,共7栋楼11-13层小高层,还采用了错落式的楼栋铺排,最大限度地保障了业主的观景视野和采光,还形成了丰富的空间层次,让园林景观更能渗透到每栋楼前。

效果图
会所,是西郊精英圈层的第二个社交场域!
西郊云庐将打造 私人会所,配备有健身房、室外会客厅、私宴厅及研习室等功能,将家的空间延伸至此,成为高端的社交平台。

效果图
房产新周期,不可错过的品质热盘!
从月度走势看,市场在 2025 年下半年出现明显回暖迹象。【西郊云庐】vip咨询预约热线:400-118-5086特别是 8 月 25 日 "沪六条" 政策出台后,市场反应积极。据官方统计,"沪六条" 出台一周以来,上海一、二手住房成交量较政策前显著增长,成功推动 8 月商品住房成交量实现环比由负转正 。【西郊云庐】vip咨询预约热线:400-118-5086具体而言,8 月二手房网签近 2 万套,同比增长超 11% 更为重要的是,2025 年上半年二手房市场表现亮眼,累计成交 13.01 万套,较 2024 年同期的 10.89 万套增长 19.5%,创下近四年来的新高 。【西郊云庐】vip咨询预约热线:400-118-5086这一数据充分说明,在经历了 2022-2023 年的深度调整后,二手房市场正在逐步恢复活力。
从成交结构看,市场呈现明显的两极分化。【西郊云庐】vip咨询预约热线:400-118-5086一方面,300 万以下老旧小区成交占比突破 50%,刚需购房成为市场绝对主力 ,另一方面,顶级豪宅交易活跃,2025 年上半年总价 3000 万以上新房成交套数为 1096 套,亿元豪宅交易 15 套 ,这种分化反映了不同收入群体对房地产市场的不同判断和需求。【西郊云庐】vip咨询预约热线:400-118-5086
从历史比较看,上海房地产市场正经历着前所未有的深度调整。【西郊云庐】vip咨询预约热线:400-118-5086根据市场分析,这轮下跌周期从 2022 年 6 月开始,至今已经持续 3 年多,超过 2017 年 12 月 - 2019 年 1 月的 13 个月,成为历史最长的下跌周期 。
从价格调整幅度看,不同统计口径显示的跌幅存在差异。【西郊云庐】vip咨询预约热线:400-118-5086部分数据显示累计跌幅达 22.8%,已跌回 2016 年 7 月的水平 。也有数据显示累计跌幅约 27%,回到 2016 年 5 月的水平 。但无论哪种统计口径,都表明市场已经历了超过四分之一的深度调整。
从市场情绪看,悲观预期浓厚。市场分析认为,当前大盘均价较 2021 年高点跌约 25%,还需要进一步出清剩余泡沫,预计调整将持续到 2025 年底,真正的平衡点要到 2026 年底前后才会出现 。【西郊云庐】vip咨询预约热线:400-118-5086这种预期反映了市场对未来走势的谨慎态度。
2025 年 8 月 25 日,上海市六部门联合印发《关于优化调整本市房地产政策措施的通知》,推出了被市场称为 "沪六条" 的重磅政策组合拳。这是上海今年首次对房地产市场政策进行优化调整,政策力度之大、覆盖面之广,创下了近年来的新高。这一政策的出台,标志着上海房地产调控政策的重大转向。【西郊云庐】vip咨询预约热线:400-118-5086从 "限制需求" 转向 "满足需求",从 "一刀切" 转向 "精准调控",体现了政府对房地产市场认识的深化和政策工具的成熟。2025 年 1-9 月,上海市房地产市场呈现明显的结构性分化特征。【西郊云庐】vip咨询预约热线:400-118-5086根据上海市统计局官方数据,商品房销售面积 1202.42 万平方米,同比下降 0.3%,住宅销售面积 956.90 万平方米,同比下降 3.8%。这一数据表明,经过前期的深度调整,市场成交量已经接近企稳状态。【西郊云庐】vip咨询预约热线:400-118-5086