林曦水岸售楼处电话:400-8874-108✔【已认证】 林曦水岸营销中心电话:400-8874-108✔✔【已认证】
上海林曦水岸官方售楼处电话:400-8874-108 VIPLINE✔✔✔【已认证】
——林曦水岸——
林曦水岸售楼处电话:400-8874-108✔【最新预约】
林曦水岸营销中心电话:400-8874-108✔✔【最新认证】
上海林曦水岸官方售楼处电话:400-8874-108 VIPLINE✔✔✔【最新发布】
如有问题可来电咨询,线上售楼中心,预约销售专员,一对一为您服务!
想了解林曦水岸更多信息?拨打售楼处营销中心热线:400-8874-108 (中介勿扰)【24小时热线】
川沙,作为上海城市副中心之一,肩负着重要的战略意义。
首先,川沙是花木副中心的延续,未来将代替花木成为浦东主城区和东南广阔腹地的枢纽,成为新的资源交换中心。
其次,川沙副中心毗邻浦东交通枢纽,也是空(浦东国际机场)+轨(上海东站)+铁(地铁2、11、21、机场联络线)三位一体的交通格局。类比大虹桥,可预见其未来发展的惊人能量。
最后,川沙还具备得天独厚的科创+旅游资源。依托川沙迪士尼的人群聚集效应,能促进川沙多方面的功能建设。再看科创,以2号线为轴,川沙一直是张江产业精英居住外溢的首选之地。
川沙正昂首迈向成为浦东主城区和东南腹地发展中心的时代。

林曦水岸小区
原建面约:100-130m²
均价:21000元/m²
总价:210万起
【首付】:七成(贷款只能贷50万)
最新推出小面积公寓:25-33-40平!
1室户与1室1厅
超低总价54万起,精装修 送软装
现房 现房

【户型】:南北通透,双阳台
【层高】:一楼3.6米,其它3米
【楼层】:总高4层部分带电梯
【装修】:毛坯/精装(自用毛坯交付,
统一运营精装交付)
【产权】:50年
【团购】:无团购
【物业】:3元/平
【交房】:款清交付
【户数】:1200
【物业公司】鼎川物业
【绿化率】:30%
【容积率】:1.3
【得房率】:一层120%二层以上90%
【水电费】:商用
在售房源分布图:


林曦水岸超性价比
真地铁:2号线。11号线。21号线
真配套:主题酒店。沿街小吃。各种美食餐饮
真配套:迪士尼度假区
真配套:5层带电梯4层步梯+42%绿化


交通方面:据迪士尼仅10分钟车程,距地铁2号线1.8公里,5分钟车程,项目门口就是公交站。

教育资源方面:中心幼儿园,中心小学、高级中学,知名学校,六灶幼儿园、智源双语幼儿园中小学:上海市六灶中学、浦东新区民办智源小学、浦东新区六灶小学。

商业方面:世纪联华超市、农工商超市。

医疗方面:六灶社区卫生服务中心、上海市浦东人民医院,上海浦东中医医院等医疗资源,为您的健康保驾护航。

最新消息,「林曦水岸」最新房源正在销售中,推出建面约100-130㎡不限购公寓,毛坯/精装交付,均价约1.8-2.1万/㎡,总价约185万起,款清交付。
「林曦水岸」
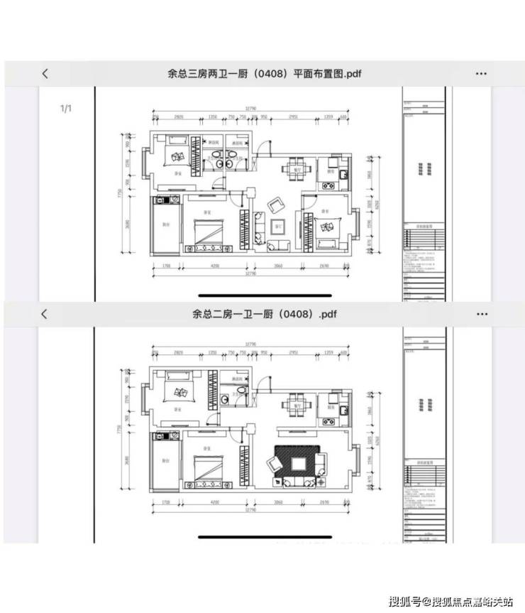
户型图赏鉴



「林曦水岸」
样板间赏鉴
已关注
关注
重播 分享 赞
关闭
观看更多
更多
退出全屏
切换到竖屏全屏退出全屏沪申新房已关注
分享视频
,时长01:04
0/0
00:00/01:04
切换到横屏模式 继续播放进度条,百分之0
播放
00:00
/
01:04
01:04
全屏
倍速播放中
0.5倍 0.75倍 1.0倍 1.5倍 2.0倍 超清 流畅
您的浏览器不支持 video 标签 继续观看
林曦水岸!总价54万起!川沙副中心,地铁就在门口!建面约25-33-100㎡3-4房,不限购,毛坯+装修自由选择,附视频介绍!
观看更多
转载
,
林曦水岸!总价54万起!川沙副中心,地铁就在门口!建面约25-33-100㎡3-4房,不限购,毛坯+装修自由选择,附视频介绍!
沪申新房已关注
分享点赞在看已同步到看一看写下你的评论
视频详情





小区图实景拍摄

林曦水岸.小舍
【面积】:25-30-35-50-75平
【总价】:49万起
【首付】:10万起
【楼层】:总高4层5层
【装修】:统一精装交付(可毛坯)
托管运营 南向包租3000 北向2800
【产权】:50年
【团购】:无团购
【物业】:3元/平
【交房】:款清交付
【户数】:1200
【物业公司】鼎川物业
【绿化率】:30%
【容积率】:1.3
【得房率】:一层120%二层以上90%
【医院】:中心医院 人民医院 六灶社区卫生服务中心 浦东医院
【商业】:川沙百联购物中心 奥特莱斯 佛罗伦萨小镇,绿地商业广场
【交通】:轨道交通2号线川沙站 11号线迪士尼站 21号线800米 S1迎宾高速 上海东站 浦东国际机场
【教育】:宏文国际私立学校 六团中学 英才小学 智源双语幼儿园
【*⃣景点】上海国际旅游度假区,野生动物园,海洋公园






林曦水岸售楼处电话:400-8874-108✔【已认证】
林曦水岸营销中心电话:400-8874-108✔✔【已认证】
上海林曦水岸官方售楼处电话:400-8874-108 VIPLINE✔✔✔【已认证】
如有问题可来电咨询,线上售楼中心,预约销售专员,一对一为您服务!
想了解林曦水岸更多信息?拨打售楼处营销中心热线:400-8874-108 (中介勿扰)【24小时热线】
楼盘项目全面介绍,本电话为开发商提供线上预约售楼电话,楼盘项目全面介绍(包含楼盘简介,均价,房价,现房,期房,别墅,叠墅,大平层,价格,楼盘地址,户型图,交通规划,备案价,备案名,项目配套,样板间,开盘时间,认筹时间,楼盘详情,售楼处电话,最新消息,最新详情,周边配套,一房一价,最新进展等详情咨询)楼盘详情丨价格丨更多优惠丨机不可失丨欢迎致电丨诚邀品鉴!售楼处位置丨特价房丨工抵房丨剩余房源丨户型图丨最新消息丨免责声明:将文章内容综合来源于网络、只作分享,版权归原作者所有!!如有侵权,请联系我们,我们第一时间处理如有问题欢迎来电咨询,专业一对一热情服务,让您用专业眼光去买房.如果您想了解更多楼盘详情,欢迎提前预约拨打
针对房地产市场的复杂形势,全年来看,整体数据再探新低。但在9月26日中央政治局会议明确提出“促进房地产市场止跌回稳”,在系列政策组合拳作用下,四季度以来房地产市场积极变化增多,信心在逐步提振。
总体来说,2024年房地产市场呈现了止跌回稳的良好态势,而这也为2025年房地产挖掘潜力、持续发力、提高效力创造了更好的基础。
2024年全国房地产开发投资同比下降10.6%
1月17日,国家统计局公布的全国房地产市场基本情况显示,2024年全国房地产开发投资100280亿元,比上年下降10.6%(按可比口径计算);其中,住宅投资76040亿元,下降10.5%。
上海易居房地产研究院副院长严跃进指出,房地产开发投资指标连续8个月位于两位数降幅水平,且降幅有缓慢的扩大。稳定房地产开发投资是一项重要工作,其关系到内需提振。不过考虑到最近几年此类指标持续处于偏低位水平,预计2025年此类指标跌幅是可控的。同时在系列金融和财政政策支持下,房地产开发投资指标有结构方面的优化,即积极落实好“严控增量、优化存量、提高质量”的导向。

从房屋施工、新开工和竣工面积三项数据来看,各类指标跌幅相对较大。数据显示,2024年,房地产开发企业房屋施工面积733247万平方米,比上年下降12.7%。其中,住宅施工面积513330万平方米,下降13.1%。房屋新开工面积73893万平方米,下降23.0%。其中,住宅新开工面积53660万平方米,下降23.0%。房屋竣工面积73743万平方米,下降27.7%。其中,住宅竣工面积53741万平方米,下降27.4%。
严跃进表示,当前房地产新开工面积数据跌幅相对大。考虑到最近两年房企优胜劣汰,一些拿地和新开工房企的资金状况是不错的,所以对于2025年房地产新开工指标应持乐观态度,此类同比增速指标有优化的空间。比如,2025年1月份各地出现了积极拿地现象,说明一些优质房企在后续拿地新开工方面动力依然是很足的。
另外,房屋竣工面积指标受开发投资和拿地等指标影响,其出现跌幅较大的现象。严跃进认为,最近两年是持续保交房的关键阶段,也取得了积极成果。2025年要从好房子的角度持续做好保交房工作,同时加大对优秀案例的积极宣传。
从到位资金情况看,该指标已连续9个月出现跌幅收窄态势,资金状况继续改善。2024年,房地产开发企业到位资金107661亿元,比上年下降17.0%。其中,国内贷款15217亿元,下降6.1%;利用外资32亿元,下降26.7%;自筹资金37746亿元,下降11.6%;定金及预收款33571亿元,下降23.0%;个人按揭贷款15661亿元,下降27.9%。
严跃进称,总体上资金状况改善是大方向,也是2025年各地房企要充分利用好的新机会。其建议,将此类资金和地方政府财政资金,尤其是专项债等资金结合,会更好促进项目去化,也更好改善企业的资金状况和现金流状况。
2024年新建商品房销售金额同比下降17.1%
销售方面,国家统计局数据显示,2024年新建商品房销售面积97385万平方米,比上年下降12.9%,其中住宅销售面积下降14.1%。新建商品房销售额96750亿元,下降17.1%,其中住宅销售额下降17.6%。
但从单月情况看,在促进房地产市场止跌回稳各项政策作用下,12月份楼市积极因素继续累积,市场交易较为活跃,新建商品房销售面积和销售额都实现了正增长。根据中房网测算,12月份新建商品房销售面积为11267万平方米,环比上涨37.60%,同比上涨0.37%;新建商品房销售额为11625亿元,环比上涨40.57%,同比上涨2.84%。
严跃进指出,该指标持续性改善,充分说明其是本轮房地产止跌回稳的先行指标。销售向好,对于量价关系、供求关系等调整优化都将产生支撑作用。在“持续用力推动房地产市场止跌回稳”的方向下,预计2025年房屋销售指标将呈现积极向好的态势。

另一方面,重点城市销售也明显改善。根据国家统计局监测的40个重点城市销售情况看,12月当月新建商品房销售面积、销售额同比分别增长了0.3%、4.1%。

此外,在库存方面,根据国家统计局数据,2024年末,商品房待售面积75327万平方米,比上年末增长10.6%。其中,住宅待售面积增长16.2%。
严跃进表示,待售面积数据和销售端数据改善、市场止跌回稳态势有密切关联。2025年各地将严控增量、优化存量,尤其是专项债资金介入,将加快库存去化。而此类供给指标的消化,也将进一步促进供求关系的平衡。
下阶段房地产市场有望继续改善
纵观2024全年房地产相关数据,严跃进认为,市场呈现了“N型”走势,即先高后低再回稳的走向,这说明四季度止跌回稳系列措施积极有效,其也为2025年楼市向好发展创造了非常好的基础。
国家统计局局长康义在国新办举行的新闻发布会上表示,9月26日中央政治局会议明确提出“促进房地产市场止跌回稳”,多个部门抓紧完善土地、财税、金融等政策,取消了限购、限售、限价和普通住宅与非普通住宅的标准,降低住房公积金贷款利率、住房贷款首付比例、存量贷款利率以及换购住房的税率,合力打出来一套政策组合拳。各地区也因城施策、一城一策、精准施策。一揽子政策连续落地,有效降低了居民购房门槛,减轻了还贷压力,居民购房意愿提升,房地产销售好转,政策的效果正在不断地显现。
对于房地产市场今后的趋势,康义认为,随着存量政策和增量政策的有效落实,下阶段房地产市场有望继续改善。从中长期来看,我国新型城镇化还没有完成,刚需和改善性住房需求还有潜力,更多安全舒适、绿色智慧的好房子的需求还会增加,房地产市场发展的新模式也将逐步的构建,这有助于房地产市场平稳健康发展。
此外,严跃进建议,随着房地产拐点已来,各地要把握好新机会,尤其是在2025年要积极落实“开门红”系列工作,巩固和提升楼市“精气神”。