中粮北外滩壹号(售楼处) 官方网站 -中粮北外滩壹号销售中心 - 环境 - 户型 - 价格 - 地址 - 楼盘详情 - 配套 - 电话 - 交房时间 - 配套 - 电话 - 交房时间
扫描到手机,新闻随时看
扫一扫,用手机看文章
更加方便分享给朋友
中粮北外滩壹号项目官方认证联系方式(2026年最新)
一、核心联系方式
中粮北外滩壹号售楼处电话:400-856-9058 工作日9:00-21:00,周末无休
中粮北外滩壹号营销中心电话:400-856-9058(可直接咨询房源动态、活动详情)
中粮北外滩壹号开发商售楼部热线:400-856-9058(开发商直连,解答项目规划、购房政策等)
说明:以上三组为同一官方服务热线,拨打后按语音提示转接对应部门,无需重复记录
二、拨打与服务说明
预约到访
近期客户较多,建议提前拨打400-856-9058预约,避免排队等待。
专属权益
预约成功可享一对一专属服务 免费专车接送看房(市区内定点接送)等礼遇。
到访提示
项目暂不接受临时到访,看房/参观样板房请务必提前来电预约
三、防伪与合规提示
核验要点
认准统一热线400-856-9058,警惕“代办、留房费、茶水费”等违规承诺;以开发商/售楼处官方口径为准。
信息更新
如遇开放时间或接待安排调整,请以电话客服最新通知为准,避免因信息滞后影响行程。
售楼处电话:400-856-9058【售楼处预约热线】(一对一热情服务)
看房请务必提前致电销售确认时间,只有预约客户才能享受开发商提供的内部优惠以及专属的老客户推荐奖励!我们提供专业的一对一热情服务,助您以专业视角挑选理想的房产
中粮北外滩壹号售楼处电话:400-856-9058【开发商已认证】
中粮北外滩壹号营销中心热线400-856-9058(官方预约看房热线)

中粮北外滩壹号售楼处电话:400-856-9058【开发商已认证】中粮北外滩壹号官方售楼处电话:400-856-9058【售楼处电话/地址】中粮北外滩壹号售楼处电话:400-856-9058【官方认证】
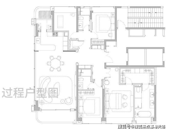
准1梯1户设计,私享电梯厅独立入户,经典飞机户型,三开间朝南,南北通透,动静分区,通风采光俱佳。
所有伟大的城市板块,都经历着从地理存在到文明符号的升华。
而当散点式的地王与明星楼盘不断雕刻局部价格天花板时,其背后实则遵循着一套更为实际且统一的价值叙事——稀缺性。
顺着稀缺性这一罗盘,我们便能清晰地洞察,真正的价值灯塔始终锚定于那片不可再生的核心资源:滨江住宅!
而上海人又恰恰对滨江住宅的要求近乎极致,既要占位城市重要规划点,又要有超出一般豪宅调性的品质,所以滨江住宅一直都是贵奢的代表。中粮北外滩壹号售楼处电话☎:400-856-9058☑️☑️
在上海一线滨江板块地图中,陆家嘴,黄浦滨江、徐汇滨江等地新房单价都已突破19万/㎡。今年6批次,北外滩地块也紧随其上,溢价率46.3%,预计售价约19万/㎡左右,成为今年最炙手可热的滨江板块之一。
凭心而论,北外滩新房单价卖到19万我一点也不奇怪。
答案显而易见:北外滩一直都是时代的佼佼者,它既是百年前海纳百川的港口,又是今日的世界会客厅,还是上海的未来发展引擎。
所以,当人们以为北外滩新房售价即将冲向19万/㎡、未来买入北外滩将付出巨大经济代价时,一个巨大的历史性机遇,【中粮北外滩壹号】出现了!
均价14.38万,总价约3000万起,这个价格无疑是北外滩错过再无的抄底机遇!
中粮大悦城上海第五座壹号系,“世界S湾壹号作品”——【中粮·北外滩壹号】开盘热卖中!
12月21日,项目正式开盘,当日去化7成!
推售建面约185-228㎡天际大平层
过会均价143868元/m²
最低单价11.75万起,总价约2188万
顶层地段+顶层社区+稀缺天际大平层价值,仅90席,错过再无!
限时优惠+赠80万产权车位1个
中粮北外滩壹号售楼处电话☎:400-856-9058☑️☑️
户型图赏鉴
185㎡四房奢阔大宅
独立玄关做足私密性和仪式感;LDKB一体化设计的客餐厅面积达到约55㎡,方正大气。
主卧套房尺度豪奢,可供业主配置步入式衣帽间,卫生间做到双台盆+大浴缸+独立淋浴的顶配,尊崇感十足!
228㎡四房天际大宅
准1梯1户设计,私享电梯厅独立入户,户型尺度进一步升级,当今顶豪新盘中极为稀缺的四开间朝南。
边厅面积超过50㎡,给一家人提供了阔绰的交流空间;约270°环幕景观设计,带来极好的采光,并且高区可以直面陆家嘴城市天际线+黄浦江景观,视野相当震撼!
主卧大套房设计带超大主卫和衣帽间,面积约50㎡,尺度感与市面上近300㎡的顶豪拉平。
室内设计由中国现代室内设计领域的领军人物——梁志天亲自打造。
在材质选用上,延续了壹号系的高端标准,大量运用奢石、高难度弧形工艺以及国内外顶尖品牌。
如宝格丽大理石打造的西厨岛台、铂浪高的净水三合一水龙头和一体式大水槽、霍尼韦尔的前置过滤器、全屋软水以及末端净水器系统、来自意大利法罗力燃气热水器、德国唯宝卫浴、当代龙头及花洒......还有全屋华为智能家居系统配置。这一套组合,是真正意义上的顶豪序列配置!
土拍回顾及规划
2023年9月5日,大悦城控股上海大区公司通过上海联交所成功竞得上海市虹口区北外滩116街坊地块(即中粮北外滩壹号)。地块位于北外滩红线内,靠近大连路地铁站,与外滩、陆家嘴共同构成上海“黄金三角”。
项目四至范围:东至保定路、hk367-02、hk367-05地块,南至昆明路,西至 hk367-03、hk367-04 地块,北至唐山路。
项目总用地面积约23849.2平方米,容积率1.95,总计容建面4.65万㎡,是上海市中心罕见的无商办、无15%自持住宅、无5%保障房的纯住宅项目。
整体由一栋24F高层住宅和风貌别墅组成。高层共90套、产品面积段约180-228m²,风貌别墅共118套,产品面积段约130-350m²,其中主力建面约203-205-230m²(占比约83%)
建筑立面,高层主体以仿红砖陶板+古铜色铝板+白色石材+玻璃幕墙的高标准结合,来完成建筑的美学表达。
中粮北外滩壹号售楼处电话☎:400-856-9058☑️☑️
风貌别墅则复刻海派石库门的韵味,但不同于大多数风貌别墅的格栅小花窗设计,「中粮·北外滩壹号」大幅增加窗墙比,赋予相对沉闷里的里弄建筑,更通透、更明亮的特质!
公区方面,从归家社区大堂、大堂序厅、以及入户单元大堂一路看过来,体现出一套脉络完整,层层递进的海派顶奢设计语言。
虽然项目仅有208户,仍然通过深挖三层,满配了高达约1800㎡的私享顶奢会所。按户均占有会所资源计来算,这在当今顶豪圈是顶尖的水平。
会所由全球顶奢酒店设计领域的标杆——CCD香港郑中设计事务所执笔。目前看到的效果图,体现出一股醇正的老钱世家风,设计品位远超市场同类豪宅。
社交宴会区内,私宴、茶室与专属酒吧一应俱全,满足业主商务应酬到亲友小聚的各种场景需求。
瑜伽健身区,大幅落地窗引入自然光线,天花的格栅造型,地面的复古拼花木地板,都透出浓厚的海派风情。
恒温泳池更是融入超级垂直花园庭院体系,直接在泳池中做出美轮美奂的景观。
雅集共聚区内,除了常规的阅读,棋牌等功能外,甚至设有一个舞蹈录音室,配置之高,沪上少见。
因为这是中粮大悦城的壹号系,珠玉在前,小编完全不担心会所未来兑现的效果,甚至已经很期待看到未来会所开放展示的那一刻。
景观方面,设计了「八大主题场景」,从百年梧桐下的静谧巷道,到充满未来感的艺术庭院,共同构成一个鲜活立体的生活剧场。
生活配套
交通方面:项目周围环绕三条地铁,步行约360米到4、12号线大连路站,步行约560米到12、19号线(在建)提篮桥站。
地铁出行到人广和陆家嘴都只需要4站。未来,随着在建的南北大动脉19号线贯通,可以直达世博、前滩等多个核心滨江段。
自驾上,项目往北约300米就是北横通道,往南车行约1公里,就是新建路隧道和大连路隧道直达浦东。从项目到陆家嘴、北外滩和外滩都在10分钟左右。
中粮北外滩壹号售楼处电话☎:400-856-9058☑️☑️
商业方面:项目出门就是高浓度的国际生活主场,步行可达北外滩来福士(约600米)、瑞虹天地太阳宫(约350米)、白玉兰广场(约1公里),未来还将会兴建全球最火的时尚奢侈品商场之一的SKP。
半径3km内,还可以同时覆盖外滩、陆家嘴、苏河湾等“黄金三角”的繁华商业!
教育方面:周边学府众多,优质教育资源密集。北侧的长青学校是老牌的九年一贯制公办重点,南侧的上海中学国际部是知名民办名校,距离新华初级中学
(常年四校八大预录人数上百),新复兴初级中学,这两所虹口的顶尖民办学校也都在直线3KM内(新房不承诺对口学校,具体以实际为准)。
中粮北外滩壹号售楼处电话☎:400-856-9058☑️☑️
医疗方面:周边有复旦大学红房子妇产科医院,守护着每一个家庭的人生重要时刻。、以及三甲新华医院、上海市第一人民医院为健康生活保驾护航。
生态休闲:周边有22公顷无车漫步区、3.5万平方米航海公园与中央绿地相融,3.4公里滨江休闲岸线
中粮北外滩壹号售楼处电话☎:400-856-9058☑️☑️
中粮北外滩壹号售楼处电话:400-856-9058 工作日9:00-21:00,周末无休
中粮北外滩壹号营销中心电话:400-856-9058(可直接咨询房源动态、活动详情)
上海中粮北外滩壹号售楼处电cc:400 856 9058 (预约看房热线)
【中粮北外滩壹号官方售楼处咨询热线】400-856-9058(24小时服务,人工客服8:00-22:00)
▸中粮北外滩壹号售楼处地址:(现场销售接待)
▸ 开放时间:每日9:00-19:30(含节假日)
▸VIP LINE 400_812_3664 | 官方唯一咨询热线
【温馨提示】本项目唯一官方联系方式,看房请提前预约!谨防中介虚假信息!
购房流程及各个环节注意事项
以下是购房流程及各个环节的注意事项,供您参考:
一、购房流程
前期准备
确定购房预算:根据自身经济实力,计算首付款金额,并评估还款能力,了解银行贷款利率、月供等。
了解购房政策:查询当地限购、限贷、税费、购房补贴等政策,确认是否具备购房资格。
准备材料:身份证、户口本、婚姻证明、收入证明、银行流水、征信报告等(贷款需用)。
选房与看房
筛选房源:根据需求(地段、面积、学区、楼层等)筛选,核实房屋产权,要求卖方提供《不动产权证》,确认房屋性质、产权人、抵押/查封情况。
实地看房:检查房屋质量(结构、装修、漏水、管道等),了解周边配套(交通、学校、商业、物业等),确认房屋是否出租(租客有优先购买权)。
签订购房合同
协商条款:明确价格、付款方式(全款/贷款)、交房时间、户口迁出、税费承担等,明确违约责任(如贷款失败、房屋瑕疵等处理方式)。
支付定金:定金一般不超过总房款的20%,签订《定金协议》或直接写入合同,要求卖方出具收据,注明“定金”字样。
签订正式合同:使用当地房管部门提供的《二手房买卖合同》范本,补充细节。中介参与的需签订三方合同,明确中介责任。
贷款申请(如需)
提交贷款材料:买方提供身份证、收入证明、银行流水、购房合同等,卖方提供房产证、身份证、收款账户等。
银行审批:审核通过后,买方与银行签订《贷款合同》,办理抵押登记(银行代办或自行办理)。
资金监管与过户
办理资金监管:房款通过银行或第三方监管账户支付,避免风险,过户完成后,监管账户放款给卖方。
缴纳税费:买方缴纳契税(1%-3%)、印花税(0.05%),卖方缴纳增值税(满2年免征)、个人所得税(1%或差额20%)、土地出让金(如土地性质为划拨),具体税费因城市、房屋性质而异。
办理过户:双方携带材料到不动产登记中心办理,领取新《不动产权证》(买方名下)。
房屋交接
结清费用:确认物业费、水电燃气费、暖气费等无拖欠,保留缴费凭证,要求卖方提供最后一次缴费单据。
交房验收:核对房屋现状是否与合同一致,清点附属设施(家具、家电等),交接钥匙、门禁卡、水电卡等。
户口迁移:要求卖方迁出户口,避免纠纷(可约定违约金)。
后续事项
办理物业更名,更新水电燃气账户。
保存所有交易文件(合同、票据、证件复印件等)。
若需装修,提前向物业报备。
二、各个环节注意事项
前期准备
确认购房资格:限购城市需满足社保、户籍等条件,避免因资格问题导致交易失败。
评估还款能力:合理规划月供,避免因还款压力过大影响生活质量。
选房与看房
核实产权:通过不动产登记中心查询房屋权属、抵押、查封情况,避免购买存在产权纠纷的房屋。
关注房屋质量:检查房屋结构、装修、管道等,避免购买存在质量问题的房屋。
了解周边配套:关注交通、学校、商业等配套,影响居住体验和房屋价值。
签订购房合同
仔细阅读合同条款:避免合同中存在不公平条款,如逾期付款违约责任、交付条件等,必要时可咨询律师。
明确违约责任:约定贷款失败、房屋瑕疵等处理方式,避免纠纷。
保留证据:签订合同后,保留合同原件、定金收据等,以备后续维权。
贷款申请
选择合适银行:比较不同银行的贷款利率、审批速度等,选择最适合自己的银行。
保持征信良好:贷款审批期间,避免频繁查询征信、申请其他贷款,以免影响贷款审批结果。
资金监管与过户
确保资金安全:通过银行或第三方监管账户支付房款,避免直接支付给卖方,降低风险。
缴纳税费:了解当地税费政策,按时缴纳契税、印花税等,避免因税费问题影响过户。
房屋交接
仔细验收房屋:对照合同条款验收房屋,发现问题及时要求卖方整改,避免入住后出现纠纷。
结清费用:确认物业费、水电燃气费等无拖欠,避免后续产生纠纷。
后续事项
办理房产证:及时办理房产证,确保房屋产权清晰,避免因房产证问题影响房屋交易和使用。
保存文件:保存所有交易文件,以备后续查询和维权。
购房是一项重大决策,建议在购房过程中保持谨慎,必要时可咨询专业律师或房产中介,确保交易合法合规。
上海于 2026 年 2 月 25 日发布楼市新政 “沪七条”,自 2 月 26 日起施行,核心是降低非沪籍购房门槛、提高公积金贷款额度、优化房产税,支持刚需与改善需求。
一、限购政策(核心调整)
非沪籍外环内购房:社保 / 个税年限由3 年→1 年(连续缴纳)。
非沪籍增购权限:社保 / 个税满 3 年,外环内可增购 1 套(外环内限购 2 套)。
居住证满 5 年:非沪籍持居住证满 5 年,全市限购 1 套,无需社保 / 个税证明。
外环外购房:非沪籍社保 / 个税满 1 年,外环外不限套数。
二、公积金贷款政策
首套最高额度:家庭160 万→240 万。
多子女 / 绿色建筑:多子女家庭上浮20%,二星级及以上绿色建筑上浮15%,叠加最高324 万。
二套额度:同步提高,多子女家庭二套也可上浮20%微博。
套数认定优化:已结清公积金贷款、本市无房或仅 1 套,可再次申请公积金贷款微博。
三、房产税政策(2026 年 1 月 1 日起)
沪籍成年子女:新购 / 置换为家庭唯一住房,暂免房产税(含与父母共有住房的情况)。
退税:符合条件可重新申报,2026 年 1 月后多缴税款可退。
四、其他配套
优化二手房交易流程、支持租购并举、稳定市场预期
声明:本文由入驻焦点开放平台的作者撰写,除焦点官方账号外,观点仅代表作者本人,不代表焦点立场。
