江湾鸿玺售楼处电话:400-8874-108✔【已认证】 江湾鸿玺营销中心电话:400-8874-108✔✔【已认证】
上海江湾鸿玺官方售楼处电话:400-8874-108 VIPLINE✔✔✔【已认证】
——江湾鸿玺——
江湾鸿玺售楼处电话:400-8874-108✔【最新预约】
江湾鸿玺营销中心电话:400-8874-108✔✔【最新认证】
上海江湾鸿玺官方售楼处电话:400-8874-108 VIPLINE✔✔✔【最新发布】
如有问题可来电咨询,线上售楼中心,预约销售专员,一对一为您服务!
想了解江湾鸿玺更多信息?拨打售楼处营销中心热线:400-8874-108 (中介勿扰)【24小时热线】
宝山高境,3号线殷高西路站新盘「江湾鸿玺」即将入市!预计将推出套均200㎡大平层!

户型图如下:
(仅供参考,最终以实际为准)
建面约200m²4房户型

一房一价表如下:

说到高境,作为宝山近市中心的板块,一直以来缺乏新房,上一次主力供应要追溯到2015年的泰禾红御,目前该项目是高境乃至整个宝山标杆,部分房源挂牌价9万+/㎡。
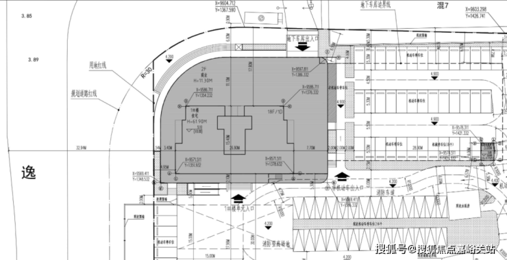
回到江湾鸿玺,项目位于殷高路逸仙路路口,其实就是很多人说的高境欣苑二期,在高境欣苑中又开发了一栋楼。



首层为商业配置,未来将引入运动健身、休闲会馆、便利商超等功能设施,物业提供24H管家式服务。
规划设计图:

我们放大看:这栋楼共18层,估计2梯2户,据悉首层为商业配置,将来可能引进运动健身、休闲会馆、便利商超等。
还有两套自持,所以可售为32套,户型为建面约200㎡大平层。

项目距离3号线殷高西路站仅100米,1公里直达18号线殷高路站,双轨并行锋速通达的时间效率;书香萦绕的教育高地,科创引领、产业先行的核心经济圈。此外,通过逸仙路高架,可以提升通行时效,快速连接五角场合生汇、百联又一城、万达广场、虹口龙之梦等中大型商业综合体。
生活配套成熟,项目西侧就是一个商场,吃喝玩乐都能满足,新业坊·源创潮流、精致元素的加持也为板块注入更多活力。
殷高西路上还有永辉、长江国际、景瑞生活广场等,生活很方便。

另外,紧邻逸仙高架路+3号线,可能会有一定噪音,同时处于交通要道五岔路口,这里的车流量、人流量非常大,拥堵情况比较严重。
江湾鸿玺售楼处电话:400-8874-108✔【已认证】
江湾鸿玺营销中心电话:400-8874-108✔✔【已认证】
上海江湾鸿玺官方售楼处电话:400-8874-108 VIPLINE✔✔✔【已认证】
如有问题可来电咨询,线上售楼中心,预约销售专员,一对一为您服务!
想了解江湾鸿玺更多信息?拨打售楼处营销中心热线:400-8874-108 (中介勿扰)【24小时热线】
楼盘项目全面介绍,本电话为开发商提供线上预约售楼电话,楼盘项目全面介绍(包含楼盘简介,均价,房价,现房,期房,别墅,叠墅,大平层,价格,楼盘地址,户型图,交通规划,备案价,备案名,项目配套,样板间,开盘时间,认筹时间,楼盘详情,售楼处电话,最新消息,最新详情,周边配套,一房一价,最新进展等详情咨询)楼盘详情丨价格丨更多优惠丨机不可失丨欢迎致电丨诚邀品鉴!售楼处位置丨特价房丨工抵房丨剩余房源丨户型图丨最新消息丨免责声明:将文章内容综合来源于网络、只作分享,版权归原作者所有!!如有侵权,请联系我们,我们第一时间处理如有问题欢迎来电咨询,专业一对一热情服务,让您用专业眼光去买房.如果您想了解更多楼盘详情,欢迎提前预约拨打
2025年上半年,二手房市场在一系列政策的带动下,成交表现较为可观。
麟评居住大数据研究院监测数据显示,上半年重点14城成交量为699369套,较去年同期上升14.9%,创2022年以来同期新高,成交水平处于历史中高位水平。

报告指出,上半年二手房成交量呈现“前高后低”局面,一季度成交量集中释放,3月份达到成交小高峰,随后成交开始逐步下滑,至6月单月成交量不及去年同期,同比降6.6%。
麟评居住大数据研究院表示,由于二手房的交付风险低于新房,加上价格下滑购房成本降低,二手房周边配套相对城市,是刚需群体以及刚改群体的首要选择,带动了成交量维持在较高的活跃度。
二手房成交量升价跌
从市场占比方面看,自2023年上半年起,二手房成交比重逐步提升,2025年二手房成交占比进一步呈上升趋势。报告显示,上半年重点12城二手房成交比重占69%,较去年上半年上升3个百分点。

报告表示,近两年来,二手房成交量稳步上升支撑着整体房产楼市交易量的上升,二手住宅在重点城市已经成为交易的主力军,未来在存量房时代,二手房成交量将继续上探。
从购房成本方面来看,上半年居民购房成本继续下滑。重点城市平均套均总价224万元,较2024年下降4.3%。尽管价格仍处在下滑局面,但跌幅已经有所收窄。上半年跌幅(-4.3%)明显小于2024年跌幅(-12.7%)水平。

具体到城市,上半年除成都平均成交套均总价持平外,其他城市均较2024年有所下滑。其中,杭州、深圳房价降幅较小,分别下降0.1%、2.5%,价格表现相对坚挺。
报告分析,2025年经济面临国内外双重压力,就业市场并没有明显改善,居民收入预期及收入能力下降,市场信心下滑,房价止跌回稳动力不足。
购房者中意大户型,低楼层偏好度提升
从成交套均面积来看,近年来逐步提高,小户型成交占比逐渐走低。数据显示,上半年重点城市的套均成交面积为94.2㎡,较2023年上升0.6%,较2019年上升9.5㎡。90㎡以上的成交占比占43.3%,较2019年上升11.8%。

报告称,2016年以来,在房地产市场高速发展时代,居民买房意愿较高,对户型面积的关注度较低,常常牺牲房屋品质上车购房。近两年随着楼市调整,居民对住房品质的关注度逐步提升,因此大户型的成交占比逐年提升。
此外,购房者对低楼层的偏好度逐步提升。
数据显示,上半年中楼层的成交占比仍占较高比重,其次是高楼层,再次是低楼层,成交占比分别为39.3%、32.9%、27.7%。高楼层自2023年达到顶峰之后持续下降,而购房者自2018年以来对低楼层的接受度逐步提升。

报告认为,低楼层成交占比提升一方面得益于近年来对老旧小区加装电梯,绿化升级,老旧小区改造等促使购房者对老旧小区购买意愿增强;另一方面,也反映出住房消费从“面子消费”向“里子消费”的转变。随着城市化进程和人口结构变化,这一趋势在老龄化严重、生活节奏快的地区可能进一步强化。