招商林屿湖畔售楼处电话:400-8874-108✔【已认证】 招商林屿湖畔营销中心电话:400-8874-108✔✔【已认证】
上海招商林屿湖畔官方售楼处电话:400-8874-108 VIPLINE✔✔✔【已认证】
——招商林屿湖畔——
招商林屿湖畔售楼处电话:400-8874-108✔【最新预约】
招商林屿湖畔营销中心电话:400-8874-108✔✔【最新认证】
上海招商林屿湖畔官方售楼处电话:400-8874-108 VIPLINE✔✔✔【最新发布】
如有问题可来电咨询,线上售楼中心,预约销售专员,一对一为您服务!
想了解招商林屿湖畔更多信息?拨打售楼处营销中心热线:400-8874-108 (中介勿扰)【24小时热线】
上海2批次土拍中,4家开发商经过49轮举牌,最终招商蛇口以总价26.6亿元斩获嘉定新城F03A-4地块,楼板价31850元/㎡,溢价率高达30%,到达封顶价,并触发双高双竞!
招商高端系社区配置问鼎外环!首个隐奢度假酒店式峡谷秘境社区

招商·林屿湖畔」定位打造湖居沉浸式奢居新标杆!
以"自然而然的贵重"为设计灵魂,为当代高净值人群量身打造"重回一倍速"的湖畔度假生活方式。
游艇级美学外立面昭示性十足
外立面承袭招商玺系的经典游艇风格,采用了游艇级弧形铝板切割工艺,结合大面积玻璃组成,游艇美学高层呼应湖畔最高地标未来塔,低层墅区与立体庭园呼应城市公共绿境,以L型建筑阵列的美学灯塔形态嵌入城市天际线,封面级社区昭示性十足!

豪宅级公区打造“归家十二境”
为充分利用核心景观的独特自然风貌,将十二维归家景观体系从城市界面、迎宾主入口车马院、归家大堂、下沉庭院、地下会所、景观风雨连廊、架空空间、地上大堂、中央景观轴、宅前景观以及入户门头,打造回应自然、林屿之感,精雕细琢生活小场景,让归家的旅程也是放慢速度的惬意环境。

项目打造了约87米艺术门庭+半程车马院,可容纳特别加长版林肯通行,犹如奢华酒店恢弘气势,拉足了归家仪式感与尊崇感!
步入式归家大堂拥有约13.7米建筑层高,视觉锤设计,模拟甲板视野,打造超越常规视觉震撼力!
项目阳光地库也是设计感拉满,打破传统地库的封闭感,引入自然天光,更以地下光厅与安第斯雪景奢石背景墙等设计,让归家成为一场诗意旅程。
峡谷式立体景观层次感惊艳

核心景观为峡谷式立体景观,与外部自然植被融为一体。打造约420㎡的垂直社区景观的立体感层次,细节可圈可点。通过多层次、立体化的景观营造,创造一座“漂浮的绿洲”,九重层次下沉庭院,区域悬浮泳池+4.3米飞瀑设计,塑造极致度假感受,丰富的视觉奇观。以洄游式曲折路径与风雨连廊设计,甄选世界数十余种珍贵树木,营造多重游园动线,为庭院景观赋予不同互动体验。约2900㎡地上地下双会所配置



以私享游艇为理念,打造地上地下双会所系统,共约2900㎡全维功能空间,这样的高能级配置问鼎整个外环!满足运动、社交、休闲等高品位生活方式,满足都市菁英圈层对社区品质的高标准需求!
立体下沉会所(约1200㎡)
约1200㎡会所,以私宴厅、瑜伽室、棋牌室、壁球室和健身房空间为主,功能丰富,匹配当代精英的生活与精神需求。立体下沉会所由艺术旋转楼梯进入,整块白木纹石材切割+宝格丽粉镶边设计的旋转楼梯,营造社区高雅氛围,步步生花。区域首创国标壁球馆、飞瀑园景健身房、嵌入式景观书吧等,整体统一化仿树榴木纹贴面,还原内外统一的高级度假酒店质感。



无界架空空间(约1700㎡)


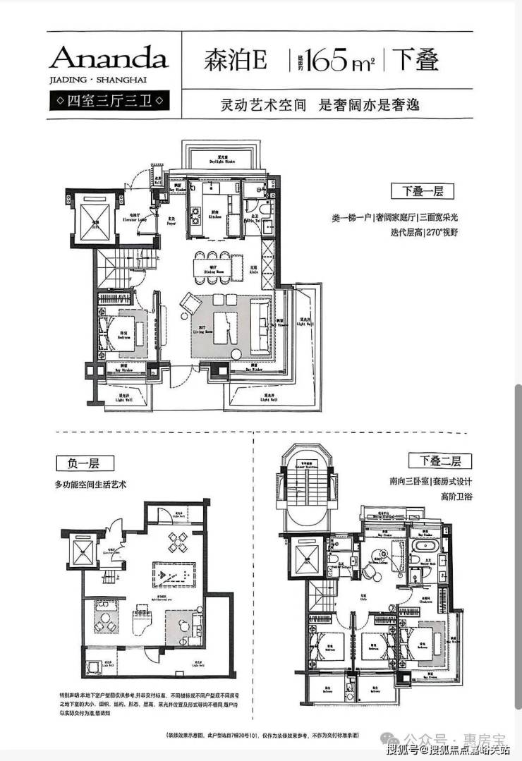
社区内5/8高层楼栋均有架空空间覆盖,共计约1700㎡,最高建筑层高约7.2米的架空空间以休闲下沉卡座、水吧台、休闲会客区打造,联动室外水池营造出酒店式度假空间,实现建筑与自然的无界融合。项目将推出建面约112㎡、122㎡、145㎡高层3-4房以及建面约160-165㎡叠墅,共计624套,其中112户型为一梯两户,122户型两梯两户。建面约112㎡3房2厅2卫,约166套,


一梯两户,层高约3.1米,独立入户玄关,经典飞机式户型;
三开间朝南,客厅面宽约3.65米,南北直通,全卧+厨房均附赠飘窗,LDK一体化,餐厅一侧预留餐边柜位置;
相比较于传统百平米三房,该户型居住舒适度更佳,其中边套户型主卧为270°转角飘窗,所以同一楼层,边套价格也会比中间套更贵!
另外112户型总高16-17F,分别在12层、15层设置有连廊;

连廊主要是对中间套户型的北侧会带来一定的采光和视野影响,但一般连廊层的价格也会适当的便宜一些,可根据个人需求进行选择!
112户型分别位于1号楼和4号楼,其中1号楼南侧临近希望路,东单元挨着保障房、西边套靠近地下车库出入口!
4号楼南向楼间距约38.9米,中间单元南向约13.25米为配电房,东单元南向约13.25米为垃圾房,不利因素对于西单元的影响相对较小一些!建面约122㎡3+1房2厅2卫,约250套,

两梯两户,私享独立电梯厅,其中边套附赠电梯厅面积约6.5㎡左右,中间户附赠面积约4.5㎡左右;边套户型的电梯厅空间,相比较于中间套户型,可利用率更高!


入户设置800库空间,它和传统玄关柜的区别在于:从“平面收纳”升级为“立体仓库”,储物功能更强大!约5米面宽横厅,多出来一个灵动空间,可根据个人需求定制为开放式书房、茶室等;岩板+金属饰面电视背景墙同样为交付标准;LDK一体化,餐厅区域可轻松放下6人位餐桌,并预留餐边柜位置;U型厨房,配置方太四件套(油烟机、灶具、洗碗机、蒸烤一体机)、科勒水槽及龙头等,基本所见即所得;同时厨房也附赠飘窗,将飘窗台面与橱柜一体化设计,做为了水槽区域,极大的提高了厨房空间的实用面积!边套户型主卧为270°转角飘窗,并预留两个衣柜空间;北卧为封闭阳台,实际交付时阳台会改造到位,地暖通铺,地板墙纸通铺,吊顶做好,可参考样间效果。综合来看,该户型还是非常不错的,满足改善需求的同时,各空间储物空间充足,完美解决了这一类客群的收纳痛点,作为项目主力户型,关注度很高!







该户型分布在6号楼、9号楼、11号楼以及13号楼,其中9号楼位置最佳,南向楼间距约46米,下沉式庭院景观一览无余,下楼即达会所空间!建面约145㎡4房2厅2卫,约98套,两梯两户,独立电梯厅,层高约3.15米,其中边套附赠电梯厅面积约6.5㎡左右,中间户附赠面积约4.5㎡左右,同样也是边套户型电梯厅的可利用率更高!


双入户玄关,四开间朝南,三阳台+全卧飘窗,边套户型主卧享270°巨幕飘窗;LDK一体化,G型厨房+附赠飘窗,操作台长达约6.47米,中央岛台设计,同时预留双开门冰箱位;边套主卧飘窗附赠率更高,实用性更强,利用飘窗可设置梳妆台,同时利用飘窗台面做了双台盆设计,均不计入建筑面积,也是一大革新!145户型为区域终极改善之选,实得率达87-91%,通过多阳台的设计,让4个房间均可满足居住需求,且储物空间更充足!




145户型分别位于10号楼和12号楼,双楼王位置,10号楼南侧为低密别墅,南向采光和视野极佳,12号楼南侧正对社区中轴线及室外水景!

林屿湖畔以“游艇风”的建筑美学灵感,引领现代品质生活基调。
而在叠加产品的建筑外立面,这种高辨识度的流线美学,更加聚焦,体现其舒适性的纯粹视觉美感。
简练纯净的建筑语言,彰显十足经典。
游艇风流体美学设计,更具辨识度的建筑立面!
南立面整体观感,以L和C字形线条结合,并根据分户情况进行对应的舱体划分。每一层都拥有通透的采光面,充分考虑户内延伸性,让居者观感更加朗阔。

北向立面以横向线条为主,穿插竖向筒体块,头部做虚化处理,更加强化了游艇风的飘逸感。
解决隐私保护与南向视野平权,将水平露台与竖向视线管理构件,通过花瓣绽放的生长意向进行整合统一,构建了独一无二的视觉辨识力。
石材+双色铝板+大面玻璃,甄选材质的高颜值外立面!
超大尺度面宽设计,配合大面玻璃,朗阔气派。楼体目光所及之处,以香槟色和白色的铝板组合,门头甄选石材,电梯筒厅以大面积玻璃组成。经得起时间与市场考验的高奢材质组合,整体营造通透质感,充满奢雅的建筑美学。
它将金属、玻璃等材质、与线条、光影三者极致运用,呈现出高级的质感。南部新城正需要这样的高颜值产品!外立面造型突破了传统居住建筑规整的立面框架。
3南向视野平权,层层奢阔视野,光感空间与私密尊崇同时拥享!
林屿湖畔叠墅,难得的是每一层都具备通透采光和私密性兼得的特点。这与建筑体设计的兼顾密不可分。
摒弃层层退台的设计,无论是上叠、中叠、下叠,居住的景观视野各有千秋,互不干扰,每一层皆独立境界!
连地下室的空间,充分利用采光井设计,大面积的窗景引入,对于光“物尽其用”,地下空间也成为真正舒适的光感空间。
作为新一代叠加别墅,林屿湖畔的优势比比皆是。
1.高窗墙比,难得一见的奢阔尺度,叠墅也有大平层视界!
约35%的高窗墙比让视线充分打开的同时,更大的面宽和更多飘窗,让观景视野更加朗阔。中叠享有难得一见的5面宽、至高约18m+的奢阔,是嘉定乃至整个上海外环都少有的宽幕尺寸。
采光面的拓展,景观更多地收入户内。中叠宽幕,尽揽园区诗意景观;边套拥揽外围绿化资源,采光平权的户型,让尊崇感与舒适度倍增。
2.大幅可拓展可能,高阶使用率更宽绰!
林屿湖畔叠加产品的可拓展空间,是献给墅居玩家的高进阶选择。
下叠户型,比同类产品更多飘窗,南向开阔尺度,更多采光面拓展;地下自由拓展区域,依托采光井设计实现良好采光,实现未来家庭的影音室、健身房、儿童活动区等功能空间,拓展居住使用场景。
中叠的全飘窗与超长阳台,为室内创造更多阳光与清风。在舒适的格局下,享受更多空间的探索。
上叠可享高实用的顶楼露台,品茗阅读、儿童娱乐,夜晚看向满天星光,为生活提升更多美好想。
林屿湖畔的叠拼户型,让本就朗阔的空间更加奢适,叠加产品同样可以感受到大平层的生活体验。
多面宽+多套房+多飘窗+多拓展!罕见的湖前墅居,一层一世界。
建面约160㎡上叠预计使用率最高约145%、约8.5m横厅双阳台、南北通透主卧套房。
(非得房率,最终房屋得房率以实测报告为准)
【 归家仪式感】独立玄关与观景外廊,双重归家,留住静谧收藏四季
【首层尺度感】宽享聚场,是家人的情绪中枢,也是宴客的精神主场
【套房式主卧】主卧套房,双露台空间,俯仰星河璀璨,眼界即世界
【高拓展空间】别有洞天的私属惬意,重构主人对生活的品位追求
建面约165㎡中叠预计使用率最高约95%、罕见5面宽、尊享通透双套房、阳光半坡顶楼。
非得房率,最终房屋得房率以实测报告为准
【尺度尊荣】拥揽南向5面宽天地视野,通透景致尽显大方之家
【大雅横厅】上演宽绰的艺术美学,将生活与欢聚留给湖畔波澜
【方正厨房】流线型操作动线让烹饪行云流水,随时一场美食派对
【奢配套卧】双套卧,主套房270°
【方正厨房】流线型操作动线让烹饪行云流水,随时一场美食派对
【奢配套卧】双套卧,主套房270°视野,诉说四季的奇妙故事
建面约165㎡下叠 预计使用率最高约148%、三向采光地下、LDBKG双入户流线、南北通透主卧套房
【多功能空间】以四季为幕布,以空间为剧场,俯拾间皆是生活的美好

【归家诗意感】花园步入归家仪式感,日常生活像一座流动的四季剧场
【奢阔家庭厅】无界宽境,LDBK一体化,在流云见证下舒展生命韵律
【尊崇感卧室】二层双卧室朝南+家庭式套房,浪漫源于生活的点滴日常板块信息
招商远香湖项目位于嘉定新城F03A-4地块,是嘉定新城核心区的中心——远香湖CAZ,是嘉定中心中的中心。
招商嘉定新城位于嘉定新城的核心位置,是远香湖中央活动区最后一幅宅地。

四至范围内现状及规划情况:项目南侧为温州嘉定科技创新园区,目前已基本建成。项目北邻伊宁路,伊宁路北侧为绿地公园以及运动场、公厕、伊宁路污水泵站,可能会有一定的噪音等影响;实地看下来,伊宁路污水泵站很小,基本对项目无影响;


该泵站主要承担伊宁路以北,A30以南污水,以及伊宁路以南,永盛路以东,封周路以北范围的污水提升任务:
污水将通过阿克苏路、伊宁路污水主干道进入该泵站经过提升输送到污水处理厂;
项目东侧规划为一幅教育科研设计用地,限高50米;

项目西侧规划为公共绿地以及河道;


这里成片的商品房大多建成于2010年以后,整体城市界面崭新,从控规也能看出,项目周边学校、商业、办公和绿地公园应有尽有,且大多配套都是现成的。

嘉定新城远香湖CAZ定位嘉定新城的综合功能中心与城市形象集中展示区,集聚国际住区、大型商业集群、摩天地标集群、科创科研企业集群、国际教育文化等功能为一体。(规划来自上海嘉定微信公众号)北侧有远香湖、保利大剧院、嘉定图书馆老三大件配套,以及地标级超高层建筑凯悦酒店。

未来,远香湖核心区还将建设文化环、未来塔、活力谷等城市“新三件套”,也在项目周边。文化环:除了现有嘉定图书馆、保利大剧院、江南书院、尚画美术馆外,围绕着远香湖未来还将打造立体儿童乐园、航模活动中心、嘉昆太路演中心等一系列高能级文化设施。

未来塔:位于CAZ的正中央,建成约300米,将成为嘉定甚至是上海西北第一高楼,是真正的C位地标
活力谷:集商业和办公于一体的休闲创意街区。交通方面,目前项目直线距离11号线白银路站和嘉定新城站约2 km,直达徐家汇,多维轨交网络加速成型。值得一提的是未来轨交还在升级!嘉定快线、宝嘉线规划中(远香湖预计设站),未来建成出行将更加便捷!!


教育方面,参考25年学校划分政策,该项目所在的区域可参与上实嘉定新城分校的摇号,对口的学校为交大附属嘉定新城实验学校(期房不承诺学校对口,以上为25年政策,仅供参考!)商业方面,项目步行至宝龙广场约900米左右,另外周边2公里范围内还有万达、TSF购物中心等商业,可完全满足日常消费需求!医疗方面,距离项目约1.4公里有交大医学院附属瑞金医院(三甲)!



招商林屿湖畔售楼处电话:400-8874-108✔【已认证】
招商林屿湖畔营销中心电话:400-8874-108✔✔【已认证】
上海招商林屿湖畔官方售楼处电话:400-8874-108 VIPLINE✔✔✔【已认证】
如有问题可来电咨询,线上售楼中心,预约销售专员,一对一为您服务!
想了解招商林屿湖畔更多信息?拨打售楼处营销中心热线:400-8874-108 (中介勿扰)【24小时热线】
楼盘项目全面介绍,本电话为开发商提供线上预约售楼电话,楼盘项目全面介绍(包含楼盘简介,均价,房价,现房,期房,别墅,叠墅,大平层,价格,楼盘地址,户型图,交通规划,备案价,备案名,项目配套,样板间,开盘时间,认筹时间,楼盘详情,售楼处电话,最新消息,最新详情,周边配套,一房一价,最新进展等详情咨询)楼盘详情丨价格丨更多优惠丨机不可失丨欢迎致电丨诚邀品鉴!售楼处位置丨特价房丨工抵房丨剩余房源丨户型图丨最新消息丨免责声明:将文章内容综合来源于网络、只作分享,版权归原作者所有!!如有侵权,请联系我们,我们第一时间处理如有问题欢迎来电咨询,专业一对一热情服务,让您用专业眼光去买房.如果您想了解更多楼盘详情,欢迎提前预约拨打
住房租赁市场租金水平连续下滑,市场仍处于低温态势。
麟评居住大数据研究院近日发布的报告显示,2025年5月全国40个大中城市租金挂牌均价为34.37元/㎡/月,环比下跌0.32%,连续9个月下降;同比下跌1.14%,连续19个月下滑。整体来看,前5月全国40个大中城市租金挂牌均价为34.54元/㎡/月,较2024年租金水平下降1.12%。

报告指出,受就业环境、收入预期下降等因素影响,居民住房消费能力下降。另一方面,随着保障性租赁住房供应的增加,对市场化的租赁市场有一定冲击。
对此,麟评居住大数据研究院认为,随着应届毕业生入市,5、6月租赁活跃度有望增加,但由于应届毕业生的消费能力较弱,租金仍具备下行压力,租金跌幅有望收窄。
一线城市租金相对坚挺
从等级城市来看,一线城市韧性较强,二线城市压力显著,三线城市跌幅最大。
报告显示,5月份一线城市平均租金为84.58元/平方米/月,环比下跌0.16%,同比上涨0.54%。二线城市平均租金为30.18元/平方米/月,环比下跌0.36%,同比下跌1.82%。三四线城市平均租金为24.60元/平方米/月,环比下降0.45%,同比下跌1.22%。

报告指出,一线城市受今年经济环境及人口流动放缓影响,租金自3月以来环比连续3月下降。值得一提的是,北京表现较为突出,5月份租金环比上涨0.95%,同比上涨1.54%。
二线城市租金跌幅时间较长,环比连续下跌8个月,同比连续下跌19个月。其中,武汉和成都租金同比跌幅较大,分别下降12.06%和7.2%。而三四线城市5月份租金跌幅略大于一二线城市,但从同比走势来看,自2023年9月,三四线租金表现好于二线城市。
威海北京重庆位居涨幅前三
具体到城市,5月份40个大中城市租金仍延续“跌多涨少”局势,有8城租金均价环比上涨,3城环比持平,29个城市租金环比下跌。
报告显示,租金环比上涨的城市中,威海(1.12%)、北京(0.95%)和重庆(0.43%)位居涨幅前三。其中,威海受今年旅游热度上升,租金整体呈上升局面;北京由于临近毕业季,受到强产业配套支持,业主对租金预期有所提升。

此外,环比跌幅TOP10城市中,有6个城市跌幅超1%,具体为洛阳(-2.82%)、武汉(-2.04%)、成都(-1.98%)、佛山(-1.58%)、广州(-1.20%)和青岛(-1.13%)。