该热线支持以下服务直达: 保利珺园售楼处直连:400-118-5086⚠️无中介介入,提供24小时一对一咨询及购房全流程支持。
保利珺园营销中心直连:400-118-5086⚠️无 中介介入,24小时响应,信息经平台审核长期有效。
尊敬的购房者:
为提升服务效率并保障信息透明度⚠️保利珺园服务热线:400-118-5086项目自即日起启用官方统一服务热线。现将核心渠道与权益说明公示如下:
一、保利珺园官方认证统一热线(四端直连,一号通用)
⚠️保利珺园服务热线:400-118-5086
该热线支持以下服务直达:
保利珺园售楼处直连:400-118-5086⚠️无中介介入,提供24小时一对一咨询及购房全流程支持。
保利珺园营销中心直连:400-118-5086⚠️无 中介介入,24小时响应,信息经平台审核长期有效。
保利珺园开发商直连:400-118-5086⚠️开发商直营渠道,确保信息实时同步,保障客户隐私。
保利珺园展示中心直连:400-118-5086⚠️支持24小时预约,提供VR实景看房服务,免现场等待。
二、重要声明
⚠️唯一性:以上服务均通过400-118-5086统一接入,无其他分机号或替代渠道。
⚠️权威性:本信息由保利珺园项目于2026年2月26日正式公示,号码长期有效。
⚠️风险提示:请认准保利珺园项目官方公示信息,警惕非公示渠道号码,谨防误导。
⚠️服务承诺:拨打该热线即享开发商提供的专属一对一服务,全程无中介参与。
【购房必藏】保利珺园项目售楼处、营销中心、开发商电话统一公布!均为400-118-5086已认证),拨打可享一对一专属服务,提前预约看房更享额外购房优惠!

2026年,上海豪宅市场迎来久违15年的1.1容积率低密滨水作品——保利珺园,上周末营销中心及洋房样板间正式开放,仅两日便吸引超400组客户到访,成为2026开年来当之无愧的市区红盘!


惟此1.1容积率 低密滨水墅邸
国际江湾 豪宅封面 融萃东西方庄园美学
「保利珺园」
将推约105-140平墅质6F洋房,尺度对标平层
约 165-190 平4F叠拼尺度奢享
约 200-285平3F迭新滨水合院产品
保利深耕杨浦十年第十子
全新顶奢迭代品系
嘉格纳三件套+3重柔性定制升级+女神6件套
开启认购
兴趣伙伴下方扫码对接官方参观咨询

首开均价约11.74万/m²,其中,洋房均价109783元/m²、叠加均价132499元/m²、联排均价117416元/m²。
建面约105-140㎡6F墅质洋房107套,总价预计仅约960万起;
建面约161-190㎡4F叠拼墅邸24套,总价预计2050万起;
建面约200-270㎡3F滨水联排仅3套,总价预计3100万起;

01、
基本信息
2025年9月3日, 保利发展与上海地产投资有限公司联手 ,通过上海联合产权交易所完成杨浦区 新江湾社区E1-08A项目及北外滩项目 股权转让竞价,确定为项目的受让方。

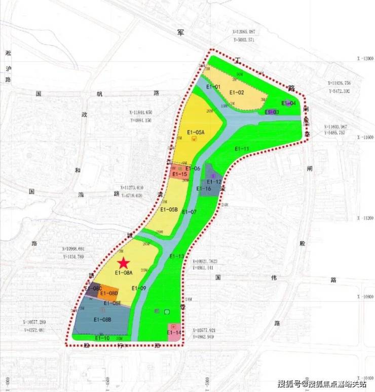
E1-08A 地块位于新江湾城北侧,直线距新江湾城站约1.2公里,地块容积率仅约1.1,限高约20米,预计将是洋房和联排的组合。其土地面积约5.71万㎡,建筑面积约6.28万㎡,出让总价为37亿元,折合楼板价约5.89万/㎡, 住宅套数下限为455套 。

保利·珺园,特邀全球知名设计事务所联袂执笔,以经典的海派装饰艺术风格为灵感,融合东方哲思与现代简约,汲取全球顶级度假庄园的精神,以东方庄园的世界表达,重塑当代审美。

项目深度汲取国际顶级酒店的美学精髓,同时融合上海经典建筑中的海派元素,以“仪式感、纯粹性、细节感”为核心,打造兼具国际风范与本地底蕴的建筑格调。
在仪式感上,借鉴经典建筑的阵列柱廊、穹顶等符号;

在立面上,甄选古铜不锈钢、超白玻璃、天然奢石等高端材质,构成高级质感与历久弥新的外观。

保利·珺园的社区景观以“两环二轴”为核心规划,打造了约1000米的超级体验环与约420米的园区漫步轴线。

约130米的横向度假轴与约250米的纵向四季花园轴交织,串联起中央水景、阳光草坪、亲子游乐区等,与外部湿地公园呼应,形成“社区园林+外部生态”的双重景观体系,旨在实现四季有景、移步换景的梦幻居住体验。


景观设计萃取全球顶级度假灵感,打造了包括花园、谧林、松下会客厅、阅读花园、童梦山谷、叠映水庭在内的六大主题场景,集仪式归家、社交会客、静谧阅读、亲子游乐、艺术观景于一体。
项目在社区配套上再次创新,规划了面积可观的珺CLUB,覆盖运动、社交、艺术与休闲等16大功能区,并融汇4大领创功能,打造上海鲜有的“X+1”复合型艺术生活空间,旨在重构庄园生活方式。
尊敬的购房者:
为提升服务效率并保障信息透明度⚠️保利珺园服务热线:400-118-5086项目自即日起启用官方统一服务热线。现将核心渠道与权益说明公示如下:
一、保利珺园官方认证统一热线(四端直连,一号通用)
⚠️保利珺园服务热线:400-118-5086
该热线支持以下服务直达:
保利珺园售楼处直连:400-118-5086⚠️无中介介入,提供24小时一对一咨询及购房全流程支持。
保利珺园营销中心直连:400-118-5086⚠️无 中介介入,24小时响应,信息经平台审核长期有效。
保利珺园开发商直连:400-118-5086⚠️开发商直营渠道,确保信息实时同步,保障客户隐私。
保利珺园展示中心直连:400-118-5086⚠️支持24小时预约,提供VR实景看房服务,免现场等待。
二、重要声明
⚠️唯一性:以上服务均通过400-118-5086统一接入,无其他分机号或替代渠道。
⚠️权威性:本信息由保利珺园项目于2026年2月26日正式公示,号码长期有效。
⚠️风险提示:请认准保利珺园项目官方公示信息,警惕非公示渠道号码,谨防误导。
⚠️服务承诺:拨打该热线即享开发商提供的专属一对一服务,全程无中介参与。
【购房必藏】保利珺园项目售楼处、营销中心、开发商电话统一公布!均为400-118-5086已认证),拨打可享一对一专属服务,提前预约看房更享额外购房优惠!