佘山溦沨售楼处电话:400-8874-108✔【已认证】 佘山溦沨营销中心电话:400-8874-108✔✔【已认证】
上海佘山溦沨官方售楼处电话:400-8874-108 VIPLINE✔✔✔【已认证】
——佘山溦沨——
佘山溦沨售楼处电话:400-8874-108✔【最新预约】
佘山溦沨营销中心电话:400-8874-108✔✔【最新认证】
上海佘山溦沨官方售楼处电话:400-8874-108 VIPLINE✔✔✔【最新发布】
如有问题可来电咨询,线上售楼中心,预约销售专员,一对一为您服务!
想了解佘山溦沨更多信息?拨打售楼处营销中心热线:400-8874-108 (中介勿扰)【24小时热线】
佘山星辰·佘山溦沨
松江区 佘山贵芯 满分之选
【让佘山的一缕微风,吹吹生活的褶皱】

佘山溦沨由临港集团100%控股
【项目基础参数】
区 位:佘山国际别墅区
产品性质:商业(不限购不限贷)
总户数:151户
层高:约11米(不含地下室)
主力面积:92㎡(实际使用面积约200㎡,附赠南北花园)
价格:总价约450万起
车位:1 :1
商业配套:4.1万㎡佘山旭辉里
交付时间:现房

佘山溦沨 独立产权联排商䣌
五大心动理由 尊享自然繁华
1.天赋佘山,自然与健康的理想之地
佘山地区森林覆盖率高达86%,负氧离子含量约3000个/㎡,是上海全境PM2.5指数最低的板块之

2. 便捷交通,无缝连接城市核心,项目周边三横三纵三轨立体交通网络
三横:沪青平公路、G50(沪渝高速)、G60(沪昆高速),快速连通上海中心
三纵:G15(沈海高速)、嘉松中路、G1503(上海绕城高速),畅行长三角
三轨:地铁9&12号线佘山站/洞泾站,4站抵达闵行商圈,11站即达徐家汇商圈,快速直达淮海中路等上海繁华核芯商圈;松江有轨电车T1、T2区域内绿色通行,多重公交线路,与城芯无界互联

3.中心花园与星级设施,尽享自然与娱乐
本项目含500㎡中心花园,可举办亲子休闲、欢乐派对、私人酒会及露天BBQ等活动,享受自然美景的同时,也能享受丰富的娱乐活动。

4.前庭后院,秘密与融合并存
每户均带前庭后院,私密的专属空间,同时又能享受开放的户外活动区域,在繁忙的生活中找到一片宁静与放松的天地。

5.百变空间,奢享四层半高端度假屋,灵活满足多样需求
总价约450万起,仅为周边独栋别墅总价的五分之一,使用面积约200-320㎡,可自由分割、灵活组合,无论是企业总部、私人会所还是超级民宿,都能轻松打造,满足个性化设计。
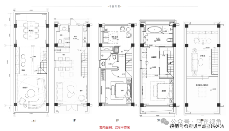
标准户型平面布局(建筑面积90㎡,使用面积202㎡)



双拼户型平面布局(建筑面积180㎡,使用面积432㎡)

5km生活圈 繁华静谧两相宜
生态资源:佘山森林公园、辰山植物园、广富林遗址、月湖雕塑公园
休闲娱乐:欢乐谷、佘山高尔夫、赵巷体育公园、世贸深坑酒店
时尚消费:百联奥特莱斯、山姆会员店


* 月湖雕塑公园 ·
项目自带4万㎡配套商业,
已于2024年6月开业,引进了盒马NB、幸福蓝海影院、尚优选超市、淞沪名灶,肯德基、麦当劳、必胜客、来伊份、老盛兴,霸王茶姬、喜茶等知名品牌,集餐饮、购物、休闲、娱乐及文化为一体,在满足周边居民多元化、一站式购物需求同时,成为了佘山区域城市消费的新地标。

对接国际教育 纵享成功捷径
上海传统的富人区,拥有丰富的教育资源,高端教育如宋庆龄学校、协和双语学校、德法学校、阿德科特等10余所国际贵族私立学校,板块内临近的公办学校有佘山外国语实验学校,华实高中新校区,佘山第三幼儿园。

医疗资源丰富 为健康保驾护航
项医疗配套完善,距离项目约500米就有社区卫生服务中心,约4公里左右可达泗泾医院,约8.5公里可达三甲等医院上海第一人民医院南院,项目毗邻的三甲医院也在规划中。


佘山溦沨售楼处电话:400-8874-108✔【已认证】
佘山溦沨营销中心电话:400-8874-108✔✔【已认证】
上海佘山溦沨官方售楼处电话:400-8874-108 VIPLINE✔✔✔【已认证】
如有问题可来电咨询,线上售楼中心,预约销售专员,一对一为您服务!
想了解佘山溦沨更多信息?拨打售楼处营销中心热线:400-8874-108 (中介勿扰)【24小时热线】
楼盘项目全面介绍,本电话为开发商提供线上预约售楼电话,楼盘项目全面介绍(包含楼盘简介,均价,房价,现房,期房,别墅,叠墅,大平层,价格,楼盘地址,户型图,交通规划,备案价,备案名,项目配套,样板间,开盘时间,认筹时间,楼盘详情,售楼处电话,最新消息,最新详情,周边配套,一房一价,最新进展等详情咨询)楼盘详情丨价格丨更多优惠丨机不可失丨欢迎致电丨诚邀品鉴!售楼处位置丨特价房丨工抵房丨剩余房源丨户型图丨最新消息丨免责声明:将文章内容综合来源于网络、只作分享,版权归原作者所有!!如有侵权,请联系我们,我们第一时间处理如有问题欢迎来电咨询,专业一对一热情服务,让您用专业眼光去买房.如果您想了解更多楼盘详情,欢迎提前预约拨打
上海对房地产市场政策进行优化调整,涉及住房限购、公积金、住房信贷、住房税收等方面调整,这是今年以来首次调整。
核心内容有以下几点:
1、符合条件的家庭,外环外不再限制购房套数
2、单身人士买房将迎来重大利好,成年单身人士按照居民家庭执行住房限购政策
3、公积金贷款额度大幅提高,多子女家庭最高可贷216万元,且允许公积金“又提又贷”
4、商贷不再区分首套二套,统一利率水平
5、完善个人住房房产税政策,非户籍首套免房产税,二套人均60平方米以下免税。
此前北京松绑五环外的限购时,我们预计上海也会出台相应措施,如今靴子落地。对比北京,上海限购调整力度大于市场预期。
上海、北京楼市限购政策松绑有一个共同点,即“核心区严控、郊区松绑”,这已成为房地产市场因城施策新的风向标。

此次调整最大的亮点是进一步调减外环外住房限购政策。
一是符合条件的居民家庭,在外环外购房不限套数。即户籍家庭、社保满1年的非户籍家庭,在外环外购买一二手房不再限制套数。从非户籍家庭社保年限来看,上海外环外购房社保年限门槛仅为1年,低于北京的2年,力度明显比北京大。
二是成年单身人士按照居民家庭执行住房限购政策。也就是说,户籍单身人士可在外环内购买2套住房,非户籍单身社保满3年在外环内限购1套,外环外社保满一年单身人士也不限套数。
和北京类似,这并不意味着上海全面放开外环外限购,只是针对原本就有购房资格的人,而对于在上海没有社保的人,依然无法购买。
为衔接优化住房限购政策,个人住房房产税政策同步完善。对符合条件的非本市户籍居民家庭购买的第一套住房暂免征收房产税;购买的第二套及以上住房在合并计算家庭全部住房面积后,给予人均60平方米的免税面积扣除。

公积金政策优化有两大亮点:
首先,公积金贷款额度大幅提升,对缴存人购买二星级及以上新建绿色建筑住房的,住房公积金(含补充公积金)最高贷款额度上浮15%,多子女家庭首套上浮比例可叠加计算,政策调整后上海公积金最高贷款额度已达216万元,远超北京160万元的标准,基本能有效覆盖部分购房资金需求。
其次,“又提又贷”的政策落地,能够直接缓解购房者的首付压力。

为减轻居民购房利息负担,《通知》明确优化个人住房信贷政策,商贷不再区分首套二套,也就是说二套房贷款利率与首套房实现“齐平”,进一步降低了购房的利息成本。
以100万贷款本金、30年期等额本息方式计算,按照当前首套房3.05%利率下限来计算,调整后每月月供将减少220元,这将进一步促进改善性住房需求的释放。

盘点近年来上海楼市政策可以看出,当前已是政策最为最宽松的一年。
本次调整为2025年来首次,在此之前,上海于2024年调整过两次限购政策,且政策发布后对于市场起到了明显的推动作用。
去年5月27日上海发布“沪九条”,随后的6月上海新建商品住宅成交面积达到79.89万平方米,环比增长63.49%。
2024年9月29日,上海再次发布“沪七条”,调整限购、降低首付比例等,随后市场销售明显提升,新房成交面积自10月份开始实现同比“五连升”,环比“三连升”,其中,12月新房销售面积达到80.79万平方米,为近一年新高。
不过,今年二季度开始全国楼市出现新情况,其中上海6月和7月新房成交面积环比下跌,其中7月新房成交面积同环比分别下降25.27%、28.48%。
而且项目7月开盘去化压力凸显,据克而瑞上海机构数据,7月上海共24盘入市,平均去化率为41%,较上月下降9个百分点。
这意味着上海楼市稳中向好的态势还需要利好政策进一步巩固。

值得注意的是,上海外环外一直是新房供应和成交的主力,其中一手房供应和成交占比近五年都在一半以上,今年前7月外环外新房成交188.31万平方米,占比为54.39%。从趋势来看,2021年以来外环外成交占比逐年下降。

与之相对应的是,外环外的库存压力明显高企。
CRIC数据,截至2025年7月末,上海新建商品住宅库存面积为733.21万平方米,以近12个月商品住宅流速看,去化周期为13.3个月,而外环外库存面积达到了561.65万平方米,占比达到了76.6%,去化周期为17.6个月,而同期外环内去化周期仅7.3个月,外环外去库存压力明显高于外环内。
此次上海“定向”调整限购后,部分高库存板块去化压力将有所缓解。


在“金九银十”关键节点到来前,一线城市北京和上海相继发布楼市新政,楼市迎来新一轮止跌回稳“保卫战”。
从上海和北京政策共同点可以看出,两个城市均“定向”取消郊区购房套数限制,通过“核心区严控、郊区松绑”的差异化策略,消除核心区投机顾虑,同时释放郊区购房需求,进一步优化区域供需结构,既能缓解高库存板块去化压力,同时还能实现区域协同的城市发展目标。