佘山微风售楼处电话:400-8874-108✔【已认证】 佘山微风营销中心电话:400-8874-108✔✔【已认证】
上海佘山微风官方售楼处电话:400-8874-108 VIPLINE✔✔✔【已认证】
解码上海人居黑科技!佘山微风售楼处电话:400-8874-108?【已认证】佘山微风如何用六大系统定义智慧住宅新标准想了解佘山微风更多信息?拨打售楼处营销中心热线:400-8874-108 (中介勿扰)【24小时热线】在国家 “双碳” 战略目标与智慧城市建设的时代背景下,佘山微风以前瞻性的视野,率先引入国际前沿技术,匠心打造上海首个 “全维度智慧生态社区”,重新定义未来人居新范式。?佘山微风售楼处话:400-8874-108【已认证】BIM 建筑系统:采用先进的建筑信息模型(BIM)技术,对项目建设全过程进行精细化管理。通过三维建模与数据集成,实现毫米级施工精度,较传统施工方式,结构安全性提升 30%,有效保障建筑质量与居住安全。同时,BIM 技术还可优化施工流程,缩短建设周期,让业主早日入住理想家园。佘山微风营销中心电话:400-8874-108【已认证】WELL 健康系统:从空气、水、营养、光、运动等 12 大维度出发,构建全方位的健康居住体系。配备高效新风除霾系统,可实时监测并净化室内空气,PM2.5 过滤效率高达 95% 以上;优化光环境设计,采用智能照明系统,根据不同场景与时间自动调节光线强度与色温,营造舒适健康的光环境;此外,还对水质进行深度净化处理,让业主畅享健康用水。上海佘山微风官方售楼处电话:400-8874-108 VIPLINE【已认证】
AI 智能系统:搭载人脸识别、无感通行、智能安防等智慧化设施,为业主带来便捷、安全的居住体验。业主只需 “刷脸” 即可轻松出入社区与楼栋,告别忘带门禁卡的烦恼;智能安防系统 24 小时实时监控,一旦检测到异常情况,将立即发出警报并通知物业人员,全方位守护业主安全。想了解佘山微风更多信息?拨打售楼处营销中心热线:400-8874-108 (中介勿扰)【24小时热线】
项目主推 96精装户型,全屋甄选一线品牌家装,品质与格调兼具。配备智能家居中控系统,通过手机 APP 或语音指令,即可实现对灯光、空调、窗帘等全屋设备的一键控制,让生活更加智能便捷。经专业机构测评,项目能效等级达国家一级标准,年均节能 80%,在践行绿色低碳生活理念的同时,为业主节省生活成本。优化策略:突出 “BIM 技术”“WELL 健康认证”“双碳住宅” 等专业术语,搭配 “[技术原理图]”“[节能数据对比表]” 等可视化元素(实际使用时添加 alt 属性),增强内容专业度与可读性。此外,增加技术原理的详细阐释与应用场景描述,让读者更直观地了解科技住宅的优势。
佘山微风售楼处电话:400-8874-108【已认证】
佘山微风营销中心电话:400-8874-108【已认证】
上海佘山微风官方售楼处电话:400-8874-108 VIPLINE【已认证】
如有问题可来电咨询,线上售楼中心,预约销售专员,一对一为您服务!
想了解佘山微风更多信息?拨打售楼处营销中心热线:400-8874-108 (中介勿扰)【24小时热线】
上海·松江·佘山
【佘山微风】
建面约92㎡商业联排别墅
地上三层 送阁楼 送地下室
实用5层 层高约12米(不含地下室)
实际使用面积约200㎡左右
附赠南北花园 总价约480万起
可两套打通 可三套打通 无承重墙
自带4.1万商业 不限购 不限贷

产品性质:商业别墅(不限购不限贷)
总户数:151户
总层高:约12米(不含地下室)
主力面积:92㎡左右(实际使用面积200㎡左右,附赠南北花园)
价格:总价约490万起
水:5.8元/顿
电:1.2元/度
煤气:3.05
物业费:未定
拿地时间:2016
竣工时间:2019
交房时间:2023年6月30日
停车费:未定
产权年限:40年
商业:自带4.1万㎡商业

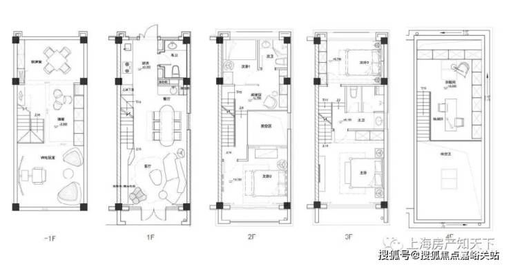
项目户型图
样板间效果图

项目实景图



交通方面:三横三纵三轨 便捷立体交通,三横:沪青平公路、G50(沪渝高速)、G60(沪昆高速),快速连通上海中芯;三纵:G15(沈海高速)、嘉松南路、G1503(上海绕城高速)。

商业方面:项目自带约6万方Shopping mall,拟引进各类潮流业态,匹配塔尖高端消费需求。5km生活圈有奥莱、山姆、合生新天地等商业资源。
生态方面:有佘山森林公园、辰山植物园、广富林遗址、月湖雕塑公园等。


产品性质:商业别墅(不限购不限贷)
总户数:151户
总层高:约12米(不含地下室)
主力面积:92㎡左右(实际使用面积200㎡左右,附赠南北花园)
价格:总价约499万起
商业:自带4.1万㎡商业










三横三纵三轨 便捷立体交通
三横:沪青平公路、G50(沪渝高速)、G60(沪昆高速),快速连通上海中芯
三纵:G15(沈海高速)、嘉松南路、G1503(上海绕城高速),畅行长三角
三轨:地铁9&12号线佘山站/洞泾站,4站抵达闵行商圈,10站即达徐家汇商圈,快速直达淮海中路等上海繁华核芯商圈;松江有轨电车T1、T2区域内绿色通行,多重公交线路,与城芯无界互联

5km生活圈 繁华静谧两相宜
生态资源:佘山森林公园、辰山植物园、广富林遗址、月湖雕塑公园
休闲娱乐:欢乐谷、佘山高尔夫、索菲特大酒店、赵巷体育公园
高端购物:奥莱、山姆、合生新天地
自建商业:项目自带约6万方Shopping mall,拟引进各类潮流业态,匹配塔尖高端消费需求

佘山微风售楼处电话:400-8874-108✔【已认证】
佘山微风营销中心电话:400-8874-108✔✔【已认证】
上海佘山微风官方售楼处电话:400-8874-108 VIPLINE✔✔✔【已认证】
如有问题可来电咨询,线上售楼中心,预约销售专员,一对一为您服务!
想了解佘山微风更多信息?拨打售楼处营销中心热线:400-8874-108 (中介勿扰)【24小时热线】
楼盘项目全面介绍,本电话为开发商提供线上预约售楼电话,楼盘项目全面介绍(包含楼盘简介,均价,房价,现房,期房,别墅,叠墅,大平层,价格,楼盘地址,户型图,交通规划,备案价,备案名,项目配套,样板间,开盘时间,认筹时间,楼盘详情,售楼处电话,最新消息,最新详情,周边配套,一房一价,最新进展等详情咨询)楼盘详情丨价格丨更多优惠丨机不可失丨欢迎致电丨诚邀品鉴!售楼处位置丨特价房丨工抵房丨剩余房源丨户型图丨最新消息丨免责声明:将文章内容综合来源于网络、只作分享,版权归原作者所有!!如有侵权,请联系我们,我们第一时间处理如有问题欢迎来电咨询,专业一对一热情服务,让您用专业眼光去买房.如果您想了解更多楼盘详情,欢迎提前预约拨打
2025年至今,多地对公积金政策进行调整优化,包括北京、上海、深圳、成都等热点一、二线城市。
从政策内容来看,涉及多个方面,既有调整首付比例及贷款利率、提高贷款额度、提高年龄上限和使用范围等常见调整,也有直付房租、将灵活就业人员纳入住房公积金缴存范围等试点。
截至目前已经有超20城对公积金政策进行优化。对于超1.7亿缴存者来说,这笔钱正变得更可及、更好用。
住房公积金在相当长的一段时间只针对买卖市场,从前几年开始对租赁端有所松动,一直到如今公积金使用的弹性越来越灵活。
这一方面是公积金管理在适应市场的变化,另外一方面也是对整体房地产市场调控的配合。

2月以来,各地密集出台住房公积金贷款优化政策。如长沙、济南、大连等城市,都不同程度提高了住房公积金贷款额度,最高额度都提高了几十万元不等,此外最低首付比例也降到了20%。深圳、福建等多地则明确支持省内购房异地可以提取,厦门、莆田、南平等地还允许父母或子女等家庭成员之间利用住房公积金进行购房贷款。
据不完全统计,2025年至今全国已经有超过20个城市出台了公积金优化调整相关政策。
从具体政策内容来看,部分为以往政策的延续,如降低首付比例、下调存量贷款利率便是对2024年全国层面取消全国层面房贷利率下限、下调房贷首付比例和公积金贷款利率的响应。又如调整住房公积金贷款到期日,将还贷期限延长则是对国家延迟退休的政策的响应。
住房城乡建设部数据显示,2023年,我国住房公积金实缴职工人数超过1.7亿 ,缴存额达到34697.69亿元。
目前每个城市出台公积金政策的角度和细则不一,各地正通过一系列公积金政策“组合拳”,着力盘活存量住房公积金的使用效率,在一定程度上让一些刚性需求和改善性需求进行适度释放,为市场注入新活力。这也是因城施策的具体体现。


从各地公积金政策“组合拳”来看,将灵活就业人员纳入缴存范围正成为新的热点。
目前天津、宜昌、兰州等地已明确将个体工商户、自由职业者等灵活就业人员,也纳入住房公积金缴存范围。灵活就业人员原则上也可享受“商转公”“多孩家庭公积金贷款支持政策”等多重权益。
2024年1月14日上海市人民政府办公厅印发《上海市促进在线新经济健康发展的若干政策措施》,也提出打造灵活就业服务新模式,推进灵活就业人员参加住房公积金制度。
从已试点城市来看,2月17日宜昌住房公积金中心发布最新工作动态:今年以来,宜昌住房公积金中心认真贯彻落实党中央、国务院提出的“推动住房公积金向职业劳动者广覆盖”要求,将住房公积金融入全市发展大局,以获批灵活就业人员参加住房公积金制度全国第三批试点城市为抓手,乘“巳”而上,谋新求变,全力以赴吹响公积金事业高质量发展号角。2025年1月底灵缴全国试点正式启动以来,全市新增灵活就业人员开户6309人,春节前后20天的开户数超过过去五年的总和,新增开户人员实缴金额近2000万元。
从政策创新点来看,其将灵活就业人员纳入住房公积金缴存范围,通过住房公积金支持灵活就业人员租房、购房,助力各类就业群体住有所居。缴存方式上,许多城市也充分考虑到灵活就业人员收入不稳定的特点,极为灵活。
另外,根据《天津市灵活就业人员参加住房公积金制度管理办法》,对于灵活就业人员连续停缴6个月以上(含6个月),无未结清的个人住房公积金贷款或账户余额不足最近一次个人住房公积金贷款月还款额的,可提取全部住房公积金并注销个人住房公积金账户。这也将有力支持此类灵活就业人员公积金贷款权益。
需要注意的是,从灵活就业人员的角度来说,若住房公积金贷款与商业贷款之间没有明显的差异与优惠,其参加住房公积金的积极性或将不足。
目前全国大部分城市已取消房贷利率下限,同时,自2024年5月18日起,中国人民银行下调个人住房公积金贷款利率0.25个百分点。首套个人住房公积金贷款利率2.85%,第二套个人住房公积金贷款利率3.325%。
2024年底广州部分区域商业银行最低房贷利率低至2.6%,曾出现商贷与公积金贷款利率“倒挂”情况。为此2024年11月6日,广东省人民政府新闻办公室官方微信“广东发布”发文曾表示:多家银行及按揭中介确认,自11月7日起广州地区主要商业银行或统一调整房贷利率,各家银行商业房贷利率最低不得低于3%。

截至目前央行公布的新一期LPR显示,5年期以上LPR为3.6%。可以看到随着公积金贷款利率与个人住房商贷利率的利差持续收窄,灵活就业人员自愿参与住房公积金缴存的积极性存疑。

2025年1月20日,北京发布《关于开展提取住房公积金直付房租业务试点工作的通知》。
“直付房租”是指公积金中心根据缴存人的授权和申请,按月将缴存人可提取的住房公积金从其住房公积金账户直接划转至试点住房出租机构指定账户,用于支付房租的提取方式。
共有4类租房提取类型可以申请“直付房租”业务:一是租住商品住房提取;二是多子女家庭租住商品住房提取;三是租住保障性租赁住房提取;四是租住公共租赁住房提取。
申请“直付房租”业务的缴存人,数据互联校验通过的,可实现“零材料”办理。
数据显示,近年来我国住房公积金租房提取金额、人数快速增长,每年支持超过1500万新市民、青年人等缴存群体提取住房公积金支付房租,其中40岁以下青年人占比超过80%。
根据国家规定的缴存比例,每个人及其单位为其账户缴纳的公积金总额,约为其工资总额的10%到24%。对初入职场、缴存总额不高的年轻人而言,能否有效利用公积金,也直接影响着他们的生活质量与幸福感。
此次北京试点住房公积金直付房租对租房领域落实了更为宽松和友好的政策,具有非常好的导向。


2024年全年共有266省市放松公积金政策,整体效果相对有限,尤其是对购房需求的实际撬动作用非常有限,只有少数客户可能因为公积金政策的放宽,而增加购房意愿,或转向选择公积金贷款。
进入2025年,作为第一波政策落地,目前已有超20个城市对公积金政策进行调整优化,在信号上较为积极。
从2024年9月26日中央政治局会议首提“促进房地产市场止跌回稳”,再到12月11日至12日中央经济工作会议再作定调“持续用力推动房地产市场止跌回稳”。从“促进”到“持续用力”表述的转变,不仅凸显了稳定房地产市场的迫切需求,也反映了市场需要持续的政策支持。
我们认为随着越来越多城市对之前各项政策落地实施,2025年整体政策仍将继续保持宽松状态,后续也将有更多政策在紧锣密鼓地优化落地当中。