上海闵行联仲都悅汇(2025·联仲都悅汇最新)楼盘详情-房价-户型-周边配套

嘉峪关楼市发布 2025-07-19 09:31:10
用手机看
扫描到手机,新闻随时看

扫一扫,用手机看文章
更加方便分享给朋友

✅✅【联仲·都悦汇】官方售楼处电话:400-118-5086✅✅

✅✅【联仲·都悦汇】官方售楼处电话:400-118-5086✅✅最新消息,送100w装修!闵行·商墅 联仲·都悦汇 约310-411㎡法式商墅!总价约1420万~1800

闵行·旗忠别墅富人区

✅✅【联仲·都悦汇】官方售楼处电话:400-118-5086✅✅

建面310~411㎡商业联排别墅

法式干挂 地上三层 地下一层

✅✅【联仲·都悦汇】官方售楼处电话:400-118-5086✅✅

带南北双花园90-300㎡

✅✅【联仲·都悦汇】官方售楼处电话:400-118-5086✅✅

总价约:1420-1800万

实景现房 不限购 通燃气

点击输入图片描述(最多30字)

✅✅【联仲·都悦汇】官方售楼处电话:400-118-5086✅✅

点击输入图片描述(最多30字)

✅✅【联仲·都悦汇】官方售楼处电话:400-118-5086✅✅

01.项目基本信息

【开发商】:上海联仲置业有限公司

【物业】:上海仲量联行物业管理公司

【容积率】:1.0

【绿化率】:35%

【车位比】:1:2.1

【物业费】:8元/㎡/月

【本次开盘】:14套

【物业类型】:商业联排别墅

【交付标准】:毛坯

【拿地时间】:2014年8月

【交房时间】:2023年6月

✅✅【联仲·都悦汇】官方售楼处电话:400-118-5086✅✅

在售户型:建面约310-410平米,地上三层地下一层

(地上:一层层高3.6米/二层层高3.4米/三层层高3.4米/地下层高5.4米)

总价:约1400-1800万️

单价:约5万/平米

小区整体商业:10万方(在建)南北双花园90-300平

水电:商水&商电,电1.3元/度,水6元/吨

产权车位:约30万左右

✅✅【联仲·都悦汇】官方售楼处电话:400-118-5086✅✅

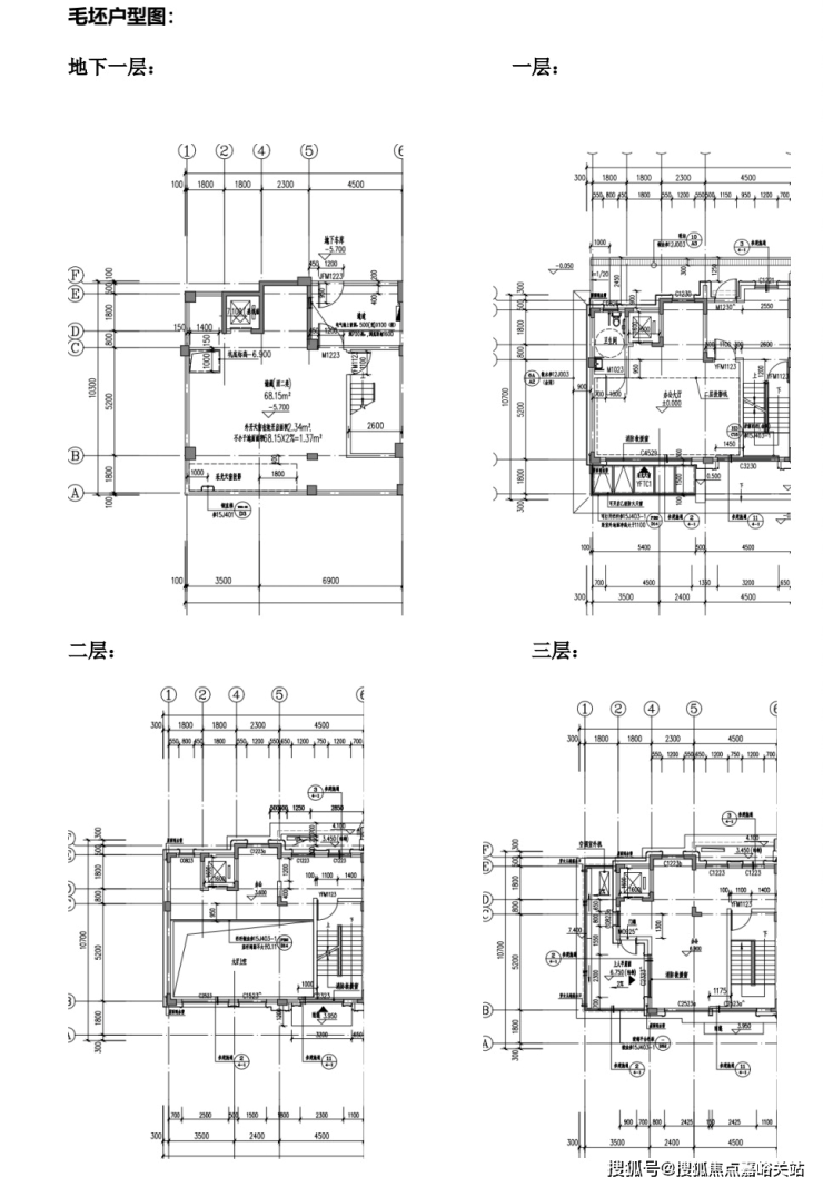
02.户型图及样板间照户

(特殊说明:户型朝向-上南下北)

约10.4米大面宽,面积达到55平

送电梯,北进门,南花园,超大地下室

客厅7米落地窗,采光明亮,尽显大气

约310平户型图▼

✅✅【联仲·都悦汇】官方售楼处电话:400-118-5086✅✅

约378~420平户型图▼

点击输入图片描述(最多30字)

约407~441平户型图▼

✅✅【联仲·都悦汇】官方售楼处电话:400-118-5086✅✅

样板间效果图如下:

点击输入图片描述(最多30字)

✅✅【联仲·都悦汇】官方售楼处电话:400-118-5086✅✅

点击输入图片描述(最多30字)

✅✅【联仲·都悦汇】官方售楼处电话:400-118-5086✅✅

点击输入图片描述(最多30字)

✅✅【联仲·都悦汇】官方售楼处电话:400-118-5086✅✅

点击输入图片描述(最多30字)

✅✅【联仲·都悦汇】官方售楼处电话:400-118-5086✅✅

点击输入图片描述(最多30字)

✅✅【联仲·都悦汇】官方售楼处电话:400-118-5086✅✅

点击输入图片描述(最多30字)

✅✅【联仲·都悦汇】官方售楼处电话:400-118-5086✅✅

点击输入图片描述(最多30字)

✅✅【联仲·都悦汇】官方售楼处电话:400-118-5086✅✅

点击输入图片描述(最多30字)

✅✅【联仲·都悦汇】官方售楼处电话:400-118-5086✅✅

点击输入图片描述(最多30字)

✅✅【联仲·都悦汇】官方售楼处电话:400-118-5086✅✅

点击输入图片描述(最多30字)

03.项目区位配套

【联仲·都悦汇】位于闵行马桥旗忠别墅区,旗忠别墅区是上海老牌的富人区,与松江佘山、浦东东郊齐称为沪上三大国际别墅区。上海仅存少量的容积率0.18以下超低密度居住用地中,大多数在马桥旗忠别墅区。✅✅【联仲·都悦汇】官方售楼处电话:400-118-5086✅✅

点击输入图片描述(最多30字)

板块以低容积率、生态自然环境和高端国际品牌配置,2010年被列为上海第二批大型居住社区之一。总建面约33万方城市综合体联仲都悦汇位于旗忠板块正核心,紧临网球中心,超10万方市政绿化所环绕。✅✅【联仲·都悦汇】官方售楼处电话:400-118-5086✅✅

点击输入图片描述(最多30字)

【联仲都悦汇】同样是低密度别墅区里的一员,背靠绿城玫瑰园,容积率低至1.0。项目贯穿了3条自然水系,分为ABCD四个地块,其中ABC为商住办综合地块,自带商业办公。✅✅【联仲·都悦汇】官方售楼处电话:400-118-5086✅✅

点击输入图片描述(最多30字)

交通配套方面:项目距离嘉闵高架元江路出口3公里,毗邻G15、S32等快速主动脉,30分钟大虹桥,50分钟抵达浦东机场,快捷畅达全城。✅✅【联仲·都悦汇】官方售楼处电话:400-118-5086✅✅

点击输入图片描述(最多30字)

地铁:5号线华宁路站,剑川路站✅✅【联仲·都悦汇】官方售楼处电话:400-118-5086✅✅

公交:马莘专线:联工路站,闵行19路:银春路华宁路站

高速:嘉闵高架、沪金高速、虹梅南路高架 沪昆高速、申嘉湖高速、沪闵高架

高铁:距离上海虹桥枢纽站(高铁、机场)约20km

未来规划:嘉闵线延伸段

(以上数据来源于高德地图)

点击输入图片描述(最多30字)

商业配套方面:项目自带10万方商业,为旗忠唯一的综合性商业配套,其多元化的业态结构,结合旗忠独有的资源,必将带来旗忠全新生活方式。✅✅【联仲·都悦汇】官方售楼处电话:400-118-5086✅✅

点击输入图片描述(最多30字)

✅✅【联仲·都悦汇】官方售楼处电话:400-118-5086✅✅

点击输入图片描述(最多30字)

✅✅【联仲·都悦汇】官方售楼处电话:400-118-5086✅✅

点击输入图片描述(最多30字)

生态资源方面:项目周边有马桥森林公园、旗忠高尔夫球场、旗忠网球中心、韩湘水博园、养云安缦酒店等。✅✅【联仲·都悦汇】官方售楼处电话:400-118-5086✅✅

点击输入图片描述(最多30字)

教育资源方面:周边有复旦万科实验学校,德威英国国际学校、斯代文森国际高中、上海美高学校。 幼儿园:元祥幼儿园、富杰幼儿园启英幼儿园, 大学:上海交通大学、华东师范大学✅✅【联仲·都悦汇】官方售楼处电话:400-118-5086✅✅

点击输入图片描述(最多30字)

✅✅【联仲·都悦汇】官方售楼处电话:400-118-5086✅✅

点击输入图片描述(最多30字)

✅✅【联仲·都悦汇】官方售楼处电话:400-118-5086✅✅

点击输入图片描述(最多30字)

✅✅【联仲·都悦汇】官方售楼处电话:400-118-5086✅✅

✅✅【联仲·都悦汇】官方售楼处电话:400-118-5086✅✅

闵行·旗忠别墅富人区

【联仲·都悦汇】

建面310~411㎡商业联排别墅

法式干挂 地上三层 地下一层

带南北双花园90-300㎡

✅✅【联仲·都悦汇】官方售楼处电话:400-118-5086✅✅

总价约:1420-1800万

实景现房 不限购 通燃气

点击输入图片描述(最多30字)

声明:本文由入驻焦点开放平台的作者撰写,除焦点官方账号外,观点仅代表作者本人,不代表焦点立场。