上海.越秀招商·和樾长宁(和樾长宁)首页网站|和樾长宁-2025和樾长宁上海热搜-和樾长宁楼盘百科-评测 楼盘评测_最新价格|配套户型_交房时间

嘉峪关楼市发布 2025-07-02 10:49:55
用手机看
扫描到手机,新闻随时看

扫一扫,用手机看文章
更加方便分享给朋友

越秀招商天樾长宁售楼处电话:400 - 8894 - 986😏😏

长宁内中环

2号线北新泾站约300米

「招商越秀长宁项目案名—和樾长宁」

将推建面约120-143㎡3-4房

预计二季度入市

越秀招商天樾长宁售楼处电话:400 - 8894 - 986😏😏

项目信息

2024年第八批次土拍首日, 招商&越秀以总价21.82亿元竞得长宁区仙霞社区地块(长宁区W040602单元F1-09地块)。项目东至天山路31号、南至新渔东路、西至北虹路、北至天山路轨交变电站,占地约1.1万平方米。近邻苏州河,距离地铁 2号线北新泾站直线距离仅约300米

越秀招商天樾长宁售楼处电话:400 - 8894 - 986😏😏

地块占地约1.12万方,容积率2.2,成交总价218251万元,溢价率约24.53%,楼板价88495元/㎡,装修标准不低于4000元/㎡。

越秀招商天樾长宁售楼处电话:400 - 8894 - 986😏😏

项目 拟建4幢可售住宅,总高12-14层,楼间距30米,每幢楼都可以拥有不错的采光和视野,部分楼栋底部架空/局部架空。

小区内部有下沉式庭院,南侧沿街布置了商业配套,人行、车行出入口布局合理,但未完全实现人车分流,致力打造长宁新标杆——摩登、精致、艺术感的国际先锋住区。越秀招商天樾长宁售楼处电话:400 - 8894 - 986😏😏

项目拟建4幢可售住宅,总高12-14层,楼间距30米,每幢楼都可以拥有不错的采光和视野,部分楼栋底部架空/局部架空;小区内部有下沉式庭院,南侧沿街布置了商业配套,人行、车行出入口布局合理,但未完全实现人车分流!

越秀招商天樾长宁售楼处电话:400 - 8894 - 986😏😏

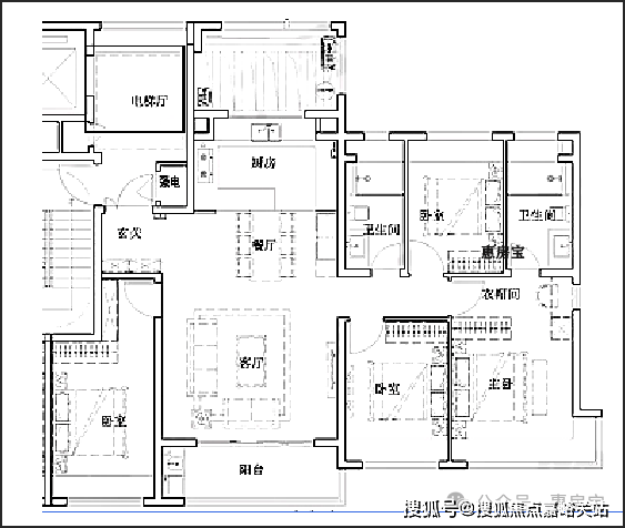
户型图如下:(过程稿,以开发商发布为准)

「约120㎡3房2厅2卫」 该户型为三房两厅两卫,从明亮的入户,南北通透,采光效果佳。

越秀招商天樾长宁售楼处电话:400 - 8894 - 986😏😏

独立小玄关设计,内外双玄关搭配,进门仪式感足。走出玄关是一体化的客餐厅,这个空间不完全方正,有个小角,稍微有点遗憾。

厨房采用U型布局,操作台面宽敞,合理的餐厨关系,让烹饪与用餐更加便捷。厨房借助飘窗延伸出部分台面,这部分台面下方的收纳空间相对有限,且厨房顶面可能并非平整,这或许会给厨房的收纳和装修带来一些挑战。另外需要注意的是,本户型将冰箱放置在餐厅区域,有点压缩了餐厅空间。

主卧空间以这个面积段的户型来说不算宽裕,且不能布置衣帽间。南次收纳能力不错。北次卧比较小,需要借助飘窗摆放家具。北次卧的门正对干区的镜子,稍显尴尬,不过这可以通过选择内置镜片型镜柜来巧妙化解。三个房间由于配有等面宽且无墙垛的飘窗,所以实际感受放大不少。越秀招商天樾长宁售楼处电话:400 - 8894 - 986😏😏

两个卫生间面积都比较小,尤其是主卫,但功能齐全,能满足日常使用需求。公卫的湿区布置稍怪,门打开正对马桶,淋浴房没有外窗。一般来说,淋浴房布置在开窗处,这样可以便于湿气及时排放。

「约143㎡4房2厅2卫」

这是一套四房两厅两卫的飞机布局户型,四面宽朝南,采光与通风条件堪称完美,可以说是是为三代同堂的二胎家庭量身定制。越秀招商天樾长宁售楼处电话:400 - 8894 - 986😏😏

越秀招商天樾长宁售楼处电话:400 - 8894 - 986😏😏

拥有对外采光的独立电梯间入户,为居住者开启了一段私密而宁静的归家之旅。入户处的小玄关,虽配有薄型鞋柜,收纳空间稍显有限,但独立电梯间却可以作为外玄关,拓展了使用空间。

客餐厅采用一体化大空间设计,等面宽客厅面宽宽敞,视野开阔,搭配大面宽的薄C型厨房,动线流畅使用便利,类岛台的台面设计,进一步拓宽了餐厅空间。需要注意一下,水槽这一段台面可能是借用了飘窗,能利用的收纳空间有限。

阳台与客厅等面宽,功能多样,既能满足日常的衣物洗晒需求,又可打造成一个惬意的休闲角落,摆上一张藤椅,一杯香茗,让生活的每一刻都充满情趣。

房间布局上,三间朝南卧室让三代同堂的每一位家庭成员都能尽享阳光的温暖。朝北次卧安静舒适,可以与主卧打造成带书房的超大主卧套。越秀招商天樾长宁售楼处电话:400 - 8894 - 986😏😏

主卧采用套房设计,配有衣帽空间和卫生间,充分保障了主人的隐私与便捷。次卧的空间尺度都比较适宜,可放置双人床,满足日常居住需求。

户型内六个空间均设有等面宽飘窗,这不仅拓宽了采光面,还巧妙地增加了实用空间。

总体而言,该户型布局合理,各空间舒适惬意,是三代同堂家庭或者二胎购房者的上佳改善之选。

板块信息

项目位于2号线北新泾站旁约300米,紧贴中环,自驾可通过中环及北横通道通达全城。

越秀招商天樾长宁售楼处电话:400 - 8894 - 986😏😏

北新泾周边主要有3个地铁上盖的商业体组成,分别是宜嘉坊广场、兆城馥邦汇和申亚珺悦18广场。年代比较久,能级和人气都不算太高。

越秀招商天樾长宁售楼处电话:400 - 8894 - 986😏😏

该地块并非位于长宁的传统豪宅区,但长宁的产业和商业重心正在西移!

首先是产业方面,在虹桥古北之后,长宁是抓住了互联网风口的。

最出名的当然是位于娄山关路523号的金虹桥国际中心,也就是拼多多总部,是上海税收百亿楼! 另一个重点则是2号线淞虹路站附近的临空经济园区 崛起。越秀招商天樾长宁售楼处电话:400 - 8894 - 986😏😏

越秀招商天樾长宁售楼处电话:400 - 8894 - 986😏😏

在上世纪90年代,临空园区还是典型的江南水乡景象,彼时的古北已经一片欣欣向荣,中山公园也蓄势待发。

2010年后,依托于虹桥优势,临空经济园区迎来蓬勃发展。截止最新,园区已吸引超3千家企业入驻,集聚了联合利华、德国博世 等一批国内外知名企业总部,以及爱立信、史泰博、携程网 等知名信息服务业企业。俨然是长宁甚至整个西上海的产业源动力之一。 以 娄山关路和淞虹路为产业支点,一东一西, 长宁西正在形成一整条高端商业办公链条。 2号线娄山关路除了已成型商办,西侧还有 晶耀虹桥 项目。总投资约80亿元,是由铁狮门公司,新长宁集团和三菱地所共同合作开发的大型商业办公综合体项目。项目已于2023年年初开工,预计2025年建成。2号线威宁路站上来就能看到缤谷广场,体量很大运营较为成熟,属于长宁比较知名的区级商业中心。内部的业态和门类相当丰富。 2号线淞虹路站附近, 依托于临空经济园区,这里是西长宁商业爆发的重点,前几年长宁ArtPark大融城开业,人气相当不错。

越秀招商天樾长宁售楼处电话:400 - 8894 - 986😏😏

越秀招商天樾长宁售楼处电话:400 - 8894 - 986😏😏

越秀招商天樾长宁售楼处电话:400 - 8894 - 986😏😏

刚开业的上海荟聚综合体号称长宁最大商业体,总建筑面积超过43万方,包括长宁区最大的购物中心“上海荟聚购物中心”、宜家临空商场以及5栋办公楼。 整体来看,西长宁的产业和商业近几年的发展速度是非常快的。

越秀招商天樾长宁售楼处电话:400 - 8894 - 986😏😏

总的来说,对于招商越秀天山项目来说,小区周边的城市界面更偏向成熟的居住区。但随着长宁产业和商业的向西转移,整个区域的居住氛围和格调会有一些提升。越秀招商天樾长宁售楼处电话:400 - 8894 - 986😏😏

香港顶级豪门郑家的危机,始于一次社交媒体停更。

郑志刚,香港四大家族之一郑家创始人郑裕彤的长孙。

这位在抖音拥有281万粉丝的“网红总裁”,从年初开始更新频率越来越慢,直到5月底彻底停更。

就在郑志刚停更的第二天, 他掌舵的新世界发展发布公告,宣布四只永续债的利息要延期支付。

消息一出,市场哗然。

这家由郑家掌控的老牌房企,遭遇了 “股债双杀”,债券被恐慌性抛售,股价单日暴跌逾6%。

这是新世界发展上市20年来首次债务违约,也让它成为香港四大地产商中首家“暴雷”的企业。

截至2024年12月31日,新世界发展借款总额高达1464.88亿港元。

其中短期债务尤其令人担忧,一年内到期需偿还的债务为322.1亿港元,而公司账上现金仅有214.18亿港元, 短期偿债缺口超过百亿

更严峻的是,集团综合债务净额达1246.3亿港元,净负债率攀升至57.5%,远超港资房企传统的30%安全线。

如果算上永续债, 新世界的真实负债率更是逼近88%,这个数字已接近内地高杠杆房企的水平。

2024年财年,新世界发展持续经营业务的收入同比下降34%至358亿港元,归母净利润亏损近197亿港元。

这是该集团20年来首次出现年度亏损。

“当前市场环境下优化资金安排”,新世界在公告中如此解释延期支付利息的决定。

但市场普遍认为,这不过是公司流动性紧张的无奈之举。

这场危机的根源,指向郑家第三代核心人物郑志刚的扩张策略。

2020年5月,时年41岁的郑志刚接任新世界发展行政总裁,成为集团实际掌舵人。

他力推“文化商业”概念,加速扩张自创的K11品牌。

在郑志刚手中,K11从香港的几家扩展到中国内地的26家,合计达到38座。

截至2024年,K11已在大中华区10个城市运营34个项目,总楼面面积达273万平方米。

与传统商业不同,K11将艺术、人文与自然三大元素融合。

上海的K11有自营美术馆,定期邀请国际艺术家办展,香港的K11建有一面2500平方米的绿植墙,商场大厅实现自然光照明……

这些创新理念领先内地同行至少10年。

但现实格外骨感。

“K11在内地的所有商场销售额加在一起,可能还抵不过一个万象城。”

一位知情人士在2024年10月如此透露。

社交媒体上,许多网友评价K11“不接地气”。每天来拍照打卡的人流不断,但真正消费的没几个。

2023年,内地K11商场平均出租率仅为78%,远低于香港的90%以上。深圳旗舰项目K11 ECOAST开业首年就亏损高达2.3亿港元。

采用重资产模式的K11项目导致资金严重沉淀。

单个项目投资动辄50亿港元以上,回报周期却长达十余年。

与此同时,郑志刚还打破港资房企低杠杆传统,效仿内地房企的高周转模式。

在扩张过程中,他将净负债率从传统港资的30%以下,拉高至2023年的49.8%,并大量发行年利率高达8%以上的永续债。

2021年内地楼市下行期,他仍“逆势囤地”,以超过200亿港元重仓大湾区旧改项目。

然而市场反应冷淡,不少项目去化率不足40%,地块估值大幅缩水。

新世界发展的困境,与其他港资地产商形成鲜明对比。

恒隆地产董事长陈启宗早在2020年就主动收缩内地投资,保持负债率仅26.3%,专注香港核心物业;

新鸿基郭氏家族恪守保守投资原则,从不盲目扩张,确保现金流充裕。

这些老牌港企之所以能穿越周期,靠的是对市场的深刻理解。

他们深知城市化红利终将消退,且香港市场比内地早发展三十年,已经历过完整周期。

“郑志刚身为‘富三代’,虽有理念、有热情,却缺乏周期意识。”一位市场观察人士分析, “他赌‘内地消费升级’、赌‘文化商业爆发’,结果踩错了节奏。”

标普全球评级在2025年2月的报告中已发出警示:若香港出现大型开发商违约或债务重组, 可能导致住宅楼价年内下跌5%-7%,一手成交量腰斩至1万宗。

报告特别指出,市场对部分未获评级的本地开发商的信贷压力猜测升温。

尽管新世界发展在1月公告否认债务重组传闻,但 投资者担忧若发生重大信贷事件,将引发行业资金链紧缩。

面对危机,郑氏家族正多管齐下寻求自救。

最关键的救命稻草是一笔高达875亿港元的再融资计划。

若能在6月30日前获得超50家贷款银行的书面同意,公司将以此偿还2025至2027年的债务,争取喘息机会。

截至6月24日,美银证券消息称谈判仍在进行,尚未有正式协议落地。

同时,新世界发展开启大规模资产处置。

2024财年,公司已出售非核心资产回笼80亿港元,包括香港荃湾愉景新城商场及深圳前海周大福金融大厦部分权益。

2025年,资产出售目标进一步提高至260亿港元。

销售端也在努力提振。2024年7月至2025年5月,新世界发展合约销售额达248亿港元,完成全年目标的95%,其中内地市场贡献超过七成。

为稳定市场信心,郑氏家族成员甚至以个人行动释放积极信号,郑家纯配偶叶美卿斥资1487万港元购入两套物业,CEO黄少媚以5488万港元购入一套房产。

然而, 郑志刚本人已在2024年9月辞去行政总裁职位。

他同时卸任新世界百货中国董事会主席、周大福执行董事等职务,唯一带走的是K11的独家管理权,由其全资公司以2.09亿港元买下5家K11关联运营公司。

他的继任者马绍祥仅任职两个月也辞职了,现任CEO黄少媚成为一年内第三位掌舵者,反映出管理层持续动荡。

如今,郑志刚的抖音账号依然停留在5月份。

这位曾经的“网红总裁”最后一次公开露面是在香港K11 Musea的艺术展览上,背景墙上挂着醒目的当代艺术作品,他笑容满面地向粉丝介绍艺术与商业的融合愿景。

商场保安老陈每天走过空荡荡的K11艺术长廊时总会想起郑裕彤时代的盛况: “那时新世界的楼盘开售,人龙能排几条街。现在这些艺术品好看是好看,就是太冷清了。”

声明:本文由入驻焦点开放平台的作者撰写,除焦点官方账号外,观点仅代表作者本人,不代表焦点立场。