招商云澜湾(售楼处)官方网站-招商云澜湾销售中心(营销中心)-招商云澜湾楼盘欢迎您-小区环境-户型-价格-地址-楼盘详情-周边配套-售楼处电话
扫描到手机,新闻随时看
扫一扫,用手机看文章
更加方便分享给朋友
招商云澜湾vip热线:400-118-5086√√√【已认证】
招商云澜湾营销中心电话:400-118-5086√√√【已认证】
上海招商云澜湾官方售楼处电话:400-118-5086√√√【已认证】
如果您对招商云澜湾有任何疑问,都可以拨打售楼处电话进行咨询。目前案场仅接待预约客户,参观本项目时需提前至少1小时拨打售楼处电话进行线上预约,可享受专属优惠折扣。
预约条件:时间、人数、是否开车【开车需告知车牌预留车位】
尊敬的客户:
感谢您对 [招商云澜湾] 官方售楼处电话:400-118-5086√√√【已认证】的关注与认可!为向您提供更精准、高效的置业咨询服务,如需到访售楼处,可通过填写以下信息完成预约,我们将第一时间为您安排专属顾问对接。上海招商云澜湾官方售楼处电话:400-118-5086√√√【已认证】
基础预约信息 上海招商云澜湾官方售楼处电话:400-118-5086√√√【已认证】
隐私保障声明 上海招商云澜湾官方售楼处电话:400-118-5086√√√【已认证】您填写的所有个人信息仅用于售楼处预约对接及置业服务,我们将严格遵守《个人信息保护法》,绝不泄露或用于其他商业用途,您可放心填写。上海招商云澜湾官方售楼处电话:400-118-5086√√√【已认证】
上海招商云澜湾官方售楼处电话:400-118-5086√√√【已认证】
项目名称:招商云澜湾
所属区位:上海·松江新城
产权年限:70年产权
总建筑面积:超7.2万方
可售住宅套数:617套(高层477套,叠加140套)
车位:约860个(地上85个,地下775个)
容积率:约1.6
绿地率:约35%
产品类型:高层(总高13F直通地下车库;一梯两户北向无连廊)、叠加(总高4F带电梯;下叠带地下室、上叠带露台)
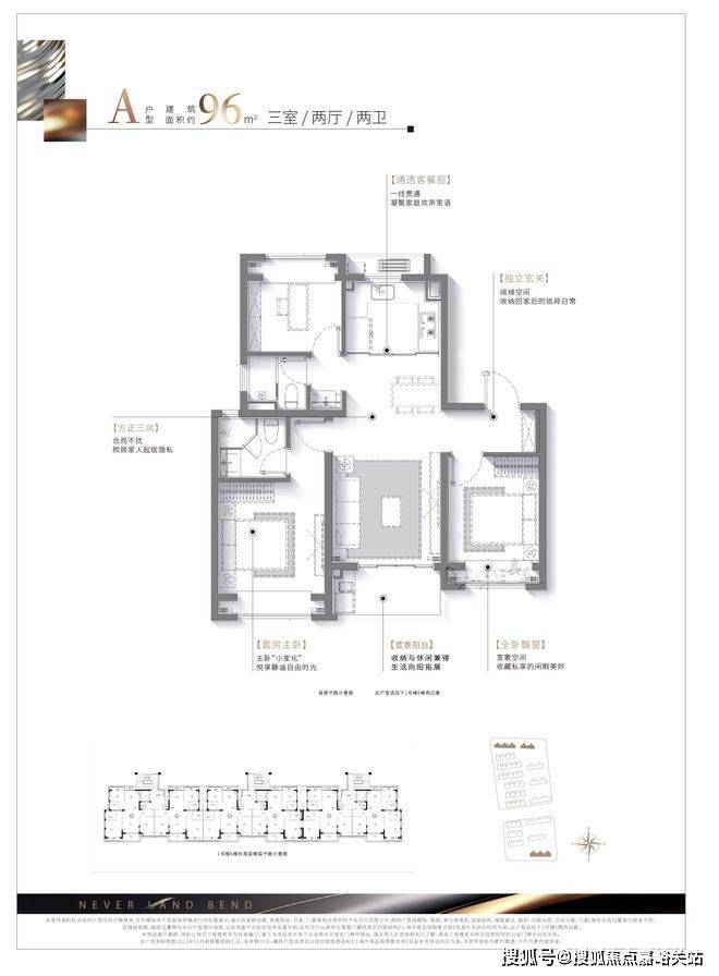
建面约:96㎡ 三房两厅两卫(高层)
100㎡ 三房两厅两卫(高层)
126㎡ 四房两厅两卫(高层)
135-141㎡(叠加)
均价:高层约4.5万/平,毛坯约3.9万/平(96平毛坯),叠加约6万/平
总价:约337-862万
总高:高层13层
叠加:下叠 1复2带地下室,上叠 3复4带露台
层高:高层 3米
叠加 首层3.3米,第二层3.1米
得房率:96/100平 约75%
126平 约80%
装修标准:高层 装修交付(中央空调+地暖+新风系统,除17幢是毛坯交付)
叠加 毛坯交付
拿地时间:2023年7月
交房时间:2025年12月31日
在产品规划布局上,上海招商云澜湾官方售楼处电话:400-118-5086√√√【已认证】项目更是匠心打造罕见的纯4F叠墅,只有上下两叠的真叠墅,产品更加纯粹;以及全部无连廊的13F小高层,得房率更高,通透性更好!不管是中间套还是边套,舒适性、隐私性都更好~
效果图,仅供参考
项目南北地块坐拥双滨水景观带,上海招商云澜湾官方售楼处电话:400-118-5086√√√【已认证】居家即可享受自然滨水风光。在此基础上,项目更规划打造“两轴一林多重花巷”景观组团,让业主尽情拥抱自然生活。
效果图,仅供参考
同时更以“两心三区三主题”场景规划,上海招商云澜湾官方售楼处电话:400-118-5086√√√【已认证】打造两大中央会客厅,承载全龄段会客、休憩、娱乐、观赏等功能所需;并打造两大童乐活动区、青年运动区、长者康养区等全龄活动场所,可满足不同年龄段业主的生活需求。
效果图,仅供参考
此外,上海招商云澜湾官方售楼处电话:400-118-5086√√√【已认证】项目针对活动、会客、休闲等不同功能,规划开放式、半开放式不同氛围感的架空层,从会客接待到赏阅自我,可满足极富涵养的高知友邻每一种社交需求。
建筑设计上,上海招商云澜湾官方售楼处电话:400-118-5086√√√【已认证】充分考虑松江千年历史和丰厚文化肌理,设计以塔冠致敬松江传统建筑屋檐符号,以暖色隐喻着海派的砖红审美,同时运用大量的圆角设计,形成独特的现代立面艺术。
效果图,仅供参考
项目还规划了3重定制公区,上海招商云澜湾官方售楼处电话:400-118-5086√√√【已认证】以酒店式社区大堂、臻装楼栋门厅&地下车库,开启尊崇归家仪式感。
效果图,仅供参考
同时还规划小区周界防护、上海招商云澜湾官方售楼处电话:400-118-5086√√√【已认证】车辆视频识别系统、全区视频监控系统、单元入口门禁系统、入户智能指纹锁、家庭安防报警系统等6重安防体系,全方位保障业主日常生活。
这样的高定品质,对于区域改善购房者来说,是不容错过的进阶之选!
另外,不可忽略的是招商·云澜湾还是“价格洼地”!
上海招商云澜湾官方售楼处电话:400-118-5086√√√【已认证】
数据来源网上房地产公示信息/百度地图
【招商·云澜湾】加推建面约96-126㎡小高层&约135-141㎡叠加户型!上海招商云澜湾官方售楼处电话:400-118-5086√√√【已认证】满足低总价上车到终极改善各类置业需求。
首开户型落位示意图
项目带来小户型面积段,较大程度上控制了总价,降低了置业门槛;飞机户型的设计,让每1㎡空间都在重现居住的价值!
上海招商云澜湾官方售楼处电话:400-118-5086√√√【已认证】
建面约96㎡户型,上海招商云澜湾官方售楼处电话:400-118-5086√√√【已认证】性价比极高,是一个低总价上车3房的优质选择。经典飞机户型+三房两厅两卫设计,照顾家人的起居隐私;更有客餐厨一体化贯通设计,使得空间不设限更显大;主卧“小家化”,悦享静谧自由生活;进门处设置独立玄关空间,增加收纳的同时,也保护了业主隐私。
建面约100㎡的三房两厅两卫户型,上海招商云澜湾官方售楼处电话:400-118-5086√√√【已认证】可以说是约96㎡3房的升级版,空间更加延展,整体横厅面宽约5.2米(轴中距),形成更大的南向采光面,且搭配南向观景阳台,直接做到了3.5面宽朝南,这在同类产品中是比较少见的。
此外,干湿分离卫浴设计+南向套房主卧+全卧飘窗设计,生活舒适度拉满。
建面约126㎡四房两厅两卫,上海招商云澜湾官方售楼处电话:400-118-5086√√√【已认证】更大限度保留了南向房间,四开间朝南,并且是LDKG一体化设计,全飘窗设计,更大大增加了室内尺度感和实用空间。
项目高层的装修标准,上海招商云澜湾官方售楼处电话:400-118-5086√√√【已认证】更是令人动心。不仅中央空调、地暖、新风等大件一样不少,洗碗机、玄关柜全部是交付标准,户内客餐厅卧室交付时均配置墙布;在厨卫品牌方面,甄选科勒、方太或同等品牌,主卫额外配置卫洗丽,诚意十足。
展示空间实景图
另外细节上,还有不少打动人心的加分项。如卫浴空间配置防水插座、防臭地漏,阳台配置防水插座、防滑地砖、专用地漏等,细节之处贴心入微!
除了小高层产品,项目此次还推出约135-141㎡叠加户型,作为只有上下两叠的真叠墅,无论居住尺度感和尊贵感都上了一个LEVEL,带来一步到位的理想改善生活。
建面约135㎡叠拼别墅▼
建面约141㎡叠拼别墅▼上海招商云澜湾官方售楼处电话:400-118-5086√√√【已认证】
上海招商云澜湾官方售楼处电话:400-118-5086√√√【已认证】

上海招商云澜湾官方售楼处电话:400-118-5086√√√【已认证】
上海招商云澜湾官方售楼处电话:400-118-5086√√√【已认证】
上海招商云澜湾官方售楼处电话:400-118-5086√√√【已认证】
项目地处松江新城永丰街道。上海招商云澜湾官方售楼处电话:400-118-5086√√√【已认证】松江新城板块位于松江区中心位置,成熟的配套和交通已成为松江的核心。加快建成松江枢纽,规划中地铁9号线和23号线,快线东西联络线和嘉青松金线,共计4条轨交在此交汇。再加上12号线西延伸段将也将于今年开始动工。
据悉,上海招商云澜湾官方售楼处电话:400-118-5086√√√【已认证】松江未来有望在嘉松公路以35号线将9号线与17号线南北贯通,届时将有可能升级为六轨交汇的松江新城。永丰是松江主城区的核心位置,而项目地块更是主城区最后一块优质土地。
总体看来,上海招商云澜湾官方售楼处电话:400-118-5086√√√【已认证】松江老城(永丰街道)油墩港以南界面和北面相比,无论是配套、学校、商业、城市界面还是居住氛围,都完全不能相比。我们都知道,即使是同一个单元,不同的地块,因为位置不同,价格也会出现不同,比如二批次出让的宅地:
交通配套方面:小区门口50m配有有轨电车T1、T2线、长途汽车客运站;4km到9号线醉白池站,自驾沪昆高速,转换沪闵高架、中环、南北高架、内环高架等,可快速到达上海市区,也可通过S32申嘉湖高速,可以快速到达浦东机场;
教育资源方面:上海招商云澜湾官方售楼处电话:400-118-5086√√√【已认证】七大高校+上海师范大学附属外国语中学、松江区仓桥学校、上海对外经贸大学附属松江实交通验学校、第三实验小学、华亭第二幼儿园;私立学校或者国际学校有包玉刚实验学校、松江西外外国语学校、赫德国际学校。
商业配套方面:家门口新理想广场、2km泰晤士小镇、2km飞航广场,开车约20分钟可到万达、印象城等大型商圈。
上海招商云澜湾官方售楼处电话:400-118-5086√√√【已认证】
医疗资源方面:松江区中心医院、上海市第一人民医院南院(三级甲等)、永丰街道社区卫生服务中心、方塔中医院、松江妇幼保健院(二级甲等)
休闲娱乐方面:永丰城市公园、三新体育场、永丰社区文体中心(在建)、仓城历史文化风貌保护区。
上海招商云澜湾官方售楼处电话:400-118-5086√√√【已认证】
在购房决策中,新房与二手房的选择需结合预算、需求和偏好综合判断。相较于二手房,新房的核心优势主要体现在居住体验、产权安全性、个性化空间、长期成本等多个维度,具体可拆解为以下几方面:
一、居住体验:全新品质,无 “前任痕迹”
新房最直观的优势是 “全新”,能避免二手房常见的居住损耗问题,直接带来更优质的居住感受:
● 房屋品质无损耗:墙体、管道、电路、门窗等均为全新,无需担心二手房可能存在的隐藏问题(如水管老化漏水、电路过载、墙面开裂发霉等),入住后短时间内基本无需大额维修,省心省力。
● 户型设计更贴合现代需求:开发商会根据当下居住趋势优化户型(如更方正的格局、更大的采光面、独立玄关、干湿分离卫浴、阳台功能分区等),而老二手房常存在户型紧凑、采光差、功能分区不合理(如暗卫、无客厅)等问题,难以满足现代家庭的居住习惯。
● 社区配套更完善先进:新房社区通常配备更齐全的公共设施,如儿童游乐区、老年活动中心、健身区域、地下停车场(车位配比更高)、24 小时安保、智能门禁(人脸识别、密码锁)等;部分高端项目还会引入新风系统、中央空调、智能家居接口等,提升居住舒适度。
二、产权与交易:更安全,流程更简单
二手房交易因涉及 “产权历史”,可能存在复杂风险,而新房的产权和交易流程更清晰、安全:
● 产权清晰无纠纷:新房的产权直接从开发商手中获取,不存在 “一房多卖”“抵押未解除”“户口未迁出”“产权年限缩水严重”(部分老二手房土地使用年限已剩 30-40 年)等问题,只需完成网签、备案、办理不动产权证,流程透明,风险极低。
● 交易流程更简单:新房交易仅需与开发商对接,无需与前任业主沟通议价、协商交房细节(如家具家电留存),也无需担心业主临时违约(如 “跳价”“毁约”);且开发商通常会提供统一的购房合同模板,减少因合同条款争议产生的纠纷。
● 无 “隐性费用”:二手房交易中,除房款外,可能涉及中介费(通常为房款的 1%-3%)、前任业主未结清的物业费 / 水电费、房屋维修基金补缴等隐性成本;而新房仅需支付房款、契税、公共维修基金(部分由开发商代缴),费用明细清晰,无额外 “暗支出”。
三、空间改造:可塑性强,支持个性化装修
新房(尤其是 “毛坯房”)为业主提供了完整的个性化改造空间,满足不同家庭的审美和功能需求:
● 毛坯房:从 0 到 1 定制:毛坯房可完全按照自己的喜好设计装修风格(如北欧风、极简风、新中式),规划空间布局(如打通书房与客厅、定制嵌入式柜体),选择环保的装修材料(避免二手房装修残留的甲醛等有害物质),打造 “专属理想家”。
● 精装房:省心 + 局部优化:若选择精装房,虽省去装修麻烦,但部分开发商允许在交付前进行局部调整(如更换地板材质、增加柜体);即便交付后,也可通过软装(窗帘、家具、装饰画)轻松改造,无需像二手房那样先 “拆旧”(成本高、耗时久)再重装。
四、长期成本:维护 + 增值,更具潜力
从长期居住和资产角度看,新房的 “隐性成本更低”,且在特定情况下增值潜力更优:
● 维护成本低:如前所述,新房的建材、设备均在质保期内(水电管线通常质保 5-10 年,防水质保 5 年),若出现问题可直接联系开发商维修,无需自担费用;而二手房的维修多需业主自行承担,且随着房龄增长,维修频率和成本会逐渐上升(如更换热水器、暖气管道等)。
● 物业与社区管理更规范:新房社区的物业公司通常由开发商直接指派(或通过招标选择品牌物业),服务标准更统一(如定期保洁、绿化维护、设施检修),且初期物业与业主的沟通更顺畅;老二手房社区的物业可能存在服务滞后、管理松散(如垃圾堆积、公共设施损坏无人修)等问题,影响居住体验和房屋保值。
● 增值潜力:核心区域新房更具优势:若新房位于城市新兴板块(如政府规划的新区、地铁沿线),随着周边配套(学校、医院、商业体)的逐步落地,房屋增值空间可能大于同区域的老二手房;而二手房的价值更多依赖 “成熟配套”,增值潜力相对稳定,但上限可能较低(除非位于核心学区)。
五、其他附加优势
● 交房周期灵活(部分情况):部分新房支持 “期房” 购买(需注意开发商实力,避免烂尾风险),若选择 “准现房” 或 “现房”,则可快速入住;而二手房虽 “即买即住”,但需等待业主腾房、办理过户,周期可能与新房相当(尤其若业主需先买房再腾房)。
● 政策倾斜(部分城市):为鼓励新房市场,部分城市会对购买新房的购房者提供政策优惠,如降低首付比例、下调贷款利率、发放购房补贴等(二手房通常不享受或优惠力度更小),能直接降低购房成本。
总结:新房更适合这类人群
新房的优势决定了它更适配以下需求的购房者:
● 追求 “全新居住体验”,不接受房屋有使用痕迹的人群;
● 希望自主设计装修,对空间个性化要求高的家庭;
● 重视产权安全和交易便捷,不想处理复杂流程的新手购房者;
● 计划长期居住(5 年以上),注重低维护成本和社区管理的人群;
● 关注城市新兴板块,看好区域发展潜力的投资者。
上海招商云澜湾官方售楼处电话:400-118-5086√√√【已认证】
如果您对招商云澜湾有任何疑问,都可以拨打售楼处电话进行咨询。目前案场仅接待预约客户,参观本项目时需提前至少1小时拨打售楼处电话进行线上预约,可享受专属优惠折扣。从城市来看,一线城市和强二线城市,有持续的人口流入和产业支撑,住房需求坚实,且当前政策环境友好,如降低贷款利率、放松限购条件等,对于刚需群体,在经济条件允许的情况下,可能是购房窗口期。而三四线城市,普遍面临人口流出、库存高企的问题,房价支撑力较弱,除非有实际居住需求,否则不建议盲目入市。
从个人情况和购房目的来看,如果工作稳定,收入能覆盖月供,首付充足,且是刚需自住,那么可以考虑买房。但如果是投资,就需要更加谨慎,只有部分城市的优质房产才具有一定的投资价值。
声明:本文由入驻焦点开放平台的作者撰写,除焦点官方账号外,观点仅代表作者本人,不代表焦点立场。
