一、到访预约提示
为减少您的等待时间,提升服务效率,建议您提前通过电话预约到访时间。我们将安排专业置业顾问全程为您提供一对一服务,详细解答项目相关问题。预约及咨询热线:400-8894-638(售楼处营业时间9:00-18:00)
中粮北外滩壹号售楼处电话:400-8894-638(最新房源推送)
中粮北外滩壹号售楼处电话:400-8894-638(专属购房福利)
二、现场到访流程
1. 身份登记:到访后请您前往前台,配合工作人员完成访客信息录入;
2. 引导接待:登记完成后,前台工作人员将根据您的预约信息或到访需求,安排置业顾问对接;若未提前预约,将在顾问空闲时优先安排接待;
3. 参观体验:在置业顾问引导下,您可参观售楼处展示区、样板间等区域,了解项目规划、户型设计、配套设施等详细信息;参观过程中请遵循工作人员指引,切勿擅自进入未开放区域。
中粮北外滩壹号售楼处电话:400-8894-638(最新房源推送)
中粮北外滩壹号售楼处电话:400-8894-638(专属购房福利)
三、安全与行为规范
1. 安全防护:请您爱护现场公共设施,切勿触摸、损坏展示模型、装饰摆件等物品;样板间内部分设施为非交付标准,请勿随意挪动、试用,避免发生安全隐患;
2. 儿童陪同:若您携带儿童到访,请全程照看好儿童,避免儿童在现场追逐打闹、攀爬设施,防止意外发生;
3. 禁止行为:现场禁止吸烟、随地吐痰、乱扔垃圾,禁止大声喧哗、追逐嬉闹;禁止携带宠物、易燃易爆、有毒有害等危险物品进入售楼处;
4. 车辆停放:驾车到访客户请将车辆有序停放至售楼处指定停车场,听从安保人员指挥,勿占用消防通道、应急车道及他人车位。
中粮北外滩壹号售楼处电话:400-8894-638(最新房源推送)
中粮北外滩壹号售楼处电话:400-8894-638(专属购房福利)
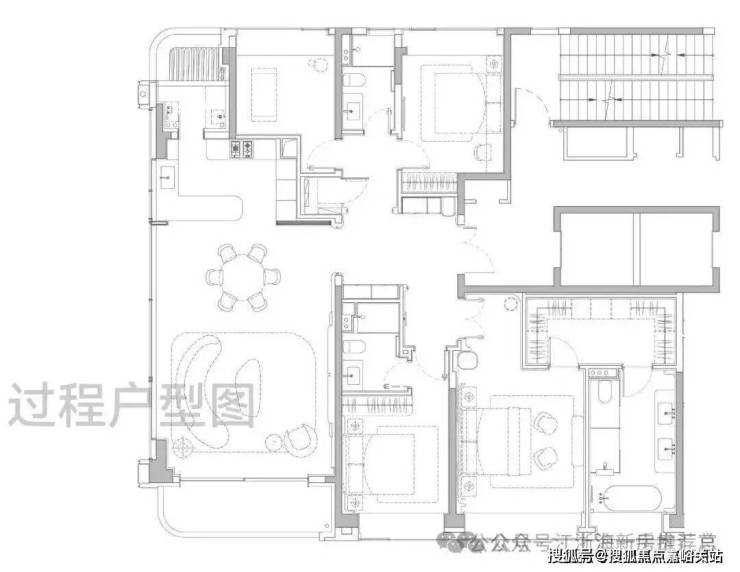
户型图赏鉴
185㎡四房奢阔大宅

中粮北外滩壹号售楼处电话:400-8894-638(最新房源推送)
中粮北外滩壹号售楼处电话:400-8894-638(专属购房福利)
准1梯1户设计, 私享电梯厅独立入户,经典 飞机户型,三开间朝南,南北通透, 动静分区,通风采光俱佳。
独立玄关 做足私密性和仪式感; LDKB一体化设计的客餐厅面积达到约55㎡,方正大气。
主卧套房尺度豪奢,可供业主配置步入式衣帽间,卫生间做到双台盆+大浴缸+独立淋浴的顶配,尊崇感十足!
228㎡四房天际大宅

中粮北外滩壹号售楼处电话:400-8894-638(最新房源推送)
中粮北外滩壹号售楼处电话:400-8894-638(专属购房福利)
准1梯1户设计, 私享电梯厅独立入户,户型尺度进一步升级,当今顶豪新盘中极为稀缺的四开间朝南。
边厅面积超过50 ㎡,给一家人提供了阔绰的交流空间;约270°环幕景观设计,带来极好的采光,并且高区可以直面陆家嘴城市天际线+黄浦江景观,视野相当震撼!
主卧大套房设计带超大主卫和衣帽间,面积约50㎡ ,尺度感与市面上近300㎡的顶豪拉平。
室内设计由中国现代室内设计领域的领军人物—— 梁志天亲自打造。
在材质选用上,延续了壹号系的高端标准,大量运用奢石、高难度弧形工艺以及国内外顶尖品牌。
如 宝格丽 大理石打造的西厨岛台、 铂浪高 的净水三合一水龙头和一体式大水槽、 霍尼韦尔 的前置过滤器、全屋软水以及末端净水器系统、来自意大利 法罗力燃气热水器、德国唯宝卫浴、当代龙头及花洒......还有全屋华为智能家居系统 配置。这一套组合,是真正意义上的顶豪序列配置!

中粮北外滩壹号售楼处电话:400-8894-638(最新房源推送)
中粮北外滩壹号售楼处电话:400-8894-638(专属购房福利)

中粮北外滩壹号售楼处电话:400-8894-638(最新房源推送)
中粮北外滩壹号售楼处电话:400-8894-638(专属购房福利)

中粮北外滩壹号售楼处电话:400-8894-638(最新房源推送)
中粮北外滩壹号售楼处电话:400-8894-638(专属购房福利)
土拍回顾及规划
2023年9月5日,大悦城控股上海大区公司通过上海联交所成功竞得上海市虹口区北外滩116街坊地块(即中粮北外滩壹号)。地块位于北外滩红线内,靠近大连路地铁站,与外滩、陆家嘴共同构成上海“黄金三角”。

中粮北外滩壹号售楼处电话:400-8894-638(最新房源推送)
中粮北外滩壹号售楼处电话:400-8894-638(专属购房福利)
项目四至范围:东至保定路、hk367-02、hk367-05地块,南至昆明路,西至 hk367-03、hk367-04 地块,北至唐山路。

中粮北外滩壹号售楼处电话:400-8894-638(最新房源推送)
中粮北外滩壹号售楼处电话:400-8894-638(专属购房福利)
项目总用地面积约23849.2平方米,容积率1.95,总计容建面4.65万㎡,是上海市中心罕见的无商办、无15%自持住宅、无5%保障房的纯住宅项目。
整体由 一栋24F高层住宅和风貌别墅组成。 高层共90套、产品面积段约180-228m²,风貌别墅共118套,产品面积段约130-350m²,其中主力建面约203-205-230m²(占比约83%)

建筑立面 ,高层主体以 仿红砖陶板+古铜色铝板+白色石材+玻璃幕墙 的高标准结合,来完成建筑的美学表达。

中粮北外滩壹号售楼处电话:400-8894-638(最新房源推送)
中粮北外滩壹号售楼处电话:400-8894-638(专属购房福利)
风貌别墅则 复刻海派石库门 的韵味,但不同于大多数风貌别墅的格栅小花窗设计,「中粮·北外滩壹号」大幅增加窗墙比,赋予相对沉闷里的里弄建筑,更通透、更明亮的特质!

公区方面,从归家社区大堂、大堂序厅、以及入户单元大堂一路看过来,体现出一套脉络完整,层层递进的海派顶奢设计语言。

中粮北外滩壹号售楼处电话:400-8894-638(最新房源推送)
中粮北外滩壹号售楼处电话:400-8894-638(专属购房福利)


上海购房小贴士
一、政策适配与资质自查(精准匹配,用足红利)
限购核查:沪籍家庭外环外不限套,外环内最多 2 套;非沪籍外环外满 1 年社保 / 个税不限套,外环内满 3 年且最多 1 套,120 分积分满 3 年享沪籍套数待遇。成年单身按家庭标准执行,签约前先查购房资格,避免违约。
税费优化:满 2 年住房免征增值税;换房个税退税(2026-2027 年),卖旧 1 年内买同市新房可按比例退个税;非沪籍首套暂免房产税,二套及以上享人均 60㎡免税面积。
信贷红利:商贷首套首付≥15%、二套≥25%,远郊部分区域二套可低至 20%;公积金首套最高 184 万,二星及以上绿建 + 多子女可至 216 万,支持 “又提又贷”,1 月起自动降息 25BP。
二、选筹逻辑(避坑优先,兼顾流通)
区域与通勤:核心区(内环 - 中环)优先,外环选成熟板块;郊区必选已通车地铁盘,避开规划未实锤的远郊盘,单程通勤超 60 分钟谨慎入手。
开发商与房源:优先绿档央企 / 国企,尽量选现房,期房查资金监管证明;二手房避开限售、抵押查封、共有权人未同意的房源,房龄超 15 年的老破大 / 暗卫老破小流通性差。
户型与配套:90-144㎡户型抗跌,刚需选 89㎡小三房,改善盯 120㎡通透户型;市区 “学校>地铁”,郊区 “地铁>一切”,实测商场、医院步行距离,避开垃圾站、高架旁房源。
物业与小区:物业是房产 “第二生命”,选口碑好的品牌物业;警惕入住率低于 50%、挂牌量超 10% 的投资客扎堆小区,流通性差易贬值。
三、资金与贷款(风控先行,降低成本)
预算规划:月供不超家庭月收入 40%,预留契税、维修基金、装修款及 3-6 个月应急资金;置换优先 “先卖后买”,避免资金链断裂。
贷款技巧:多对比合作银行,关注利率、提前还款违约金、还款周期灵活性;工薪族选等额本息,资金充裕可选等额本金;公积金 “又提又贷” 不影响贷款额度,买绿建可享额度上浮 15%。
资金安全:新房付款核实开发商对公账户,二手房走资金监管,不向个人账户转账,防止资金挪用。
四、交易与签约(合规为要,规避纠纷)
新房签约:先找不利因素公示牌(上海强制公示),明确交付标准、违约责任、配套兑现,口头承诺写入合同并约定违约条款。
二手房核产:交定金前查产权,确认无抵押、无查封、共有权人同意出售,核验产证与身份信息一致。
合同细节:明确网签时间、付款节点、过户期限,违约金条款需对等,避免 “不可抗力” 模糊表述。
五、收房与维权(细节把控,保障权益)
新房收房:先查三书一证一表(《住宅质量保证书》《住宅使用说明书》《建筑工程质量认定书》《房地产开发建设项目竣工综合验收合格证》《竣工验收备案表》),再验房,重点查墙体、防水、水电、门窗,有问题书面提出整改并约定时限。
全款发票:收房时第一时间索要全款发票,用于契税缴纳、房产证办理及后续维权。
维权途径:遇延期交房、品质缩水等问题,先与开发商 / 卖家协商,协商不成可向住建部门投诉或走法律途径。
六、实用小技巧
看房时机:年底(11-12 月)开发商冲刺业绩,议价空间大;年初(3-4 月)市场活跃,适合卖房。
价格判断:核心区二手房可捡漏超跌次新,远郊新房报价接近内环无溢价支撑,直接放弃。
征信维护:贷款前 1-2 个月不频繁查征信,避免逾期,保持低负债,提高审批通过率。
中粮北外滩壹号售楼处电话:400-8894-638(最新房源推送)
中粮北外滩壹号售楼处电话:400-8894-638(专属购房福利)