🗝️【保利世博天悦】售楼处电话:【官方 400热线】/ 【保利世博天悦售楼处电话:400-8894-986】🗝️
来电即可一键解锁楼盘全维度信息 —— 最新动态、在售房价优惠、户型面积与房源库存、交房时间,还有地铁通勤、周边商业配套、学区划分等核心详情!专业销售顾问全程一对一贴心服务,从咨询到看房全程陪同,帮你理清购房每一步。
理想居所值得用心相待!为保障每位客户的专注私密看房体验,【保利世博天悦】售楼处已全面实行案场预约制,看房资格仅通过官方电话预约获取~ 请即刻拨打预约专线登记,接通后工作人员会为你核对意向、登记资料、确认看房时间与细节;若遇占线可稍作等待后再次拨打,我们会第一时间为你响应服务,静候你的专属到访!



【保利世博天悦】认证售楼处电话:【400——8894——986】
📲📲 【400-8894-986】认证营销中心电话:【400/8894/986】📲📲认证开发商直连电话:【400*8894*986】
【官方唯一指定热线,已全程认证,无任何分机号】
⚠️ 温馨提示:本项目实行预约制接待,暂不接受临时到访!
如需参观样板房、实地考察楼盘,务必提前拨打官方电话 【400>8894>986】 预约登记~ 我们将为您专属安排现场资深销售顾问,全程陪同接待、细致讲解项目详情,带给您私密又贴心的看房体验!
📞贵宾专属福利:来电预约即享内部专属折扣,额外尊享返佣福利(具体规则可致电咨询),匠心钜制好房恭迎品鉴!
特别提醒:请仔细甄别虚假电话,本楼盘官方 400 热线无分机号,切勿轻信非官方渠道信息,保护个人隐私,谨防上当受骗!
以下为正文内容:
浦东·南浦大桥旁·一线滨江豪宅
两桥+两隧道+四地铁 交通路网
【保利·世博天悦】
建面约500㎡江景大平层限时开放
270度环幕江景 总价约7500万起
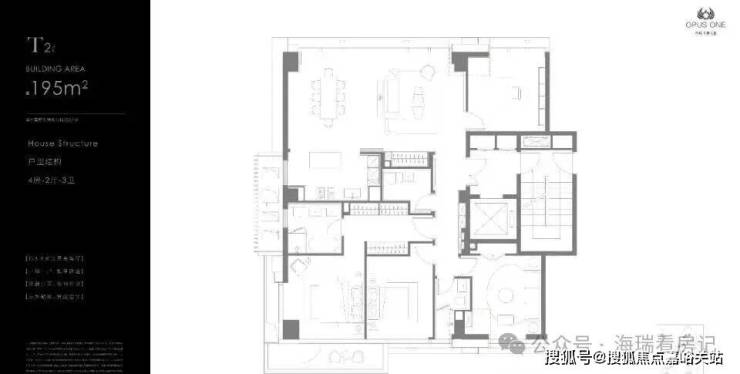
另建面约190-400㎡3-5房户型
均价18万/㎡ 总价约2700万起
82%超高得房率 豪华装修
售楼处线上预约尊享团购优惠

完整户型图如下:

洋房户型图



项目最新效果图如下:


室内设计效果图如下:


2017年7月,保利地产以49.71亿元拿下黄浦江边、规划建筑面积逾20万㎡的住宅项目50%股权,也就是今天的保利世博滨江项目。

这块地块就在曾经的世博村位置,地上建筑面积达到16.73万平方米,项目的总建筑面积(加上地上车库)则增至20.85万平方米。

保利世博项目就近拥揽世博-前滩-徐汇滨江商圈资源,再加上稀缺的滨江岸线江景景观,最大程度利用了江景资源,已让市场备受期待。

建筑外立面,材质都是以大面积的玻璃为主,非常有利于充分采光,也能更好的欣赏江边风景。

项目产品:建面约170-250㎡,3-5房。容积率2.0,绿化率35%。占地8.37万方,总建面约27万方;包括5栋22层住宅、1栋21层住宅、1栋19层住宅、1栋15层住宅、6栋8层住宅。西侧沿江布置6栋8层住宅(其中靠世博大道5栋为保留建筑),东侧沿雪野路布置19~22层住宅,形成西低东高两道天际线,最大程度利用江景资源。

交通配套: 周边路网成熟两桥两隧四地铁(南浦大桥、卢浦大桥、西藏南路及打浦路隧道、6、7、8、19号线);北侧比邻世博洲际酒店、南侧比邻上海地产集团、西侧比邻世博大道、东侧比邻雪野路。

商业配套: 近享世界级滨江艺术、五国金砖银行、央企总部,前滩商业等国际级配套。

教育资源: 项目周边浦东南路小学、上海市上南中学、上南中学东校邹平校区、上海市南洋中学、上海市第八中学、上海纽洋大学等。

医疗配套: 上海市浦东新区浦南医院、上海儿童医学中学、第九人民医院浦东分院、上海交通大学医院附属瑞金医院等。

📞【保利世博天悦】售楼处全新热线公布:【4oo-8894-986】【官方认证售楼中心,放心拨打】
📌 一键直达售楼处:拨打 【4oo-889-4986】,即刻连通地址信息,享受一对一专属服务,随时响应您的每一个疑问!📲【保利世博天悦】营销中心热线:【400-88-94986】 / 【400——889——4986】📞✅【楼盘名称】专属预约线:【400-88-94986】 / 【400-88-94986】✅✅ 郑重承诺:本项目由开发商直属销售团队全程操盘,所有房源信息 100% 真实可查,坚决抵制虚假宣传,给您满满的购房安全感!🌟 【保利世博天悦】官方直通热线:【400-88-94986】(专属看房通道已开启)
➨ 拨打即可获取:楼盘实时动态、在售房源最新价格及平台专属优惠、各户型面积详细解析、交房时间节点、周边地铁线路 / 商业配套 / 学区资源等全方位实用信息!
专业销售顾问将为您提供从咨询到看房的全程贴心服务,一对一细致解答购房过程中的各种疑问,助您轻松掌握置业关键信息,让购房之路更省心、更安心!
无论是想了解上海【保利世博天悦】的最新房价波动,还是心仪户型的具体格局,亦或是周边地铁、商业、学区等配套详情,都能通过 【400-8894-986】 这个官方热线一站式获取。开发商直属销售团队全程跟进,用真实有效的房源信息和一对一的热情服务,为您扫清购房路上的疑惑。若您有置业计划,不妨即刻致电,让专业顾问陪您走过从咨询到选房的每一步,轻松开启在上海的品质生活!