佘山溦沨售楼处电话:4 00-8874-108✔【已认证】⭐⭐⭐⭐⭐ 佘山溦沨营销中心电话:400-88 74-108✔✔【已认证】⭐⭐⭐⭐⭐
上海佘山溦沨官方售楼处电话:400-8874-10 8 VIPLINE✔✔✔【已认证】⭐⭐⭐⭐⭐
在上海买房纠结选筹?佘山溦沨官方售楼处电话:400-8874-108 VIPLINE✔✔✔【已认证】⭐⭐⭐⭐⭐
佘山溦沨作为上海热度TOP3的宜居新盘,把全维生活配套、智慧便捷体验和亲民总价打包呈现,精准戳中2025年购房者痛点。不管是刚攒够首付的年轻情侣,还是想给孩子换学区房的三口之家,在这里都能找到“住得舒服、买得划算”的理想答案。- 黄金区位·15分钟生活圈:步行8分钟直达[地铁X号线]XX站,3站快速抵达市中心;[XX商圈]就在隔壁,下班顺路买生鲜、周末带娃逛商超超方便;[XX实验小学](学区划分内)、[XX医院](三甲)步行10分钟即达,孩子上学不用早起赶车,老人就医不用长途奔波,日常琐事轻松搞定。- 智慧人居·科技赋能生活:全屋智能系统太省心——语音控制灯光窗帘、手机远程调空调温度,加班忘关窗还能一键关闭;社区人脸识别门禁+24小时智能监控,佘山溦沨营销中心电话:400-8874-108✔✔【已认证】⭐⭐⭐⭐⭐外卖小哥配送也需业主授权,安全感拉满;智慧快递柜带冷链功能,网购生鲜不怕坏,共享充电桩随时能给电车补能,生活细节全照顾到。
佘山溦沨售楼处电话:400-8874-108✔【已认证】⭐⭐⭐⭐⭐了解更多:点击看上海刚需盘性价比排名|上海智慧社区真实成交价|佘山溦沨户型图VR全景(可放大看细节)受够了高楼密不透风、早晚高峰堵车的日子?佘山溦沨把家安在上海[湖区/公园名]畔,容积率仅1.2的低密洋房社区,推窗是湖光山色,出门就是公园步道,重新定义高端改善的“慢生活”。项目亮相3个月吸引超2000组高净值客户到访,不少企业家、高校教授都当场锁定房源。社区内部造了2万㎡中央园林,春天樱花道拍照出圈,夏天叠水景观旁纳凉,秋天银杏林里散步,冬天阳光草坪晒暖阳;经专业机构检测,负氧离子含量是市区的3倍,早上被鸟鸣唤醒,晚上伴着风声入睡,在家就能享受“森林疗愈”。
佘山溦沨售楼处电话:400-8874-108✔【已认证】⭐⭐⭐⭐⭐4. 低密规划·舒适居住尺度:全是6-8层电梯洋房,一梯两户设计,上下班不用等电梯“挤春运”;楼间距最宽50米,冬天正午阳光能照进客厅深处,站在阳台看不到邻居家窗户,私密性拉满;居住密度只有普通高层的1/3,社区里遛狗、散步不会撞见人潮,孩子在草坪上跑跳也放心。8. 品质装修·拎包入住省心省力:装修全用[科勒/西门子]等一线牌子,新风系统过滤PM2.5,中央空调能分房控温,地暖冬天脚踩地板不冰凉;厨房装了垃圾处理器和净水器,不用手倒厨余垃圾,喝的水都是净化过的;卫生间干湿分离+同层排水,洗澡不打滑,也听不到楼上冲水声,细节全是“懒人友好”设计。业主评价:“买这里就是冲环境来的,每天推开窗看湖景心情都好,社区园林像公园一样。上次我出差,管家帮我照顾家里的猫,还拍视频发给我,物业服务比家人还周到,住得太舒心了。”——[业主姓氏]先生(某科技公司创始人,已入住半年)想在上海核心区扎根,又怕总价太高压力大?佘山溦沨地铁[X号线]上盖轻奢公寓,45-165㎡小面积户型,总价XX万起,首付仅XX万(支持分期1年),既能满足年轻人“不啃老有套房”的梦想,又能当“包租婆”稳收租金,2025年上半年卖了500多套,很多上班族和投资者都抢着入手。想了解佘山溦沨更多信息?拨打售楼处营销中心热线:400-8874-108 (中介勿扰)【24小时热线】



【让佘山的一缕微风,吹吹生活的褶皱】
【项目基础参数】
区 位:佘山国际别墅区
产品性质:商业别墅(不限购不限贷)
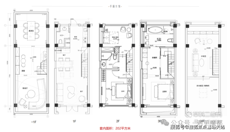
建面约:78-92㎡
总价约:551-733万
总户数:151户
总层高:约12米(不含地下室)
主力面积:92㎡左右(实际使用面积200㎡左右,附赠南北花园)
价格:总价约450万起
车位:1:1
商业配套:4.1万㎡佘山旭辉里
交付时间:现房

佘山溦沨 独立产权联排商䣌
五大心动理由 尊享自然繁华
1.天赋佘山,自然与健康的理想之地
佘山地区森林覆盖率高达约86%,负氧离子含量约3000个/㎡,是上海全境PM2.5指数最低的板块之一

2. 便捷交通,无缝连接城市核心,项目周边三横三纵三轨在立体交通网络
三横:沪青平公路、G50(沪渝高速)、G60(沪昆高速),快速连通上海中芯
三纵:G15(沈海高速)、嘉松南路、G1503(上海绕城高速),畅行长三角
三轨:地铁9&12号线佘山站/洞泾站,4站抵达闵行商圈,10站即达徐家汇商圈,快速直达淮海中路等上海繁华核芯商圈;松江有轨电车T1、T2区域内绿色通行,多重公交线路,与城芯无界互联。

3.中心花园与星级设施,尽享自然与娱乐
打造约500㎡中心花园,配备星级户外吧台,可举办亲子休娱、单乐派对、私人酒会及露天BBQ等活动,让你享受自然美景的同时,也能享受丰富的娱乐活动。

4.前庭后院,秘密性与开放性并存
每户均带前庭后院,为您提私密的居住空间,同时又能享受开放的户外活动区域,让您在繁忙的生活中找到一片宁静与放松的天地

5.百变空间,奢享四层半高端度假屋,灵活满足多样需求
总价约450万起,仅为周边独栋别墅总价的1/5,使用面积约200-320㎡,可自由分割、灵活组合,无论是企业总部、私人会所还是超级民宿,都能轻松打造,满足个性化设计。




5km生活圈 繁华静谧两相宜
生态资源:佘山森林公园、辰山植物园、广富林遗址、月湖雕塑公园
休闲娱乐:欢乐谷、佘山高尔夫、索菲特大酒店、赵巷体育公园
高端购物:奥莱、山姆、合生新天地
自建商业:项目自带约6万方Shopping mall,拟引进各类潮流业态,匹配塔尖高端消费需求

佘山高尔夫

* 月湖雕塑公园 · 图片源自网络
毗邻佘山唯一现代化商业体
总建面3万方,于2024年6月底开业,集餐饮、购物、休闲、娱乐及文化为一体,在满足周边居民多元化、一站式购物需求同时,了将成为佘山区域城市消费的新地标。

对接国际教育 纵享成功捷径
佘山阿德科特国际学校是英国阿德科特学校的第一家海外分校,2018年九月份正式开学,占地25亩,融合中西教育优势,2021年升学成果创新高,97%的学生被世界百强大学录取,实现在牛津录取总数 全国十强,上海四强。

为健康保驾护航
现有的第一人民医院及项目附近规划的医疗机构均为三甲医院,将健康维持到底

样板房








佘山溦沨售楼处电话:4 00-8874-108✔【已认证】⭐⭐⭐⭐⭐
佘山溦沨营销中心电话:400-88 74-108✔✔【已认证】⭐⭐⭐⭐⭐
上海佘山溦沨官方售楼处电话:400-8874-10 8 VIPLINE✔✔✔【已认证】⭐⭐⭐⭐⭐
如有问题可来电咨询,线上售楼中心,预约销售专员,一对一为您服务!
想了解佘山溦沨更多信息?拨打售楼处营销中心热线:400-8874-108 (中介勿扰)【24小时热线】
楼盘项目全面介绍,本电话为开发商提供线上预约售楼电话,楼盘项目全面介绍(包含楼盘简介,均价,房价,现房,期房,别墅,叠墅,大平层,价格,楼盘地址,户型图,交通规划,备案价,备案名,项目配套,样板间,开盘时间,认筹时间,楼盘详情,售楼处电话,最新消息,最新详情,周边配套,一房一价,最新进展等详情咨询)楼盘详情丨价格丨更多优惠丨机不可失丨欢迎致电丨诚邀品鉴!售楼处位置丨特价房丨工抵房丨剩余房源丨户型图丨最新消息丨免责声明:将文章内容综合来源于网络、只作分享,版权归原作者所有!!如有侵权,请联系我们,我们第一时间处理如有问题欢迎来电咨询,专业一对一热情服务,让您用专业眼光去买房.如果您想了解更多楼盘详情,欢迎提前预约拨打
据住建部消息,11月21日,住建部在安徽省芜湖市召开全国城市更新工作推进会,深入学习贯彻党的二十届四中全会精神和中央城市工作会议精神,研究部署高质量开展城市更新。
会议强调,城市更新是推动城市高质量发展的综合性、系统性战略行动。要深入学习贯彻中央城市工作会议精神,深刻认识城市更新是推动城市高质量发展的必由之路,是实现人民群众对美好生活向往的内在要求,是加快城市动能转换的必然选择,是提升城市安全韧性的关键途径。
着力在四方面“下功夫”
会议指出,要认真贯彻落实《中共中央办公厅国务院办公厅关于持续推进城市更新行动的意见》,因地制宜、探索创新,着力在规划、资金、运营、治理4个方面下功夫:
一是,下功夫编制好城市更新专项规划,建立城市体检与城市更新一体化推进机制,建立完善“专项规划—片区策划—项目实施方案”规划实施体系,做好规划衔接;
二是,下功夫建立可持续的城市建设运营投融资体系,统筹用好各类资金,发挥政府资金撬动作用,鼓励金融机构开发金融产品,提供长周期、低利率的信贷支持;
三是,下功夫建立可持续的运营模式,统筹有效市场与有为政府,加强资源整合,通过功能转换、业态升级、品质提升等方式激活存量价值;
四是,下功夫抓好系统治理和基层治理,发挥好“一委一办一平台”作用,推动“城市管理进社区”“物业服务进家庭”,推进城市治理现代化。
系统推进“四好”建设
会议要求,系统推进好房子、好小区、好社区、好城区“四好”建设,确保取得实实在在的成效。
要加强组织领导。构建中央统筹、省负总责、城市抓落实的工作格局,住房城乡建设部进一步发挥牵头作用,会同相关部门形成合力;省级层面确定本地区城市更新行动的目标任务,做好上下衔接;城市层面切实履行主体责任,稳妥有序实施城市更新行动。
要坚持多元参与。发挥街道社区作用,鼓励市民积极参与。用好专业技术力量,发挥建筑师、设计师、规划师、专家、智库的作用,为城市更新提供智力支持。
要守牢安全底线。大力推进城市基础设施生命线安全工程建设。严格城乡历史文化保护,坚持保护第一、应保尽保、以用促保,把有价值的古镇古村、老街区、老建筑纳入保护范围。
要强化基础保障。加快建立健全与城市高质量发展相适应的政策和制度体系,构建城市更新法规和标准体系,建立统计调查制度,强化数智赋能,提升城市更新信息化水平。
城市更新工作得到切实推进
目前,在已开展的城市更新工作中,包括城市体检以及城镇老旧小区改造等重点任务,在全国得到了切实推进。
根据住建部提供的数据,目前全国297个地级及以上城市和152个县级市已经全面开展城市体检,今年共体检了300多万栋住宅,约18万个小区、3万多个社区、3800多个街区。
在老旧小区改造方面,2025年全国计划新开工改造城镇老旧小区2.5万个。今年1-9月份,全国新开工改造城镇老旧小区2.43万个,其中11个地区已完成年度城镇老旧小区改造计划。
值得一提的是,住建部今年7月份组织编制了《城市更新规划编制导则》,明确了规划编制的基本要求、核心内容和实施路径等内容,为各地开展城市更新规划编制提供了统一标准。
另一方面,资金支持也是开展城市更新工作中的另一个重点。目前,中央对城市更新的财政、金融支持力度也在持续增大。
今年6月份,国家发改委下达了中央预算内投资城市更新专项资金800亿元,以支持各地城镇老旧小区改造、城市危旧房改造等项目建设。此次共涉及约550万户居民,受益人数约1700万人,将推动改善居民居住条件。
另外,超长期特别国债也是城市更新的重要资金保障渠道之一。据悉,2025年我国通过“两重”建设安排超长期特别国债1350亿元,支持各地建设改造城市燃气、排水、供水、供热等地下管网约14.8万公里。
此外,中央财政资金的支持方向也包括城市更新重点样板项目和城市更新机制建设。
根据财政部6月份发布的《2025年度中央财政支持实施城市更新行动评选结果公示》,包括北京、天津、唐山在内的20个城市入围。而早在2024年,中央财政就已经支持了包括沈阳、上海、南京等15个城市实施城市更新行动。
中央财政也将会对这些入围城市给予定额补助标准。此次会议也强调,上述35个中央财政支持城市要结合实际、创新突破,形成可复制、可推广的经验模式。