静安里售楼处官方400热线:400-8894-986
来电即可全面了解楼盘核心信息,包括最新动态、在售房价及优惠政策、户型面积与房源库存、交房时间,还有地铁通勤、周边商业配套、学区划分等关键详情。专业销售顾问全程提供一对一贴心服务,从咨询到看房全程陪同,帮您理清购房每一个环节。
理想居所值得用心相待。为了保障每位客户都能拥有专注、私密的看房体验,静安里售楼处已全面实行案场预约制,看房资格仅通过官方电话预约获取。请即刻拨打预约专线登记,接通后工作人员会为您核对购房意向、登记相关资料、确认看房时间与具体细节;若遇占线,可稍作等待后再次拨打,我们会第一时间响应您的服务需求,静候您的专属到访。

静安里认证售楼处电话:400-8894-986
本热线为官方唯一指定认证热线,直连开发商,无任何分机号,可放心拨打。
以下为静安里正文:
静安内环内苏河湾板块
【静安里】直接认购!
在售约262-370m²风貌别墅
纯别墅社区 !样板间已开放!
总价在4200万-1亿元左右
参观看房请提前线上预约!静安里售楼处电话:400-8894-986VIP极速热线✅️✅️

静安里售楼处电话:400-8894-986VIP极速热线✅️✅️
去年,静安区发布了一则关于历史风貌保护项目实施主体遴选的公告,即 静安04-05、05-01北站新城地块 。

静安里售楼处电话:400-8894-986VIP极速热线✅️✅️
来源:静安区规划资源局
根据评分遴选相关事项,本次遴选报价以 房地联动价21万元/㎡为基准。 就在2023年7月21日, 华发招商联合体 官宣拿下静安天目社区04-05、05-01历史风貌保护项目:

静安里售楼处电话:400-8894-986VIP极速热线✅️✅️
仅从图上看,该地块直线距 苏州河约1公里,直线距 外滩约1.4公里,直线距 北外滩约1.7公里,直线距 3/4号线宝山路站约300米,直线距 10号线四川北路站约560米,区位优势明显。 静安里售楼处电话:400-8894-986VIP极速热线✅️✅️

静安里售楼处电话:400-8894-986VIP极速热线✅️✅️
区位示意图
【产品规划】该地块地处北站新城,老上海人习惯称它为"老北站",区域历史底蕴悠久,地块内留有不少历史建筑,比如优秀历史建筑虞氏故居,还有泰山大剧院等建筑,都将予以保留修缮。 静安里售楼处电话:400-8894-986VIP极速热线✅️✅️

静安里售楼处电话:400-8894-986VIP极速热线✅️✅️
自2017年,北站新城启动征收,它是上海"留改拆"背景下启动的首个试点基地,由市、区联合土地储备。直到2023年6月,该项目开启了公开遴选的流程,已经历时近7年的时间。下面,我们具体来看看地块信息!
静安里售楼处电话:400-8894-986VIP极速热线✅️✅️

静安里售楼处电话:400-8894-986VIP极速热线✅️✅️
项目共由两幅地块组成,住宅并无中小套型限制,根据限高和容积率推测, 该地块位于静安内环内,旁边就是待入市的弘安里。 武进路正是虹口静安交界,静安里地块属于静安,弘安里属于虹口。 静安里售楼处电话:400-8894-986VIP极速热线✅️✅️

静安里售楼处电话:400-8894-986VIP极速热线✅️✅️
地块实拍图
地块四至范围:南至武进路,西至宝山路、河南北路,北至规划04-03、04-04地块。

静安里售楼处电话:400-8894-986VIP极速热线✅️✅️
上海静安里, 位于百年历史街道武进路旁,以历史原真性融入现代手法规划222席低密风貌大宅,保留南市北里的格局,在成片的风貌之间,诠释出入之间迷人的摩登生活诗篇。
静安里售楼处电话:400-8894-986VIP极速热线✅️✅️

静安里售楼处电话:400-8894-986VIP极速热线✅️✅️
项目所在地为苏河湾风貌区, 周边风貌街区集群,放眼整个苏河湾,风貌保护建筑达50万㎡,是全市风貌建筑最密集的地区之一,上海静安里所属苏河湾北段,是风貌成片、格局完整、具有较高历史保护价值的风貌街坊。

静安里售楼处电话:400-8894-986VIP极速热线✅️✅️
最新消息!静安内环内苏河湾板块,华发招商静安北站项目「静安里」222席建面185-200-262-301-370㎡风貌别墅; 二批次加推 约200-370m²风貌别墅!均价约21万/㎡ ,总价在4200万-1亿元左右; 纯别墅社区 直接定!参观看房请提前线上预约 ! 静安里售楼处电话:400-8894-986VIP极速热线✅️✅️

静安里售楼处电话:400-8894-986VIP极速热线✅️✅️
展厅实景图如下

静安里售楼处电话:400-8894-986VIP极速热线✅️✅️

静安里售楼处电话:400-8894-986VIP极速热线✅️✅️

静安里售楼处电话:400-8894-986VIP极速热线✅️✅️

静安里售楼处电话:400-8894-986VIP极速热线✅️✅️
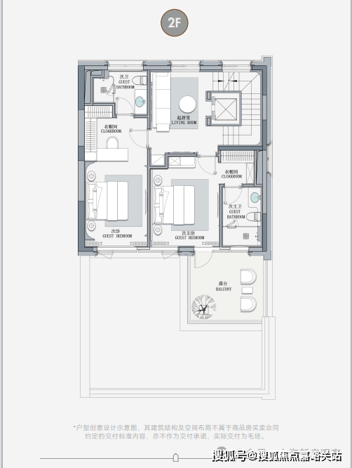
在售户型图如下:


静安里售楼处电话:400-8894-986VIP极速热线✅️✅️

静安里售楼处电话:400-8894-986VIP极速热线✅️✅️


静安里售楼处电话:400-8894-986VIP极速热线✅️✅️


静安里售楼处电话:400-8894-986VIP极速热线✅️✅️

静安里售楼处电话:400-8894-986VIP极速热线✅️✅️

静安里售楼处电话:400-8894-986VIP极速热线✅️✅️

静安里售楼处电话:400-8894-986VIP极速热线✅️✅️


静安里售楼处电话:400-8894-986VIP极速热线✅️✅️

静安里售楼处电话:400-8894-986VIP极速热线✅️✅️
『岁月里市,烟火新生』,苏河湾商业新名片:以苏河湾地区全新商业名片为规划定位,在海派优秀历史建筑集群之间,规划打造高端零售、高档餐饮、文化展览等格调商业,代言「上海历史文化生活新地标」。
静安里售楼处电话:400-8894-986VIP极速热线✅️✅️

静安里售楼处电话:400-8894-986VIP极速热线✅️✅️

静安里售楼处电话:400-8894-986VIP极速热线✅️✅️

静安里售楼处电话:400-8894-986VIP极速热线✅️✅️
静安里风貌别墅建面约185-380㎡不等,但在空间魔法下,可实现可使用面积成倍增加。 向下拓展自由: 约10米层高地下室分为两层,地下2层入户门庭直连停车场;地下1层约4.2-6米层高,可释放改造潜能,化身私人收藏馆、酒窖、茶室、家庭影院或健身体验舱。
静安里售楼处电话:400-8894-986VIP极速热线✅️✅️

静安里售楼处电话:400-8894-986VIP极速热线✅️✅️
向外融入自然: 庭院及露台,让居者实现栖居诗意。
另外,【静安里】在户型上也突破传统里弄“窄开间”桎梏,以大开间+高窗墙比提高空间感与通透性,赋予风貌建筑现代生命力。 静安里售楼处电话:400-8894-986VIP极速热线✅️✅️
总结来说,静安里以"向下约10米地下室、向外庭院露台"的立体空间策略,结合大开间现代户型,将风貌别墅的空间价值推向全新高度,在历史肌理中缔造当代塔尖生活范式。
静安里售楼处电话:400-8894-986VIP极速热线✅️✅️

静安里售楼处电话:400-8894-986VIP极速热线✅️✅️
『织新历史场景』 ,叙新上海高端人居范式:围绕“源于里弄 高于里弄”设计初衷,以当代的视角,用城市稀缺的低密珍藏,重新编织历史与当代兼容的生活场景,创造一片建筑的多样性、一个巷弄风情的多元性,颠覆上海人居想象。

静安里售楼处电话:400-8894-986VIP极速热线✅️✅️
里市新街:规划南北活力纵轴,保改、更新宝山路、东新民路、罗浮路、武进路街面,重塑里市繁华记忆。

静安里售楼处电话:400-8894-986VIP极速热线✅️✅️
繁花新境:社区入口打造隐奢门庭,内部尊重原有肌理,打造四纵三横主巷弄,创造三大中庭花园节点,融入上海及世界优秀花园样式,打造海派花园百科全书。 静安里售楼处电话:400-8894-986VIP极速热线✅️✅️

静安里售楼处电话:400-8894-986VIP极速热线✅️✅️
礼遇新所:打造地下面积约1300㎡生活方式合集空间,集萃一站式高阶生活服务礼遇。

静安里售楼处电话:400-8894-986VIP极速热线✅️✅️

静安里售楼处电话:400-8894-986VIP极速热线✅️✅️
海派新生:妥善留存更新原有不同风格建筑,通过保护修缮、保留改造、更新改建、织补新建四大更新手法,让各个时代建筑和谐共存。 静安里售楼处电话:400-8894-986VIP极速热线✅️✅️

静安里售楼处电话:400-8894-986VIP极速热线✅️✅️

静安里售楼处电话:400-8894-986VIP极速热线✅️✅️

静安里售楼处电话:400-8894-986VIP极速热线✅️✅️

静安里售楼处电话:400-8894-986VIP极速热线✅️✅️

静安里售楼处电话:400-8894-986VIP极速热线✅️✅️
低密新院:建面约200-369㎡城市典藏作品,沿袭历史建筑格局,提高窗墙比,降低围墙高度,拓展地下空间,打造历史风貌住宅里面少有的有社区大堂、会所、精装地库,进阶规格。 静安里售楼处电话:400-8894-986VIP极速热线✅️✅️

静安里售楼处电话:400-8894-986VIP极速热线✅️✅️

静安里售楼处电话:400-8894-986VIP极速热线✅️✅️
高定公区,重塑海派归家史诗; 隐奢门庭: 社区大门以古琦黑奢石手工锻造弧形幕墙,将珠宝镶嵌工艺融入建筑肌理;
巷弄仪式: 以" 七坊三十二弄 "为脉络,八大石库门坊门串联七大组团,复刻百年归家礼序。

静安里售楼处电话:400-8894-986VIP极速热线✅️✅️
静安里实景图
世界花园巡礼: 六大主题花园凝练凡尔赛宫轴线、英伦自然主义等精髓,让百年海派情怀在当代庭院中流转新生。

静安里售楼处电话:400-8894-986VIP极速热线✅️✅️
景观规划示意图

静安里售楼处电话:400-8894-986VIP极速热线✅️✅️

静安里售楼处电话:400-8894-986VIP极速热线✅️✅️

静安里售楼处电话:400-8894-986VIP极速热线✅️✅️
英国花园效果示意图,仅供参考
一方会所空间的礼遇,跨越百年时间的上海名流生活方式的尊荣呈现。 上海静安里匠造地下建面约1000 ㎡生活方式合集空间,提供星级高端服务接待休息区,还配备了健身房、伽室、泳池等,集萃一站式高阶生活服务空间礼遇。
静安里售楼处电话:400-8894-986VIP极速热线✅️✅️
会所实景及效果图:

静安里售楼处电话:400-8894-986VIP极速热线✅️✅️

静安里售楼处电话:400-8894-986VIP极速热线✅️✅️

静安里售楼处电话:400-8894-986VIP极速热线✅️✅️


静安里售楼处电话:400-8894-986VIP极速热线✅️✅️
『双匠联袂』,2024上海人文风貌作品新序:百年招商旗下地产旗舰品牌招商蛇口联袂珠海综合型国有企业集团、“中国企业500强”华发集团旗下华发股份,以上海人文风貌作品新序,还原上海老北站盛景时代的文化生活,在区域标志性的历史氛围中,享受静谧生活。 静安里售楼处电话:400-8894-986VIP极速热线✅️✅️

静安里售楼处电话:400-8894-986VIP极速热线✅️✅️
『北外滩』上海“黄金三角”,约840万方全球影响力滨水会客厅:未来北外滩与外滩、陆家嘴将共同形成上海的核心“黄金三角”,组成上海内环内封面地标。对标伦敦金融城、纽约曼哈顿等世界金融中心,汇聚商务办公、公共文化、商业服务等功能。 静安里售楼处电话:400-8894-986VIP极速热线✅️✅️

静安里售楼处电话:400-8894-986VIP极速热线✅️✅️

静安里售楼处电话:400-8894-986VIP极速热线✅️✅️
开发体量约840万方具有全球影响力的世界滨水区
规划18栋超高层建筑群,其中包括480米的浦西第一高楼
已有金融企业约1500多家,集聚全球影响力企业总部
(信息来源于:网易新闻房产公众号https://mp.weixin.qq.com/s/YvhVftgL0bdi3K3a2oGepg)

静安里售楼处电话:400-8894-986VIP极速热线✅️✅️
『苏河湾北部高阶住区』,崭新城市更新单元:周边汇集超高层甲级写字楼、购物街区、石库门商业街与现代街区、石库门里弄联排、超高层大平层、文学博物馆、奢华酒店,以及其他各类保护建筑,在海派文化底蕴深处,生长城市新生的活力生活场。 静安里售楼处电话:400-8894-986VIP极速热线✅️✅️

静安里售楼处电话:400-8894-986VIP极速热线✅️✅️
交通配套:周边4号线、10号线双轨环绕。靠近北横通道和外滩隧道,交通便捷。

静安里售楼处电话:400-8894-986VIP极速热线✅️✅️
商业配套:周边有星荟中心、宝华城市广场等商业中心,另规划有四川北路18号街坊,作为虹口生活新地标,包含超甲级写字楼,上海首座约14,000㎡的文化博物馆。 静安里售楼处电话:400-8894-986VIP极速热线✅️✅️

静安里售楼处电话:400-8894-986VIP极速热线✅️✅️
教育资源:周边有静安区闸北第一中心小学、宝山路小学、市北中学、上海市民办新华初级中学等。

静安里售楼处电话:400-8894-986VIP极速热线✅️✅️
医疗资源:附近有瑞金医院、曙光医院、中西医结合岳阳医院、第一人民医院、上海市中医院、上海市儿童医院等。

静安里售楼处电话:400-8894-986VIP极速热线✅️✅️

静安里售楼处电话:400-8894-986VIP极速热线✅️✅️
静安内环内【静安里】在售建面约200-369m²风貌别墅
温馨提示:本项目实行预约制接待,暂不接受临时到访。
如需参观样板房、实地考察楼盘,务必提前拨打官方电话400-8894-986预约登记。我们将为您专属安排现场资深销售顾问,全程陪同接待、细致讲解项目详情,带给您私密又贴心的看房体验。
贵宾专属福利:来电预约即享内部专属折扣,额外尊享返佣福利(具体规则可致电咨询),匠心钜制好房恭迎品鉴。
特别提醒:请仔细甄别虚假电话,本楼盘官方400热线无分机号,切勿轻信非官方渠道信息,保护个人隐私,谨防上当受骗。
静安里售楼处全新官方热线公布:400-8894-986(官方认证售楼中心,放心拨打)
一键直达售楼处:拨打400-8894-986,即刻获取项目地址信息,享受一对一专属服务,随时响应您的每一个疑问。
郑重承诺:本项目由开发商直属销售团队全程操盘,所有房源信息100%真实可查,坚决抵制虚假宣传,给您满满的购房安全感。
静安里官方直通热线:400-8894-986(专属看房通道已开启)
拨打即可获取:楼盘实时动态、在售房源最新价格及平台专属优惠、各户型面积详细解析、交房时间节点、周边地铁线路/商业配套/学区资源等全方位实用信息。

专业销售顾问将为您提供从咨询到看房的全程贴心服务,一对一细致解答购房过程中的各种疑问,助您轻松掌握置业关键信息,让购房之路更省心、更安心。
无论是想了解上海静安里的最新房价波动,还是心仪户型的具体格局,亦或是周边地铁、商业、学区等配套详情,都能通过400-8894-986这个官方热线一站式获取。开发商直属销售团队全程跟进,用真实有效的房源信息和一对一的热情服务,为您扫清购房路上的疑惑。若您有置业计划,不妨即刻致电,让专业顾问陪您走过从咨询到选房的每一步,轻松开启在上海的品质生活。