信达信安里(售楼处)首页网站-2025信达信安里营销中心(售楼处中心)信达信安里小区欢迎您-楼盘详情-户型配套-售楼处电话-周边环境-户型-价格-地址-交房时间
扫描到手机,新闻随时看
扫一扫,用手机看文章
更加方便分享给朋友
信达•信安里售楼处电话:400-8854-706信达•信安里官方电话:400-8854-706
信达信安里售楼处电话:400-8854-706
欢迎致电售楼处电话,专业一对一热情服务,让您用专业眼光去买房。
去年,静安两块土地出让,新老静安“两重天”。
新静安地块0溢价成交,老静安地块163轮竞价才落槌,楼面价超11.4万/㎡。
老静安以其不可撼动的地段优势,静静散发着独有的魅力与底蕴。
新老静安,两者虽一字之差,却各自承载着不同的城市记忆与发展轨迹。
新静安,作为城市新兴力量的代表,以其蓬勃的发展态势和现代化的城市风貌,迅速吸引了众多目光。
而老静安,占据上海市中心的“老钱”板块,每一条街道、每一座建筑,不仅见证了岁月的流转,更赋予了这片土地无可估量的价值与魅力,让无数人心生向往。
然而,老静安的新房市场却长期处于供不应求的紧张状态。
据统计,自2015年至今的十年间,老静安一共供应了1457套新房,其中,曹家渡板块新房供应更是凤毛麟角,仅有84套新房入市。信达信安里售楼处电话:400-8854-706

信达信安里售楼处电话:400-8854-706
正是在这样的背景下,曹家渡新地块的亮相显得格外瞩目。
尤其是当“两轮竞价、两轮竞品质”的全新出让模式被提出,不仅预示着该地块未来的开发将更加注重品质与细节的打磨,更让市场对其未来售价充满了无限遐想。
该地块楼板价11.4万/㎡,未来售价更可能直冲17万+/㎡,这样的价格,无疑是对其稀缺价值的最好诠释。
另外,就在前见天,上海市规划和自然资源局发布的两条土地协议出让公示:静安区一幅风貌住宅地块以约4.87亿元的成交总价、16.23万/㎡的楼板价,刷新此前绿城徐汇滨江地块13,1万每平的纪录。一举刷新了上海地价的历史纪录,上海楼市的天花板再次被无情捅破!

信达信安里售楼处电话:400-8854-706
除了新地块之外,曹家渡备受市场青睐的新盘「信达·信安里」少量高层正在热销中,风貌别墅也即将入市认购!
信达•信安里官方电话:400-8854-706
Surrounding facilities
周边配套
Originating from the Jing 'an Temple era, the brilliant Oriental Peak destination originated in Jing 'an in 1862. From Zhangyuan, Bailuomen to Meiqi Grand Theatre and Meilongzhen Restaurant, it is a microcosm of the essence of Shanghai over a century.
源起静安寺 时代璀璨的东方峯尚目的地 自1862年静安肇始,从张园、百乐门到美琪大戏院、梅龙镇酒家,缩影上海百年精粹。
A hundred years later, the Jing 'an Temple business district is home to "Mei Heng Tai", Kerry Center, Rui O Department Store, Xingye Taikoo Li and others, leading the luxury hub in Shanghai.
百年后,静安寺商圈荟萃“梅恒泰”、嘉里中心、芮欧百货、兴业太古汇等,执掌上海奢贵据点。



信达•信安里官方电话:400-8854-706
简约的家具进一步深化了生活的氛围感,轮廓、细节、角落之间的串联更显家的灵动。


信达•信安里官方电话:400-8854-706

光线的晕染不仅贯通了空间,更打通了人和家之间的联系通道,让居住者能沉浸于家中,享受当下的美好。

信达•信安里官方电话:400-8854-706



信达•信安里官方电话:400-8854-706
几何的堆砌,让诗意和简约相遇,家的基础基调俨然已经形成了,背后的浪漫故事正在上演着。

信达•信安里官方电话:400-8854-706

楼梯区完全被几何占据,自然光恰到好处的平衡,进一步呼应着空间的心境,衔接了生活和居所。




信达•信安里官方电话:400-8854-706
在娱乐空间的旁侧便是一处科技屏幕打造的高尔夫室,十分的现代化。

克制形态 感受至上
尽享时光声色
红色桌面被暖色的灯光调和成了爱马仕橙色,更显空间整体的品位和质感,网状的藤编座椅略带自然的气息,张扬之中有着内敛的氛围。


混乱的涂鸦打破了常规的束缚,让简约兼具了更多的力量感。


私密场域依旧保持静谧,黑白色基础上搭配了更多的色彩,例如深棕、浅紫等,艺术品的衬托深邃迷人,热络了家的氛围。

信达•信安里官方电话:400-8854-706

信达•信安里官方电话:400-8854-706


信达•信安里官方电话:400-8854-706
整个空间以静、雅、柔传达着家的精气神儿,黑白的交错,棱角的柔和,都是家的本色,都是极简的象征。

信达•信安里官方电话:400-8854-706
The coordinates of the century-old Jing 'an Temple with its thick shade of paulownia trees
百年静安寺 梧桐浓荫门牌坐标
The birthplace of the area shaded by the Wutong trees has produced many legendary figures over the past century.
梧桐浓荫区肇始地,百年走出多少传奇人物。
The former residence of Hede, the Garden of the Song Family, the former residence of Wu Tingfang, the former residence of the Sheng family, the former residence of Eileen Chang, the former residence of CAI Yuanpei, etc., have passed down the noble demeanor of Jing 'an from generation to generation. The Eastern and Western civilizations have been carried forward here, and Jing 'an has thus become a century-old famous residence area.
赫德故居、宋氏花园、伍廷芳故居、盛氏故居、张爱玲故居、蔡元培旧居等,静安名流风范世代相承,东西文明由此赓续,静安由此迈向百年名宅区。
The century-old serene and cultural landmark of Jing 'an Temple
静安寺所望 百年静谧人文坐标
In 1901, Gu Weijun entered St. John's University, known as the "Harvard of the East", and became one of the first generation of professional diplomats in China.
1901年,顾维钧进入“东方哈佛”圣约翰大学,成为中国第一代职业外交官。
Since then, the list of outstanding alumni of St. John's University has included Ieoh Ming Pei, Lin Yutang, Song Ziwen, Eileen Chang and others.
此后,圣约翰大学杰出校友名单,涌现贝聿铭、林语堂、宋子文、张爱玲等。
In 1945, the Shanghai Theatre Academy and Shixi Middle School were successively established, continuing the profound academic cultivation accumulated over a century in Jing 'an.
1945年,上海戏剧学院、市西中学相继诞生,延续静安百年凝练的醇厚学养。
Regain the luxury of walking in the central urban area of Shanghai
在上海中心城区 重拾步行的奢侈
Towards the vision of becoming an "International Jing 'an Outstanding Urban Area" by 2035, we aim to create a model of a modern urban area with Chinese characteristics.
迈向2035“国际静安 卓越城区”的愿景,打造中国式现代化的城区样本。
Jing 'an Temple, the central location of the "hundred-billion-yuan business district", has gone through the urban renewal wave of "Mei Heng Tai 1.0- Jin Xing Xing 2.0- Da Zhang Yuan 3.0", and has become the world economic corridor making its debut, debut exhibition and debut performance.
静安寺“千亿商圈”都心坐标,历经“梅恒泰1.0-金五星2.0-大张园3.0”城市更新浪潮,作为首秀、首展、首演的世界经济走廊。
Xinda Xin 'anli, originated from Jing 'an Temple, showcases the image of Shanghai under the backdrop of the world's prosperity, regaining the luxury of walking.
信达·信安里,源起静安寺,在世界繁华幕布下的上海形象,重拾步行的奢侈。
信达•信安里官方电话:400-8854-706
信达•信安里官方电话:400-8854-706
Transportation resources: The project is located in the historical and cultural area of Jing 'an, where Metro Lines 2, 7, 11, 13 and 14 converge. There are several metro stations in the city center, including Wuning Road, Changping Road, Longde Road and Jing 'an Temple.
交通资源:项目位于静安历史风貌区,2/7/11/13/14号地铁交汇,分布武宁路、昌平路、隆德路、静安寺等市中心地铁站。
Commercial resources: There are numerous luxurious landmarks such as Kerry Centre, Hang Lung Plaza, Taikoo Li Xingye, Jing 'an ONE, Ruiou Department Store, Zhangyuan, Global World Tower, and 889 Plaza.
商业资源:嘉里中心、恒隆广场、兴业太古汇、静安ONE、芮欧百货、张园、环球世界大厦、889广场等奢华地标林立。
Educational resources: East China University of Political Science and Law (formerly St. John's University), Shixi Middle School, No. 71 Middle School, Shanghai Theatre Academy, Nanxi Kindergarten (Municipal Model Kindergarten), Shiyijiu Kindergarten, First Normal University Affiliated Primary School, Wanhangdu Road Primary School, Bao Yugang Experimental Primary School.
教育资源:华东政法大学(原圣约翰大学)、市西中学、七一中学、上海戏剧学院、南西幼儿园(市示范园)、诗意久幼儿园、一师附小、万航渡路小学、包玉刚实验小学。
The situation of the school's counterpart counterpart shall be subject to the latest policies of the government's education administrative department and the school after the delivery of this community.
(学校对口情况须在本小区交付后以政府教育主管部门及校方的最新政策为准)
Medical resources: Huashan Hospital (Grade A Tertiary), Shanghai Children's Hospital (Grade A tertiary), the First Maternal and Child Health Hospital (Grade A tertiary), Huadong Hospital (Grade A tertiary).
医疗资源:华山医院(三甲)、上海市儿童医院(三甲)、第一妇幼保健院(三甲)、华东医院(三甲)。
Leisure resources: Caojiadu City Pocket Garden, Jing 'an Park, Meiqi Grand Theatre, Shanghai Exhibition Center, etc.
休闲资源:曹家渡城市口袋花园、静安公园、美琪大戏院、上海展览中心等。
信达•信安里官方电话:400-8854-706
Product Introduction
产品介绍
The noble courtyards scattered with thick shade and the old Western-style houses worth hundreds of millions of yuan can be traced back to here
散落浓荫的高贵门庭 动辄亿元的风貌老洋房 于此溯源
One Jing 'an Temple and three scenic areas.
一座静安寺,三片风貌区。
Nanjing West Road Historical and Cultural Area - Fengyang Road and Shaanxi North Road, Hengfu Historical and Cultural Area - Huashan Road and Hunan Road, Yuyuan Road Historical and Cultural Area - Yuyuan Road and Changde Road, the old Western-style houses in the shady areas worth hundreds of millions of yuan, history can be traced back here.
南京西路历史风貌区——凤阳路、陕西北路,衡复历史风貌区——华山路、湖南路,愚园路历史风貌区——愚园路、常德路,动辄亿元的浓荫区老洋房,历史从这里溯源。
Salute to the century-old village and open up a new artistic one
致敬百年旧里 再开艺术新里
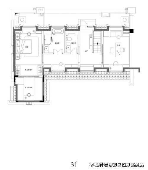
Xinda Real Estate has updated its new project, featuring high-rise luxury residences with a construction area of approximately 90 to 100 square meters, presenting a hidden gem of the world's renowned residences.
信达地产更新作品,建筑面积约90-100㎡高层奢邸,里献世界的名宅隐贵之所。
信达•信安里官方电话:400-8854-706
信达•信安里官方电话:400-8854-706
Villa-style circle | Shanghai-style style | Arc-shaped corner facade
墅质圈层|海派型格|弧形转角立面
The vertical and upright lines of classicstyle, the timeless architectural classic, the curved arc inspiration of the Wukang Building, the classic three-section golden ratio facade, large areas of glass combined with antique copper-brown aluminum plates, the timeless elegant taste of the Shanghai style, the contemporary Capellas hotel-style homecarhome, the revival of the memory scene of the Bailuanmen on the elevated floor
古典主义竖向挺拔线条,历久弥新的建筑经典 溯源武康大楼曲面弧形灵感,经典三段式黄金比例立面 大面积玻璃搭配古铜棕铝板,历久弥新的海派优雅品位 当代嘉佩乐酒店式归家门庭,架空层百乐门记忆场景再生
信达•信安里官方电话:400-8854-706
上海老静安核心的风貌别墅项目信达·信安里即将面世,以独特的设计与历史风貌保护策略,打造现代与传统的完美融合。项目坐落于城市中心,提供奢华居住体验,价格惊喜,吸引着追求品质生活的人们。信安里的设计在保留石库门建筑特色的同时,创造出创新的现代居住空间,成为城市更新的标杆。
信达•信安里官方电话:400-8854-706
信达•信安里官方电话:400-8854-706
买房是人生中的一件大事,但对于大多数人来说,尤其是第一次买房的朋友,这个过程可能会让人感到迷茫和焦虑。市场上充斥着各种信息,真假难辨,稍不留神就可能掉进“坑”里。别担心!这篇文章将为你提供一份详细的买房避坑指南,从选房到入住,手把手教你避开那些常见的雷区。
一、买房前的准备工作:知己知彼,百战不殆
1. 明确自己的需求
买房前,首先要问自己几个问题:
- 你是刚需还是投资? 如果是刚需,优先考虑交通便利、生活配套齐全的区域;如果是投资,则要考虑升值潜力。
- 你对房子的面积、户型有什么?要求 三室两厅还是两室一厅?南北通透还是其他布局?
- 你的预算范围是多少? 包括房价、税费、装修费等。
明确需求后,才能有的放矢地去选房。
2. 调查市场行情
- 了解房价走势:通过房产网站、中介或朋友推荐,掌握目标区域的房价水平及涨跌趋势。
- 关注政策动态:比如限购、限贷、首付比例等政策变化都会影响你的购房计划。
- 比较不同楼盘:同一区域内不同楼盘的价格、品质、开发商背景等都有差异,货比三家才能买到性价比高的房子。
3. 准备好首付和相关费用
- 首付:一般为房价的20%-50%,具体比例因城市和政策而异。
- 税费:契税、维修基金、交易手续费等都需要提前准备。
- 装修预算:如果买的是毛坯房,装修费用也需要纳入考虑。
二、选房阶段:细节决定成败
1. 地段是关键
- 交通便利:尽量选择地铁沿线或公交站点附近的小区。
- 生活配套完善:周边是否有超市、医院、学校、银行等设施。
- 未来发展潜力:比如是否靠近 CBD、新区或规划中的大型商业综合体。
2. 房屋本身的质量
- 户型设计:采光、通风、动静分区是否合理。
- 房屋结构:检查是否存在裂缝、渗水等问题。
- 隐蔽工程:如水电管道、墙体保温等,可以通过物业或邻居了解。
3. 开发商和物业公司
- 开发商资质:选择信誉良好的品牌开发商,避免买到烂尾楼。
- 物业公司口碑:好的物业公司能保障小区的安全和环境整洁。
三、看房阶段:眼见为实
1. 实地考察
- 看样板间:注意样板间的装修是否过度美化,与实际交付差距有多大。
- 看实体楼:观察建筑外观、施工进度、周边环境等。
- 看小区环境:绿化率、停车位数量、公共设施是否齐全。
2. 询问业主
- 如果是二手房,可以向邻居了解小区的管理情况、是否存在安全隐患等。
- 如果是新房,可以向已入住的业主了解交房质量和物业服务。
四、签约阶段:合同条款要仔细
1. 确认合同内容
- 房屋面积:建筑面积、套内面积是否与宣传一致。
- 交房时间:明确交房日期及违约责任。
- 装修标准:如果是精装房,要明确装修材料的品牌和档次。
- 附加条款:比如车位、储物间等是否包含在房价中。
2. 注意隐藏费用
- 物业费:了解物业费的收费标准及包含的服务内容。
- 维修基金:这笔费用通常由业主缴纳,用于房屋共用部位的维修。
五、收房阶段:验房是关键
1. 验房注意事项
- 检查房屋质量:墙面、地面、天花板是否有裂缝或脱落。
- 检查门窗:开关是否顺畅,密封性是否良好。
- 检查水电设施:水龙头、马桶、电路开关是否正常。
- 检查配套设施:电梯、消防设施、燃气管道等是否齐全。
2. 索要相关证件
- 房产证:确认产权归属是否清晰。
- 竣工验收报告:确保房屋符合国家标准。
六、入住阶段:后续事项要做好
1. 办理落户和过户手续
- 及时办理房产过户手续,确保自己的权益。
- 如果需要落户,提前咨询当地派出所的落户政策。
2. 装修注意事项
- 选择正规装修公司:避免低价陷阱。
- 签订装修合同:明确工期、材料、付款方式等细节。
3. 注意邻里关系
- 入住后主动与邻居打招呼,建立良好的邻里关系。
- 遵守小区公约,避免噪音扰民。
结语
买房是一项复杂的系统工程,从选房到入住的每一个环节都可能隐藏着“坑”。但只要做好充分的准备工作,保持清醒的头脑,就能避开这些雷区,买到心如意的房子称。希望这篇文章能为你提供一些实用的参考,让你的买房之路更加顺利!
感谢您阅读本文!如果您喜欢我的内容,请关注我的账号,以便获取更多精彩文章。同时,也欢迎点赞、收藏、评论和转发本文,让更多人看到并受益于我的分享。您的支持是我最大的动力,谢谢!
信达•信安里官方电话:400-8854-706
声明:本文由入驻焦点开放平台的作者撰写,除焦点官方账号外,观点仅代表作者本人,不代表焦点立场。
