保利光合上城(营销中心)网站-保利光合上城销售中心(售楼处)-保利光合上城售楼处电话-电话地址-价格-户型-小区环境-楼盘详情-交房时间-周边配套
扫描到手机,新闻随时看
扫一扫,用手机看文章
更加方便分享给朋友
500万级闵行吴泾「保利光合上城」推出建面跃93-134㎡工抵特价房,仅10套!直降120万!附官方预约通道!
☑️☑️保利光合上城售楼处电话:400-1183-605☑️☑️
售楼处火热预约中☑️☑️保利光合上城售楼处电话:400-1183-605☑️☑️

央企保利联袂国企申通
匠筑千万及Well社区☑️☑️保利光合上城售楼处电话:400-1183-605☑️☑️
【保利·光合上城】立足闵行TOD中心格局之上,作为上海“地铁上盖综合开发新政”后的首发项目,升维的是时代的抱负与未来理想城市原型的探索。项目由闵行区政府牵头,与最会城市建设运营的央企保利集团及最懂轨道物业开发的国企申通集团强强联合打造。
实力雄厚的国、央企双品牌拥有高水平的开发能力、高质量的建设标准,为产品品质及安全交付,提供强有力的保障!☑️☑️保利光合上城售楼处电话:400-1183-605☑️☑️

【保利·光合上城】将打造全生命周期居住系统2.0Well集和社区,以央企匠人情怀,筑造现代新健康居住生活体系,让美好生活更进一步。☑️☑️保利光合上城售楼处电话:400-1183-605☑️☑️
Well集和社区通过三大系统、十大技术、106个生活场景构筑WellSpace健康高效空间!☑️☑️保利光合上城售楼处电话:400-1183-605☑️☑️
一、健康敏捷组团社区
【保利·光合上城】采用“一心两轴三门”的的趣味归家动线,结合石材、绿地、地垫编制的多样视觉地面铺装,将社区景观从热闹到安静,沿途层层推进,带来乐趣不同的漫步触感。☑️☑️保利光合上城售楼处电话:400-1183-605☑️☑️

☑️☑️保利光合上城售楼处电话:400-1183-605☑️☑️

☑️☑️保利光合上城售楼处电话:400-1183-605☑️☑️

人行动线清晰,处处有景,社区小组团管理,社区内配置楼栋组团双大堂,缩短生活动线。☑️☑️保利光合上城售楼处电话:400-1183-605☑️☑️
二、健康微气候☑️☑️保利光合上城售楼处电话:400-1183-605☑️☑️
【保利·光合上城】让房子和社区在基本使用功能以外,更能实现对业主健康生活的管理与呵护。比如室外:电梯水离子抗菌、人脸智控智能通行、分龄运动系统等。
比如室内:搭载日立顶配中央空调,在满足空调使用需求的同时,可通过纯净生态模块等负离子技术构筑五重健康屏障。☑️☑️保利光合上城售楼处电话:400-1183-605☑️☑️

三、全龄健康运动系统☑️☑️保利光合上城售楼处电话:400-1183-605☑️☑️
【保利·光合上城】还为业主准备了四大景观组团,用心打造健康全龄的生活场景,让业主在楼下随即享受健身乐趣。☑️☑️保利光合上城售楼处电话:400-1183-605☑️☑️
社区景观沿活力主轴、休闲主轴带状分布,其中点缀有诸如成人健身、童趣乐园、邻里花园、林荫休憩花园等众多空间!☑️☑️保利光合上城售楼处电话:400-1183-605☑️☑️
项目加推详情☑️☑️保利光合上城售楼处电话:400-1183-605☑️☑️
【保利·光合上城】加推建面93㎡~103㎡3房,均价6.99万/㎡,开启认购,前期剩余建面约93~134㎡3~4房在售,无需积分,直接认购!
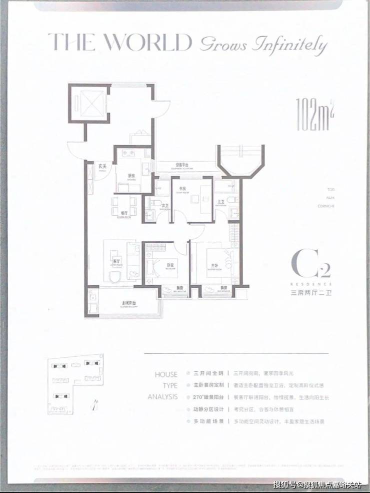
全套户型图发布:
「约93㎡3房2厅1卫」☑️☑️保利光合上城售楼处电话:400-1183-605☑️☑️
「约101㎡3房2厅2卫」☑️☑️保利光合上城售楼处电话:400-1183-605☑️☑️
「约102㎡3房2厅2卫」☑️☑️保利光合上城售楼处电话:400-1183-605☑️☑️
☑️☑️保利光合上城售楼处电话:400-1183-605☑️☑️
☑️☑️保利光合上城售楼处电话:400-1183-605☑️☑️
☑️☑️保利光合上城售楼处电话:400-1183-605☑️☑️
☑️☑️保利光合上城售楼处电话:400-1183-605☑️☑️
☑️☑️保利光合上城售楼处电话:400-1183-605☑️☑️
☑️☑️保利光合上城售楼处电话:400-1183-605☑️☑️
☑️☑️保利光合上城售楼处电话:400-1183-605☑️☑️
☑️☑️保利光合上城售楼处电话:400-1183-605☑️☑️
☑️☑️保利光合上城售楼处电话:400-1183-605☑️☑️
☑️☑️保利光合上城售楼处电话:400-1183-605☑️☑️
销售处开放!现场人头攒动,十分火爆!☑️☑️保利光合上城售楼处电话:400-1183-605☑️☑️
☑️☑️保利光合上城售楼处电话:400-1183-605☑️☑️
展厅现场图☑️☑️保利光合上城售楼处电话:400-1183-605☑️☑️
【保利·光合上城】除了约百万方的TOD大城配套与全生命周期居住系统2.0Well集和社区之外,还有一个令人难以抗拒的亮点:“有界空间内的W+精奢体系”,完全不逊色于10万+的豪宅品质!☑️☑️保利光合上城售楼处电话:400-1183-605☑️☑️

示意图丨仅供参考☑️☑️保利光合上城售楼处电话:400-1183-605☑️☑️
项目“三大件”甄选日立顶配的中央空调和全屋地暖+全屋新风。
值得注意的是,光合上城采用的是日立顶配系列。其实装修和买车一样,同样为“Benz”,A级和S级的差距不言而喻!☑️☑️保利光合上城售楼处电话:400-1183-605☑️☑️

样板间实景图丨仅供参考☑️☑️保利光合上城售楼处电话:400-1183-605☑️☑️
项目在厨卫方面同样甄选全德系TOP级精装品牌,包括西门子的壁挂式油烟机、大火力燃气灶、嵌入式洗碗机,唯宝的一体化智能马桶(主卫),高仪的恒温淋浴系统、面盆、龙头等。☑️☑️保利光合上城售楼处电话:400-1183-605☑️☑️

项目在高配置的基础上,还打造了6大智能化空间细节,包括客餐厅智能灯光控制、玄关天花感应灯、USB插座点位预留、感应夜灯、电动窗帘插座预留(客厅及主卧)、智能安防一键报警系统等。☑️☑️保利光合上城售楼处电话:400-1183-605☑️☑️
项目在健康方面匠筑5感超前的健康科技,从五个最平常的生命元素,提前为每一位业主感知不平凡的生活温度。☑️☑️保利光合上城售楼处电话:400-1183-605☑️☑️
空气:采用日立顶配中央空调与地暖连供系统,结合全屋新风和玄关消杀系统,为业主的健康保驾护航;
水:采用滨特尔末端净水系统,有效滤除重金属、余氯、细菌、病毒、有机物等有害物质,可随时享受安全、纯净、新鲜的直饮水;☑️☑️保利光合上城售楼处电话:400-1183-605☑️☑️
气味:升级选用抗菌地漏、绿色板材、净味墙漆,塑造清新宜人的室内环境;
光:打造270°宽奢落地全景阳台,滨水公园美景一览无余;
声音:项目采用室内门静音门锁,轻轻吸附,达到低频降噪舒适效果!☑️☑️保利光合上城售楼处电话:400-1183-605☑️☑️

【光合上城】还在样板间展现了超强的收纳设计!
光合上城不仅打造定制级全屋收纳系统,并且从玄关、厨房、卫浴、阳台四大空间,充分考量生活场景细节,随时随地满足收纳所需,带来4重海纳系统,让每一个业主都成为空间管理大师!☑️☑️保利光合上城售楼处电话:400-1183-605☑️☑️
卫浴收纳系统:可抽拉龙头、收纳柜层板可变式设计、金属拉篮式设计、预置吹风机点位、270°镜、防雾镜、美颜灯等;
橱柜收纳系统:特别预置洗碗机点位、柜内下拉篮式设计、不锈钢挡油板、柜下操作灯、烹饪全流程功能动线一体化设计;☑️☑️保利光合上城售楼处电话:400-1183-605☑️☑️

玄关收纳系统:便于鞋袜穿戴的隐藏式折叠凳、玄关柜层板自由可变式设计;
阳台收纳系统:预留阳台家政收纳空间和阳台家电摆放空间;☑️☑️保利光合上城售楼处电话:400-1183-605☑️☑️

项目在个性化定制方面,也为业主准备了诸多惊喜,包括电热毛巾架、岛台轨道插座等。☑️☑️保利光合上城售楼处电话:400-1183-605☑️☑️
这些个性化的设计,往往被许多购房者忽略,因为大多都是入住之后业主必备,但交房之后却都需要自己费时费力的花钱去装;
但是,光合上城将这些全部纳入光合W+体系,为业主的入住节省了大量的时间。☑️☑️保利光合上城售楼处电话:400-1183-605☑️☑️

☑️☑️保利光合上城售楼处电话:400-1183-605☑️☑️
项目区位配套☑️☑️保利光合上城售楼处电话:400-1183-605☑️☑️
【保利·光合上城】位于吴泾镇“莲花盛开”产业社区范围,交通条件优越,地块紧挨着轨交15号线元江路站,教育资源丰富,周边规划有幼儿园、小学等基础教育学校。☑️☑️保利光合上城售楼处电话:400-1183-605☑️☑️

交通配套方面:项目位于15号线元江路地铁上盖,紧邻莲花南路,周边2公里内有地铁5号线颛桥站,虹梅南路高架、沪金高速、申嘉湖高速等交通干道。☑️☑️保利光合上城售楼处电话:400-1183-605☑️☑️

商业配套方面:周边有颛桥万达广场、华夏民生购物中心、元华购物中心、北桥商业广场、鑫都商业广场、吴泾宝龙广场等商业中心。☑️☑️保利光合上城售楼处电话:400-1183-605☑️☑️

教育资源方面:项目紧邻两块教育用地,一块规划为幼儿园用地,另外一块规划为小学用地,周边3公里内拥有闵行区田园外语实验小学、闵行区田园第二外语实验小学、闵行区第二实验小学(鑫都校区)等基础教育资源。☑️☑️保利光合上城售楼处电话:400-1183-605☑️☑️

医疗资源方面:周边有上海蓝生宏德医院、颛桥社区卫生服务中心、上海都庄门诊部、闵行区中西医结合医院等医疗服务配套。☑️☑️保利光合上城售楼处电话:400-1183-605☑️☑️
休闲方面:周边拥有梅陇镇法治文化公园、颛桥剪纸文化公园、吴泾公园、兰香湖等公共休闲配套☑️☑️保利光合上城售楼处电话:400-1183-605☑️☑️
保利光合上城一房一价表:☑️☑️保利光合上城售楼处电话:400-1183-605☑️☑️
☑️☑️保利光合上城售楼处电话:400-1183-605☑️☑️
☑️☑️保利光合上城售楼处电话:400-1183-605☑️☑️
☑️☑️保利光合上城售楼处电话:400-1183-605☑️☑️
为更好满足居民刚性住房需求和多样化改善性住房需求,促进房地产市场平稳健康发展,8月25日,上海市住房城乡建设管理委、市房屋管理局、市财政局、市税务局、人民银行上海市分行、市公积金管理中心等六部门联合印发《关于优化调整本市房地产政策措施的通知》(以下简称《通知》),包括调减住房限购、优化住房公积金、优化个人住房信贷以及完善个人住房房产税等政策。《通知》自2025年8月26日起施行。
一、调减住房限购政策
为更好满足居民改善性需求,促进宜居安居、职住平衡,《通知》明确进一步调减住房限购政策。一是符合条件居民家庭在外环外购房不限套数。对符合本市住房购买条件的居民家庭,包括本市户籍居民家庭、在本市连续缴纳社会保险或个人所得税满1年及以上的非本市户籍居民家庭,在外环外购买住房不限套数,包括新建商品住房和二手住房。二是成年单身人士按照居民家庭执行住房限购政策。
按照上述规定,沪籍居民家庭和沪籍成年单身人士,在外环外购买住房不限套数;在外环内限购2套住房。非沪籍居民家庭和非沪籍成年单身人士,自购房之日前在本市连续缴纳社会保险或个人所得税满1年及以上的,在外环外购买住房不限套数;自购房之日前在本市连续缴纳社会保险或个人所得税满3年及以上的,在外环内限购1套住房。
关于住房限购政策相关业务,可拨打房地产交易行业服务热线“962269”具体咨询。
二、优化住房公积金政策
为加大公积金支持住房消费力度,《通知》规定优化住房公积金政策。一是提高个人住房公积金贷款额度。对缴存人购买二星级及以上新建绿色建筑住房的,住房公积金(含补充公积金)最高贷款额度上浮15%。首套最高贷款额度从160万元提高至184万元,多子女家庭首套上浮比例可叠加计算,从192万元提高至216万元;二套最高贷款额度从130万元提高至149.5万元。二是支持提取住房公积金支付购房首付款。对缴存人购买我市新建预售商品住房的,可以按规定申请提取本人及配偶的住房公积金支付购房首付款。三是支持住房公积金“又提又贷”。对缴存人提取住房公积金支付购房首付款的,不影响其住房公积金贷款额度计算。
关于住房公积金贷款和提取业务的具体办理方式及材料,可查询上海住房公积金官网或拨打住房公积金热线“12329”具体咨询。
三、优化调整商业性个人住房贷款利率定价机制
为减轻居民购房利息负担,《通知》明确优化个人住房信贷政策。银行业金融机构根据上海市市场利率定价自律机制要求和本机构经营状况、客户风险状况等因素,在利率定价机制安排方面不再区分首套住房和二套住房,合理确定每笔商业性个人住房贷款的具体利率水平。
关于住房贷款相关业务,可向经办银行具体咨询。
四、完善个人住房房产税政策
为衔接优化住房限购政策,《通知》规定对符合条件的非本市户籍居民家庭购买的第一套住房暂免征收房产税;购买的第二套及以上住房在合并计算家庭全部住房面积后,给予人均60平方米的免税面积扣除。由于个人住房房产税按年征收,因此2025年1月1日起符合条件的购房者可享受本条政策。
现在预约看房,可享「专属服务」:在线一对一销售服务,还能优先锁定小区中心位置房源。拨打售楼处专线 400-1183-605 ,可以安排专车上门接送,带您实地看实体样板间,还能帮您算专属购房优惠,避免买贵、买错!,让您花最少的钱,选到最满意的房!
仅预约客户可实体参观!
请务必报名后静待销售电话确认,确认后再行前往现场 !仅预约客户可进入销售现场,感谢您的理解和支持!
声明:本文由入驻焦点开放平台的作者撰写,除焦点官方账号外,观点仅代表作者本人,不代表焦点立场。
