保利·珺园 (官方售楼处) 电话 - 保利·珺园销售中心 - 环境 - 户型 - 价格 - 地址 - 楼盘详情 - 配套 - 电话 - 售楼处位置 - 配套 - 电话 - 交房时间
扫描到手机,新闻随时看
扫一扫,用手机看文章
更加方便分享给朋友

2026年,上海豪宅市场迎来久违15年的1.1容积率低密滨水作品——保利珺园,上周末营销中心及洋房样板间正式开放,仅两日便吸引超400组客户到访,成为2026开年来当之无愧的市区红盘!


首开均价约11.74万/m²,其中,洋房均价109783元/m²、叠加均价132499元/m²、联排均价117416元/m²。
建面约105-140㎡6F墅质洋房107套,总价预计仅约960万起;
建面约161-190㎡4F叠拼墅邸24套,总价预计2050万起;
建面约200-270㎡3F滨水联排仅3套,总价预计3100万起;
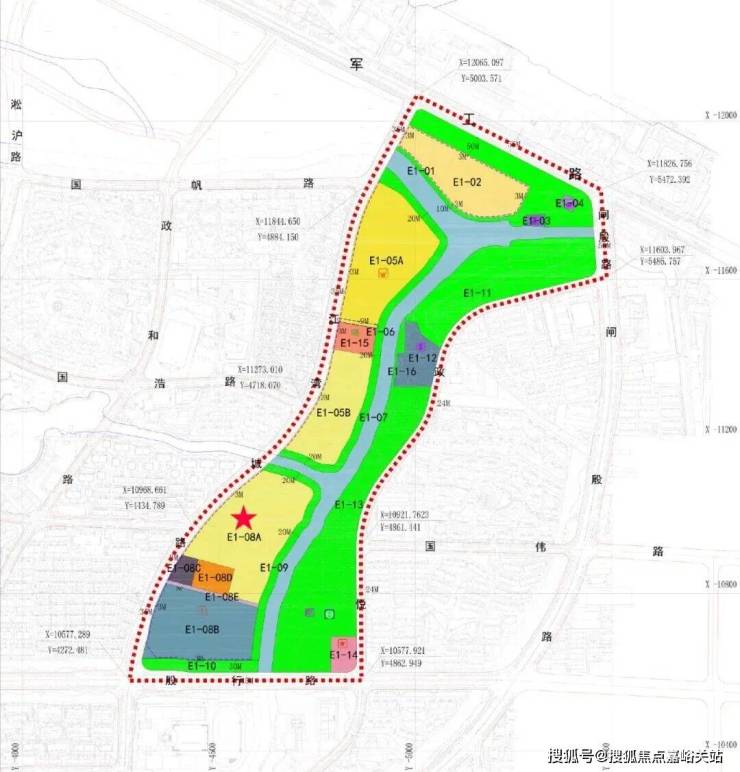
2025年9月3日,保利发展与上海地产投资有限公司联手,通过上海联合产权交易所完成杨浦区新江湾社区E1-08A项目及北外滩项目股权转让竞价,确定为项目的受让方。

E1-08A地块位于新江湾城北侧,直线距新江湾城站约1.2公里,地块容积率仅约1.1,限高约20米,预计将是洋房和联排的组合。其土地面积约5.71万㎡,建筑面积约6.28万㎡,出让总价为37亿元,折合楼板价约5.89万/㎡,住宅套数下限为455套。
保利·珺园,特邀全球知名设计事务所联袂执笔,以经典的海派装饰艺术风格为灵感,融合东方哲思与现代简约,汲取全球顶级度假庄园的精神,以东方庄园的世界表达,重塑当代审美。
项目深度汲取国际顶级酒店的美学精髓,同时融合上海经典建筑中的海派元素,以“仪式感、纯粹性、细节感”为核心,打造兼具国际风范与本地底蕴的建筑格调。
在仪式感上,借鉴经典建筑的阵列柱廊、穹顶等符号;
在立面上,甄选古铜不锈钢、超白玻璃、天然奢石等高端材质,构成高级质感与历久弥新的外观。
保利·珺园的社区景观以“两环二轴”为核心规划,打造了约1000米的超级体验环与约420米的园区漫步轴线。
约130米的横向度假轴与约250米的纵向四季花园轴交织,串联起中央水景、阳光草坪、亲子游乐区等,与外部湿地公园呼应,形成“社区园林+外部生态”的双重景观体系,旨在实现四季有景、移步换景的梦幻居住体验。
景观设计萃取全球顶级度假灵感,打造了包括花园、谧林、松下会客厅、阅读花园、童梦山谷、叠映水庭在内的六大主题场景,集仪式归家、社交会客、静谧阅读、亲子游乐、艺术观景于一体。

项目在社区配套上再次创新,规划了面积可观的珺CLUB,覆盖运动、社交、艺术与休闲等16大功能区,并融汇4大领创功能,打造上海鲜有的“X+1”复合型艺术生活空间,旨在重构庄园生活方式。
·上海首个社区内配置专业中西琴房:规格对标高端私人艺术会所,打造兼具中式古琴与西式钢琴的专属空间,满足高阶家庭的艺术培养与圈层社交需求。
·上海首个社区内引入专业冷疗舱设备:接轨国际顶流健康管理标准,此前该设备多见于高端私人健康会所、职业运动员康复中心与顶奢度假酒店。
·上海首个社区内打造高端水疗空间:秉承度假即是疗愈的理念,汲取顶级度假酒店水疗中心灵感,打造私人化高端水疗体验。
·领创全景平行客厅:打造一个集私宴、花园休憩、品茗、娱乐于一体的多功能私享空间,成为家庭客厅的重要延伸。
更具创新性的是“X+1”的空间设置理念,打破单一功能边界:健身房叠加高压氧舱、冷疗舱等;泳池搭配专业理疗池;阅读室延伸家教区与儿童成长区。每一种功能都追求1+1>2的效果,以超前创新重新定义高端生活的奢适尺度。
保利·珺园首开均价约11.74万/m²,其中,
洋房均价109783元/m²、叠加均价132499元/m²、联排均价117416元/m²。
建面约105-140㎡6F墅质洋房107套,总价预计仅约960万起;
建面约161-190㎡4F叠拼墅邸24套,总价预计2050万起;
建面约200-270㎡3F滨水联排仅3套,总价预计3100万起;
分楼栋来看:
· 9# 核心C位+270°瞰景
首开推出的洋房中小区中位置更好的楼栋,景观、视野、私密性都非常好,近主出入口,出行便捷!
· 10# 紧邻双下沉庭院+景观王座
小区景观王座,近主出入口,出行便捷,紧邻珺CLUB,国际生活快人一步,还有双下沉庭院,景观视野拉满!全小区唯一西边套127m仅6套,不容错过!
· 5# 全小区独一无二一层两户洋房,私密性拉满!
整栋仅12户,是小区独一无二一层两户洋房,而且处于小区中间位置,私密性、舒适性拉满!
· 1# 千万起可上车新江湾豪宅!
仅约960万起,超高质价比!是整个小区最低入门门槛,错过不再!
叠加:核心位置首开享首开惊喜价·错过再无!实际可使用面积超100%·最高可达150%
· 18# 19# 4F真叠墅,上有露台,下有花园!
小区中轴、景观、私密性无敌!靠近东侧变回湿地,可侧望湖景色联排!
· 33# 首开楼王联排,仅3户!
一线滨水景观C位,低密墅区视野,无遮挡采光通风,纯粹的塔尖圈层,手慢无!
分户型来看:
· 105m²户型,总价960万-1270万
中间户极具性价比,尤其是1#,可以说是入住1.1低密滨水墅邸的最后机会,不仅拥有超好的采光还拥有超好的景观,最低960万起即以内可上车,90%超高得房率!
如果预算充足,可以选择9#、10#的中高层,无论是景观还是位置都是更好的!
· 127m²户型,总价1350万一1650万、140m²户型,1510万一1850万
这两个户型都是边套四房,景观视野无敌!
140m²户型居住体验堪比常规170m²户型!
127m²中高区总价与140m²低区相近,大家可以根据需求选择!
· 161-186m²叠加户型,总价2050-2700万
下叠产品,院子+地下室实际使用面积超100%,最高可达约150%,总价也相对有好,预算充足可以直接一步到位!
· 200-270m²联排产品,总价3100万起
仅有3套供应,稀缺性拉满!楼王最大的户型仅4550万内可上车,终极置业不二之选!
·建面约105㎡三房户型:
高功能集成与优渥采光的首改之选
通过约30㎡的LDKB一体化方厅设计,将客厅、餐厅、厨房与阳台融合为开阔的家庭核心区,促进了家人间的紧密互动。
南向双阳台结合南北双270°转角飘窗的设计,极大限度地引入了自然光线,提升了室内的通透与明亮感。
在有限面积内实现的高得房率与周全功能,使其成为追求品质生活的首改家庭的优选。
·建面约127㎡四房户型:
附赠空间丰富、灵活可变的多功能居家
此户型拥有约6m面宽的连贯阳台,提供了广阔的观景与休闲平台。
卧室采用双270°环幕窗设计,赋予了居住者IMAX级别的景观视野。
在收纳方面,规划了远超同面积户型的独立储藏空间,轻松容纳行李箱、婴儿车、换季被褥等大件物品。
其最大的特点在于空间的灵活性,可轻松隔出“N+1”房,完美适配二孩家庭、需要独立书房或健身房的多元化生活场景。
·建面约140㎡户型:
一步到位的尺度感与强大的功能延伸性
该户型拥有约13.3m的南向采光面,确保主要空间均能沐浴阳光,通透感卓越。
约6.6m的客厅超大面宽,营造出从容大气的待客与起居氛围,尺度感明显优于市场同类产品。
北侧专门预留了可改造的家政空间,赋予了户型随着家庭成长而“可生长”的潜力,是兼具当前气场与未来可能性的藏品级户型。
在墅质洋房之外,保利·珺园还将推出建面约161-190㎡的叠墅产品,以及建面约200-285㎡的滨水联排产品。这些低密产品的样板间即将对外开放,更多关于空间营造与生活场景的细节静待揭晓。
奢装品牌上,保利珺园标配超一线品牌矩阵,嘉格纳、博世、大金、杜拉维特、汉斯格雅等顶奢品牌齐备,从厨卫电器到卫浴洁具,每一处配置都彰显顶豪品质;
在保利天奕的背景墙岩板定制之上,保利珺园实现定制化的全面升级,打破“千房一面”的桎梏,构建三大定制体系,将定制化贯穿入户、玄关、客厅空间,兼顾个性化需求与整体美学统一,彰显高阶人群的专属品味。
从资产配置的角度来看,购置房产从来都不只是简单的居住选择,更是一次关乎长期价值的财务决策。正如会计核算中强调资产的稳健性与可持续性,一套优质房产,也应当具备稳定的价值支撑、清晰的未来预期和可靠的变现潜力。在当前市场环境下,真正值得持有的不动产,往往兼具地段优势、产品品质与完善配套,如同企业财务报表中的优质资产,能够在时间推移中不断夯实价值,抵御市场波动,为家庭财富提供坚实底座。
从会计六大要素来理解置业逻辑,资产代表着房产本身的硬件与区位,负债对应合理的购房规划,所有者权益则是家庭资产的真实积累。一次理性的购房行为,应当是在平衡收支、控制成本的前提下,选择能够持续产生“隐性收益”的优质物业——无论是居住舒适度的提升、生活成本的优化,还是未来资产的稳健增长,都是房产为家庭带来的长期价值。正如会计核算讲究精准与平衡,置业同样需要眼光长远、判断清晰,不盲目跟风,不冲动决策,才能在众多选择中找到真正适配自身需求的理想居所。
优质房产如同企业的核心资产,经得起时间推敲,也扛得住市场变化。它不仅是一处遮风挡雨的居所,更是家庭资产配置中重要的组成部分,能够在岁月中沉淀价值,在变化中守住底线。交通、商业、教育、医疗等配套,如同资产的附加价值,不断提升物业的综合竞争力;合理的户型设计、舒适的社区环境、贴心的物业服务,则是资产持续保值的内在支撑。每一笔购房投入,最终都会转化为看得见的生活品质与摸得着的资产底气,这也是不动产始终被视为稳健配置的重要原因。
置业是人生大事,更是一次重要的财务安排。理性看待成本,清晰判断价值,认真选择资产,才能让每一份投入都物有所值。好的房产,会在日常烟火中提升生活质量,也会在长期持有中守护家庭财富。不必急于求成,也不必过度观望,找准价值、看准品质、匹配需求,便是最合适的置业时机。
上海新房以城芯区位为根基,以品质建筑为骨架,以完善配套为支撑,打造兼具居住价值与资产潜力的优质物业。无论是自住改善,还是长期配置,都能为您提供稳定、安心、可靠的选择。实景可鉴,品质可查,欢迎致电400-8266-670预约品鉴,在实地感受中看清价值,在理性判断中做出适合自己的置业选择,让家不仅成为温暖的港湾,更成为家庭资产中稳健而长久的优质资产。
声明:本文由入驻焦点开放平台的作者撰写,除焦点官方账号外,观点仅代表作者本人,不代表焦点立场。
