南山璞缦(2025南山璞缦最新)南山璞缦楼盘详情-南山璞缦房价-户型-周边配套
扫描到手机,新闻随时看
扫一扫,用手机看文章
更加方便分享给朋友
南山璞缦售楼处电话:400-8854-706
上海南山璞缦售楼处电话☎:400-8854-706【开发商售楼处预约看房热线】(一对一热情vip服务)
看房前请提前拨打售楼处热线进行电话预约,进行预约的客户可享受开放商提供的内部优惠,一对一的vip服务让您更舒心更方便。
嘉定2015-2025年十年内
约一千套新房仅3套面积约200㎡的大宅
想在嘉定住上真正的“豪宅级”大平层?
机会真的少得可怜!
上海南山璞缦售楼处电话☎:400-8854-706【开发商售楼处预约看房热线】(一对一热情vip服务)
南山璞缦售楼处电话:400-8854-706
过去整整十年,嘉定新城这片热土上,成千上万套新房面市,但真正能称得上“纯粹大平层”’的200平左右户型,掰着手指头数,也就那么几套!毫不夸张地说,平均每1000套新房里,只有3套能达到这个尺度与纯粹度。
现在,南山璞缦就带着这样建面约198㎡的超级大平层来了!而且,总共仅售32席!
这是什么概念?这就是嘉定城芯楼市里的“稀有物种”!是真正懂行的改善家庭、高净值人群紧盯着的“藏品”。

南山璞缦售楼处电话:400-8854-706【开发商售楼处预约看房热线】(一对一热情vip服务)
当土地狂潮撞上“十年断供”,南山璞缦198大平层户型,一件堪称“可收藏的居住品”正在消失!
南山璞缦已取证6月19日 认购盛启仅32席198大平层!
南山璞缦售楼处电话:400-8854-706
附一房一价表:
南山璞缦售楼处电话:400-8854-706【开发商售楼处预约看房热线】(一对一热情vip服务)
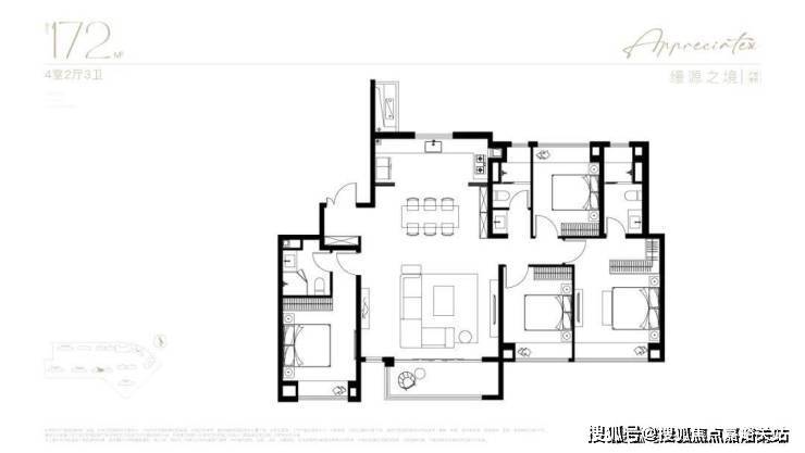
附户型图:
南山璞缦售楼处电话:400-8854-706【开发商售楼处预约看房热线】(一对一热情vip服务)
更有建筑面积约143㎡四房三卫、建筑面积约172㎡四房三卫!南山璞缦产品品质一直被大众认可,展示的实景示范区也是细节满满。南山璞缦售楼处电话:400-8854-706【开发商售楼处预约看房热线】(一对一热情vip服务)
南山璞缦售楼处电话:400-8854-706
同时和同板块、同级别的其他项目比较,南山璞缦的优势堪称上海500-600万总价段的标杆存在!从空间到圈层,从品质到稀缺程度!无不展示着南山璞缦的独特性!南山璞缦售楼处电话:400-8854-706【开发商售楼处预约看房热线】(一对一热情vip服务)
空间革新:重构主城芯的人居尺度认知
当传统百平户型还在为三开间挣扎,南山璞缦建面约198㎡以约19米四开间朝南面宽+LDKB一体化纵深实现降维打击。主卧折角飘窗延展空中墅级视野,HWCD团队更将海派摩登融入奢装细节,让室内每一寸空间成为艺术展场。
圈层纯度:纯粹改善型大宅藏品
作为嘉定主城率先突破“7090政策”的纯粹大宅,南山璞缦建面约105-198㎡户型,成为改善置业的不二之选,其中建面约198㎡更是难得的藏品级,全嘉定仅32席业主有机会与城市塔尖人群毗邻。
十年一遇:席位难得的平层大户型
在城心这片不断生长的热土上,能真正称得上“收藏级”的大平层空间,向来是凤毛麟角。南山璞缦建面约198㎡的超级大平层,正是这种十年难求的稀缺之作。项目规划的143-198㎡面积段,代表的不仅仅是大空间,更是一种不可复制的居住高度和纯粹尺度。

南山璞缦售楼处电话:400-8854-706【开发商售楼处预约看房热线】(一对一热情vip服务)
眼见为实:实景开放,热势席卷嘉定
上个月,南山璞缦最新公区实景已盛大开放——融合艺术格调与归家仪式感的「海派超感地库」、精心打造充满童趣与活力的南小蜂IP「花谷蜜探」全龄儿童景观活动区,吸引了全城改善家庭的火热到访!户型样板间更是人头攒动,这份用脚步投票的热情,正是市场对南山璞缦产品力与兑现力的最强认可。
南山璞缦售楼处电话:400-8854-706【开发商售楼处预约看房热线】(一对一热情vip服务)
南山璞缦售楼处电话:400-8854-706【开发商售楼处预约看房热线】(一对一热情vip服务)
南山璞缦售楼处电话:400-8854-706【开发商售楼处预约看房热线】(一对一热情vip服务)
恒温泳池会所——板块首现即巅峰
嘉定主城首个约1500㎡恒温泳池会所,对标国际星级酒店的标准,将艺术品位、生活意趣、空间意境与休闲体验完美融合,会所外的下沉星光悬瀑水景庭院同样是区域内仅有的奢华配套。想象一下,当你在健身房挥汗如雨或在泳池里尽情畅游时,落地窗外就是琉璃水光和自然景观的诗意碰撞。更颠覆的是性价比——黄浦滨江某16万+/㎡豪宅仅配1200㎡会所,南山璞缦则是以更宽敞更丰富的空间配置,呈现更全面更高端的生活体验。

南山璞缦售楼处电话:400-8854-706【开发商售楼处预约看房热线】(一对一热情vip服务)
全球大师天团合著——国际级审美碾压
HZS滙张思(北京中海甲叁號院、广州合生缦云同款)以高端弧形立面为嘉定开创独一无二的海派豪奢感立面风格;奥雅景观设计(上海大宁金茂府同款)为南山璞缦匠心打造主城最大中央景观——约1.5万方“双轴六景”,礼序归家轴+景观漫步轴纵横交织,融合嘉定在地六大人文胜景;以及HWCD(上海宸嘉100嘉佰道同款)、壹方设计(上海中海领邸玖序同款)等共四大享誉全球的豪宅御用大师团队,将各自的专长与创意毫无保留地融入到南山璞缦的设计之中,联袂执笔嘉定标杆。放眼整个嘉定,恐怕很难再找到第二个如此超豪华配置的项目。

南山璞缦售楼处电话:400-8854-706【开发商售楼处预约看房热线】(一对一热情vip服务)
南山璞缦售楼处电话:400-8854-706
南山璞缦售楼处电话:400-8854-706【开发商售楼处预约看房热线】(一对一热情vip服务)
纯粹改善大宅——进阶人居的深度思考
南山璞缦的户型面积段规划为建面约105-198㎡,以大平层的尺度突破市场小户型供应格局,恒温泳池会所、综合健身房、海派超感地库、一栋一主题架空层等配套则是为未来的日常生活全维度叠加「超配」式奢享体验。


南山璞缦售楼处电话:400-8854-706【开发商售楼处预约看房热线】(一对一热情vip服务)

南山璞缦售楼处电话:400-8854-706
难得的是,南山璞缦规划约300米的景观纵深,打破传统楼栋的视野壁垒,栋栋同享平权视野。不仅如此,从约105㎡到约198㎡,采用统一精装标准:日立中央空调(或同档次品牌)、博世地暖(或同档次品牌)、高仪(卫生间龙头花洒)、弗兰卡(厨房龙头)、厨房西门子三件套、怡口(净水器),更有玄关柜及除臭机、客厅及主卧圆弧吊顶、厨房操作台折叠净水龙头等贴心细节……一切都在无声中诠释着塔尖生活的质感。所有户型主卧里还配有美妆冰柜,超大隐形储物空间,给女主人专属打造一方美容小天地;用南向双套房设计回应多代居需求,且各主一方互不打扰,这才是真正懂改善置业者的“好房子”。

南山璞缦售楼处电话:400-8854-706【开发商售楼处预约看房热线】(一对一热情vip服务)
南山璞缦售楼处电话:400-8854-706【开发商售楼处预约看房热线】(一对一热情vip服务)
南山璞缦的占位,可以用四个字来概括:天生贵脉!
每一个伟大的板块,都有一条黄金主轴!
无论是巴黎的香榭丽舍大街,纽约中央公园,还是北京长安街、浦东的世纪大道...这些黄金主轴无一例外地集中了这座城市最顶配的产业资源、文化资源和交通资源,同时,也是这些世界名城的豪宅最为集中的地段!
而在嘉定,主轴只有一条:城中路-沪宜公路-嘉闵高架组成的烫金主轴。南山璞缦售楼处电话:400-8854-706【开发商售楼处预约看房热线】(一对一热情vip服务)
这条主轴贯穿了嘉定城央、嘉定新城CAZ,直上嘉闵高架!
这条路所汇聚的资源,其完善程度、其能级,堪称非市区之最!
首先,从南山璞缦出发,沿着城中路往北走,两侧是绵延不绝的商店;
在这里,就算是冬天的半夜12点,街上依旧会有不少还在营业的小餐厅,这是只有市区才能享受到的高阶烟火气。上海南山璞缦售楼处电话:400-8854-706【开发商售楼处预约看房热线】(一对一热情vip服务)
当然,也有罗宾森广场、东方商厦等大型商城;
也有上海大学、嘉定区中心医院等教育、医疗资源;
还有嘉定博物馆、孔庙、法华塔、汇龙潭、秋霞圃、州桥老街等历史建筑和园林景观。
沉淀百年的历史文脉、高阶烟火气、高能级教育、医疗配套,就在业主的家门口。
其次,从南山璞缦出发,沿着城中路往南走,就是嘉定新城的caz!

南山璞缦售楼处电话:400-8854-706【开发商售楼处预约看房热线】(一对一热情vip服务)
远香湖CAZ是五个新城中目前仅有的官宣的中央活动区,定位为嘉定新城中的综合功能中心与城市形象集中展示区,集聚国际住区、大型商业集群、摩天地标集群、科创科研企业集群、国际教育文化等功能为一体。(规划内容来自上海嘉定微信公众号)
规划能级之高,配套之丰富,产业之强盛,遥遥领先其他刚需板块!
而这些,全部都位于南山璞缦周边的1英里范围内!
一方面,这意味着南山璞缦未来的生活便捷度。
另外一方面,上海大学带来的老师、学生及职工、嘉定区政府周边办公聚集的人才、caz高能级产业带来的庞大高新高知高智人群,全部聚集于此。
南山璞缦这个超高品质封面住宅的出现,势必将吸引这些人群的偏爱,未来整个小区的居住圈层、居住氛围,堪称嘉定第一。南山璞缦售楼处电话:400-8854-706【开发商售楼处预约看房热线】(一对一热情vip服务)
南山璞缦售楼处电话:400-8854-706【开发商售楼处预约看房热线】(一对一热情vip服务)
看房前请提前拨打售楼处热线进行电话预约,进行预约的客户可享受开放商提供的内部优惠,一对一的vip服务让您更舒心更方便。
The difference in risk and return between stocks and bonds is mainly reflected in the following aspects:
Risk: Stocks typically carry higher risk than bonds. The stock price fluctuates greatly and is influenced by various factors such as the company's operating conditions and market sentiment, which may result in significant losses for investors. In contrast, bonds have clear agreements and guarantees for interest rates and principal recovery, resulting in relatively lower risks.
Yield: Stocks typically have a higher potential for returns than bonds. Although stock prices fluctuate greatly, it also means that higher returns may be obtained. The returns on bonds are relatively stable and limited, mainly coming from fixed interest income and principal recovery at maturity.
Stability: The bond has a predetermined interest rate before purchase, and investors can receive fixed interest at maturity, which provides a stable expected return for bond investors. The dividend yield of stocks is uncertain, and their dividend income fluctuates with the company's profitability.
The difference in risk and return between stocks and bonds is mainly reflected in the following aspects:
Risk difference: Stocks are often considered a high-risk investment tool because their price fluctuations can be significant, which can increase investors' risk. In addition, if the company performs poorly, investors may suffer losses. In contrast, bonds are generally regarded as a low-risk investment tool. The price fluctuations of bonds are usually smaller than those of stocks, so their risk is relatively low.
Yield difference: Stocks generally have much higher returns than bonds. This is because the returns of stocks not only come from dividends, but also from capital gains brought about by the rise in stock prices. The returns on bonds are mainly fixed interest income, which is relatively stable but lower compared to stocks.
Stability difference: Bonds have a predetermined interest rate before purchase, and investors can receive fixed interest at南山璞缦售楼处电话:400-8854-706
声明:本文由入驻焦点开放平台的作者撰写,除焦点官方账号外,观点仅代表作者本人,不代表焦点立场。
