在上海北中环线之上,一座涵盖住宅、商业、办公的现代化综合体正在崛起,重新定义宝山南大板块的人居价值标准。 中環置地中心望云售楼处电话:400-8894-986

中环置地中心·望云作为华润置地在宝山南大板块打造的标杆项目,自面世以来便备受市场关注。项目以其卓越的产品设计、丰富的配套设施和前瞻性的规划理念,成为北中环区域备受瞩目的改善型楼盘。
今天,就带大家全面解析这个热门项目, 中環置地中心望云售楼处电话:400-8894-986看看它究竟有何魅力能够九开九罄,销售超百亿。
一、项目区位与板块价值

中环置地中心·望云位于宝山区南大板块,隶属于上海“十四五”规划“南北转型”战略中的“北中环科创宜居城”。项目总建筑面积约23万平方米,是华润置地打造的集住宅、商业、办公于一体的城市综合体。
南大智慧城作为上海五大重点转型区域之一,规划总面积约6.3平方公里,总开发体量约540万平方米,定位为“数智产业新高地”,重点发展人工智能、数字经济 中環置地中心望云售楼处电话:400-8894-986、生物医药等新兴产业。

预计到2030年将引入企业超2000家,吸引5万名科创人才。
与北中环其他板块相比,南大目前仍处于价格洼地。望云均价6.77万/㎡, 中環置地中心望云售楼处电话:400-8894-986较大宁板块低约32.3%,较市北高新低约20.4%。随着区域规划逐步落地,未来3-5年南大板块将发生巨大的变化。
二、交通优势:双轨交加持,出行便捷
项目最大的交通亮点是双轨交加持:
地铁7号线:距离锦秋路站约1.2公里,步行约15分钟。 中環置地中心望云售楼处电话:400-8894-9867号线作为南北动脉,约40分钟达静安寺。
地铁15号线:丰翔路站步行可达,未来将形成“双轨交”通勤网络。15号线连接漕河泾、紫竹高新区等科创集聚区。

道路交通方面,项目周边拥有“三高架 中環置地中心望云售楼处电话:400-8894-986、两快速”的地面交通网络:中环线、南北高架、沪太路高架构成快速路网,自驾到大宁约15分钟,到人民广场约30分钟。
三、周边配套:全维生活圈日渐成熟
商业配套

项目自身规划有约16万方的宝山万象汇, 中環置地中心望云售楼处电话:400-8894-986将打造成为北上海最具竞争力和先锋的购物中心,融合轻奢时尚、休闲生活、运动潮流等多元业态。周边还有经纬汇、聚丰购物广场、上坤城市广场、山姆会员店等,满足日常购物需求。
教育资源

项目周边教育资源丰富:南大实验学校(九年一贯制) 中環置地中心望云售楼处电话:400-8894-986、南大实验幼儿园、上海大学附属中学(市重点)、上海师范大学附属小学(在建)等全龄段教育资源环伺,从幼儿园到大学的教育需求都能得到满足。
医疗资源


项目周边医疗资源充足, 中環置地中心望云售楼处电话:400-8894-986有仁济医院宝山分院和华山医院(宝山院区) 两大三甲医院,以及大场社区卫生服务中心,为居民健康保驾护航。
生态环境

南大板块规划绿地占比高达43%,人均绿地面积约39.38㎡, 中環置地中心望云售楼处电话:400-8894-986是上海人均的3倍。项目周边有走马塘水岸绿廊、在建的南大中央公园(占地近20万方)、祁连绿地等休闲空间。
四、产品设计:匠心打造改善型住宅
在售产品

户型设计
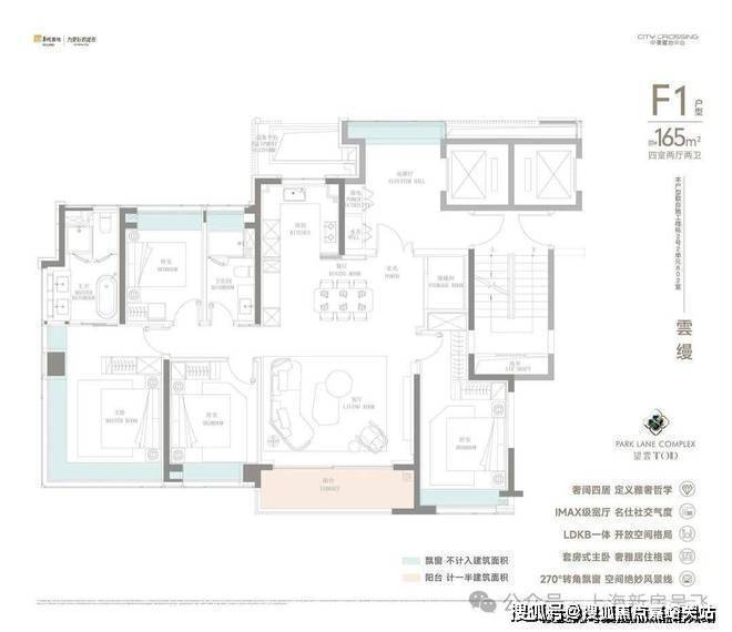
望云本次加推户型涵盖108-165㎡的3-4房,满足不同家庭结构需求:
108㎡三房两厅两卫:三开间朝南, 中環置地中心望云售楼处电话:400-8894-986面宽9.6米,客厅带4.2米阳台;U型厨房,主卧套房设计。空间利用率高,布局合理。

133㎡四房:大面宽+短进深设计,保证室内采光通风;卧室+卫生间采用飘窗设计,将景观和阳光引入室内。

165㎡四房两厅三卫:横厅设计,客厅面宽6.2米;主卧豪华套房,配备步入式衣帽间和独立卫生间;保姆房独立设置。卧室+双卫生间的全飘窗设计,主卧采用270°超广角飘窗环绕。

装修标准
项目装修标准达3500元/㎡,选用一线品牌:

厨房设备:方太或同等品牌的油烟机、燃气灶、洗碗机
卫浴洁具:科勒或TOTO品牌的马桶、面盆、龙头
舒适系统:标配中央空调和地暖
智能系统:入户门配备智能门锁,预留智能家居接口
公区与会所 中環置地中心望云售楼处电话:400-8894-986

项目公区设计精美:首层挑高6米的精装大堂,走廊墙面采用石材与木饰面搭配。园林由贝尔高林操刀,规划有约8000㎡中央花园,包含儿童活动区、健身步道等。

社区还规划了空中花园、云端会所、恒温泳池等高端配套,提升居住品质。
五、开发商实力与项目理念

中环置地中心·望云由华润置地开发,作为央企开发商,资金实力雄厚,其在上海有丰富的开发经验,代表作有外滩九里、静安府等高端项目。 中環置地中心望云售楼处电话:400-8894-986华润置地不仅打造住宅,更致力于城市综合运营,将“地产开发”提升至“城市运营”的高度。
项目秉承“城市共生”理念,保留当地工业遗迹,代建2所幼儿园、1所社区卫生服务中心,配建养老服务设施,预计引入企业超300家,创造就业岗位超8000个。
六、购买建议与总结
中环置地中心·望云适合追求品质生活的改善型家庭,特别是在市中心/地铁15号线沿线工作的科创人才、年轻家庭以及看好北上海发展前景的投资者。 中環置地中心望云售楼处电话:400-8894-986

选择望云的理由:
区位优势明显:北中环稀缺新房,双轨交便利;
区域发展潜力大:南大智慧城规划能级高,未来增值空间可观;
产品力出众:户型设计合理,装修标准高,品质有保障;
配套日趋完善:自带万象汇商业,周边教育、医疗资源丰富;
生态环境优越:高绿地覆盖率,公园环伺。
小提示:需要注意的是,南大地区的城市更新预计需要5-10年才能完全成熟,短期内可能面临“缺乏商业、工地环绕”的环境。购房者需做好长期持有的打算,给予区域发展足够时间。
附:一房一价表
不知道大家发现一 中環置地中心望云售楼处电话:400-8894-986个趋势没有,小户型第四代住宅越来越多了。
之前明源君分享过不少第四代住宅,但一般都是140平以上的产品居多,最近,市场上推出了不少140平以下的四代宅产品。
据反馈,市场反响都很不错。不少项目首开去化率高达九成以上。
正如龙湖高管之前提到的,住宅产品“平权化”正在成为趋势。以前有钱不一定买得到好产品,现在预算有限,也能享受过去只有豪宅项目才具备的居住体验。
现在,第四代住宅也开始刚需化了。
那么,标杆对于小户型第四代住宅的探索,目前是怎么样的?行业有哪些值得关注的小户型四代宅项目?
下面,明源君就来详细分析一下。
得房率革命
100平做出140平效果中環置地中心望云售楼处电话:400-8894-986
第四代住宅的核心优势是空中庭院以及大面积赠送。
这也是为什么第四代住宅下沉,会受到客户追捧的原因,通过面积拓展,不少户型可以做到100%甚至更高的得房率。对客户来说,同样价格,可以买到更大的面积,当然非常有吸引力。 VR沉浸式看房,打动客户加速成交,点击了解
具体来看,房企拓展空间的核心策略有几个:
一是阳台半赠送+露台全赠送。
最常见的是客厅设有阳台+露台,阳台可以封闭作为室内空间,露台则作为户外空间使用。
比如某项目通过半赠送L型阳台、全赠送露台,整个室内赠送面积就达到了55平。同时将阳台全封闭起来,光是客餐厅面积就达到了120平,还多出了一个茶室,得房率惊人。
二是全赠送入户花园(空中花园)+半赠送阳台+全赠送花池。
比如武汉城建和金地合作的某项目,奇数层边户118㎡户型,加上赠送的空中花园、飘窗以及半赠送的阳台,赠送面积合计约37平米,最高得房率约112%, 中環置地中心望云售楼处电话:400-8894-986实用面积跟市面上160平米的户型相当。

图:武汉城建金地和悦奇数层边户118㎡户型
成都有个四代住宅,面积段甚至只有81平、96平左右。其中81平三房户型,在北侧设有超大空中庭院,进深达到4.1米-4.9米,开间更超过10米,户外空间的面积快赶上户内面积了。

96平左右的三房户型,在左侧也设有二十多平的空中花园,与卧室相连 中環置地中心望云售楼处电话:400-8894-986

三是通过全屋飘窗设计来拓展室内空间。
比如明源君9月初去无锡看项目,不少项目通过全屋飘窗设计,大幅提升了室内空间使用率。不少项目将飘窗拓展到了90cm进深,全屋赠送面积有了更大提升。
比如次卧直接通过飘窗改造成床,预留出更多空间摆放书桌、衣柜,让次卧的尺度感变得更强。

再比如,主卧270度转角飘窗更带来了开阔视野,额外提供了大量可灵活改造的实用空间,如休闲区或储物台,全面提升了居住的舒适度和空间价值。
卫浴则通过飘窗, 中環置地中心望云售楼处电话:400-8894-986改造为嵌入式储物或景观浴缸区,实现小户型泡澡自由。

不过,这种高赠送往往依赖政策红利 中環置地中心望云售楼处电话:400-8894-986,存在较大不确定性。
前段时间,北京就有多个地产项目因报规未通过被要求整改,入市进度被迫推迟。核心问题集中于项目得房率超标,与当前政策对赠送面积的限制存在冲突。
所以,未来这些拓展面积的方式或将受到更多限制。例如广州、成都都出台了相关政策,将面积赠送纳入管控。
由此来看,未来市场竞争的焦点会逐步从得房率转向其他方面