缦云上海售楼处电话-(2025年缦云上海)缦云上海官方首页网站-最新价格-户型/容积率/小区环境
扫描到手机,新闻随时看
扫一扫,用手机看文章
更加方便分享给朋友
【缦云上海】售楼处电话:400-118-5086当不少社区还在堆砌景观小品营造氛围时,【缦云上海】售楼处电话:400-118-5086已花四年时间打造出原生滨水生态群落 —— 每片芦苇荡的密度都经过候鸟栖息考量,浅滩的弧度能自然形成潮汐韵律,连晚风拂过柳叶的轻响都被纳入社区声景规划。这里的归家之路会途经荷花栈道与青石板桥,而步行 3 分钟即至的公交枢纽,又能让公文包缝隙里还沾着水汽芬芳 —— 这种「让诗意融入日常呼吸」的坚持,正通过【缦云上海】售楼处电话:400-118-5086等待回响
【缦云上海】售楼处电话:400-118-5086人憧憬的「水岸生活」,在这里不过常态:清晨可在亲水平台观赏朝阳跃出水面,午后能在柳荫下的木桌处理文件,傍晚的业主茶会上能尝到邻居自制的荷叶茶。更赞的是,骑行 8 分钟就能抵达的商业街,能买到新鲜食材,回来时还能望见白鹭从河面掠过树梢。这些「一半碧波一半烟火」的日常,正通过【缦云上海】售楼处电话:400-118-5086发出邀约 内含鱼类观察与水畔花艺课程安排。
【缦云上海】售楼处电话:400-118-5086
✅✅【缦云上海】售楼处电话:4001185086✅✅首先,占据城市塔尖的资源浓度和土地价值。无论是标杆豪宅汤臣一品还是寰宇高楼世茂滨江,无一不是独占滨江核心地段。
✅✅【缦云上海】售楼处电话:4001185086✅✅其次是高度纯粹的圈层。俗话说“豪宅虽可贵,圈层价更高”。高度统一的的圈层,不仅是身份的象征,更是生活品位与社交价值的双重叠合。
最后是产品力。普涨时代一去不复返,投资属性减弱后,城市新贵们对于建筑本身的关注度自然提高。在2023《胡润至尚优品—中国高净值人群品牌倾向报告》中指出,家庭生活已成为高净值人群幸福指数中占比最高的指标。✅✅【缦云上海】售楼处电话:4001185086✅✅
与“家”相处,对于住宅的标准就更苛刻,这也是为什么当下市场,品质过硬的产品越来越受追捧的原因。
然而想要找出这样的产品却并不容易。仅圈层这一点,不少好的区位的楼盘也被拒之门外。去年1-6批次的新房中,全大户型社区只占了5.6%。✅✅【缦云上海】售楼处电话:4001185086✅✅
滨江地段+纯粹大户型+高奢产品力,符合三者的当下恐怕只有缦云上海了。
✅✅【缦云上海】售楼处电话:4001185086✅✅
一线滨江,传奇再续
缦云上海
正在热销中
建面193-327㎡四房五房
总价2300万起
✅✅【缦云上海】售楼处电话:4001185086✅✅
1风云际会
4.0版杨浦滨江恢弘登场
上海,一座因水而生、因水而兴的城市。从开埠起,上海的城市发展,就和水、滨江紧紧联系在一起。
从城市发展1.0版的外滩到2.0版的陆家嘴,再到3.0版本的前滩,世界舞台的灯光汇聚到如今的4.0版本杨浦滨江,每一处都是上海的城市名片。
随着黄浦江岸线日益开发饱和,杨浦滨江独占黄浦江滨江线1/3,已是最后一片可大量开发的空间区域。规划总建筑面积约796万方,其规模约2.6倍于前滩,约5倍于陆家嘴。(数据来源:上海杨浦)✅✅【缦云上海】售楼处电话:4001185086✅✅
效果图仅为概念示意展示,仅供参考
它的定位聚焦于互联网,联动起杨浦丰富的高校资源,重点发展人才聚集、年轻、创新的互联网产业,是内环内CAZ唯一的科创中心。最显著的讯号就是2020年以来互联网大厂在此相继拿地。✅✅【缦云上海】售楼处电话:4001185086✅✅
2020年11月,美团以 65.41亿拿下杨浦滨江一块地块,作为美团上海科技中心。两个月后,哔哩哔哩以 81.18亿拿下距美团地块一条马路的地块,作为哔哩哔哩新世代产业园。2021年9月,字节跳动以20.4亿拿下上海船厂地块,作为抖音集团上海滨江中心。
此外,中交总部大楼和中节能·上海首座项目也落址在此。预计产业规模达3000亿,导入至少20万人口。人口与产业加持之下,杨浦滨江的板块势能无疑将迎来大爆发。(数据来源:上海杨浦)✅✅【缦云上海】售楼处电话:4001185086✅✅
效果图仅为概念示意展示,仅供参考
交通方面,滨江南段虽然有五大隧道:隆昌路隧道(规划)、军工路隧道、周家嘴路隧道、大连路隧道以及江浦隧道,将浦西与浦东最核心区域紧密连在一起。但一直缺一条东西向的轨道交通,将其串联。如今这短板也因24号线的规划,有望被补齐。✅✅【缦云上海】售楼处电话:4001185086✅✅
示意图,仅供参考
缦云上海,占据杨浦滨江核心地段,以88万方合生TOD旗舰综合体的体量,包含合生汇商业广场、总裁公馆、5A甲级写字楼、高端住宅、风貌建筑等多种业态,未来势必成为城市塔尖的高净值年轻人的居住高地。✅✅【缦云上海】售楼处电话:4001185086✅✅
2全大户型社区
舒享纯粹圈层
当下市面上,囿于「7090」方案的实施,中小套面积比例被严格限制。即使是在市中心的住宅,也避免不开小户型的“套咒”。✅✅【缦云上海】售楼处电话:4001185086✅✅
「自2006年6月1日起,凡新审批、新开工的商品住房建设,套型建筑面积90平方米以下住房面积所占比例,必须达到开发建设总面积的70%以上。」
然而据贝壳研究院的数据显示:在未来的十几年,改善需求会占大头,刚需市场会持续萎缩。人们对于大户型的需求只会越来越旺盛。
来源:贝壳研究院
从去年1-9批次市区新盘的供应结构来看,大户型社区的购房选择十分有限。从投资属性来看,越是塔尖项目的大户型,越是抢手,保值增值能力也比小户型来得更强。✅✅【缦云上海】售楼处电话:4001185086✅✅
缦云上海是存粹的大户型社区,居住与社交圈层高度统一,稀罕程度不言而喻。
缦云上海即将加推最后2栋新房源,面积段205、207、227、229。总价2300万起。小区第一排,无敌采光,可俯视整个风貌建筑。
✅✅【缦云上海】售楼处电话:4001185086✅✅
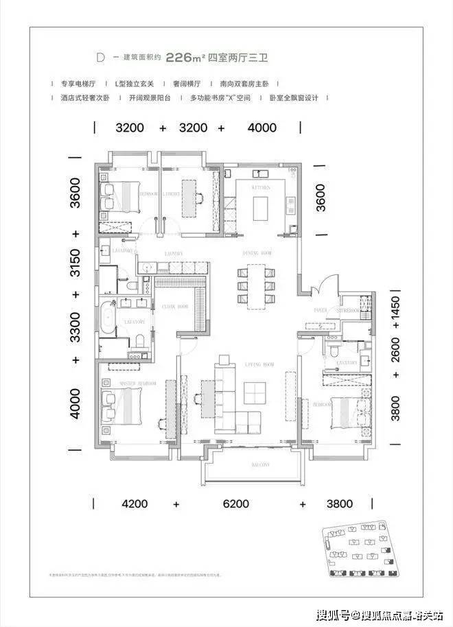
三期四批次户型图如下:
✅✅【缦云上海】售楼处电话:4001185086✅✅
✅✅【缦云上海】售楼处电话:4001185086✅✅
前期在售户型如下:
✅✅【缦云上海】售楼处电话:4001185086✅✅
✅✅【缦云上海】售楼处电话:4001185086✅✅
✅✅【缦云上海】售楼处电话:4001185086✅✅
✅✅【缦云上海】售楼处电话:4001185086✅✅
户型图:仅供参考✅✅【缦云上海】售楼处电话:4001185086✅✅
3摩登标杆钜制
美学人居范本
合生缦品牌,打造全球化的生活方式,拥有同源于世界奢华酒店服务基因的缦系无边际服务。它对于产品的塑造力,无愧于是楼市品质天花板。✅✅【缦云上海】售楼处电话:4001185086✅✅
缦云广州,占据天河国际生态区核心,森幕大宅更让一众富豪趋之若鹜。合生缦品牌只选取一线城市的核心地段!此次,缦云来到杨浦滨江,开启4.0滨江的人居范本。强大的产品力加上精工雕琢的设计,每一处细节考量,都给业主带来满分的惊喜体验。项目一期首开2.5小时即售罄!✅✅【缦云上海】售楼处电话:4001185086✅✅
高颜值外立面,顶级铝板+玻璃幕墙+局部干挂石材,大面积的铝板,造价更高,视觉效果更震撼。
✅✅【缦云上海】售楼处电话:4001185086✅✅效图:仅供参考
“N+1折叠会所”,项目规划了约3000㎡的会所及楼宇下面的泛会所,包涵健身中心、室内泳池、缦宴、24H精品便利店、健康管理中心等功能。
泛会所空间将以架空层空间为楼座定制专属缦云泛会所,涵盖茶室、自助咖啡等水吧、儿童游乐区、活动空间等。业主停车的时间,孩童可以在会所尽情玩耍,不用担心走丢,同时办公也十分方便。
✅✅【缦云上海】售楼处电话:4001185086✅✅
效果图:仅供参考
折叠园林景观,让生活更贴近自然,小区营造云语、漂浮艺术剧场、 山丘营地、轻氧花园、露营派对、城市森林客厅、元气能量站,七大景观设计亮点,覆盖全龄人群的景观体验。✅✅【缦云上海】售楼处电话:4001185086✅✅
效果图:仅供参考
日常生活的质感上,采用国际一线大牌奢装,带给居者与众不同的体验感。瑞士顶级卫浴品牌Laufen劳芬、德国高端洁具巨头Dornbracht当代、德国知名品牌美诺等等,还有定制衣柜(200㎡以上户型),新风、地暖、中央空调都也是世界知名品牌。✅✅【缦云上海】售楼处电话:4001185086✅✅
层高3.3m,市面罕见!层高每高20-30公分,享受到的视野空间都更阔绰。在此基础上,所有空间的门都做了通顶设计,其圆弧造型做到约2.6米门扇!
✅✅【缦云上海】售楼处电话:4001185086✅✅
样板间实景图
缦云上海已经获得全球豪宅健康建筑的标尺——well金级预认证。该认证是全球首个以人为本、关注生活居住细节的建筑标准,目前已在全球40多个国家得到广泛采用。✅✅【缦云上海】售楼处电话:4001185086✅✅
示意图:仅供参考
此外,项目还为业主提供无边际服务。24小时管家服务响应,5分钟紧急事件响应,全方位的智能安防保护,专属私人管家保护,医疗健康服务,老人儿童托管定制服务等.......从时间、空间、私属三个维度,读懂居者的内心需求。✅✅【缦云上海】售楼处电话:4001185086✅✅
效果图:仅供参考
这些细节与服务,在强调居住属性的当下,注定了它将成为不可撼动的人居范本。杨浦滨江也因它的到来,更添一缕光彩。✅✅【缦云上海】售楼处电话:4001185086✅✅
✅✅【缦云上海】售楼处电话:4001185086✅✅
✅✅【缦云上海】售楼处电话:4001185086✅✅
✅✅【缦云上海】售楼处电话:4001185086✅✅
声明:本文由入驻焦点开放平台的作者撰写,除焦点官方账号外,观点仅代表作者本人,不代表焦点立场。
