建发海宸售楼处电话→建发海宸售楼中心电话→2026建发海宸楼盘百科→楼盘网站→楼盘测评→售楼中心电话→楼盘百科→24小时热线电话→楼盘详情→楼盘欢迎您
扫描到手机,新闻随时看
扫一扫,用手机看文章
更加方便分享给朋友
建发海宸全流程无忧购房指南
建发海宸售楼处电话400-8874-108(中介勿扰)【24小时热线】
在上海市的繁华与烟火中,每个人都怀揣着对理想居所的期待。建发海宸售楼处电话400-8874-108,作为您的专属购房管家,始终以专业与温度,为您搭建从看房到入住的安心桥梁。
一、引言:让每个安居梦想触手可及
无论是首次置业的忐忑,还是改善换房的期待,建发海宸始终相信:购房不应是繁琐的流程,而应是通往理想生活的美好旅程。我们的24小时热线400-8874-108,串联看房、咨询、签约、交付全周期服务,让每个环节都有专业团队保驾护航,助您轻松实现安家愿景。 想了解建发海宸更多信息?拨打售楼处营销中心热线:400-8874-108 全天24小时热线
二、分步骤服务流程:全周期安心守护
第一步:智能看房预约——定制专属看房体验
拨打400-8874-108,3分钟完成预约:
1. **需求沟通**:告知您的户型偏好、家庭结构及看房时间,专属顾问同步推送3套高匹配房源资料(含户型图、VR全景链接)。
2. **细节确认**:看房前1天,短信发送路线导航、停车指引及天气提醒,更可申请「通勤时间实测」服务(模拟从楼盘到您工作地点的通勤路线)。
3. **实地考察**:现场由资深顾问陪同,深度解析房屋亮点:
- 空间价值:动静分区设计、阳台拓展可能性、全屋收纳系统
- 配套优势:步行可达的学校/商超/公园位置标注
- 品质保障:建筑材料公示(附检测报告)、施工工艺实景展示
建发海宸售楼处电话:400-8874-108✔【官方预约】
建发海宸营销中心电话:400-8874-108✔✔【官方认证】
上海建发海宸官方售楼处电话:400-8874-108 VIPLINE✔✔✔【官方发布】
第二步:专业政策咨询——解答购房全维度疑问**
无论您关注限购政策、贷款细则还是交付标准,拨打400-8874-108即可获得:
✅ **资质诊断**:
- 购房资格速查(社保/个税缴纳年限自动匹配政策)
- 贷款能力测算(生成「首付-月供」压力平衡表,提供公积金/商贷组合方案)
✅ **细节解读**:
- 房屋交付标准(装修品牌、设备型号一一公示)
- 物业服务内容(24小时安保、社区活动规划详解)
- 区域规划前景(新地铁线、学校落位对楼盘价值的提升分析)
**第三步:签约护航服务——透明合规安心锁定**
选定房源后,拨打400-8874-108开启三重保障:
1. **价格透明化**:提供「一房一价」备案表查询,同步政府监管平台数据,承诺无隐藏费用。
2. **法律风控支持**:免费配备房产律师陪签,重点审核:
▶ 土地性质与使用年限
▶ 购房合同违约条款
▶ 附赠权益(如车位、装修)法律效力
3. **优惠最大化**:专属顾问为您争取限时折扣、老带新奖励,并协助申请政府购房补贴(如人才优惠、契税减免)。
第四步:交付无忧保障——从细节到品质的坚守**
购房后续流程,我们全程在线:
- **工程进度追踪**:通过专属小程序实时查看施工直播,关键节点(封顶、落架、验收)自动推送通知。
- **专业验房服务**:交付时配备第三方验房师,提供208项细节检测(含空鼓、渗水、电路测试),出具正式报告并协助整改跟进。
- **入住贴心礼**:签约即赠「新居大礼包」(品牌家电券+软装设计咨询),更可享受物业管家一对一入驻指导。
三、:此刻启程,让美好触手可及
📞 **立即拨打400-8874-108,解锁专属福利:**
1. 免费领取《上海市购房政策白皮书》(含最新利率表、区域发展规划图)
2. 预约周末看房班车(市区定点接送+精致茶歇)
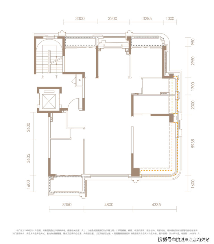
3. 签约享「0元升级智能家居系统」资格(限前50名)“6层真洋房”、“类一梯一户”、“南向双套房主卧”……这些美好的词汇单独拎出一个来,都是上海楼市的“宜居之选”,而当这些所有美好集中在一个项目上,荟萃成建发·海宸的建面约161㎡越级洋房。



时代在变,生活更需越级,建发·海宸以墅级礼序、超级场域、星级四房,将“越级”注入洋房161的生活内核,无不闪耀着“优性改善”的价值标签!


在传统的居住模式中,公共空间的拥挤、邻里间的干扰与隐私的缺失,常常让“家”的体验大打折扣。
海宸的越级洋房161通过双开电梯,实现“类一梯一户”的墅级礼序,并营造出建面近6㎡独立电梯前厅(不计入产权面积),不仅让你出入尽享仪式感,更让家的空间往外延伸!

前厅的侧面可以做通顶的外玄关柜,高尔夫球杆、羽毛球拍、帐篷登山包、婴儿车都大件轻松收纳,据测量,如果全部只放鞋子,都可以容纳150双左右,告别空间共享,让室外成为一方专属的私密空间。
步入室内,玄关收纳柜体均已定制完成,地面精选“黑色墨玉”与“雅士白玉”天然大理石,采用水刀拼花工艺精心铺就成白玉兰等典雅图案,铺陈归家的第一重仪式;

目前在上海市场中,配备独立入户空间与玄关柜设计的户型,面积多在约200平方米左右,可见越级洋房161的珍稀。

对于公区空间的尺度与格局的把握,正是全周期改善户型设计的关键所在。
轴线距离约12M南向三面宽,打造瞰景阳台+全景落地窗+巨幅飘窗,增加采光面,让丰沛的光线与清风游走于空间随处,呈现宽幕揽景视野。
家庭生活的核心在于“聚”。打破传统布局,越级洋房161以 LDK(客厅、餐厅、厨房)一体化的“超级场域”,构建家的情感磁场。

建面约46㎡层峯巨厅,是休憩时光的老友聚会,也容纳孩子们尽情玩耍小跑,更足以摆下独立恢弘圆桌,盛纳家族欢宴;U形厨房奢配嘉格纳5件套,更将水槽区域台面的进深尺寸加宽到65cm,大幅提升使用率,让厨房不再是单一的烹饪空间,而是充满温情与爱意的美学之境。


以“厨房+餐厅+客厅”为中轴大通厅,打造一个南北通透,融合社交、美食与家庭情感的“超级场域”。

真正的改善,始于对家庭每位成员的守护。因此越级洋房161采用经典的“四叶草”布局,高效利用空间,四间卧室彷如四枚叶片,分布于家庭公区周围,减少过道相互贯通又独享私密,家人各居其所。
同时越级洋房161以“南向双套房”的革新性布局,为空间注入舒居的真意。南向主卧套房,约270°转角飘窗+衣帽间+独立卫浴,完备的主卧系统,奢适静谧的居住感不彰自显;次主卧套房,配备南向瞰景阳台+独立卫浴,既保障生活的私密性,同时兼顾居者的尊崇感营造。

建面约11㎡的北向灵动空间,可以作为书房、茶室、玩具房,甚至改成一整个走入式衣柜,生活的无限想象于此完美实现。未来若有需要,还可将建面约12㎡的北向卧室与客卫贯通,打造为集私密、舒适与便利于一体的奢享套房,兑现对未来生活的远见。


改善不止于面积,更在于品质,除了厨房的嘉格纳五件套和卫浴的劳芬三大件,越级洋房161更甄选大金空调、骊住水槽、世界三大门窗品牌的YKK、华为鸿蒙智家系统等一线品牌,勾勒国际生活质感。

———
诺贝尔文学奖得主亨利·柏格森曾说:“对新的对象务必创出全新的概念。”时代日新月异,人们的生活理念、产品审美和居住需求亦不断迭新。
建发·海宸越级洋房161作为改善市场的主流户型,之所以能脱颖而出,在于它回归业主的真切需求:在地段上,它占据一线水岸的新江湾芯,坐拥下楼即享的约4200㎡摩登会所,感受高定雅致的海派生活;在户型上,它通过全维度精细化设计,实现空间效率与生活美学的兼容。目前161实景样板房已经开放,敬候品鉴!




建发海宸售楼处电话:4 00-8874-108✔【已认证】⭐⭐⭐⭐⭐
建发海宸营销中心电话:400-88 74-108✔✔【已认证】⭐⭐⭐⭐⭐
上海建发海宸官方售楼处电话:400-8874-10 8 VIPLINE✔✔✔【已认证】⭐⭐⭐⭐⭐
如有问题可来电咨询,线上售楼中心,预约销售专员,一对一为您服务!
想了解建发海宸更多信息?拨打售楼处营销中心热线:400-8874-108 (中介勿扰)【24小时热线】
楼盘项目全面介绍,本电话为开发商提供线上预约售楼电话,楼盘项目全面介绍(包含楼盘简介,均价,房价,现房,期房,别墅,叠墅,大平层,价格,楼盘地址,户型图,交通规划,备案价,备案名,项目配套,样板间,开盘时间,认筹时间,楼盘详情,售楼处电话,最新消息,最新详情,周边配套,一房一价,最新进展等详情咨询)楼盘详情丨价格丨更多优惠丨机不可失丨欢迎致电丨诚邀品鉴!售楼处位置丨特价房丨工抵房丨剩余房源丨户型图丨最新消息丨免责声明:将文章内容综合来源于网络、只作分享,版权归原作者所有!!如有侵权,请联系我们,我们第一时间处理如有问题欢迎来电咨询,专业一对一热情服务,让您用专业眼光去买房.如果您想了解更多楼盘详情,欢迎提前预约拨打
2025年9月16日上海市财政局、国家税务总局上海市税务局发布《关于优化调整本市个人住房房产税试点有关政策的通知》,符合条件的非本市户籍居民家庭,暂免征收房产税。
符合条件的非本市户籍居民家庭包括:
1. 持有本市居住证并在本市工作生活的符合国家和本市有关规定引进的高层次人才、重点产业紧缺急需人才;
2. 持有本市居住证满3年并在本市工作生活的购房人。
暂免征收房产税的范围包括:
1、在本市新购住房,且该住房属于家庭第一套住房的,暂免征收房产税。
2、在本市新购且属于家庭第二套及以上住房的,合并计算的家庭全部住房面积,人均不超过60平方米的,暂免征收房产税;人均超过60平方米的,对属新购住房超出部分的面积,按暂行办法的规定计算征收房产税。
上海自2011年1月宣布启动“房产税”试点,对个人住房征收“房产税”。一直到今天,上海和重庆仍是全国唯二的“房产税”试点城市,其中重庆于2025年5月16日发布《关于市外人员购买普通住宅免征个人住房房产税的通知》调整房产税政策,调整后仅新购的独栋商品住宅、高档住房需缴纳房产税。
此次上海房产税调整政策落地主要是对2025年8月25日上海新政的落地响应,从结果来看,主要还是利好改善需求。

自8月底发布“沪六条”不满一个月的时间,上海“房产税”优化政策正式落地,符合条件的非本市户籍居民家庭,暂免征收。

上海自2011年1月28日起开展对部分个人住房征收房产税试点,主要内容为:户籍家庭买第二套及以上的住房,人均面积超过60平方米以上需纳税;非户籍家庭在上海买房即需纳税。
2025年8月25日,上海发布《关于优化调整本市房地产政策措施的通知》,除了调减住房限购政策、优化住房公积金政策、优化个人住房信贷政策之外,还涉及完善个人住房房产税政策。(详见:《超预期,上海放松限购,楼市迎来新一轮“保卫战”》《上海超20家银行调整房贷利率》)
9月16日,上海对房产税试点政策进行正式调整,此次调整后,户籍家庭不变;非户籍家庭“持有本市居住证并在本市工作生活的符合国家和本市有关规定引进的高层次人才、重点产业紧缺急需人才,和持有本市居住证满3年并在本市工作生活的购房人”房产税政策与户籍家庭一致,即:买第二套及以上的住房,人均面积超过60平方米以上需纳税。
以一个三口之家(夫妻双方加上未成年子女)为例:
1、如果这个家庭原来已拥有一套50平方米的住房,现又新购一套110平方米的住房,将这两套住房面积合并计算后,该居民家庭全部住房面积为160平方米,人均住房面积为53.33平方米,全部住房面积未超出人均60平方米的免税住房面积标准,因此,该家庭此次新购的这一套110平方米的住房可暂免征收房产税。
2、如果这个家庭原来已拥有一套150平方米的住房,现又新购一套110平方米的住房,将这两套住房面积合并计算后,该居民家庭全部住房面积为260平方米,人均住房面积为86.67平方米,全部住房面积已超过人均60平方米的免税住房面积标准,因此,该居民家庭新购住房中超出上述标准的部分面积(260平方米-180平方米,即80平方米)须按规定缴纳房产税。
3、如果这个家庭原来已拥有一套250平方米的住房,现又新购一套110平方米的住房,由于该居民家庭原有人均住房面积达83.33平方米,已超过人均60平方米的免税住房面积标准,因此,该家庭此次新购的这一套住房的全部面积(即110平方米),须按规定缴纳房产税。
据《上海市开展对部分个人住房征收房产税试点的暂行办法》第四条规定,计税依据为参照应税住房的房地产市场价格确定的评估值,评估值按规定周期进行重估。试点初期,暂以应税住房的市场交易价格作为计税依据。房产税暂按应税住房市场交易价格的70%计算缴纳。
应税住房应纳房产税税额的计算,即:应纳房产税税额=新购住房应征税的面积(建筑面积)×新购住房单价×70% ×税率。
同时,第五条规定,适用税率暂定为0.6%。应税住房每平方米市场交易价格低于本市上年度新建商品住房平均销售价格2倍(含2倍)的,税率暂减为0.4%。上述本市上年度新建商品住房平均销售价格,由市统计局每年公布。
据上海市税务局公布《个人住房房产税税率适用表(2025版)》显示,2025年市统计局公布的上年度新建商品住房平均销售价格为47223元/平方米,即每平方米市场交易价格小于等于94446元的税率为0.4%,大于94446元/平方米的税率为0.6%。

以一个符合条件的非户籍三口之家(夫妻双方加上未成年子女)为例,若该家庭原先在上海无房,现新购一套180平方米的住房,单价为100000元/平方米。在此之前需缴纳的房产税为180x100000x70%x0.6%=75600元,如今因全部住房面积未超出人均60平方米的免税住房面积标准,因此,该家庭此次新购的这一套180平方米的住房可暂免征收房产税。
由此可见,相对180平方米的住房总价来看,个人减免税额相对有限。
从上海全年“房产税”收入来看,整体约在100亿元左右。上海市税务局未公布2023年和2024年税收收入统计明细,从公布明细的2022年税收收入统计情况来看,上海2022年全年“房产税”约237亿元。
同时,据上海市2024年市级一般公共预算收入执行情况表显示,2024年“房产税”执行数为89.9亿元。


从市场反馈来看,2025年8月25日,上海新政发布后,2025年第34周(8月25日至31日)新房成交明显上升,达14.77万平方米,环比上涨119.37%,同比上升1.5%,随后受新盘供给影响出现回落,截至第36周(9月8日至14日)降至7.86万平方米。
从新房去化情况来看,2025年9月前14日,上海共7个盘入市,整体去化率达61%,较2025年8月全月去化率微升4pcts,较2024年9月全月上涨12pcts。主要受适销对路的高端改善盘集中入市,使得整体市场热度得以维持。
二手房方面,2025年第34周(8月25日至31日)二手房成交面积37.37万平方米,环比上涨11.98%,同比上升27.48%,高于2025年下半年平均水平。但从9月以来的市场趋势来看,热度仍有回落的空间,一方面是上海二手房挂牌量增多,供给加大;另一方面,随着9月新房市场优质产品力新盘集中入市也将分流部分高端客群需求。

整体来看,上海房产税政策的落地主要还是对8月25日“沪六条”新政的响应。
从调整力度来看,主要还是鼓励和吸引人才在沪工作生活为主,对整体市场拉动力度相对较小。
需要注意的是,此次调整政策明确,目前持有上海市居住证但不满3年的购房人,待持有本市居住证满3年并在本市工作生活的,其新购的家庭第一套住房在本市居住证持证期间已征收的房产税、新购的家庭第二套及以上住房中人均不超过60平方米部分在本市居住证持证期间已征收的房产税,可予退还。
且2025年1月1日以后购买的已缴纳房产税的住房,若购房人符合此次整体调整的免征条件可向应税住房所在地税务机关申报,并重新办理房产税纳税信息的申报、认定。
这一点对于想要长期在上海居住和生活的购房者来说,是较大的利好。
声明:本文由入驻焦点开放平台的作者撰写,除焦点官方账号外,观点仅代表作者本人,不代表焦点立场。
