露香园售楼处电话:400-8874-108✔【已认证】 露香园营销中心电话:400-8874-108✔✔【已认证】
上海露香园官方售楼处电话:400-8874-108 VIPLINE✔✔✔【已认证】
——露香园——
露香园售楼处电话:400-8874-108✔【最新预约】
露香园营销中心电话:400-8874-108✔✔【最新认证】
上海露香园官方售楼处电话:400-8874-108 VIPLINE✔✔✔【最新发布】
如有问题可来电咨询,线上售楼中心,预约销售专员,一对一为您服务!
想了解露香园更多信息?拨打售楼处营销中心热线:400-8874-108 (中介勿扰)【24小时热线】


LUXURY HOUSE

新房首推

露香园·云宸
LUXURY HOUSE
预售详情
黄浦豫园钻石级地块
露香园二期【露香园·云宸】
首推高层262套房源,均价16.3万/㎡
开盘选房已结束,去化约80%
加推12套风貌别墅
仅剩少量席位
建面约410m²联排别墅共5套
建面约430- 450m²双拼别墅共4套
建面约510-540m²类独栋别墅共3套
单价24~32万元/m²
总价约1.08亿元起

露香园二期整体规划 10.94 万方高层住宅、2.44万方低层住宅(联排别墅)、5.22万方商业以及历史风貌建筑。
项目整体分为 6个地块,即A、B、C1、C2、D1和 D2。
项目B、D1地块公寓已于2024年3月上市,目前基本售罄。
现D1地块风貌别墅即将上线,建面约410-540㎡。
户型介绍



风貌别墅效果图














露香园二期可售住宅部分为A、B、C、D四个大地块分别开发建造。首开入市的为B地块和D1地块。

▲ 露香园二期地块分布信息
项目首开已入市平层情况
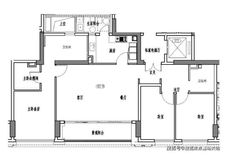
露香园二期首开入市的 B地块,主要提供约166-213㎡的三房两厅两/三卫高层公寓,共103套;提供约216-254㎡的四房两厅三卫高层公寓,共74套。该地块 共177套房源。
B地块户型图参考

▲ 建面约253㎡4房2厅3卫

▲ 建面约234㎡4房2厅3卫

▲ 建面约213㎡3房2厅3卫

▲ 建面约182㎡3房2厅2卫

▲ 建面约186㎡3房2厅2卫

▲ 建面约166㎡3房2厅2卫

▲ 建面约199㎡3房2厅3卫

▲ 建面约217㎡4房2厅3卫

▲ 建面约229㎡4房2厅3卫
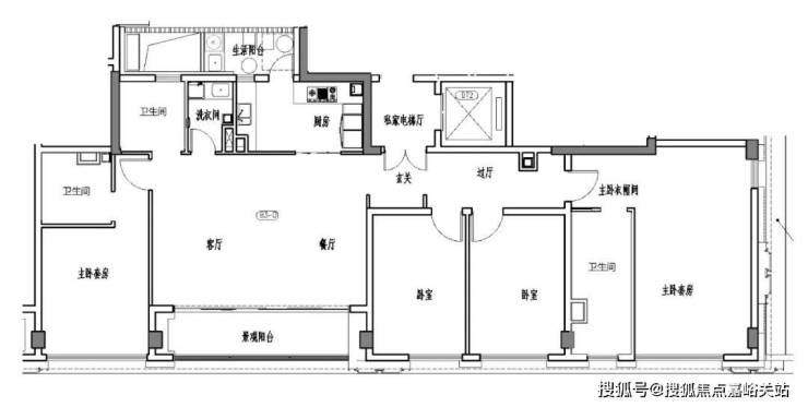
露香园二期首开入市的D1地块,主要提供约159-206㎡的三房两厅两/三卫高层公寓,共84套;提供约215-224㎡的四房两厅三卫高层公寓,共2套;提供约400+或500+㎡的五房三厅五/六卫别墅产品,共12套,相信也会是和一期类似的石库门风格别墅。该地块共98套房源。
D1地块户型图参考

▲ 建面约208㎡3房2厅3卫

▲ 建面约159㎡3房2厅2卫

▲ 建面约196㎡3房2厅3卫

▲ 建面约224㎡4房2厅3卫

▲ 建面约215㎡4房2厅3卫

▲ 建面约198㎡3房2厅3卫

▲ 建面约164㎡3房2厅2卫

▲ 建面约177㎡3房2厅3卫

▲ 网传露香园二期首开地块面积段分布
*以上部分信息来源于互联网,最终以开发商公示为准
不过,露香园二期的开发商,典型的上海本地国企——上海城投作风一向稳健踏实,并不激进,步调扎实潜心做产品, 敬请期待。

前情回顾
2021年1月5日,上海城投拿下豫园“钻石级”地块(《露香园》二期),因报名房企只有一家,最终 上海城投以176亿的底价获得该地块,溢价率为0,以地上计容面积计算,楼板价约为89,567元/㎡,以地上商业+住宅计容面积,楼板价约93,500元/㎡, 若扣除保障房面积,楼板价则为约97,000元/㎡!

露香园二期规划方案曝光,项目总投资额(含地价)高达280亿,是露香园一期总投资额的2.5倍以上。以经营性面积计算,二期的平均开发成本(含商业)高达15.17万元/㎡!

先来看已经公示的A、C2、D2地块:

其中右上角的A地块是高层住宅,据悉约5.45万㎡,共150套,套均面积364㎡。C2地块为纯低密产品。南侧的D2地块是大量商业和保障房。
整体效果图可以参考这张:

从开发指标来看,露香园二期共包含:
10.79万平方米的高层住宅
2.44万平方米的低层住宅(联排别墅)
5.22万平方米的商业
露香园二期一共可分为A、B、C、D四个大地块。

地块户型规划及解读
项目考虑功能性的同时兼顾舒适度,参考案例套数下限进行本项目户型配比分析:
高层公寓户型建议
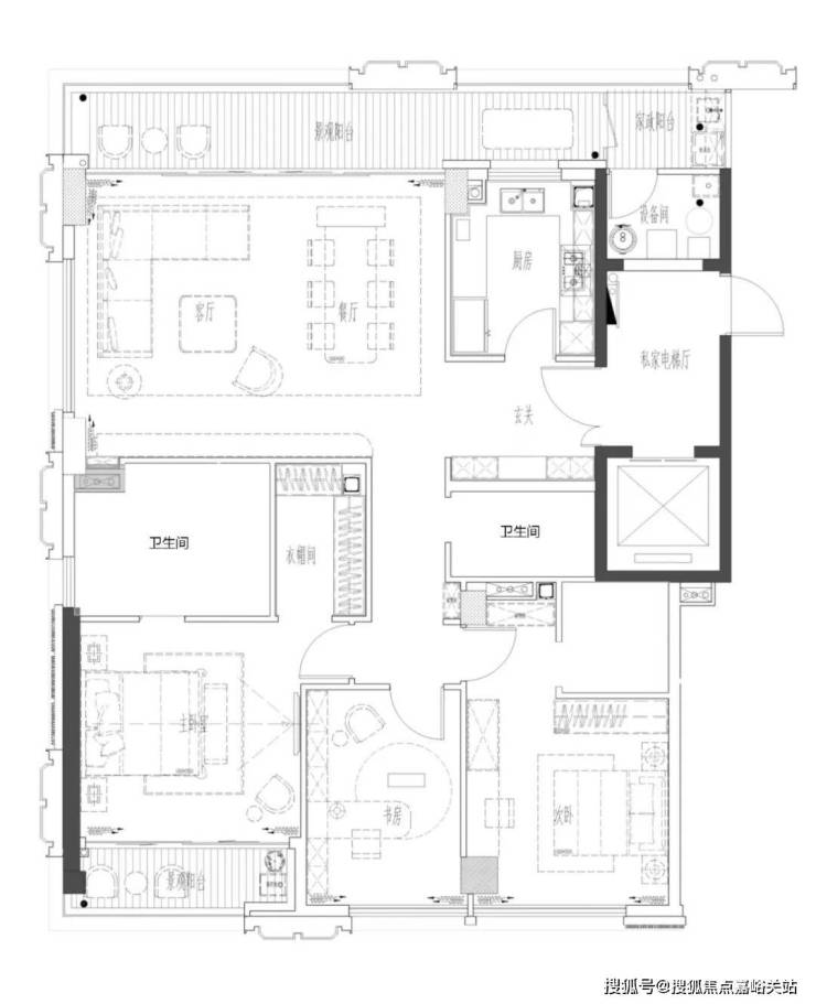
本项目地块位置优越, 且位于风貌保护区, 为打造市中心顶级豪宅, 高层面 积段均为大房型。
其中, A 地块高层公寓视野及地理位置均最佳, 户型以四房户型为主, 主力 产品面积段为260-500 ㎡,私家电梯厅入户,礼仪性玄关,多套房设计。 顶层设置豪华顶复套型,彰显尊贵及稀缺特性。
B 地块高层公寓户型主要为三房及四房, 面积段为 166-254 ㎡, 强化房间功 能性,私家电梯厅入户,礼仪性玄关,主卧套房设计。
户型亮点为 礼仪性入户,南北通透,大尺度空间,卧室舒适度和私密性高,大面积玻璃窗可实现更好的视野与采光。
别墅户型建议
本项目别墅凭借风貌保护区的核心天然优势和老上海记忆成为了市中心不 可多得的收藏品。
其中,【开明里】为历史建筑, 经过原有建筑及院落合并升级、内部空间改造提升后, 满足现代品质生活功能性、安全性、舒适性及耐久性的需求。别墅产品有 联排及独栋,户型面积段主要集中在 210-560 ㎡,带私人花园及地下室。
C2 及 D1别墅,延续海派石库门风格,与开明里风格统一,充分体现历史风貌与街巷肌理。户型配置主要为三房至五房,面积段主要集中在 350-540㎡。庭院方正,房型通透;挑高客厅,尽显奢华。
户型亮点针对高端人群需求, 通过 形态升级、功能分层带来空间舒适度和居住私密性的改善以及花园、露台、地下室的附赠, 突显尊享性,满足生活方式升级和身份认同感。
六维产品体系
产品细化:搭建六维产品体系, 从装修、立面、公共空间、景观、物业、车位等方面推动产品品质升级,树立黄浦区城市更新封面之作。
装修标准
露香园二期【露香园·云宸】
项目装修从业主需求多样性及控制成本角度考虑,建议采用基础装标, 满足验收要求,交房后业主可根据个人风格喜好进行改造升级。
对标周边项目装修标准, 本项目采用品牌保障的国际知名品牌,整体装修充分满足基本需求配套。

立面风格
露香园二期【露香园·云宸】
项目高层公寓产品 立面风格建议采用铝板+大面积玻璃式现代风格

公共空间建议
露香园二期【露香园·云宸】
项目用类似五星级酒店大堂的形式打造, 设置服务台和会客区, 电梯内部装修。地上地下双大堂,地下车库直接刷卡入户,使住户归家拥有舒适体验,第一印象良好。

景观生态
露香园二期【露香园·云宸】
本项目景观注重功能区的品质感和高级感,同时兼顾舒适性和社区互动性,打造全年龄段的主题区域,提升整体空间品质,促进社区文化的和谐发展。

物业服务
露香园二期【露香园·云宸】
项目物业着眼于客户诉求, 加强基础物业服务, 尤其是维修、快递收件服务。其次建议加入24h 便利店、24h维修服务、入户保洁等物业服务,提高居住舒适度,同时提高安全保障,为业主提供品质保障生活。此外,针对不同年龄段的业主的需求,提供差异化的服务,如学龄儿童托管及培训服务, 中青年团体活动、汽车服务、老龄业主医疗服务等。

车位空间
露香园二期【露香园·云宸】
车库建议采用人车分流模式、并设置地下停车空间, 采用车库智能通行系统、 新风系统等,打造科技、舒适的品质生活。
地块具体规划情况
A地块概况
露香园二期【露香园·云宸】


▲ A 地块沿街效果图
▲ A 地块户型分布图

A 块集中商业均设置于裙房 B1至 4F层,主要为满足本社区高端住宅居民日常消费以及周末便捷消费需求,商业业态为高附加值商品销售和私人高端定制服务。其中:
B1层考虑到与地铁10号线豫园站接口,主要为轻食简餐、甜品饮品、人气零食、便利店等业态;
1F 层主要为花店、咖啡店、面包烘焙、画廊、婚纱礼服高端定制、高端家具、餐具、书店等业态;
2F 层主要为皮具护理、轻餐、下午茶、烘焙学校、拍卖行、高端 SPA、插花 DIY、小众家电、西式料理等业态;
3F 层为精品超市、西装高珠定制、休闲娱乐(冲浪、滑翔伞、高尔夫、马术、钓鱼用具及配件和威士忌、红酒、咖啡、茶、雪茄吧) 以及以健身为主题的会所(包括 4F 层部分区域)。
商铺将根据业态布局要求委托招商代理单位租赁给相应品牌商户,确保露香园社区品质;会所因仅为露香园社区业主适用,将委托物业管理单位统一经营管理,相应功能场所可有业主预约使用。
B(210-F-01 地块)
露香园二期【露香园·云宸】

▲ B 地块沿街效果图
▲ B 地块户型分布图

B 块商业用房将以 长租公寓的形式通过公开比选方式委托由相应品牌和管理经验的经营单位进行经营管理, 在不影响露香园社区品质的条件下,确保持有商业资产的保值增值。
C1(210G-01)地块
露香园二期【露香园·云宸】
▲ 地块里弄效果图

C1 地块为【开明里】, 目前为方案设计阶段。
开明里南北向行列式的肌理完整、内部里弄结构清晰, 体现了老城厢里弄街坊典型的 “外市内里”和“街巷弄院”空间肌理特征。开明里共有三类保护等级, 内里为黄浦区文物保护点,南部沿街为保留历史建筑,西侧沿街为一般历史建筑。 本地块历史建筑通过合并三开间或双开间、优化建筑间距、地库整体开挖等更新 策略,提升居住品质。
▲ C1 地块户型分布图

功能业态 由 2-3 层住宅、3 层商业及 B1 层地下住宅及 B2 层地下车库组成。 总建筑面积为 31970 ㎡, 其中地上建筑面积为 4650 ㎡, 地下建筑面积为 17320 ㎡。地上计容建筑面积 14050 ㎡,其中低层住宅 11050 ㎡,商业 3000 ㎡(其中 含 1 户商墅 340 ㎡) ;地下建筑面积 17320 ㎡, 其中地下车库 11220 ㎡, 地下住宅 6100 ㎡。 住宅总户数 27 户,主力产品户型为低层别墅。
C1 块沿大境路的商铺主要为 高端私人定制服务、设计师工作室、创意餐饮 和西式咖啡简餐等业态,将根据业态布局要求委托招商代理单位租赁给相应品 牌商户,确保露香园社区品质。
C2(213B-01地块)
露香园二期【露香园·云宸】
C2 地块延续 C1 开明里的 行列式规划肌理, 形成风貌肌理的统一。目前为方案设计阶段。
功能业态由 2-3 层住宅、3 层商业及 3 层地下车库组成。总建筑面积为 40041 ㎡, 其中地上建筑面积为 13211 ㎡, 地下建筑面积为 26830 ㎡。地上计容建筑面 积 12511 ㎡, 其中低层住宅 8010 ㎡, 商业 4501 ㎡(其中含 1 户商墅 452 ㎡); 地下建筑面积 26830 ㎡,其中地下车库 18430 ㎡,地下住宅 8400 ㎡。 住宅总户数 19 户,主力产品户型为低层别墅。

▲ 地块鸟瞰图

▲ C2 地块户型分布图
C2 块沿河南南路和大境路的沿街商铺主要为 国际潮流品牌零售、美学生活 馆、高奢美妆品牌零售、主题概念咖啡餐饮等业态, 将根据业态布局要求委托招 商代理单位租赁给相应品牌商户,确保露香园社区品质。
D1地块
露香园二期【露香园·云宸】
D1 地块目前为施工阶段。
东地块(211J-02 地块) 为两栋高层住宅塔楼及公配裙房。北侧为 D1-1# (19 层) 、南侧为 D1-2# (18 层),其中 1-3 层为住宅大堂及核心筒, 4 层为结构转 换层,余层为住宅。D1-3# (3 层)裙房为公共配套,其中社区网格化管理中心 200 ㎡,文化设施 4500 ㎡,另有地下菜场 1500 ㎡;
西地块(211J-02 地块)为 四栋 3 层住宅及 3 层商业。其中北侧沿大境路为商业功能, 其余为住宅。总建筑 面积为 46557.33 ㎡,其中地上建筑面积为 29370.18 ㎡,地下建筑面积为 17187.15 ㎡。住宅总面积 21207.16 ㎡,总户数 98 户,主力产品房型为高层公 寓及低层别墅。

▲ D1 地块整体效果图

▲ D1 地块户型分布图
商代理单位租赁给相应品牌商户,确保露香园社区品质。 D1 地块商业主要为高端零售、轻餐饮等业态,将根据业态布局要求委托招。
D2地块
露香园二期【露香园·云宸】
D2 (211K-04 地块、 211K-05 地块、 211K-06 地块、211L-01 地块、 211L-02 地块、 211L-03 地块)
D2 地块目前为方案设计初期阶段。其中 211L-02 地块上现有原南市区图书馆(保留历史建筑) ,2021 年 8 月 10 日已通过《黄浦区露香园二期历史建筑细 化甄别成果专家评审会》,专家意见为:增加方浜路图书馆的分析,其中木梁架、 轩廊应仔细测绘记录位置,并做好落架修缮的准备工作。
D2 地块内、位于方浜路以南的 保留历史建筑,原为华强纸栈、南市区图书 馆,现存院落格局完整,局部保存有精美的门头、墙面装饰,是 1920 年老城厢 内中西结合式住宅的典型代表,但后期改建较多,房屋结构破损严重。拟对有特色的装饰构件进行保留,其余外立面采用整体原貌复建的方式。
▲ 地块入口效果图

D2 地块从北向南,结合 D1 “露香池”统筹打造整体风貌片区,围绕慈修庵 设置 2~3 层的休闲开放商业街区, 在方浜中路中设置公共生活广场, 与方浜中路 600 号历史保留建筑共同塑造露香园地区的南门户。211L-01 地块靠近昼锦路设 置一栋 16 层高层塔楼,裙房设置 300㎡助餐服务点, 800㎡老年人日间服务中心, 1000㎡豫园街道社区服务中心,塔楼为公租房,共 86 户。总建筑面积为 41664.09㎡,其中地上建筑面积为19307.8 ㎡,地下建筑面积为 22356.29㎡。 公租房总面积 7078.81㎡,总户数约94 户。

▲ D2 地块户型分布图
D2 地块商业主要为画廊/个人艺术展、创意餐饮和咖啡简餐、茶室/俱乐部、 新概念生活展示馆等,并将配置米其林餐厅/黑珍珠餐厅以提升餐饮品质,将根 据业态布局要求委托招商代理单位租赁给相应品牌商户, 确保露香园社区品质。
建筑配置标准参考
露香园二期【露香园·云宸】




室内配置标准及指标
(一)大区普通基础交付标准:2000 元/㎡
(二)大区精装交付标准:5000 元/㎡
(三)装修包展示样板房交付标准:8500 元/㎡





露香园二期目前正在建设中,预计有望于二季度入市:

露香园项目历史背景
露香园二期【露香园·云宸】
露香园·缘起
露香园1559-2015。始建于明嘉靖,是“明代上海三大名园”之一,“顾振海墨”、“顾绣”等艺术佳品皆诞生于此,由此书写了一段有关名仕名园的精致生活。
明嘉靖年间卸任道州太守顾名儒,购得城北黑山桥地块,共计九亩,盖起了万竹山房,其弟顾名世在万竹山房东西开辟旷地,凿池得石,上有“露香池”三字,据说还是赵孟頫的手迹,便称此园“露香园”,这个地方也俗称“九亩地”。


鸦片战争期间,上海为加强海防设立火药局,火药仓库就建在露香园内,1842年4月18日,火药仓库突然爆炸,露香园被夷为平地,此园遂废。
露香园园林废弃后,此地陆续建起房屋,经过近代大量的营造,整个街区的马路、弄堂、街坊、石库门与宅院,是上海老城厢的一个缩影。



开发商对街区中有文化价值的建筑,采用保留的方式予以修复改造。
走在露香园与历史文化古迹不期而遇,心底总会涌起一份感动,这份感动,源于对这座城市的热爱,更源于对厚重历史的尊重。露香园的开发者、建设者,背负着这样一个使命——那就是尊重城市文化,善待城市历史,创新城市未来。
露香园今生
【露香园】 位于黄浦区老城厢畔,东临外滩、西接新天地、南傍豫园、北衔人民广场。
现在的露香园住宅是在闻名遐迩的露香园园林原址上建起来的。此外,还将会对原有的六幢老式建筑进行修缮保留,如沈醉旧居、严氏旧居及民国时期颜料大王赵竹林所居的赵公馆等。



【露香园】北向西沿人民路、南到方浜中路,东至河南路;距离8号线大世界站直线距离约550米,离10号线豫园路站直线距离约450米。
魔都顶级繁华环绕其中,如同“恍若隔世”般的存在,几百米外车水马龙人声鼎沸、现代化高楼大厦林立周围,转眼就是沧桑历尽的古城墙,喧嚣的灵魂仿佛在这里都得到了完美的休憩。
露香园-豫园板块的绝对标杆
露香园二期【露香园·云宸】
露香园AROMA就是豫园板块的绝对标杆,命名来源于明代上海三大名园之一的露香园,坐落在露香园路,原汁原味,静谧奢华。
露香园一期开盘售价:
平层14.5万/㎡,建面约160-180㎡;
叠墅16万/㎡ ,建面约103-282㎡;
联排别墅21万/㎡建面约172-688㎡。

露香园1-2期都由本地国企的上海城投开发,1期为干挂石材外立面的小高层和高层,2期为石库门风格的别墅。前低后高依次排布,最南边是别墅地块,1期前排是15-18层的小高层,后排25、35层高层两栋。


露香园配套:双会所尊崇礼遇
露香园二期【露香园·云宸】
从室内泳池到健身俱乐部,从红酒雪茄房到VIP宴客区,露香园在上海首次引入了“专业健身房+上层社交场”的双会所服务理念,业主不仅可近享“品牌健身会所”内的全套专业设备,还能在仅对业主开放的“泛会所”内款待亲朋。

所谓“泛会所”,即每四幢楼的二层室外部分以廊相通,形成围合式的花园平台,地面采用石材铺装,除精致的绿化小品外,增设多种户外活动设施,如儿童游乐区、高尔夫推杆区、BBQ烧烤区等;
本次二期产品大概率还是延续老上海格调的石库门+现代代摩登风格,格调依旧非常高,相信价格也将会超越一期21万元/㎡的均价(大概率是要涨的),预计套均总价接近亿元!

▲ 万竹街41号

▲ 露香园一期

▲ 露香园一期低区

▲ 露香园一期低区夜景
本次二期产品风格预计还是延续老上海格调的石库门+现代代摩登风格,格调依旧非常高,预计套均总价接近亿元,感兴趣的朋友们可以提前了解~
▲ 露香园一期实景图

二期认购细则及要求









露香园售楼处电话:400-8874-108✔【已认证】
露香园营销中心电话:400-8874-108✔✔【已认证】
上海露香园官方售楼处电话:400-8874-108 VIPLINE✔✔✔【已认证】
如有问题可来电咨询,线上售楼中心,预约销售专员,一对一为您服务!
想了解露香园更多信息?拨打售楼处营销中心热线:400-8874-108 (中介勿扰)【24小时热线】
楼盘项目全面介绍,本电话为开发商提供线上预约售楼电话,楼盘项目全面介绍(包含楼盘简介,均价,房价,现房,期房,别墅,叠墅,大平层,价格,楼盘地址,户型图,交通规划,备案价,备案名,项目配套,样板间,开盘时间,认筹时间,楼盘详情,售楼处电话,最新消息,最新详情,周边配套,一房一价,最新进展等详情咨询)楼盘详情丨价格丨更多优惠丨机不可失丨欢迎致电丨诚邀品鉴!售楼处位置丨特价房丨工抵房丨剩余房源丨户型图丨最新消息丨免责声明:将文章内容综合来源于网络、只作分享,版权归原作者所有!!如有侵权,请联系我们,我们第一时间处理如有问题欢迎来电咨询,专业一对一热情服务,让您用专业眼光去买房.如果您想了解更多楼盘详情,欢迎提前预约拨打