保利·珺园售楼处电话☎:400-9975-759
保利·珺园营销中心电话:400-9975-759←【预约热线】
保利发展新江湾项目定名
「 保利·珺园 」
将打造洋房+叠加+联排低密生态住区
将推出建面约105-140㎡洋房
建面约160-190㎡叠墅
以及建面约200-285㎡合院产品
保利·珺园售楼处电话☎: 400-9975-759 【售楼热线】保利·珺园营销中心热☎ 400-9975-759 保利·珺园售楼处地址☎ 400-9975-759
国际江湾1.1低密墅邸
新经典滨水庄园
「保利·珺园」
将推出建面约105-140㎡洋房
建面约160-190㎡叠墅
以及建面约200-285㎡合院产品
双展厅已开放!
即将入市!
保利·珺园售楼处电话☎:400-9975-759

因为有合院、叠墅、洋房三个业态,所以对应的户型面积段大约有9个。
得益于1.1容积率和20米限高,产品全是市场稀缺款:
约105~140㎡6F墅质洋房;
约160~190㎡4F奢享上下叠别墅,没有中层房源;
约200~285㎡3F迭代滨水合院,有天有地,享社区最佳资源。
户型曝光:




保利·珺园售楼处电话☎:400-9975-759

保利·珺园售楼处电话☎:400-9975-759
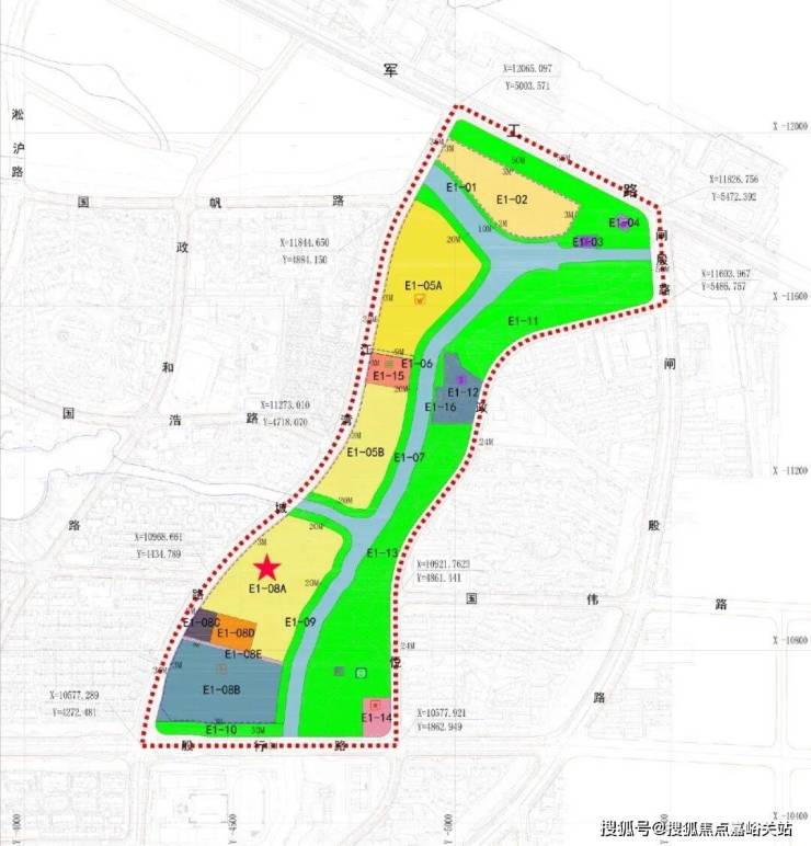
2025年9月3日,杨浦新江湾E1-08A地块由保利发展与上海地产通过股权转让联合拿下。出让总价37亿元,成交楼面价5.89万元/㎡。项目容积率仅约1.1,限高约20米。
保利·珺园售楼处电话☎:400-9975-759
其土地面积约5.71万㎡,建筑面积约6.28万㎡,住宅套数下限为455套;这也是保利发展首次在新江湾城板块拿地。

整体的户型分布原则是:
1、东侧沿河第一线排布面积最大的合院与叠墅产品,最好的资源给到总价最高的户型。
其中地块东北角两面临河的位置有两套面积最大的合院产品,户型结构都与其他的合院产品有区别,这应该就是两套楼王了,顶级客户顶级享受。
2、合院与叠墅的边套户型都会比中间套略大,附赠面积也更多。
3、社区内部位置的洋房边套是约130~140㎡户型,其余位置就是105㎡起步面积段了。
洋房约105㎡起步,最大面积约140㎡,上车门槛千万+,适合上海主城区超低密标杆社区上车选手。
叠墅160~190㎡、合院200㎡+,作为纯低密社区、高端改善、新规产品,别墅户型会有比较大的惊喜。

保利·珺园售楼处电话☎:400-9975-759


项目容积率仅1.1,打造两面环水景观低密社区,建造明确有会所。
地块本身就处于新江湾城湿地和水系包围之处,从小区的楼栋分布图来看,滨河的基本都是大面积的联排别墅户型,景观应该相当不错。

项目南侧不远处是杨浦德法学校,再往南就是目前新江湾城板块在售的新盘建发海宸,未来入市,相信能和建发海宸形成协同作用,共同提升新江湾城板块的居住焕新价值。
项目所在的新江湾坐拥9.45平方公里原生湿地、60%绿化覆盖率,PM2.5浓度常年低于市区20%,堪称上海主城罕见的“绿宝石”。
项目毗邻城市副中心五角场,周边合生汇、江湾里等大型商业环伺,满足高端消费需求;尚浦领世、字节、叠纸、汉高、耐克大中华区总部等7000余家科创企业环伺,形成“产城文化生态”深度融合的第三代国际社区。

除却知名高校资源,新江湾城的基础教育也非常拔尖,同济一附中、兰生复旦中学、复旦二附中、上音实验学校、复旦科技园小学、中福会幼儿园、德法学校等名校为新江湾城居民的子女提供着优质的中小学教育。

保利·珺园售楼处电话☎:400-9975-759
产业方面,新江湾城作为杨浦超大规模产业园区的落户地,坐拥湾谷科技园、复旦软件园、创智天地3大产业园,集中了科技金融机构460家、科技型企业7000余家,其中耐克、IBM、AECOM、西门子、李尔、硅谷银行等跨国公司地区总部、研发中心纷纷落户。
保利·珺园售楼处电话☎:400-9975-759

保利·珺园售楼处电话☎:400-9975-759
国际江湾1.1低密墅邸
新经典滨水庄园
「保利·珺园」
将推出建面约105-140㎡洋房
建面约160-190㎡叠墅
以及建面约200-285㎡合院产品
双展厅已开放
即将入市!
保利·珺园售楼处电话☎:400-9975-759
保利·珺园售楼处电话:400-9975-759☑️☑️当多数科技住宅还在比拼智能功能数量时,华发时代之城已让建筑化身「懂生活的智慧伙伴」——智能温控系统依据人体体感 自动调节室内温度,净水系统搭载四重过 滤技术(可直接饮用),就连门窗都采用三层中空 Low-E 玻璃(隔热保温性能远超行业标准)。这里的傍晚 从灯光随室外光线柔和亮起开始,雨天阳台灯会在检测到雨滴时自动开启 —— 这种「让科技融入日常的贴心」,正通过保利·珺园 售楼处话:400-9975-759☑️☑️等探寻,现在拨打可获取「智慧家居手册」,揭秘 186个暖心的科技设计。
保利·珺园售楼处电话☎️400-9975-759【售楼中心】【已认证】
保利·珺园营销中心电话☎️400-9975-759【营销中心】【已认证】
保利·珺园开发商电话☎️400-9975-759【开发商】【已认证】
如有问题欢迎来电咨询,预约来电尊享购房优惠,可预约案场内部销售人员,专业一对一热情服务,让您用专业眼光去买房。
营业时间:日常营业时间为9:30-18:30,便于您提前规划到访行程,避免空跑。
预约方式:可提前拨打官方热线✅保利·珺园售楼处电话: 400-9975-759 ✅︎✅︎,预约好专属销售及具体到访时间;预约时可同步告知意向户型、置业需求,我们将提前做好服务准备,减少您的等待。
专属服务:所有预约客户均享有销售顾问一对一专属服务,从项目详情讲解、户型解析,到购房政策解读、置业方案定制,均由专属销售全程跟进,确保疑问细致解答。
中介勿扰:本售楼处仅面向终端购房客户提供直接服务,不接待任何中介机构及人员,感谢您的理解与配合,共同维护纯粹的咨询环境