上海房产市场整体下行与高价豪宅 “日光售罄” 的反差,【中建玖上琅宸】营销中心预约热线:4001185086上海楼市呈现出鲜明的“冰火两重天”态势:一边是普通住宅市场承压下行,去化压力凸显;【中建玖上琅宸】营销中心预约热线:4001185086另一边却是高价豪宅屡现“日光售罄”,价格与成交量同步攀升。这种分化并非短期偶然,而是供需结构、客群需求等多重因素共同作用的结果。【中建玖上琅宸】营销中心预约热线:4001185086
豪宅屡破纪录,普通住宅稳中有降,上海豪宅市场的价格天花板持续上移,核心地段的顶豪项目单价已突破30万元/㎡。2025年嘉里建设的金陵华庭开盘,顶楼复式单价达32.68万/㎡,总价高达2.8亿元,刷新上海豪宅单价纪录;【中建玖上琅宸】营销中心预约热线:4001185086此前中建玖上琅宸以30.27万/㎡的单价刚创下纪录,仅三个月便被超越。即便非顶层的普通豪宅房源,价格也保持高位——2024年中海顺昌玖里均价21.4万/㎡,翠湖天地六期均价28万/㎡,陆家嘴滨江凯旋门最高单价30.22万/㎡。【中建玖上琅宸】营销中心预约热线:4001185086
主力建面约128-210㎡3-4房,
并有少量约400-520㎡顶层户型!

项目首开已售罄,现二批次即将加推
1、静安大宁 1/20号线地铁口
2、内中环间、灵石公园对面
3、建面约128-210㎡ 3-4房
4、当代公园地标作品!
5、陶板外立面+10米架空层+泳池会所
6、前期均价14.68万/㎡

认购时间:9月11日-15日
认购地点:静安区广中西路199弄
个人认购金:200万元
企业认购金:200万元
开盘时间:9月21号
楼栋分布图

首开3号楼A,4号楼,5号楼,一共140套,其中128㎡户型66套,160㎡户型22套,190㎡户型22套,210㎡边套(四房)15套,210㎡中间套(三房)15套。





【中建玖上琅宸】一房一价表



实景示范区鉴赏







<< 滑动查看下一张图片 >>





左右滑动查看更多
项目拟建8栋12-24F的高层+1栋办公,规划总户数为446户
“悬浮社区”8栋住宅楼全部首层架空
人车分离,大面积景观空间,“私家泳池”,类别墅居住体验
项目产品已有豪宅特质,未来也将备受瞩目
关于项目的价格,也是很值得期待的。大宁近三年只有两个新房项目入市。2022年静安府西区少量叠加,建面约168-179㎡,均价10.87万/㎡;2022至2023年的静安天悦,入市均价10.5万/㎡,面积段在107-245㎡之间,中小套型比例占8成。即使是区域标杆大宁金茂府,蕞大公寓面积250㎡,也没超过中建玖合项目。
中建玖合项目,光是楼板价就有6.83万元/㎡,地块内还规划有办公,单算住宅楼板价还不止这个数。所以远超当年大宁金茂府的4.7万元/㎡、静安天悦的5.17万元/㎡。
即使是按目前静安新房项目的均价12.5万/㎡来保守计算,270㎡大平层的总价也要3300多万。若按更高的16万/㎡计算, 面积约270㎡的一套房源总价就已超过4000万,所以项目未来售价肯定不会低。
效果图参考





1
项目规划情况
根据项目规划设计方案:项目拟建8栋12-24层高层住宅。

项目整体楼栋规划遵循“南向大户型、北向小户型”原则,蕞好的景观面留给大户型非常合理。270户型顶楼部分有私家泳池,大概率是项目的470楼王所在位置,东西向打通,1栋1套,共计也就2套。

从规划图来看,项目前排可直面大宁灵石公园无敌景观;而办公部分设置在地块东北侧,也有隔断进行出入口区分,对住宅部分来说几乎没有影响。

特色一:首层全架空,打造“悬浮社区”
项目8栋住宅楼全部首层架空,可以提供社区内部更多样化的功能组合,像是“泛会所”或是每栋楼不同的架空层功能空间,打造空间的可持续性。
特色二:地面0车位,大面积景观
社区内部全部2层地下车库,可留出更多空间打造地面景观。并且,项目“完全人车分流”设计,即:项目的人行和车行出入口是完全分开的,安全系出更高!

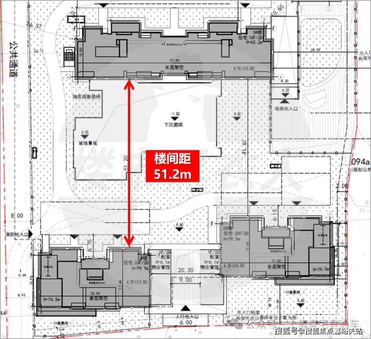
从规划图来看,社区内部广泛运用水景:共有2处大型集中水景+1处宅间水景,周边还有下沉庭院+坡地景观,大概率此处未来社区会所的位置。值得一提的是,项目的楼间距全部在35米以上,最大楼间距达到了约51.2米。

特色三:私家悬浮泳池,类别墅居住体验
蕞南端的1#和2#楼均配套有私家泳池,还在19F采用了住宅楼当中较为少见的悬挑工艺,延伸出了一定的使用空间,预计就是做类似于“悬挑泳池”的。这里应该就是传说中的“超级大平层”所在位置。

2
地块前情情况
9月14日, 中建玖合在上海市2024年第五批供应商品住宅用地中,以 63.66亿元成功获取上海市 静安区灵石社区N070402单元094a-14地块,总计容建筑面积9.32万平方米。

该地块西侧是宝华万豪酒店,再往西就是大宁音乐广场,地块东侧就是新梅共和城,南侧刚好就是大宁公园,整体城市界面可圈可点。


094a-14地块用地性质为 住宅与商务办公混合用地(Rr3C8) ,与静安天悦一样,都不是纯住宅地块。

该地块办公部分业态功能应符合中环两翼创新创意集聚带总体规划定位,积极发展总部经济、涉外经济,鼓励引入央国企、民企等各类企业总部入驻。
具体地块指标上:
占地面积约3.16万方,整体容积率2.95,其中住宅占比79%,总体量在7.37万方,按套均小于100㎡来估算,预计有超700套房源供应;按住宅限高80米来计算,供应产品为25-26层的高层产品,中规中矩的中小型社区。

从成交占比来看,上海豪宅市场的份额正持续扩大,【中建玖上琅宸】营销中心预约热线:4001185086成为拉动楼市的“稳定器”。2023年上海总价3000万以上商品住宅成交占比仅1.18%,2024年便攀升至4.59%,2025年前三季度已接近2024年全年水平;【中建玖上琅宸】营销中心预约热线:40011850865000万以上豪宅的成交占比从2023年的不足0.3%,升至2024年的1.03%,2025年前三季度进一步跃升至1.97%,两年间占比翻了近7倍。与之相对,普通住宅的市场份额虽仍占主导,但呈收缩态势。【中建玖上琅宸】营销中心预约热线:4001185086
当黄浦江的涛声掠过百年外滩,当陆家嘴的霓虹点亮天际线,上海这座城市始终以开合天地的气度,承载着时代先行者的理想与抱负。【中建玖上琅宸】营销中心预约热线:4001185086在这片浸润着历史厚度与时代锋芒的土地上,一处能匹配城市格局的传世豪宅,【中建玖上琅宸】营销中心预约热线:4001185086从来都不只是居所的定义,更是身份的勋章、生活的艺术品。今日,我们邀您共赴一场关于顶级人居的深度邂逅,在【中建玖上琅宸】营销中心预约热线:4001185086的方寸之间,读懂上海豪宅的真正内涵。【中建玖上琅宸】营销中心预约热线:4001185086