上海所有城市节点的改变,都是从商 业中心的变迁开始的。

🔆🔆招商时代乐章售楼处电话:400-8894-986🔚🔚


🔆🔆招商时代乐章售楼处电话:400-8894-986🔚🔚


🔆🔆招商时代乐章售楼处电话:400-8894-986🔚🔚
换句话说,一个大体量、高能级的重磅商业综合体的落地,有着再定义区域中心的能力。
又或者说,一个板块的发展,永远都是大型商业配套先行的。
庞大的商业体量带动人气、聚集人口、增加板块宜居程度,最后达到对板块价值的拉升目的。
而这就是一个大型商业体的作用。 🔆🔆招商时代乐章售楼处电话:400-8894-986🔚🔚
最新消息,7号线/15号线双轨交, 潘广路TOD项目——【招商时代乐章】二期三批次开盘热卖中!
作为今年北上海热度首屈一指的TOD大盘,招商时代乐章四开四捷的傲人成绩背后,隐藏着的是约 66万方TOD大城带来的,丰富生活场景与创新生活方式的强大吸引力。 🔆🔆招商时代乐章售楼处电话:400-8894-986🔚🔚
而如今,这座大城全新的B地块自然功能主义作品,再度开盘告捷。

🔆🔆招商时代乐章售楼处电话:400-8894-986🔚🔚
效果示意图
轨交让远方近在门前:招商时代乐章雄踞北上海之芯,新顾城核芯区。借由7号线与规划中的宝嘉线的便捷,巧妙地串联起长寿路、静安寺、徐汇滨江、后滩等城市的精华区域的万千风尚,让城市精彩与乐趣尽在掌握之中。

🔆🔆招商时代乐章售楼处电话:400-8894-986🔚🔚
网络示意图
大城让所想尽在眼前:不仅如此,这座大城还以其磅礴的商业体量与全新的城市场景,打造出北上海全新的城市丰饶生活方式。 商业、酒店、住宅、绿地、P+R等多样的场景,丰富了日常生活的选择,用丰盛营造出城市生活便捷之下的松弛感。 🔆🔆招商时代乐章售楼处电话:400-8894-986🔚🔚

🔆🔆招商时代乐章售楼处电话:400-8894-986🔚🔚
二期三批次推售建面约89-126㎡3房开盘热卖中
过会均价49965元/㎡,总价351万起
前期在售建面约89-97-103-126㎡3房
最低单价仅36740元/㎡,总价329万起!

🔆🔆招商时代乐章售楼处电话:400-8894-986🔚🔚
项目示意图

🔆🔆招商时代乐章售楼处电话:400-8894-986🔚🔚
户型图赏鉴
建面约89m²三房两厅一卫户型,LDKB一体化设计,南向三开间布局,全明空间设计。让四季流转于生活之中,用自然营造生活的惬意。 🔆🔆招商时代乐章售楼处电话:400-8894-986🔚🔚

🔆🔆招商时代乐章售楼处电话:400-8894-986🔚🔚

🔆🔆招商时代乐章售楼处电话:400-8894-986🔚🔚
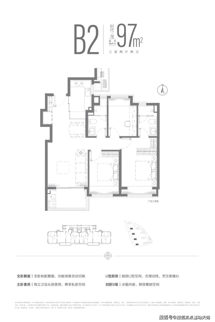
建面约97m²三房两厅两卫户型,全卧+主卫飘窗配置,并通过飞机户型空间布局,提升了空间的使用效率,让温情在自然中自然发生。

🔆🔆招商时代乐章售楼处电话:400-8894-986🔚🔚

🔆🔆招商时代乐章售楼处电话:400-8894-986🔚🔚
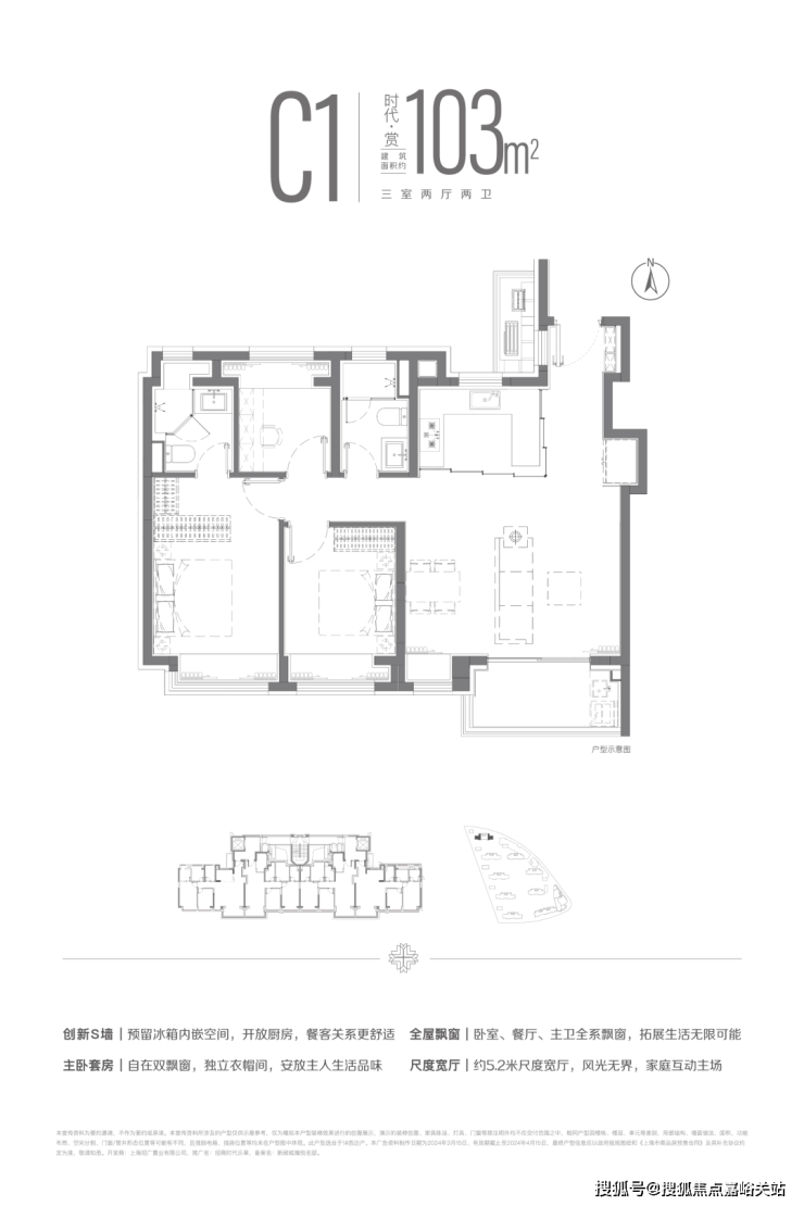
建面约103m²三房两厅两卫户型,南北双卧L型270°揽境飘窗设计,更大限度地让自然融入与自在之中,更宽阔的空间尺度,让自在生长与自然之中。

🔆🔆招商时代乐章售楼处电话:400-8894-986🔚🔚

🔆🔆招商时代乐章售楼处电话:400-8894-986🔚🔚
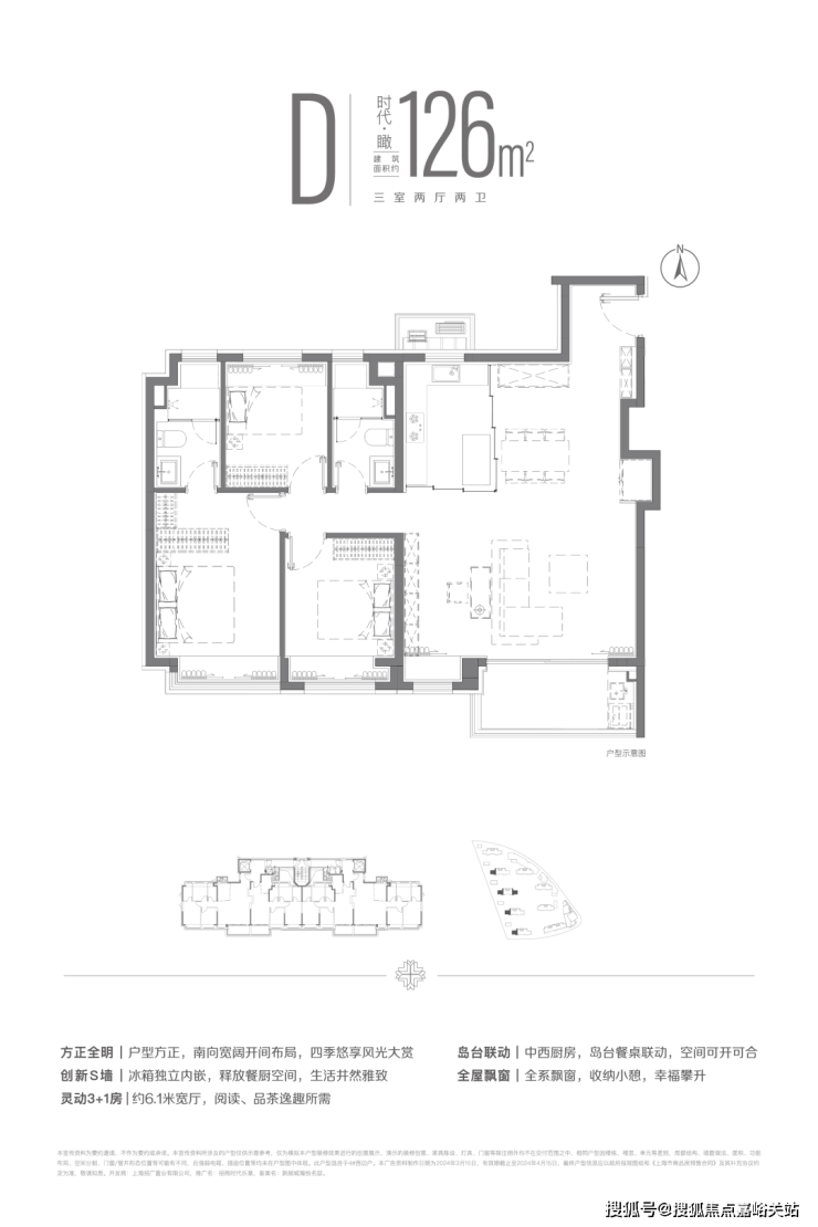
建面约126m²三房两厅两卫户型,南向3+1面宽横厅设计,让空间更加随心而变。主卧双台盆配置,用空间拥抱自然中的无限自在。

🔆🔆招商时代乐章售楼处电话:400-8894-986🔚🔚
三开间朝南户型设计,能够更好地满足不同家庭对空间和生活的需求,宽尺南向空间让阳光在家中更久地驻留,用暖阳为生活的温情升温。 🔆🔆招商时代乐章售楼处电话:400-8894-986🔚🔚

🔆🔆招商时代乐章售楼处电话:400-8894-986🔚🔚
样板间实景图
空间为生活打造,情绪用细节营造。招商时代乐章的 创新S墙设计,玄关、厨房、清洁、衣橱四大收纳体系,提升户内的视觉完整性。 🔆🔆招商时代乐章售楼处电话:400-8894-986🔚🔚

🔆🔆招商时代乐章售楼处电话:400-8894-986🔚🔚
样板间实景图
无柱空间设计,让家越住越大,更好地匹配不同时期随家庭成员变化带来的空间需求改变。宽景采光与卧室阔尺飘窗,融合生活与美景的边界。 让家的每一处角落都充满Chill的感受与松弛的生活态度。

🔆🔆招商时代乐章售楼处电话:400-8894-986🔚🔚
样板间实景图
时代生长,用更多的场景与业态满足人们日益增长的美好追求 🔆🔆招商时代乐章售楼处电话:400-8894-986🔚🔚和鸣乐章,呈现Chill生活提案。 用设计的创新和用心的细节,让日常也能在温情中闪闪发光,从细节到空间,在这里不止看到大城生活的松弛,更有属于家的温馨与自在。🔆🔆招商时代乐章售楼处电话:400-8894-986🔚🔚
土拍回顾及规划
12月15日,在2023年度上海最后一场土拍中,招商蛇口以45.9481亿底价竞得宝山区顾村大型居住社区BSP0-0103单元0304-06、0303-02、0309-04地块(即 招商时代乐章),房地联动价49400元/㎡。

🔆🔆招商时代乐章售楼处电话:400-8894-986🔚🔚
项目四至范围:东至陆翔路、南至鄱阳湖路、西至联杨路、北至瑞丽江路。

🔆🔆招商时代乐章售楼处电话:400-8894-986🔚🔚
拿地当天,宝山区人民政府官网即公示了0303-02地块和0309-04地块设计方案。这2个子地块均为普通商品房用地,尚未公示规划的0304-06地块为商业用地、餐饮旅馆业用地。
根据设计方案显示,0303-02地块 拟建12栋17-18F高层及配套用房,总户数901户,容积率2.2。
0303-02地块规划平面示意图

🔆🔆招商时代乐章售楼处电话:400-8894-986🔚🔚

🔆🔆招商时代乐章售楼处电话:400-8894-986🔚🔚
根据设计方案显示,0309-04地块拟建 9栋17-18F高层(含1栋保障房)及配套用房, 总户数645户,容积率2.3。
0309-04地块规划平面示意图

🔆🔆招商时代乐章售楼处电话:400-8894-986🔚🔚

🔆🔆招商时代乐章售楼处电话:400-8894-986🔚🔚
根据此前地块出让要求,住宅中小套比例不低于80%、全装修面积不低于50%,商品住宅部分装修标准不低于 2000元/㎡(集采价)。

🔆🔆招商时代乐章售楼处电话:400-8894-986🔚🔚
国际大师操刀 共创宝山新一代商业综合体
力邀全球TOD综合设计大师Beony操刀设计,规划约17.5万方超级体量,打造新一代商业综合体,更新北上海生活方式。
外立面以解构主义的模块穿插设计手法,打造北上海时尚生活坐标。
从日常生活出发,以故事感的室内设计,带来沉浸式的购物体验。

🔆🔆招商时代乐章售楼处电话:400-8894-986🔚🔚
20+主次力店 共创城市奇幻之旅
潘广路TOD预计引入20+主次力店,在X+商业理念,塑造缤纷场景,创造多元体验,带你开启城市中的奇幻之旅。
人文x生态:超级场景、打卡多元体验
🔆🔆招商时代乐章售楼处电话:400-8894-986🔚🔚在家门口的“行万里路”(符号):厦门海上世界将自然搬进室内,打造沉浸式空间,引入海洋馆、冰雪世界等IP场景赋能,商场旁的港口邮轮可随时远航,潮汐之眼摩天轮海上日出日落尽收眼底,打造出厦门最亮眼的人文生态场域。 🔆🔆招商时代乐章售楼处电话:400-8894-986🔚🔚


🔆🔆招商时代乐章售楼处电话:400-8894-986🔚🔚
亲子x科技:寓教于乐、探索成长乐趣
在家附近的游乐场:预计打造儿童品牌+亲子公区+数字科技的沉浸式场景,让商场亲子区成为消费者周末的第二个“家”。已开业的浦东森兰花园城,儿童乐园涵盖运动冒险、寓教于乐、儿童健康餐饮,已成为周末小朋友的欢乐聚集地。 🔆🔆招商时代乐章售楼处电话:400-8894-986🔚🔚

🔆🔆招商时代乐章售楼处电话:400-8894-986🔚🔚

🔆🔆招商时代乐章售楼处电话:400-8894-986🔚🔚
潮流x热力:造梦剧场、引爆热力无限
Z世代展现的舞台:潮流与功能并存,全业态丰富日常生活,例如曹路花园城充分利用天台空间,潮流运动与松弛露营强强联合,主题互动空间将屋顶舒适度发挥到极致。 🔆🔆招商时代乐章售楼处电话:400-8894-986🔚🔚

🔆🔆招商时代乐章售楼处电话:400-8894-986🔚🔚
350+全球品牌 共创北上海商娱繁荣

🔆🔆招商时代乐章售楼处电话:400-8894-986🔚🔚
(最终以实际招商和运营方案为准)
5大灵感空间、共创北上海网红打卡地
以“在地文化基因+异域度假风情+主题场景”融合形式,打造五大灵感空间,为城市注入鲜活能量,打造北上海微度假乐园,满足精致白领打卡以及家庭花式遛娃。 🔆🔆招商时代乐章售楼处电话:400-8894-986🔚🔚
时空晶球:别具匠心的时空晶球,连通室内与室外,驻足仰望,丢掉世俗烦恼。
梦幻森林:螺旋而上的生命之树,都市白领的自然能量充电站。
云境千屿:似繁花生长,似流水潺潺,云境漫步,重燃生活热爱。
踏梦繁花:数字传感地面,科技与艺术相互结合,夜晚由此繁花。
时光之门:融合科技与艺术的独特空间,叩响新一代商业世界之门。

🔆🔆招商时代乐章售楼处电话:400-8894-986🔚🔚
BLOCK式漫步街区 共创北上海微度假乐园
通过两横三纵一贯通设计,使街区与社区无缝链接,以多元场景与沉浸式的吸引力,为客户带来全天候的微度假体验感。
“微度假”线路:顾村公园-热店打卡-网红餐饮-触摸自然-livehoues,从清晨到日落,邂逅N种美好生活方式。
家门口的会客厅:城市中央⼴场等公共空间打造,城市⼼流汇聚的公共客厅,花园场景式商业街区,汇聚潮流所向,家门口的CITYWALK 。 🔆🔆招商时代乐章售楼处电话:400-8894-986🔚🔚
每位成员都很重要:以市集、宠物、社群、艺⽂展览、儿童活动区、运动区等运营活动,为家门口的附近⽣活点亮灵感,关爱每位家庭成员。 🔆🔆招商时代乐章售楼处电话:400-8894-986🔚🔚

🔆🔆招商时代乐章售楼处电话:400-8894-986🔚🔚
项目 采用顶塔冠造型,流光美学的外立面,既有辨识度又有质感,是未来业主身份的象征。阳光倾泻而下,在不同光影与环境下,让家成为一件艺术品。

🔆🔆招商时代乐章售楼处电话:400-8894-986🔚🔚
立面部分非对称线条勾勒经典比例建筑体量,消解了建筑的庄严和冷峻,赋予更强的立体感,犹如画框一般,多了一份艺术沉淀。 🔆🔆招商时代乐章售楼处电话:400-8894-986🔚🔚
既形成“层次感品质住宅”的认知,又创造出城市里的“美学灯塔”。

🔆🔆招商时代乐章售楼处电话:400-8894-986🔚🔚
社区入口对标慢奢酒店风格打造,融入高定细节,诸如酒店感仪式门头+环岛式尊崇落客+迎宾式花园设计+精装地库等。
归家门厅设计为弧形顶棚,非对称构图,圆润的形式提供给业主放松的情绪价值。可以说是处处体现人居的松弛感和舒适度。 🔆🔆招商时代乐章售楼处电话:400-8894-986🔚🔚

🔆🔆招商时代乐章售楼处电话:400-8894-986🔚🔚
整个社区被水系环绕,繁星式楼栋布局,充满仪式感的景观与浓绿自然的植被,无论是精心设计的景观小品,还是那郁郁葱葱的树木花草,都让你在繁忙的生活中找到一份心灵的慰藉与安宁。

🔆🔆招商时代乐章售楼处电话:400-8894-986🔚🔚


🔆🔆招商时代乐章售楼处电话:400-8894-986🔚🔚
同时将 四季植物与多层景观巧妙融合,构建出一幅如诗如画的自然画卷,植入其中的主题架空层成为邻里之间的聚场,让人们能够在林下相遇,在自然中被治愈。 🔆🔆招商时代乐章售楼处电话:400-8894-986🔚🔚

🔆🔆招商时代乐章售楼处电话:400-8894-986🔚🔚
生活配套
交通方面:距离7号线潘广路站直线约150米,2站换乘15号线。无缝直达普陀长风、静安寺、长宁古北、上海南站、徐汇滨江以及紫竹高新等多个市区核芯板块。 🔆🔆招商时代乐章售楼处电话:400-8894-986🔚🔚

🔆🔆招商时代乐章售楼处电话:400-8894-986🔚🔚
商业方面:自有大体量商办综合体,7号线上盖的龙湖天街、未来还有印象城环伺。

🔆🔆招商时代乐章售楼处电话:400-8894-986🔚🔚
效果图
教育方面:华二宝山实验学校,宝山世界外国语学院、 🔆🔆招商时代乐章售楼处电话:400-8894-986🔚🔚上海世外云尚欧莱幼儿园,另外,根据板块规划显示,在项目周边有规划一幅幼儿园、一幅小学以及一幅初中用地(新盘不承诺学区对口) 🔆🔆招商时代乐章售楼处电话:400-8894-986🔚🔚

🔆🔆招商时代乐章售楼处电话:400-8894-986🔚🔚
医疗方面:地铁两站就是三甲医院复旦大学附属华山医院宝山院区。

🔆🔆招商时代乐章售楼处电话:400-8894-986🔚🔚
生态方面,顾村公园也是本市较大的郊野公园,相当于三个世纪公园大小。更是上海环城生态规划系统上的重要组成部分,是上海绿色生态核心之一。 🔆🔆招商时代乐章售楼处电话:400-8894-986🔚🔚

🔆🔆招商时代乐章售楼处电话:400-8894-986🔚🔚
国庆假期后的上海楼市,正呈现出“二手房回暖、新房调整”的鲜明对比。
上周,上海全市二手房网签总量为3973套,节后迅速反弹,单日网签量冲高,创下近五月新高。
新房市场则受假期因素与供应结构影响,呈现量价齐跌的态势。佑威房地产研究中心数据显示,上周上海新建商品住宅成交面积为6.4万平方米,较前一周减少40.67%。
整体来看,市场虽显露复苏暖意,但挂牌量的激增、价格的微跌以及新盘市场的冷热不均,均表明买卖双方的博弈仍在持续,全面回暖尚需时日。
Part.1二手房:周末单日成交重回千套,创5个月来新高
受国庆小长假影响,上周(统计周期内)全市二手房网签总量为3973套,日均成交568套。假期期间成交相对平淡,分别录得131套、187套和353套的签约量。
假期结束后,市场活跃度迅速回升,其中10月12日(周日)单日网签量达到1266套,不仅显著高于日常水平,也创下近五个月来的单日成交新高。

在成交量回升的同时,二手房挂牌量也同步上涨。据上海网上房地产数据,截至10月13日,全市二手住宅挂牌总量已达357688套,供应规模持续扩大。
分区来看,浦东新区以92715套的挂牌量稳居首位;闵行区以41755套位居第二;宝山区则以37089套位列第三。
价格方面,市场仍面临下行压力。根据诸葛找房数据研究中心的监测,上周上海二手住宅市场均价为59912元/平方米,环比微降0.3%,延续了近期的调整态势。这一现象表明,尽管成交有所放量,但卖方在议价中仍多以价换量,市场整体处于“以价换量”阶段。

数据来源:诸葛找房
总体来看,上海二手房市场在节后迎来一波成交小高峰,但挂牌量的增加和价格的微降也反映出当前市场仍处于调整期,买卖双方之间的博弈仍在持续。
Part.2
新房市场:量价齐降
受假期因素影响,上周,上海新房市场呈现量价齐降的态势。佑威房地产研究中心最新数据显示,上周上海新房成交面积为6.4万平方米,较前一周减少40.67%;与此同时,受成交结构影响,新房成交均价环比下降22.92%,为87153元/平方米。
从区域表现来看,杨浦区以13405平方米的成交规模和15.52亿元的成交总额位居首位,主要得益于建发海宸项目的集中备案。
从产品类型看,市场上周主要以改善型项目为主导,成交金额前十的楼盘中,单价8万元/平方米以上的项目占据七席。
具体到项目层面,杨浦区新江湾板块的建发海宸表现最为突出,上周网签80套,成交面积10157平方米,网签均价达111602元/平方米。该项目于9月30日开盘,推出322套房源,开盘当日去化296套,去化率约92%。

数据来源:佑威房地产研究中心
紧随其后的项目是位于闵行紫竹板块的象屿天誉兰香,上周该项目共完成网签55套房源,签约总面积为6809平方米。该项目于9月29日开盘,推售房源66套,开盘当天“日光”。
此外,上周表现突出的项目还包括浦东北蔡板块的绿城上海逸庐以及杨浦东外滩板块的保利外滩启PARK77,这两个项目分别实现了5723平方米和2199平方米的网签面积。
供应端方面,上周共有尚园、中国铁建西派云间、华纺棠樾3个项目开盘,累计推出281套房源,市场表现分化显著。

其中,尚园认购率达145%,入围分为44.99分,开盘当日全部售罄;中国铁建西派云间去化率约为73%;而华纺棠樾则因认购人数不足取消摇号,直接平推入市。
认购市场同样冷热不均。上周共有西郊云庐、悦97、灿耀晶萃173、高福云境、天和尚海荟庭、金隅公园东序、国贸海上原墅7个项目认购。

其中,高福云境项目认购期间获得190余组意向认购,认购率152%,未触发积分制;西郊云庐收获50余组意向认购,认购率为95%;国贸海上原墅收获70余组意向认购,认购率为50%;悦97认购前两日共收到60余组意向认购,认购率67%。
在新房公示方面,上周共新增8个过会项目,总计推出874套房源,上市面积105710㎡,总货值约79.23亿元,分别位于浦东新区、虹口区、闵行区、宝山区、嘉定区(2个)、松江区以及临港。

上海中原地产市场分析师卢文曦指出,上周大部分时间处于十一假期内,市场成交受假期影响较为显著,因此成交出现大幅下坠意料之中。通常节后一周就会恢复正常节奏,上周又有一批新房源过会,预计很快会投放市场,楼市会逐步回到正常轨道之中。
但从成交项目来看,市场分化依旧,高端项目只要入市,签约量都不错。相比之下,郊区的产品在政策推动下有明显改善迹象。而这些项目的稳定发挥是银十成色的重要保障,因此需要密切关注近期成交能否快速反弹。