海上清和玺售楼处电话:400-8874-108✔【已认证】 海上清和玺营销中心电话:400-8874-108✔✔【已认证】
上海海上清和玺官方售楼处电话:400-8874-108 VIPLINE✔✔✔【已认证】
——海上清和玺——
海上清和玺售楼处电话:400-8874-108✔【最新预约】
海上清和玺营销中心电话:400-8874-108✔✔【最新认证】
上海海上清和玺官方售楼处电话:400-8874-108 VIPLINE✔✔✔【最新发布】
如有问题可来电咨询,线上售楼中心,预约销售专员,一对一为您服务!
想了解海上清和玺更多信息?拨打售楼处营销中心热线:400-8874-108 (中介勿扰)【24小时热线】
项目区位介绍
徐汇长桥,一段跨越860年的时代往事,由此娓娓道来。【海上·清和玺】源自百年「清和」的传承。长桥因桥而名,公元1163年南宋隆兴年间,长桥时名“清和桥”,迄今已有860多年历史,从历史到现在,一座桥见证历史的变迁,记录上海城市巨变的缩影。后因清和桥之南属于华亭县,桥之北属上海县,清和桥横跨两县,民间又称之为“长桥”。这也是长桥港、长桥镇得名的由来。

图片来源于网络
时间潮去,时代潮来,“清和”虽留驻于历史,但“清和”的美好期盼依旧流淌于老徐汇人的心田。楚辞《九思·伤时》中提到“声噭誂兮清和”,“清和”寓意着清静和平,社会升平。正如今天的长桥,岁月静好温润如初。当目光穿越时间,海上清和玺,正是一次百年长桥源址的续写,一次海派在地文化的薪火传承。
【海上·清和玺】基于百年长桥在地文化的传承,以海派历史为底蕴,在过于与未来之间,奢享一座城市罕有的文脉资产。

项目基本信息
玺系,是招商蛇口的至高产品系,皆为“一玺一定制”。项目售楼处&实景展示区开放在即,在开放前夕,来看看其产品打造有哪些亮点。

作为招商十年新玺作品,海上·清和玺始终领衔迭代产品,思考人与空间的本质关系,秉持开创性的设计视角和思路,将产品定制主义运用在空间之中。

【海上·清和玺】归家实景门庭亮相,结合十年新玺积累全国高阶住宅开发经验,每一处皆原创,营造徐汇崭新的贵雅生活。希望业主真正归家的时刻,能时刻保持心动感。
归家奢境超50米非凡尺度

在设计之初,海上·清和玺从传统场域出发,在标准中重新定制。归家门庭贵雅三景,从设计创意到用材细节从公区配置到产品打造,为徐汇呈现真正的“贵雅生活殿堂”。‘
大手笔!全域风雨连廊!
或许碍于成本,风雨连廊其实在豪宅中出现的频率也非常低。

而海上·清和玺将风雨连廊扩容为一个完整的归家体系, 将整个社区以约 500米全域连廊体系贯通,真正做到全楼栋无风雨归家。


项目效果图过程稿,以实际交付为准
金石玉彻奢材 波澜清泉水景
【海上·清和玺】空间采用奢材定制,将品质延续到每个细节中。门庭延街的外立面,以精工定制弧形贝金米黄大理石为主调,镶嵌典藏级老虎玉大理石,点缀古铜色现代海派艺术感灯器。整体呈现一种流转于百年海派的贵雅气质。
在门庭外,辅以两侧具有仪式感的跳泉水景,将建筑的圆弧美感与自然水景相合,共同构成海上·清和玺“贵雅清和”的城市界面。

对称式环岛景墙奢石镶嵌
步入到整个门庭环岛空间,整个景墙的设计同样考究墙面采用中轴对称的设计布局,定制了奢石镶嵌装饰将曲面艺术与经典石器之美圆融交融,形成独一份的视觉震撼。

酒店式环岛落客 海派漩心
酒店式归家环岛的中心,海上·清和玺原创设计了艺术装置,海派漩心。首创经典山茶花图腾设计,其装饰符号源于海派建筑中的山茶花图腾,设计师通过现代的手法将其以立体的方式重塑在环岛落客空间。
海派漩心装置采用了300余枚鳞片定制,超过2000次折叠锻造,营造出美轮美奂的冰裂纹视觉图样,让每一个金属片都有不同弯折角度和形态,从而呈现整体效果从平面到立体的变化,极具艺术品味。

其底部精心设计了流通的波澜水景,宛若一座曼妙的山茶花生长于泉水之上,熠熠生辉。
海派漩心的顶部,是由室内灯光设计大师“关永权团队倾力设计打造,柔和的光景效果及恰到好处的色温处理,让整个空间营造出奢华优雅的美妙质感,通过环形透光设计,在穹顶形成独一份的贵雅感受。漫步灯光之下,如同走过时间的美妙殿堂。

【海上·清和玺】希望业主的每一次归家,都能有属于自己的社交空间。整个前厅的接待空间不是一个过渡空间,而是一个真正为归家营造惬意分享的生活场。
海派设计 殿堂质感
整个室内空间由G.ART集艾主创设计大师李阳先生倾力设计,将百年徐汇的经典文化融为建筑语言,生动地写入场景之中。
预接待厅门头源于招商局出资创办的原南洋公学(现在上海交大)三段式建筑造型。优美、经典的软装风格定制无不彰显着生活的品味,天花板定制了细腻入微的deco设计细节,地面瓷砖采用威尼斯白与爵士白石材拼花设计,纯人工铺装保证花纹的奢华质感,壁面装饰的水品灯,选用高规格的E9级进口水晶制作,真正将海派设计融入生活。

艺术点缀 随手出圈
【海上·清和玺】保持对徐汇滨江艺术生活的充分理解,整个接待厅堂处处可见出片打卡的贵雅瞬间,礼宾接待台与装饰圆满融合,角落美陈亦匠心独运,整体设计采用整石雕琢,于细微中领略建筑背后的艺术内在。在这里,空间让渡于品味,引领人们对生活有全新的理解和发现。

奢感勾勒 海派光厅
从室内走出室外,宛若一次穿梭百年海派艺术的旅行。甚至触碰的门面,都有源自徐汇历史深处的浓厚艺术中庭的大门设计为“海派光厅”,其玻璃镜面由匠人手工绘制经典海派线条,邬达克经典的纹路设计嵌于表面,同时墙面同样定制了优雅的奢石装饰,让整个空间的布局既有历史的风韵,也有现代的奢华。

千里苛觅 福木紫薇
景观造园,不只局限于对自然场景的铺陈,更应考虑自然能带给人的生活变化。真正的奢宅拥有的是文化内在。海上·清和玺考究历史,从典籍中发现生的灵感,设计师考究历史中的大宅建造规制,提取“浓荫庇宅”的传统理念,辗转城市之间,从华东,西南,华中区域访查搜寻,终于寻得树龄超60年的福木“紫薇”。
天上紫薇星,地上紫薇花。紫薇不仅寓意美好,更完美的呈现了红润、朝气的自然色彩,巧妙的点缀其中,形成盛夏如火的独有景观。

造价近百万土耳其进口奢材 老虎玉庭院
传统下沉庭院只为社区营造休憩场所,海上·清和玺真正将庭院从传统的定义中跳脱出来,试图将庭院打造成一件俊美的“工艺品”。
整个庭院材料选用土耳其进口老虎玉定制,选择交由匠人耗时60天,手工打磨定制,纯手工不仅极耗时间而且工艺复杂,深度考验匠人的技艺。海上·清和玺希望在产品的最终呈现上,能真正还原一个有温度的庭院将匠心融入场域之中,真正为每一位业主营造“休憩品书”的贵雅瞬间。仅仅这一方庭院价值就已近百万,可见海上·清和玺对业主归家仪式感设计的用心与苛求。

垂直会所体系
据沪上好房统计,近两年10万+/㎡新房中,配备会所的楼盘仅十之一二,会所面积约800-1500㎡,内容以会客厅和健身房为主,少数有泳池。 (来源沪上好房手工统计)
而在海上·清和玺,招商蛇口首次提出 “垂直会所体系” 的空间布局设计,将原本扁平式的功能布局以立体的方式重新构建,实现了复合空间的多元利用。
其中会所及架空层总体量约3000㎡ ,如此大规模的定制,在整个上海高阶产品中同样也是超前列的存在。

约2000㎡地下会所内含 璀璨星空顶泳池、私宴厅、室内高端健身器材 (沃特罗伦或同等档次品牌)甚至 高尔夫场所 (高尔夫尊或同等档次品牌)。
还有七大泛会所,作为业主生活的延伸。


项目效果图过程稿,以实际交付为准
从实景归家到功能设计公区奢宅化 重新界定场域的价值所在
在产品颜值的高水准定制之外,在海上·清和玺的视角里,希望打破原有的空间定制思路,将传统高阶住宅的打造理念运用到公区,重新定义公区功能及体验感。
项目推售详情
【海上·清和玺】加推5幢,该楼栋房源仅161席,共33层,两梯4户,其中120㎡为边套(共65套),112㎡户型为中间套(共96套),过会均价110650元/㎡!作为该项目收官之作,机不可失!另前期少量建面约112-177㎡3-4房改善大宅可直接认购!总价1200万起!


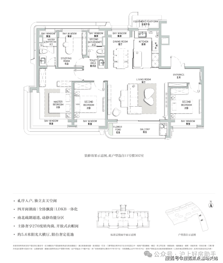
海上清和玺项目全套户型鉴赏:
徐汇2000万内稀缺四房,堪称孤品
作为徐汇区当前唯一总价2000万内的四房新盘,在土地资源开发成本日渐高昂的徐汇,低密洋房堪称“绝版资产”,而兼具功能性与收藏属性的「四房真洋房」,更堪称时代孤品。可以说,这一次之后,很难再有!

除了本身稀缺性之外,143㎡洋房的产品设计也有诸多亮点:
1、全生命周期产品,四房两卫满足家族式需求
2、类一梯一户,舒适独立入户空间
3、南向四开间,面宽约15.5m,独立餐客厅,南北通透
4、是徐汇唯一2000万左右能买到四房的新盘
以「全生命周期住宅」为核心理念,海上·清和玺洋房以四房两卫的家族式空间布局,精准匹配多代共居的进阶需求,以「类一梯一户」的私密设计,重塑归家礼仪的尊崇感。
户型设计上约15.5米南向四开间,以大开大合的格局重构空间美学与功能的平衡。独立餐客厅南北贯通,舒适通透十足,同时 6-7层低密真洋房形态,打破传统高层压抑感,将光照提升至极致。无论是三代同堂的欢声笑语,抑或私密静谧的独处时光,皆能在此找到理想载体。
样板间实景拍摄:











建面约177㎡4房2厅3卫▼

建面约177㎡户型是本批次的重点户型,总价约2300-2500万级,改善一步到位,后续再无!阔朗的四开间朝南设计+双套房设计,保证不同家庭成员起居的私密性。
客餐厅尺度阔绰,方正大气,自带曲面流体的阳台。主卧带转角飘窗,主卫浴缸+双台盆设计,非常尊崇!
建面约112㎡ 3房2厅2卫▼

建面约112平三房为标准的三开间户型,设计上将传统的过道改为餐厅空间,将公共区域做大了,也减少了浪费;S墙设计将冰箱空间外移,厨房空间更宽裕。
入户这座铸铝门,质感厚重;通顶玄关柜,内置消毒精灵,奢石把手+奢石台面更显海派温润气质,玄关地面都铺上了海上·清和玺的logo拼花,小小玄关做到了既实用又美观。
样板间实景拍摄:








进门可以看到经典的S墙设计,L型厨房操作台面,也是暗藏不少细节——玻璃移门采用完美系列夹丝玻璃+金属造型边框,顶部配置线性凉霸+LED嵌入式回形灯带+筒灯,灶台后侧采用大面积岩板铺设,方便清洁的同时显得厨房更加大气。

厨电配置了德国厨房顶奢品牌博世(或同等档次)四件套抽烟机+燃气灶+洗碗机,带末端净水器,弗兰卡(或同等档次)大单槽+可抽拉龙头,冰箱也是交付的!

柜门白色烤漆面板,抽屉分区也都是帮大家细致划分,如多功能调味拉篮+谷物抽+碗碟拉篮等。岛台上配置可升降插座,铝合金抽屉,石材背景板的金属开放格实用性很强。

电视背景墙采用卡慕白的石材+皮革造型,弧形吊顶,相当讲究,连空调出风口的形状都打造为海上·清和玺logo山茶花的形状~~三大件为大金(或同等档次)中央空调和地暖,新风系统为百朗(或同等档次),南向阔景阳台,采光视野一级棒!


主卧套房设计,皮革造型的床背景墙也是交付标准,台盆为唯宝(或同等档次)、龙头则为科勒(或同等档次)复古龙头,马桶为高仪智能马桶(或同等档次)。


奢石台面,皮革饰面柜抽屉,侧端设置金属收纳开放格;定制镜柜,中间的透光玉石直接提升了高级感,镜柜内部配备了美妆冰箱+美妆灯条+轨道收纳!


建面约120㎡ 3房2厅2卫▼

建面约120㎡的户型,定制LDKB一体化宽厅,更舒适的功能定制,270°转角窗观景套房设计,实现了居住品质与观景的完美结合。
建面约134㎡ 3房2厅2卫▼

项目周边配套
轨道交通方面:距离15号线罗秀路站约1.2公里,步行不算近,但是也能接受。

自驾方面,约800米即可上中环,距离龙吴路、上中路隧道、外环直线距离约1公里,距离虹梅南路、沪闵高架路也仅约2公里。

示意图
商业配套方面:项目2公里内有凌云壹街坊、百安居、东阔生活广场、规划了北杨人工智能小镇。
教育资源方面:项目北面一街之隔就是徐汇四大名校之一民办逸夫小学,上海中学距离项目也仅几百米。

医疗资源方面:
上海市第六人民医院(直线距离约2.7公里),全国骨科王牌top级三甲医院;上海市第八人民医院、上海仁爱医院、上海万众医院、上海虹桥医院等专业医院,护航家人健康。

生态资源方面:距离上海植物园直线距离约1.3公里。

海上清和玺售楼处电话:400-8874-108✔【已认证】
海上清和玺营销中心电话:400-8874-108✔✔【已认证】
上海海上清和玺官方售楼处电话:400-8874-108 VIPLINE✔✔✔【已认证】
如有问题可来电咨询,线上售楼中心,预约销售专员,一对一为您服务!
想了解海上清和玺更多信息?拨打售楼处营销中心热线:400-8874-108 (中介勿扰)【24小时热线】
楼盘项目全面介绍,本电话为开发商提供线上预约售楼电话,楼盘项目全面介绍(包含楼盘简介,均价,房价,现房,期房,别墅,叠墅,大平层,价格,楼盘地址,户型图,交通规划,备案价,备案名,项目配套,样板间,开盘时间,认筹时间,楼盘详情,售楼处电话,最新消息,最新详情,周边配套,一房一价,最新进展等详情咨询)楼盘详情丨价格丨更多优惠丨机不可失丨欢迎致电丨诚邀品鉴!售楼处位置丨特价房丨工抵房丨剩余房源丨户型图丨最新消息丨免责声明:将文章内容综合来源于网络、只作分享,版权归原作者所有!!如有侵权,请联系我们,我们第一时间处理如有问题欢迎来电咨询,专业一对一热情服务,让您用专业眼光去买房.如果您想了解更多楼盘详情,欢迎提前预约拨打
近年来随着房价的调整,房价收入比持续下滑,居民购房压力有所缓解。
麟评居住大数据研究院发布的报告显示,其监测的100个重点城市2025上半年房价收入比为10.0,相比2024年下滑2.9%,跌幅收窄6.8个百分点,自2019年监测以来,房价收入比均呈现年年下滑的局面,较2019年下降近3成。

报告认为,自2023年以来,房价收入比下降的主要驱动力从“收入增长”转为“房价下降”。房价持续下跌导致居民资产缩水,影响购房信心和收入预期。值得一提的是,虽然房价收入比较2024年下滑,但2025年上半年百城房价收入比的下滑幅度明显收窄,并未延续2023、2024年大幅下降局面。
各线城市房价收入比继续下降
从各线城市的房价收入比情况来看,继续全降,但降幅均有所收窄。
报告显示,2025上半年一线城市房价收入比为25.4,较2024年下降2.7%;二线城市房价收入比为10.5,较2024年下降2.8%;三四线城市房价收入比为7.4,较2023年下降3.0%。

报告指出,一线城市房价收入呈现“绝对值高,跌幅小”的局面,二线城市房价收入比接近于全国平均水平,三四线城市最低。
在2019年-2025年期间,除2021年指导价格政策影响房价跌幅扩大,带动房价收入比跌幅扩大之外,一线城市的房价收入比坚挺于二线和三四线城市,其房价收入比跌幅最小,但仍是购房压力较大的区域。
区域分化加剧
从区域表现来看,房价收入比的高低和经济圈的经济情况成正比,经济发达区域房价收入比一般较高。
如海峡经济圈、珠三角和长三角经济圈房价收入比仍位居前三,分别为15.1、13.9和10.8,是国内居民购房压力较大的城市经济圈。
另一方面,中部城市、西北城市、西南城市为低房价收入比区域,这些区域内居民购房压力小于其他经济圈,房价收入比在7-8之间。

整体来看,2025年上半年八大区域房价收入比仍呈下降态势,降幅在1.5%-3.4%之间。其中,海峡经济圈是2025上半年房价收入比最高区域,同时也是跌幅最大区域。经济圈内厦门、福州、泉州房价下滑明显,以及热门旅游城市消费降级、城镇居民收入增速下滑等因素,共同导致了海峡经济圈房价收入比下行。
近八成城市进入“低压力区间”
报告显示,百城房价收入比分布继续“下沉”,5个城市从10-20区间进入0-10的区间,已接近8成城市位于0-10区间。
其中,高房价收入比城市仍以北上广深、杭州、厦门等重点一二线城市为主,而三四线城市,中部城市、西部城市中以房价收入比较低城市较多。
具体到城市,2025上半年深圳房价收入比为34.3,高居首位,受到新房市场土地稀缺性影响,深圳房价居高不下,是国内购房压力较大的城市。
三亚的同样处于高位,房价收入比为28.8,位居第二。其在旅游业的带动下,凭借得天独厚的环境,全国各地有投资需求的客群涌入使得三亚房价收入比同样处于高位。

低房价收入比城市中,株洲、遵义、桂林、北海、德阳房价收入比位居百城末尾,处于国际合理区间。这些城市的居民购房压力较小,住房消费较为适中,适合居住。
另外,从城市房价收入比变化情况来看,上半年全国房价仍处在调整中。

根据报告,上半年百城房价收入比上升的城市近有10个,其余90城房价收入比均不及2024年。其中,房价收入比上涨城市中长三角经济圈覆盖较多,如宁波、金华、淮安、常州房价收入比微升。相反,房价收入比下降的城市则以三四线城市为主,泉州、盐城、威海房价收入比降幅居前三,分别下降10.8%、9.3%和8.8%,均得益于城市内房价呈现明显的下降局面。

此外,值得一提的是,上半年一线城市中,北京房价收入比下滑明显,较2024年下降6.0%,上半年北京二手房市场继续以价换量,房价跌幅较2024年有所扩大,而收入并未好于以往表现,带动房价收入比下降较为明显。