华发仁恒苏河世纪售楼处电话:400-8874-108✔【已认证】⭐⭐⭐⭐⭐
华发仁恒苏河世纪营销中心电话:400-8874-108✔✔【已认证】⭐⭐⭐⭐⭐ 上海华发仁恒苏河世纪官方售楼处电话:400-8874-108 VIPLINE✔✔✔【已认证】⭐⭐⭐⭐⭐
——华发仁恒苏河世纪——
华发仁恒苏河世纪售楼处电话:400-8874-108✔【最新预约】⭐⭐⭐⭐⭐
华发仁恒苏河世纪营销中心电话:400-8874-108✔✔【最新认证】⭐⭐⭐⭐⭐
上海华发仁恒苏河世纪官方售楼处电话:400-8874-108 VIPLINE✔✔✔【最新发布】⭐⭐⭐⭐⭐
如有问题可来电咨询,线上售楼中心,预约销售专员,一对一为您服务!
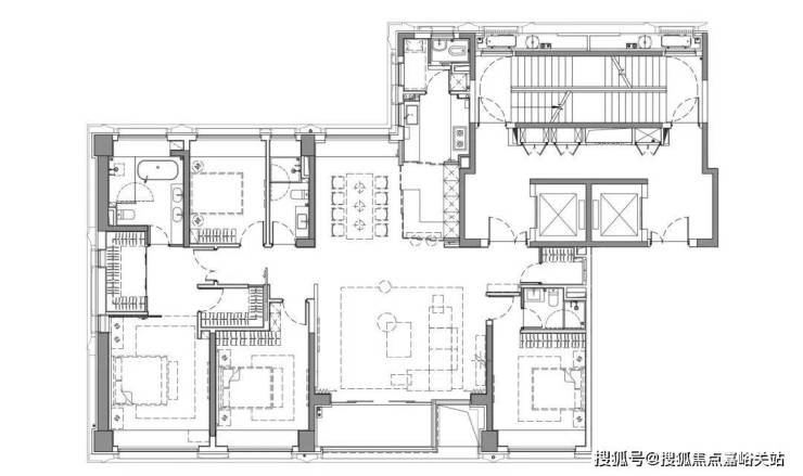
想了解华发仁恒苏河世纪更多信息?拨打售楼处营销中心热线:400-8874-108 (中介勿扰)【24小时热线】项目首批房源于2022年7月首开入市,推出三栋住宅,均价13.3万/㎡,入围分68.8分。时隔两年多,项目第二批房源已入市!
第二批项目加推的是3#、6#两栋住宅,共44套。主力建面102-245㎡3-4房,另有6套大平层和2套复式。具体如下:
16套约102㎡3房
20套约245㎡4房
6套约498㎡大平层
2套约480㎡复式


(过程稿仅供参考,最终以实际为准)

▲ 建面约102㎡3房户型已售完

▲ 建面约245㎡3房户型已售完

▲ 建面约480㎡复式户型

▲ 建面约498㎡大平层户型


▲ 框选区域为在售房源
1501、1701已售


项目地处静安区苏河湾板块,曲阜西路与晋元路交汇处,南接苏州河,东邻爱国主义教育基地四行仓库。项目属于内环内核心区域,距离南京东路及人广商圈900米,8/12号线曲阜路地铁站距项目仅200米,一公里内汇聚城市生活精萃。
项目占地2.8万方,集品质住宅、精品商业、文化办公为一体的高端综合体,整体分为南北两个地块,北侧为纯住宅社区,南侧为商办综合体。


【楼盘基本信息】
区位板块:静安区苏河湾
建筑面积:住宅部分约4.2万方,商业、文化及办公部分约3.6万方。
绿地率:35%
容积率:3.0
住宅产品:1幢26层公寓、1幢8层公寓
保障房:1幢9层公寓
总户数:392套
车位配比:约1:1.2
主力户型:建筑面积约245㎡-480㎡高层产品
交付标准:精装


静安内环核心 远瞻烫金热土
项目地处静安苏河湾核心区位,南侧即为苏州河,属于上海中心板块,新静安“一轴三带”战略中的重要一环,更有国家级战略规划加持。资料来源于:《苏州河沿岸地区建设规划(2018—2035)》
苏州河畔CAZ 世界级宜居水岸
苏州河沿岸定位为特大城市宜居生活的典型示范区,享有比肩世界的滨水区文化水岸。约6.3公里滨河步道,约21万方滨河开放空间,全球卓越河岸中央活动区。资料来源于:《苏州河沿岸地区建设规划(2018—2035)》


集萃都心万象 优质资源环伺
商业资源:近在咫尺的市区成熟生活配套,约百万方摩登商业环伺。大悦城、人民广场、南京东路商圈均在直线距离一公里范围内。

交通资源:项目向东直线距离约200米为轨交8、12号线曲阜路站;南北高架及西藏中路城市主干道分别在项目东西两侧,可便利的通达全城;北横通道主动脉已通车,畅达上海各大中心枢纽。


生态资源:项目直线距离一公里内拥享静安苏河中央公园,同时紧邻南北两块绿地公园,而南侧便是苏州河世界级滨水景观带,滨水而居。

周边教育资源:周边有棋院小学、向东中学;约1km范围内有良好师资的育才中学及格致中学。(教育设施与社区间的招生对应关系由当地政府教育主管部门确定,开发商对此无法控制。)

医疗配套:周边有静安区北站医院(二甲医院)、上海健桥医院、上海长征医院等医院。

红色地标四行仓库 人文贵脉之地
项目地处600亿+上海最大城市文保赋新石库门商业街区,尽揽河岸约50万平方米历史保护建筑。项目东侧为著名历史保护建筑四行仓库,同时周边有OCAT当代艺术馆、UCCA尤伦斯美术馆等,上海城市简史的缩影。


华发-品质中国 匠心筑家
华发股份,《财富》“中国500强”企业。2014年,华发股份首入上海,10年来上海公司打造了华发华润·静安府、华发四季、华发公馆等23座标杆力作。其中华发华润·静安府,连续两年单盘销售破百亿,上海排名第一( 排名来源于:2018年1-12月中国典型房企但项目销售金额TOP100)。华发开发楼盘多次获得国家级房地产奖项——“广厦奖”。且陆续获得詹天佑奖优秀住宅小区金奖、金牌奖等国内国际重量级奖项。华发作为国企担当,始终坚持品质中国、匠心筑家,不断打磨产品,更新升级华发优+产品体系。
仁恒置地-上海国际社区开拓者
1993年,仁恒置地进驻上海,31年来共情国际上海,用土地与建筑成就了一系列具有仁恒特色的精装国际社区营造体系,在业内已成为高品质的象征,以六代匠心产品系持续领跑国内的高端地产市场。

城心综合体
项目是一个完整的都市滨水生活综合体,集办公、住宅、艺术、商场于一体,焕新区域繁华界面,咫尺“邻”距离都心生活。


一线滨水景观
项目毗邻苏州河畔,局部以铝板和玻璃幕墙打造IMAX级别天幕,以现代简约风、超大窗墙比赋予建筑独特的城市气质,实现空间视野与采光的优选。可享头排无遮挡直面水岸公园,饱览无敌河景与城心的华丽天际线。

大师级规划
项目的商业部分由美国的SOM建筑设计事务所(曾设计金茂大厦、迪拜塔等世界级知名建筑)操刀,将打造成为苏州河城市活力地标,未来串联起苏河两岸文化与商业节点,成为与南京路、淮海路平行的又一条重要的城市中轴,有利于提升苏河湾的整体形象和气质,展示出苏州河独有的水道魅力。
建筑立面
现代建筑的先锋美学,局部以铝板和玻璃幕墙打造IMAX级别天幕,彰显高端现代简约风,超大窗墙比赋予建筑独特的城市气质,实现空间视野与采光的心仪之选。



华发仁恒苏河世纪售楼处电话:400-8874-108✔【已认证】⭐⭐⭐⭐⭐
华发仁恒苏河世纪营销中心电话:400-8874-108✔✔【已认证】⭐⭐⭐⭐⭐
上海华发仁恒苏河世纪官方售楼处电话:400-8874-108 VIPLINE✔✔✔【已认证】⭐⭐⭐⭐⭐
如有问题可来电咨询,线上售楼中心,预约销售专员,一对一为您服务!
想了解华发仁恒苏河世纪更多信息?拨打售楼处营销中心热线:400-8874-108 (中介勿扰)【24小时热线】
楼盘项目全面介绍,本电话为开发商提供线上预约售楼电话,楼盘项目全面介绍(包含楼盘简介,均价,房价,现房,期房,别墅,叠墅,大平层,价格,楼盘地址,户型图,交通规划,备案价,备案名,项目配套,样板间,开盘时间,认筹时间,楼盘详情,售楼处电话,最新消息,最新详情,周边配套,一房一价,最新进展等详情咨询)楼盘详情丨价格丨更多优惠丨机不可失丨欢迎致电丨诚邀品鉴!售楼处位置丨特价房丨工抵房丨剩余房源丨户型图丨最新消息丨免责声明:将文章内容综合来源于网络、只作分享,版权归原作者所有!!如有侵权,请联系我们,我们第一时间处理如有问题欢迎来电咨询,专业一对一热情服务,让您用专业眼光去买房.如果您想了解更多楼盘详情,欢迎提前预约拨打
麟评居住大数据研究院数据显示,7月监测重点14城二手住宅成交111773套,环比下降1.83%,同比下降9.05%。
从累计情况看,今年前7月重点14城成交量为811142套,较去年同期上升10.8%,成交规模仅次于2021年成交水平。

报告认为,年内二手房成交呈现明显的“前高后低”的局面。一方面是由于一季度成交的提前释放,二季度购房潜力不足。另一方面,二季度政策无明显利好,房价继续下行,居民购房信心并未扭转。
麟评居住大数据研究院预计,下半年二手房的去化存在一定的压力,本次中央政治局会议未提房地产,对于城市更新相关政策细节的表态不及预期,如若无明显外部利好因素介入,二手房下半年市场或将面临量价齐跌的压力。
一线城市成交“领降”,二线城市继续分化
从各线城市来看,14个重点城市中同环比均有不同程度的涨跌。
报告显示,7月份一线城市成交“领降”。除深圳成交量稳增之外,北京、上海、广州同环比均呈现下降态势。主要原因在于市场无利好加持因素,购房者入市节奏有所放缓。

二线城市中,仅苏州、南京和厦门7月成交环比下降,降幅分别为3.8%、2.6%和6.8%,降幅均小于一线城市。其余二线城市成交量较上月呈现上升局面。其中,东莞、佛山和郑州成交涨幅居前三,分别为19.8%、8.6%和7.8%。
从累计情况来看,前7月一线城市二手房成交量均高于去年同期。二线城市中仅南京(-3.8%)、无锡(-2.9)、青岛(-2.8)和郑州(-7.6)同比下降。
挂牌量“二连升”,去化周期拉长
挂牌量方面,7月14个重点城市二手住宅挂牌量约198.2万套,环比上升2.7%,同比下降17.19%。

报告指出,今年以来,一季度在售挂牌量环比上升,随后连续两个月下降,至5月在售挂牌量较去年同期下降2成,5月后在售挂牌量连续2月上升。同比方面,今年在售挂牌量不及去年同期。
另外值得注意的是,在二手房挂牌量上升的同时,去化周期同样连续2月提升。报告显示,7月重点城市的二手房去化周期为16.8个月,环比上升2.7%,同比下降17.2%。

虽然今年二手房成交量活跃度相较于去年有所提升,但市场信心仍位于低迷区间,并未出现改善迹象。
根据报告,7月重点50城市场信心指数为-0.85,环比微升0.01,同比微升0.02。市场信心指数与居民对房价的预期息息相关,从上述指标看,该指数仍处于低迷区间。
对此,麟评居住大数据研究院表示,当前房地产市场的问题不仅取决于供需关系,还受到居民收入能力和收入预期影响。当前经济环境背景下,居民对收入预期降低,二手房仍然处在以价换量中,房价持续下行,影响市场信心的改变,短期信心指数难以大幅度改善直至房价止跌迹象明显。