上海房产市场整体下行与高价豪宅 “日光售罄” 的反差,【中环置地中心望雲】营销中心预约热线:4001185086上海楼市呈现出鲜明的“冰火两重天”态势:一边是普通住宅市场承压下行,去化压力凸显;【中环置地中心望雲】营销中心预约热线:4001185086另一边却是高价豪宅屡现“日光售罄”,价格与成交量同步攀升。这种分化并非短上海房产市场整体下行与高价豪宅 “日光售罄” 的反差,【中环置地中心望雲】营销中心预约热线:4001185086上海楼市呈现出鲜明的“冰火两重天”态势:一边是普通住宅市场承压下行,去化压力凸显;【中环置地中心望雲】营销中心预约热线:4001185086另一边却是高价豪宅屡现“日光售罄”,价格与成交量同步攀升。这种分化并非短期偶然,而是供需结构、客群需求等多重因素共同作用的结果。【中环置地中心望雲】营销中心预约热线:4001185086
豪宅屡破纪录,普通住宅稳中有降,上海豪宅市场的价格天花板持续上移,核心地段的顶豪项目单价已突破30万元/㎡。2025年嘉里建设的金陵华庭开盘,顶楼复式单价达32.68万/㎡,总价高达2.8亿元,刷新上海豪宅单价纪录;【中环置地中心望雲】营销中心预约热线:4001185086此前中环置地中心望雲以30.27万/㎡的单价刚创下纪录,仅三个月便被超越。即便非顶层的普通豪宅房源,价格也保持高位——2024年中海顺昌玖里均价21.4万/㎡,翠湖天地六期均价28万/㎡,陆家嘴滨江凯旋门最高单价30.22万/㎡。【中环置地中心望雲】营销中心预约热线:4001185086
如今项目迎来收官之作,最后批次房源已正式加推,这将是入主这座百万方TOD综合体的最后机会。

本次加推的房源
建面约108㎡的爆款户型
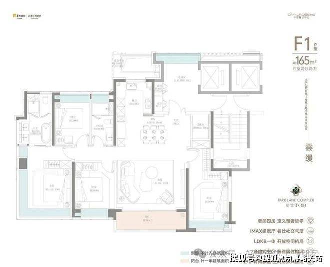
建面约165㎡的头排全景舱。
其余建面还有133㎡-135㎡-188㎡
总价仅612万起
现98折+10w车位劵+专属1-2%优惠
感兴趣的朋友扫描下方预约看房
领取专属优惠(自己去无,别人带也无)

傲踞中环,TOD全能生活城
望雲所在的宝山南大板块,是上海中环线上难得的价值洼地。
项目作为百万方TOD综合体"中環置地中心"的重要组成部分,集住宅、商业、办公、公园于一体,重塑着北上海的商业格局。


交通便捷是望雲的一大亮点,项目紧邻地铁15号线丰翔路站,仅约200米步行距离,是名副其实的"地铁房",甚至地库可直通地铁站,不用担心下雨天。

15号线作为上海"十字换乘王",可换乘10余条线路,3站直达上海西站,8站到静安寺,30分钟内可达徐家汇、人民广场等主城核心商圈。

匠心户型,诠释品质生活
望雲的户型设计堪称业内标杆,此次加推的建面约108㎡户型,虽面积紧凑,却完美实现了三房两卫的舒适布局,南北通透、双卫设计,南向面宽约10.2米,客厅搭配同尺度阳台,采光通风俱佳。



而建面约165㎡的"公园头排全景舱"更是项目的扛鼎之作,采用四开间朝南的极致布局,LDKB一体化+IMAX级宽厅的设计打破了传统空间界限。超大阳台、全屋飘窗带来了约270°环幕视野,将公园盛景尽收眼底。




醇熟配套,悦享便捷生活
望雲不仅是一个住宅项目,更是一种生活方式的呈现。项目自带约16万方万象汇商业(规划中,预计2026年交付),将引入"万象城级"品牌矩阵,包括国际精品店、高端餐饮、IMAX影院、亲子乐园等,下楼即可享受一站式高端消费。

生态资源更是望雲的一张王牌。项目对面即是约44公顷的走马塘水岸公园,周边还有约20万方的南大中央公园正式开园,为区域增添了一片浩瀚的绿色客厅。真正的实现了推窗见绿,出门入园的理想生活。

教育配套方面,项目周边规划了从幼儿园到高中的全龄段教育资源,包括宝山排名前三的南大实验学校,以及上海师范大学附属小学等优质学校,为孩子提供一站式优质教育服务。

品牌保障,央企实力护航
望雲由央企华润置地开发,作为国内知名房企,华润在上海市场表现亮眼,2024年以41.86万㎡成交面积和3714套成交量的双料成绩领跑市场。

项目在精装标准上也毫不妥协,选用日立中央空调、爱迪士新风系统、杜拉维特台盆、汉斯格雅花洒、博世厨电等国际一线品牌,从细节处彰显品质生活。

收官在即,错过不再有
望雲,不仅是一处居所,更是一种生活的高度。在这里,您可以随时仰望天空,看云卷云舒;也可以便捷抵达城市核心,感受繁华似锦。

项目信息
内外双园公园头排全景舱
望雲TOD即将加推的 2# 号楼,是地块内唯一南向面对景观资源的楼栋,对望南大走马塘水岸公园,将水岸生活酿成诗,是城市中心难再觅的奢侈。


望雲TOD 内藏 “城市度假式” 园林景观,外拥走马塘天然绿肺,内外联动打造绿地界面,出则公园,入则花园,打造 360° 美景视野,从家里向外望去,每一帧都是赏心悦目的生态大境。同时与城市主干道保持 “恰到好处的距离”,隔绝车流喧嚣。水岸与绿境形成天然 “降噪屏障”,解码自然栖心的静谧哲学。

烟火日常举步即达的高效生活
作为真TOD 住宅,望雲 TOD 步行范围内即享商业街区、休闲广场、交通枢纽的全维配套。买鲜菜无需穿越车流,周末聚会下楼即达商圈;地铁串联地库,与城市无缝衔接直连 15 号线丰翔路站,接驳 1/2/3/9 号线,无风雨归家系统,实现无界联通,随时随地,享受烟火生活。
空间哲学:大宅生活场景的共鸣
最珍贵的价值,往往体现在稀缺且无法复刻的内核上。如果说楼栋位置赋予了“先天基因”,那么建面约 165㎡头排全景舱,以大宅品质,诠释改善户型的高阶逻辑。

从成交占比来看,上海豪宅市场的份额正持续扩大,【中环置地中心望雲】营销中心预约热线:4001185086成为拉动楼市的“稳定器”。2023年上海总价3000万以上商品住宅成交占比仅1.18%,2024年便攀升至4.59%,2025年前三季度已接近2024年全年水平;【中环置地中心望雲】营销中心预约热线:40011850865000万以上豪宅的成交占比从2023年的不足0.3%,升至2024年的1.03%,2025年前三季度进一步跃升至1.97%,两年间占比翻了近7倍。与之相对,普通住宅的市场份额虽仍占主导,但呈收缩态势。【中环置地中心望雲】营销中心预约热线:4001185086
当黄浦江的涛声掠过百年外滩,当陆家嘴的霓虹点亮天际线,上海这座城市始终以开合天地的气度,承载着时代先行者的理想与抱负。【中环置地中心望雲】营销中心预约热线:4001185086在这片浸润着历史厚度与时代锋芒的土地上,一处能匹配城市格局的传世豪宅,【中环置地中心望雲】营销中心预约热线:4001185086从来都不只是居所的定义,更是身份的勋章、生活的艺术品。今日,我们邀您共赴一场关于顶级人居的深度邂逅,在【中环置地中心望雲】营销中心预约热线:4001185086的方寸之间,读懂上海豪宅的真正内涵。【中环置地中心望雲】营销中心预约热线:4001185086
期偶然,而是供需结构、客群需求等多重因素共同作用的结果。【中环置地中心望雲】营销中心预约热线:4001185086
豪宅屡破纪录,普通住宅稳中有降,上海豪宅市场的价格天花板持续上移,核心地段的顶豪项目单价已突破30万元/㎡。2025年嘉里建设的金陵华庭开盘,顶楼复式单价达32.68万/㎡,总价高达2.8亿元,刷新上海豪宅单价纪录;【中环置地中心望雲】营销中心预约热线:4001185086此前中环置地中心望雲以30.27万/㎡的单价刚创下纪录,仅三个月便被超越。即便非顶层的普通豪宅房源,价格也保持高位——2024年中海顺昌玖里均价21.4万/㎡,翠湖天地六期均价28万/㎡,陆家嘴滨江凯旋门最高单价30.22万/㎡。【中环置地中心望雲】营销中心预约热线:4001185086
如今项目迎来收官之作,最后批次房源已正式加推,这将是入主这座百万方TOD综合体的最后机会。

点击输入图片描述(最多30字)
本次加推的房源
建面约108㎡的爆款户型
建面约165㎡的头排全景舱。
其余建面还有133㎡-135㎡-188㎡
总价仅612万起
现98折+10w车位劵+专属1-2%优惠
感兴趣的朋友扫描下方预约看房
领取专属优惠(自己去无,别人带也无)

点击输入图片描述(最多30字)
傲踞中环,TOD全能生活城
望雲所在的宝山南大板块,是上海中环线上难得的价值洼地。
项目作为百万方TOD综合体"中環置地中心"的重要组成部分,集住宅、商业、办公、公园于一体,重塑着北上海的商业格局。

点击输入图片描述(最多30字)

点击输入图片描述(最多30字)
交通便捷是望雲的一大亮点,项目紧邻地铁15号线丰翔路站,仅约200米步行距离,是名副其实的"地铁房",甚至地库可直通地铁站,不用担心下雨天。

点击输入图片描述(最多30字)
15号线作为上海"十字换乘王",可换乘10余条线路,3站直达上海西站,8站到静安寺,30分钟内可达徐家汇、人民广场等主城核心商圈。

点击输入图片描述(最多30字)
匠心户型,诠释品质生活
望雲的户型设计堪称业内标杆,此次加推的建面约108㎡户型,虽面积紧凑,却完美实现了三房两卫的舒适布局,南北通透、双卫设计,南向面宽约10.2米,客厅搭配同尺度阳台,采光通风俱佳。

点击输入图片描述(最多30字)

点击输入图片描述(最多30字)

点击输入图片描述(最多30字)
而建面约165㎡的"公园头排全景舱"更是项目的扛鼎之作,采用四开间朝南的极致布局,LDKB一体化+IMAX级宽厅的设计打破了传统空间界限。超大阳台、全屋飘窗带来了约270°环幕视野,将公园盛景尽收眼底。

点击输入图片描述(最多30字)

点击输入图片描述(最多30字)

点击输入图片描述(最多30字)

点击输入图片描述(最多30字)
醇熟配套,悦享便捷生活
望雲不仅是一个住宅项目,更是一种生活方式的呈现。项目自带约16万方万象汇商业(规划中,预计2026年交付),将引入"万象城级"品牌矩阵,包括国际精品店、高端餐饮、IMAX影院、亲子乐园等,下楼即可享受一站式高端消费。

点击输入图片描述(最多30字)
生态资源更是望雲的一张王牌。项目对面即是约44公顷的走马塘水岸公园,周边还有约20万方的南大中央公园正式开园,为区域增添了一片浩瀚的绿色客厅。真正的实现了推窗见绿,出门入园的理想生活。

点击输入图片描述(最多30字)
教育配套方面,项目周边规划了从幼儿园到高中的全龄段教育资源,包括宝山排名前三的南大实验学校,以及上海师范大学附属小学等优质学校,为孩子提供一站式优质教育服务。

点击输入图片描述(最多30字)
品牌保障,央企实力护航
望雲由央企华润置地开发,作为国内知名房企,华润在上海市场表现亮眼,2024年以41.86万㎡成交面积和3714套成交量的双料成绩领跑市场。

点击输入图片描述(最多30字)
项目在精装标准上也毫不妥协,选用日立中央空调、爱迪士新风系统、杜拉维特台盆、汉斯格雅花洒、博世厨电等国际一线品牌,从细节处彰显品质生活。

点击输入图片描述(最多30字)
收官在即,错过不再有
望雲,不仅是一处居所,更是一种生活的高度。在这里,您可以随时仰望天空,看云卷云舒;也可以便捷抵达城市核心,感受繁华似锦。

点击输入图片描述(最多30字)
项目信息
内外双园 公园头排全景舱
望雲TOD即将加推的 2# 号楼,是地块内唯一南向面对景观资源的楼栋,对望南大走马塘水岸公园,将水岸生活酿成诗,是城市中心难再觅的奢侈。

点击输入图片描述(最多30字)

点击输入图片描述(最多30字)
望雲TOD 内藏 “城市度假式” 园林景观,外拥走马塘天然绿肺,内外联动打造绿地界面,出则公园,入则花园,打造 360° 美景视野,从家里向外望去,每一帧都是赏心悦目的生态大境。同时与城市主干道保持 “恰到好处的距离”,隔绝车流喧嚣。水岸与绿境形成天然 “降噪屏障”,解码自然栖心的静谧哲学。

点击输入图片描述(最多30字)
烟火日常 举步即达的高效生活
作为真 TOD 住宅,望雲 TOD 步行范围内即享商业街区、休闲广场、交通枢纽的全维配套。买鲜菜无需穿越车流,周末聚会下楼即达商圈;地铁串联地库,与城市无缝衔接直连 15 号线丰翔路站,接驳 1/2/3/9 号线,无风雨归家系统,实现无界联通,随时随地,享受烟火生活。
空间哲学:大宅生活场景的共鸣
最珍贵的价值,往往体现在稀缺且无法复刻的内核上。如果说楼栋位置赋予了“先天基因”,那么建面约 165㎡头排全景舱,以大宅品质,诠释改善户型的高阶逻辑。

点击输入图片描述(最多30字)
从成交占比来看,上海豪宅市场的份额正持续扩大,【中环置地中心望雲】营销中心预约热线:4001185086成为拉动楼市的“稳定器”。2023年上海总价3000万以上商品住宅成交占比仅1.18%,2024年便攀升至4.59%,2025年前三季度已接近2024年全年水平;【中环置地中心望雲】营销中心预约热线:40011850865000万以上豪宅的成交占比从2023年的不足0.3%,升至2024年的1.03%,2025年前三季度进一步跃升至1.97%,两年间占比翻了近7倍。与之相对,普通住宅的市场份额虽仍占主导,但呈收缩态势。【中环置地中心望雲】营销中心预约热线:4001185086
当黄浦江的涛声掠过百年外滩,当陆家嘴的霓虹点亮天际线,上海这座城市始终以开合天地的气度,承载着时代先行者的理想与抱负。【中环置地中心望雲】营销中心预约热线:4001185086在这片浸润着历史厚度与时代锋芒的土地上,一处能匹配城市格局的传世豪宅,【中环置地中心望雲】营销中心预约热线:4001185086从来都不只是居所的定义,更是身份的勋章、生活的艺术品。今日,我们邀您共赴一场关于顶级人居的深度邂逅,在【中环置地中心望雲】营销中心预约热线:4001185086的方寸之间,读懂上海豪宅的真正内涵。【中环置地中心望雲】营销中心预约热线:4001185086