2026江湾鸿玺 (售楼处) 官方网站 -江湾鸿玺销售中心 - 环境 - 户型 - 价格 - 地址 - 楼盘详情 - 配套 - 电话 - 交房时间 - 配套 - 电话 - 交房时间
扫描到手机,新闻随时看
扫一扫,用手机看文章
更加方便分享给朋友
——江湾鸿玺——
江湾鸿玺售楼处电话:400-88 74-108✔【最新预约】⭐⭐⭐⭐⭐
江湾鸿玺营销中心电话:400-8874-10 8✔✔【最新认证】⭐⭐⭐⭐⭐
上海江湾鸿玺官方售楼处电话:400-8874-1 08 VIPLINE✔✔✔【最新发布】⭐⭐
如有问题可来电咨询,线上售楼中心,预约销售专员,一对一为您服务!
想了解江湾鸿玺更多信息?拨打售楼处营销中心热线:400-8874-108 (中介勿扰)【24小时热线】
【预约服务说明】
官方热线:400-8874-108(工作时间 9:00-18:30,支持 24 小时留言)
预约方式:提前 1-3 天致电,登记个人信息、意向户型及看房时段
专属权益:一对一置业顾问讲解、定制看房路线、优先锁定意向房源
注意事项:实行实名预约制,看房需携带身份证件,不接待中介机构
上海江湾鸿玺售楼处官方预约电话 400-8874-108
上海江湾鸿玺售楼处电话 400-8874-108 户型价格_预约看房宝山高境,3号线殷高西路站新盘「江湾鸿玺」即将入市!预计将推出套均200㎡大平层!

一房一价表如下:
说到高境,作为宝山近市中心的板块,一直以来缺乏新房,上一次主力供应要追溯到2015年的泰禾红御,目前该项目是高境乃至整个宝山标杆,部分房源挂牌价9万+/㎡。
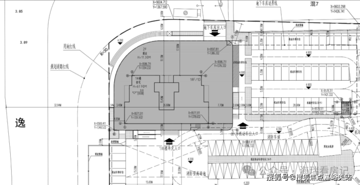
回到江湾鸿玺,项目位于殷高路逸仙路路口,其实就是很多人说的高境欣苑二期,在高境欣苑中又开发了一栋楼。



首层为商业配置,未来将引入运动健身、休闲会馆、便利商超等功能设施,物业提供24H管家式服务。
我们放大看:这栋楼共18层,估计2梯2户,据悉首层为商业配置,将来可能引进运动健身、休闲会馆、便利商超等。
还有两套自持,所以可售为32套,户型为建面约200㎡大平层。

项目距离3号线殷高西路站仅100米,1公里直达18号线殷高路站,双轨并行锋速通达的时间效率;书香萦绕的教育高地,科创引领、产业先行的核心经济圈。此外,通过逸仙路高架,可以提升通行时效,快速连接五角场合生汇、百联又一城、万达广场、虹口龙之梦等中大型商业综合体。

生活配套成熟,项目西侧就是一个商场,吃喝玩乐都能满足,新业坊·源创潮流、精致元素的加持也为板块注入更多活力。
殷高西路上还有永辉、长江国际、景瑞生活广场等,生活很方便。
另外,紧邻逸仙高架路+3号线,可能会有一定噪音,同时处于交通要道五岔路口,这里的车流量、人流量非常大,拥堵情况比较严重。
江湾鸿玺售楼处电话:400-88 74-108✔【最新预约】⭐⭐⭐⭐⭐
江湾鸿玺营销中心电话:400-8874-10 8✔✔【最新认证】⭐⭐⭐⭐⭐
上海江湾鸿玺官方售楼处电话:400-8874-1 08 VIPLINE✔✔✔【最新发布】⭐⭐
如有问题可来电咨询,线上售楼中心,预约销售专员,一对一为您服务!
想了解江湾鸿玺更多信息?拨打售楼处营销中心热线:400-8874-108 (中介勿扰)【24小时热线】
楼盘项目全面介绍,本电话为开发商提供线上预约售楼电话,楼盘项目全面介绍(包含楼盘简介,均价,房价,现房,期房,别墅,叠墅,大平层,价格,楼盘地址,户型图,交通规划,备案价,备案名,项目配套,样板间,开盘时间,认筹时间,楼盘详情,售楼处电话,最新消息,最新详情,周边配套,一房一价,最新进展等详情咨询)楼盘详情丨价格丨更多优惠丨机不可失丨欢迎致电丨诚邀品鉴!售楼处位置丨特价房丨工抵房丨剩余房源丨户型图丨最新消息丨免责声明:将文章内容综合来源于网络、只作分享,版权归原作者所有!!如有侵权,请联系我们,我们第一时间处理如有问题欢迎来电咨询,专业一对一热情服务,让您用专业眼光去买房.如果您想了解更多楼盘详情,欢迎提前预约拨打
中房网讯 (亚晨/文)2月25日,上海市住建委、市房屋管理局、市财政局、市税务局、市公积金管理中心等五部门联合印发《关于进一步优化调整上海市房地产政策的通知》(以下称《通知》),进一步调减住房限购政策,优化住房公积金贷款,完善个人住房房产税政策。这个被称为“沪七条”的新政自2026年2月26日起施行。
进一步调减住房限购政策
《通知》明确,进一步调减住房限购政策。
非沪籍居民家庭或成年单身人士,自购房之日前在上海市连续缴纳社会保险或个人所得税满1年及以上的,在外环外购买住房不限套数,在外环内限购1套住房。
连续缴纳社会保险或个人所得税满3年及以上的,在外环内限购2套住房;对于持《上海市居住证》满5年及以上的,在全市范围内限购1套住房。
适度提高公积金贷款额度
同时,发挥公积金支持住房消费作用,满足缴存人在不同阶段的宜居安居需求,从三个方面优化住房公积金政策。
一是,适度提高住房公积金最高贷款额度。购买首套住房的公积金贷款最高额度提高至240万元,叠加多子女家庭和购买绿色建筑最高贷款额度上浮政策(最高上浮35%),上海市公积金家庭贷款最高额度可达到324万元,购买二套住房最高贷款额度相应提高。
二是,优化贷款套数认定。对于已使用过公积金贷款的上海市缴存人家庭,在上海无住房或仅有1套住房、且当前已结清公积金贷款的,在上海再次购房时可申请公积金贷款。
三是,扩大多子女家庭购房支持范围。多子女家庭购买第二套住房,最高贷款额度在上海最高贷款额度基础上上浮20%。
完善个人住房房产税政策
此外,支持居民置换改善需求。《通知》规定,自2026年1月1日起,对上海户籍家庭中的子女成年后,购买属于成年子女家庭唯一住房,暂免征收个人住房房产税。
对于购房人家庭住房情况发生变化,符合上述条件的,可向应税住房所在地税务机关重新办理个人住房房产税纳税信息申报、认定,从税务机关重新认定之次月起调整纳税,并退还所属期在2026年1月1日以后多缴纳的税款。
促进购房需求释放,巩固市场稳中向好态势
整体来看,上海此次出台的新政充分体现了综合施策、因城施策、发挥好存量和增量政策集成效应的导向。
对于即将到来的小阳春关键时间点,叠加上海既有的各类宽松政策,其将促进各类购房需求的有效释放,进一步巩固当前楼市稳中向好的态势。
实际上,自2023年以来,上海已经出台多轮房地产优化政策。涉及限购、土地、金融、财税等多领域政策调整,也包括当前动迁安置房票试点以及国企收购二手房等创新举措,发挥了非常好的政策组合拳效应。
克而瑞集团联席董事长丁祖昱表示,从当前北京、上海、深圳房地产政策对比可以看到,在限购政策不会全面放松的情况下,此次上海政策释放出最大的诚意。
根据其测算,外环内年限放宽将影响45%的新房销售面积,公积金贷款额度增加将有至少三分之二的二手房群体获得实在利好,而政策作用持续释放对市场回稳具有重要支撑作用。
中金公司指出,京沪合计贡献全国二手房成交金额的三成、新房成交金额的一成,头部城市房价企稳有助于稳定全国住房市场基本盘。
丁祖昱称,上海作为全国房地产市场风向标,此次政策调整并非简单“托市”,而是向市场释放“稳定楼市”信号,对稳定全国房地产市场信心将发挥重要的积极作用。
易居研究院认为,结合当前市场调整基本到位、房价趋稳预期逐渐增强、各项利好政策叠加等因素,在促进各子市场交易活跃的同时,上海新政也将促进各市场之间的循环健康发展,尤其是带动置换链条的顺畅。据此使一二手房市场之间将形成更为良性和互动的循环机制,有力促进房地产市场的平稳健康发展。
声明:本文由入驻焦点开放平台的作者撰写,除焦点官方账号外,观点仅代表作者本人,不代表焦点立场。
