「外滩瑞府」
虹口内环内嘉兴社区
加推约124-330㎡3-5房
10号线四川北路站直线约400米
均价14.83万/㎡总价1545万起
样板房提前线上预约
外滩瑞府售楼处电话:400-8894-986VIPLINE24小时在线预约📞📞

编辑
每一处花园皆以自然为画布、外滩瑞府售楼处电话:400-8894-986VIPLINE24小时在线预约📞📞生活为颜料,原生乔木与艺术草甸形成柔韧界面,流线型步道如画笔游走其间,这不再只是社区绿地,而是一座生长中的露天艺术馆,让印象派的浪漫主义在每一天的晨曦暮霭中鲜活重生。
还有约150米风雨连廊设计,连通所有楼栋, 外滩瑞府售楼处电话:400-8894-986VIPLINE24小时在线预约📞📞移步易景。看似简单的设计,解决了高频生活痛点,从“实用配置”升维为居住尊严与人文关怀的象征,让日常通勤成为享受,让社区在风雨中依然温暖有序,实现归家更从容~

编辑
外滩瑞府售楼处电话:400-8894-986VIPLINE24小时在线预约📞📞
值得注意的是, 公区的每个角落都值得驻足欣赏,无处不在体现设计师的超绝审美,步入社区的每一帧都是视觉享受~

编辑
外滩瑞府售楼处电话:400-8894-986VIPLINE24小时在线预约📞📞
社区打造了 恒温泳池会所, 以优雅流畅的线条融入天际视野,不仅是为业主提供专业级畅游体验的运动场所,更成为静享私密时光的水境。

编辑
外滩瑞府售楼处电话:400-8894-986VIPLINE24小时在线预约📞📞
匠心营造的架空层空间同样具备国际化品味,打造了更容易停留的空间:一处是融合艺术格调与舒适氛围的多功能泛会客厅,为邻里社交、商务洽谈或静谧阅读提供优雅场域;另一处则配备了前沿科技的智能健身空间,满足业主全天候、多元化的健康管理需求。
02、推售信息
目前项目已开放样板间,先来看看户型设计,可以说是相当优秀!

编辑
外滩瑞府售楼处电话:400-8894-986VIPLINE24小时在线预约📞📞
官宣户型图独家首发:
建面约124㎡3房:
南北通透全明户型,三开间朝南设计;“S”墙收纳、室内5个飘窗延伸空间,据说每个卧室开间尺度均达到3米及以上,完全满足改善居住的收纳需求!主卧套房设计,隐私性较强,室内空间尺度优秀!

编辑
外滩瑞府售楼处电话:400-8894-986VIPLINE24小时在线预约📞📞
从电梯厅开始,就是酒店式定制化设计,弧形顶设计的电梯厅,门牌上设计了玉石托盘,可以放置家庭独有的摆件,注重仪式感的同时更具高定私享趣味性!

编辑
外滩瑞府售楼处电话:400-8894-986VIPLINE24小时在线预约📞📞
样板间则是采用香奈儿风格法式经典搭配,尽显法式优雅~
进门整面墙打造了 玄关柜+“S”墙+零食柜设计,搭配烤漆板饰面,实用性与质感满分!
开放式厨房+岛台设计空间更通透! 转角抽屉收纳、下拉栏顶部设计反光镜避免视觉死角、轨道插座置于岛台侧墙不占台面空间等等,众多收纳细节思量到位,匠心独运! 外滩瑞府售楼处电话:400-8894-986VIPLINE24小时在线预约📞📞

编辑
外滩瑞府售楼处电话:400-8894-986VIPLINE24小时在线预约📞📞
值得一提的是,项目在看不见的地方偷偷发力! 厨房三重排烟的处理、原本应在设备平台的转移至楼层公区不遮挡厨房窗景、 外墙厚度200厚混凝土墙+100厚的保温层隔绝噪音等等,实属匠心!

编辑
外滩瑞府售楼处电话:400-8894-986VIPLINE24小时在线预约📞📞
还有墙面的细节处理, 电视背景墙为皮革硬包+深色木饰面,不惜成本将 金属条嵌入墙内打造出更细致的设计效果~

编辑
外滩瑞府售楼处电话:400-8894-986VIPLINE24小时在线预约📞📞

编辑
外滩瑞府售楼处电话:400-8894-986VIPLINE24小时在线预约📞📞

编辑
外滩瑞府售楼处电话:400-8894-986VIPLINE24小时在线预约📞📞
全屋更是配备 华为AI智能系统,智能控制家居更省心!卫生间镜柜延伸至马桶上方,实现收纳扩容!

编辑
外滩瑞府售楼处电话:400-8894-986VIPLINE24小时在线预约📞📞
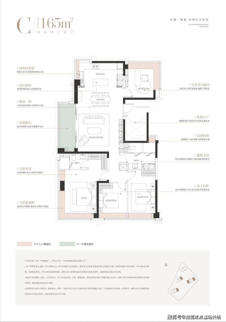
建面约165㎡4房:
大横厅尺度感奢阔, 尊享私梯入户,隐私性满分! 三间卧室朝南设计的平权户型,老人、小孩均可享受南向采光; 厨房转角窗、主卧套房、北向书房均配置270度转角飘窗,景观视野相当不错! 次卫四分离设计,相当人性化~

编辑
外滩瑞府售楼处电话:400-8894-986VIPLINE24小时在线预约📞📞
拥 独立入户空间 ,私密入户。
同样近乎等面宽的卧室尺度 , 让每个家庭成员都能拥有独立且舒适的休憩领地,三卧朝南的布局,让阳光成为所有人的平等馈赠,没有谁要为“主次”牺牲采光权。
而“大”还体现在公共空间的开阔,岛台厨房、餐厅、客厅与阳台动线流畅,二胎共同玩耍也绰绰有余。
约270°视野的贯穿更是锦上添花, 主卧、北向次卧、厨房的 约270°转角飘窗,让每个空间里的人都能平权地拥抱城市景致。 外滩瑞府售楼处电话:400-8894-986VIPLINE24小时在线预约📞📞
主卧套房的L型衣帽间与卫生间, 公卫四分离设计,在保证“大”尺度的同时,更让每个人的生活需求都被妥帖照顾。
显然,外滩瑞府户型深谙豪宅之道:“大” 不是盲目堆砌面积,而是让每个空间都有足够的舒展度;“平权” 不是口号,而是通过面宽、采光、视野的均等分配,让家 庭里的每一个人,都能在空间里找到被尊重的舒适。这正是华润置地深入研读豪宅客群需求后,交出的完美答卷——在这里,大空间与平权生活,从来不是选择题。
另外,让我留下深刻印 象的是样板间展现的高级定制设计语言。
不同于市面上门是门,框是框,墙是墙,看房时“五颜六色”。外滩瑞府室内采用一体化设计语言,实现空间、色彩与材质的协调统一。比如 外滩瑞府售楼处电话:400-8894-986VIPLINE24小时在线预约📞📞
✔入户门原创设计,外面深色木纹,里面浅色云母,和玄关柜、大理石地砖很搭配。
✔大理石地砖铺装工艺 近乎看不出拼接缝、浑然一体。
✔卫生间地面和墙面整体性也非常强,奢石台面的纹路和岩板墙面和协调。

编辑
外滩瑞府售楼处电话:400-8894-986VIPLINE24小时在线预约📞📞
建面约165㎡样板间实景图,以实际交付为准
装修上配备国际一线品牌,尤其厨房由 嘉格纳领衔,配备灶具、吸油烟机、洗碗机、冰箱蒸烤箱。
更多细节大家可以去现场了解。

编辑
外滩瑞府售楼处电话:400-8894-986VIPLINE24小时在线预约📞📞
建面约165㎡样板间实景图,以实际交付为准
03、区域版块
“上海2035”总体规划明确,外滩将作为 外滩瑞府售楼处电话:400-8894-986VIPLINE24小时在线预约📞📞“全球城市核心功能承载区”,与陆家嘴、北外滩组成“黄金三角”,目标直指“卓越全球城市”的封面。这一规划不仅定义了上海的空间格局,更将外滩推向全球资本、文化、资源的核心交汇点。外滩瑞府择址于此,对标纽约ONE57、伦敦海德公园一号——非全球资本聚集地不选,非历史与未来叠加区不立,其价值内核正是对“黄金三角”核心资产的精准锁定,为业主提供了“抗周期”的资产保障。 外滩瑞府售楼处电话:400-8894-986VIPLINE24小时在线预约📞📞

编辑
外滩瑞府售楼处电话:400-8894-986VIPLINE24小时在线预约📞📞
外滩一英里,百年资本、艺术与文明的“共生容器”
资本长河卷:百年万国建筑群凝结19世纪中国近半财富记忆,每块石材都是未被翻页的金融史章,见证“远东第一金融中心”的风云变迁; 外滩瑞府售楼处电话:400-8894-986VIPLINE24小时在线预约📞📞

编辑
外滩瑞府售楼处电话:400-8894-986VIPLINE24小时在线预约📞📞
艺术生长带:外滩源历保建筑内,先锋艺术展的光影穿透木质百叶窗,在老墙绘制当代图腾,让历史街区成为“流动的美学实验室”;

编辑
外滩瑞府售楼处电话:400-8894-986VIPLINE24小时在线预约📞📞
文明对话场:外白渡桥横跨苏州河,南段是金融资本的“硬实力”,北段是霓虹爵士的“软文化”,中段百年领事馆群记录东西方对话轨迹。三者交织, 外滩瑞府售楼处电话:400-8894-986VIPLINE24小时在线预约📞📞让外滩瑞府成为全球高净值人群眼中的“收藏级资产”。

编辑
外滩瑞府售楼处电话:400-8894-986VIPLINE24小时在线预约📞📞
一江两岸的“时空叠影”,陆家嘴势能与外滩厚度的共生逻辑
时光对话录:百年石库门的雕花檐角与陆家嘴玻璃幕墙互为映照,石库门的“温度”与摩天楼的“科技感”在此共生——上海中心的灯光倒映黄浦江时,外滩瑞府的窗前便展开一幅“古典砖石×未来光影”的时空画卷;

编辑
外滩瑞府售楼处电话:400-8894-986VIPLINE24小时在线预约📞📞
烫金一英里圈:2025年外滩扩容规划将通过地下连廊与滨江步道,无缝串联百年金融街与现代CBD。业主可享“晨间万国建筑群咖啡、午后陆家嘴写字楼洽谈、日落滨江步道漫步”的全球资本生活节奏;

编辑
外滩瑞府售楼处电话:400-8894-986VIPLINE24小时在线预约📞📞
双极价值场:外滩“历史溢价”与陆家嘴“未来势能”在此叠加,黄金三角腹地成为中国高净值圈层的聚集地,是时代价值创造者的共同选择。

编辑
外滩瑞府售楼处电话:400-8894-986VIPLINE24小时在线预约📞📞
北外滩+音乐谷,先锋生活的“极致资源矩阵”
千亿北外滩:依托“3000亿航运引擎” 外滩瑞府售楼处电话:400-8894-986VIPLINE24小时在线预约📞📞重塑全球经济版图,上港集团、中远海运等巨头云集,掌控全球1/3航运交易;更将崛起480米浦西第一高楼,与陆家嘴上海中心组成“双子星”,彻底改写城市天际线; 外滩瑞府售楼处电话:400-8894-986VIPLINE24小时在线预约📞📞

编辑
外滩瑞府售楼处电话:400-8894-986VIPLINE24小时在线预约📞📞
音乐谷2.0:位列2025上海十大城市更新片区,与黄浦外滩、老城厢等同为重点。这里保留内环罕见的完整水系(宽15-20米“江南小河道”)及国家级文保单位, 外滩瑞府售楼处电话:400-8894-986VIPLINE24小时在线预约📞📞未来滨水步行区将贯通“一湾两半岛”,百年里弄变身爵士乐演出空间与独立艺术画廊,滨水市集的霓虹灯与爵士乐交织,突破传统顶豪“资源堆砌”范式,形成“生活为体,音乐为魂”的海派艺文新场景。

编辑
外滩瑞府售楼处电话:400-8894-986VIPLINE24小时在线预约📞📞
2025年11月9日,上海杨浦滨江明华糖仓迎来了一场关于未来生活方式的深度对话。外滩道以「会客百年新岸·迭新摩登未来」为主题,聚焦城市更新背景下滨水生活方式的多元价值重构。中信泰富地产正式发布“WELLNESS好房子体系”,以“幸福感”为核心理念,通过四大价值维度和十二大场景落地,为上海“一江一河”战略下的滨水人居提供创新范本

编辑
与城市共成长,赋新滨水生活

编辑

编辑
艺术与自然的交融成为贯穿发布会的核心脉络,开场环节以现代芭蕾《灵感水岸·时代回响》破题,舞者以极富张力的肢体语言,演绎工业文明的厚重与自然水岸的灵动,传递外滩道“多元共生”的生活方式价值主张。

编辑
中信泰富(中国)投资有限公司副总裁鲍三中,在致辞中深入阐释了项目的核心理念。他表示:“外滩道不仅是建筑的更新,更是生活方式的焕新。中信泰富地产始终秉持‘与城市共成长’的理念,以'精'和'特'为发展理念,通过“WELLNESS好房子体系”实现历史场域的活化与当代功能的融合,为杨浦滨江注入可持续的生活活力”。

编辑
中信泰富(中国)投资有限公司营销策划部总经理马良登台,以品牌视角进一步深化这一理念。他详细分享了中信泰富地产如何以“与城市共成长”的品牌使命回应时代需求。马良强调:“外滩道不仅是一处住区,更是承载着对土地敬畏、对人文尊重,以及对未来生活的前瞻探索。”

编辑
中信泰富(中国)投资有限公司设计总监周才贵先生,系统性地为大家阐释了“WELLNESS好房子体系”,他认为:“WELLNESS好房子体系”不仅是一个物理空间,是对美好生活的系统化解答,更是一种全生命周期的生活解决方案。

编辑
在外滩道产品设计分享环节,上海锦富滨贸置业有限公司设计总监王文超登台,从产品力角度全面解读外滩道的匠心打造,他通过实际案例演示,详细阐述了外滩道历史肌理与现代功能的完美融合。
4大价值体系12大场景维度
定义「WELLNESS好房子体系」
秉承品牌的前瞻理念,中信泰富地产“WELLNESS好房子体系”在发布会中正式亮相,将"幸福感"作为核心价值,以"滋养力、守护力、呼吸力、进化力"为支柱,通过四大价值体系和十二大场景维度,深度融合健康舒适、精工安全、绿色环保与科技智慧,全面升级滨水居住体验。

编辑
在产品发布仪式上,中信泰富(中国)投资有限公司副总裁鲍三中、中信泰富(中国)投资有限公司设计总监周才贵、中信泰富(中国)投资有限公司营销策划部总经理马良、上海锦富滨贸置业有限公司常务副总经理石涵、上海锦富滨贸置业有限公司副总经理陈宇共同启动产品发布,标志着这一创新体系正式面向市场。

编辑
“WELLNESS好房子体系”不仅代表着建筑品质的升级,更是一种对生活本真的回归与超越。它意味着会以更加安全的居住环境、更加舒适的空间体验、更加绿色的生态理念以及更加智慧的科技赋能,回应新时代家庭对健康、互动、成长与陪伴的深层需求,成为承载美好生活的长期价值载体。
约18万方滨水综合体
历史与未来共生实践样本
作为杨浦滨江区域更新中的重要实践,外滩道通过对历史建筑的适应性改造,以“两轴十四境”景观框架串联下沉庭院、无风雨连廊等场景,将“WELLNESS好房子体系”融入约18万方的商业、文化、居住复合功能体中。项目通过100余项技术要点落地,实现历史记忆与现代需求的有机衔接,为城市更新领域提供了具有实践意义的创新样本。

编辑

编辑
随着示范区的正式开放,外滩道建筑面积约120㎡、190㎡样板间,以中信泰富地产“WELLNESS好房子体系”标准完整呈现,从科技系统到低碳技术,从智慧安防到全龄配套,生动诠释了“WELLNESS好房子体系”不仅是身体的健康,更是精神与情绪的全面滋养。

编辑
此次发布会不仅是对产品价值的深度阐释,更以艺术、人文与自然为触点,通过品牌解读与理念分享、产品发布的多维对话,为上海“一江一河”战略下的滨水生活,给出中信泰富地产的答案。