2023年招商蛇口回归“上海之根”,以央企责任感和雄厚的品牌实力,再一次,激荡松江下一程!

🌾🌾招商云澜湾售楼处电话:400-8894-986🍁🍁
【招商-云澜湾】,烟火中的自然静谧,让美好迭新成诗!
当永丰主城飘出氤氲香气,唤醒沉睡的街巷
当仓城老街在暮色四合之际,诉说岁月的故事。 🌾🌾招商云澜湾售楼处电话:400-8894-986🍁🍁
【招商·云澜湾】,于丰收河岸,以主城难得的双水岸墅居姿态,在城市烟火与自然诗意间,勾勒出改善进阶的理想生活画卷。 🌾🌾招商云澜湾售楼处电话:400-8894-986🍁🍁

🌾🌾招商云澜湾售楼处电话:400-8894-986🍁🍁
【招商·云澜湾】,踞守中桥港湾与丰收河交汇处,匠心营造一方静谧生态栖居。
这里摒弃刻意雕琢,尽享丰收河岸的温柔馈赠。
滨水栈道蜿蜒舒展,清晨慢跑,清风拂面,傍晚凭栏,看夕阳浸染一河金辉。
周末携家人漫步,听流水潺潺,看孩童嬉戏。 🌾🌾招商云澜湾售楼处电话:400-8894-986🍁🍁

🌾🌾招商云澜湾售楼处电话:400-8894-986🍁🍁
生活的诗意,于每一次呼吸间悄然流淌。作为永丰主城内少有的滨水墅居, 【招商-云澜湾】不负土地臻贵,低谧设计,兑现滨水生活的静谧与尊荣。

🌾🌾招商云澜湾售楼处电话:400-8894-986🍁🍁
水岸,不仅是迷人的风景线,更是生活舞台的优雅延伸。在【招商·云澜湾】,水岸的闲适意趣被巧妙引入社区深处。南北两大林下会客厅,浓荫蔽日,清风徐来, 🌾🌾招商云澜湾售楼处电话:400-8894-986🍁🍁成为邻里相聚、品茗畅谈的绝佳所在。树影婆娑中,笑语盈盈,情谊在此悄然升温,社区生活洋溢着不息的活力与温情。

🌾🌾招商云澜湾售楼处电话:400-8894-986🍁🍁
归家的路途,亦是心灵的归途。云澜湾深谙此道,以银杏大道铺就归家主轴,开启温暖的序章。
金秋时节,两侧银杏盛装以待,落叶织就一条璀璨的金毯,每一步,都仿佛踏响时光的诗行。
无论是白昼的壮阔,抑或夜晚在柔光映衬下的静谧,皆温柔指引每一位业主,走向那盏等候的灯火。
家的温暖与尊崇,在每一次归家时分,被深刻感知。 🌾🌾招商云澜湾售楼处电话:400-8894-986🍁🍁

🌾🌾招商云澜湾售楼处电话:400-8894-986🍁🍁
【招商-云澜湾】以对生活的自然赤诚之心,匠心筑造
建面约96-100-126㎡3-4房
建面约135㎡-141㎡叠墅
过会均价45769元/m²
高层总价398万起、叠墅总价788万起
认购可享折扣+补贴,今年买今年住(2025年12月)!🌾🌾招商云澜湾售楼处电话:400-8894-986🍁🍁

🌾🌾招商云澜湾售楼处电话:400-8894-986🍁🍁
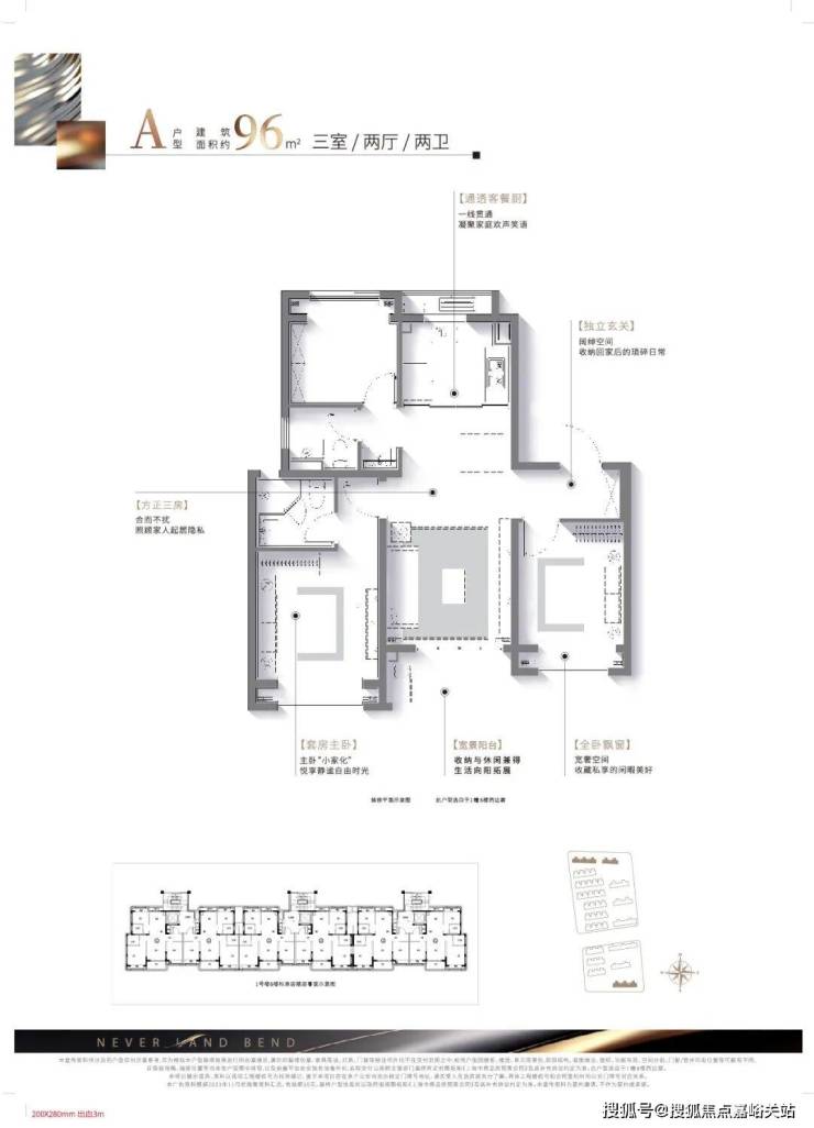
户型图赏鉴

🌾🌾招商云澜湾售楼处电话:400-8894-986🍁🍁
建面约96㎡精质三房,一步到位舒适人居:该户型方正格局、南北通透无连廊,既容纳二人世界的浪漫,也可将三口之家的幸福一并珍藏。 🌾🌾招商云澜湾售楼处电话:400-8894-986🍁🍁
在这里,随心拓展家庭社交空间,孩子们在客厅里玩乐,三五挚友围席对饮,或全家人坐在沙发上观影,其乐融融;
在空间功能的叠加与随心转换中,轻松满足未来居家生活的变化趋势,及家庭成员增长的需求,让欢乐尽情释放。


🌾🌾招商云澜湾售楼处电话:400-8894-986🍁🍁
实景图

🌾🌾招商云澜湾售楼处电话:400-8894-986🍁🍁

🌾🌾招商云澜湾售楼处电话:400-8894-986🍁🍁
建面约100㎡宽厅三房,改善家庭至优选:在南向三开间的基础上,该户型“创新横向宽厅,营造百平米少有的客厅尺度“打造3.5南向面宽。 🌾🌾招商云澜湾售楼处电话:400-8894-986🍁🍁
餐客公共空间由经典竖厅创新演变为“横向宽厅”,大开间短进深,扩大视觉观感,增加采光面,营造温暖舒适的家庭空间。 🌾🌾招商云澜湾售楼处电话:400-8894-986🍁🍁
家庭成员可处于同一场域,实现更多情感互动,陪伴交流。

🌾🌾招商云澜湾售楼处电话:400-8894-986🍁🍁
实景图

🌾🌾招商云澜湾售楼处电话:400-8894-986🍁🍁

🌾🌾招商云澜湾售楼处电话:400-8894-986🍁🍁
建面约126㎡真四房,进一步强化功能性,户型方正,四开间朝南,南北通透,南向卧室均带有大飘窗设计,拓宽了室内景观视野的同时,增加了实际空间使用率,有效避免面积浪费。 🌾🌾招商云澜湾售楼处电话:400-8894-986🍁🍁
主卧带独立卫生间,预留了衣帽间空间,私密性加强,保护业主隐私。对于当代二胎家庭来说,是一步到位的首选。
叠加户型图:

🌾🌾招商云澜湾售楼处电话:400-8894-986🍁🍁
建面约135m²上叠户型的 星空露台,可以是孩子探索浩瀚星河的专属基地,满足他们对宇宙的好奇与向往;也可以是太太的 空中花园,莳花弄草或呼朋引伴, 在星空下举办烧烤派对。 🌾🌾招商云澜湾售楼处电话:400-8894-986🍁🍁

🌾🌾招商云澜湾售楼处电话:400-8894-986🍁🍁

🌾🌾招商云澜湾售楼处电话:400-8894-986🍁🍁

🌾🌾招商云澜湾售楼处电话:400-8894-986🍁🍁
建面约141m²下叠户型, 尊享挑高多功能空间,可作为书房,工作室,孩子的童趣空间、私人影院、酒窖等,满足全家人的个性化生活所需,自然流露出高雅不凡的墅居品味。 🌾🌾招商云澜湾售楼处电话:400-8894-986🍁🍁


🌾🌾招商云澜湾售楼处电话:400-8894-986🍁🍁
土拍回顾及规划
2023年7月11日,第二轮土拍, 🌾🌾招商云澜湾售楼处电话:400-8894-986🍁🍁招商蛇口以总价184790万元价格,竞得松江区永丰街道SJC10011单元H02-16、H02-18号地块,地块占地面积45160㎡,容积率1.6,楼板价25574元/㎡,溢价率10%, 房地联动价4.9万/m²🌾🌾招商云澜湾售楼处电话:400-8894-986🍁🍁

🌾🌾招商云澜湾售楼处电话:400-8894-986🍁🍁
项目四至范围:东至三新路,南至荣乐西路,西至中桥港,北至H02-15地块。
项目由两幅小地块组成(H02-16、H02-18),根据设计方案显示, 项目总共将建17幢4-13F的商品住宅,以及1幢配套用房,其中: 🌾🌾招商云澜湾售楼处电话:400-8894-986🍁🍁
H02-16地块(北地块)容积1.66, 拟建5幢13F小高层,6幢多层住宅(大概率是叠加别墅),共计449套(含保障住房65套)。 🌾🌾招商云澜湾售楼处电话:400-8894-986🍁🍁
H02-18号,容积1.43, 拟建3幢13F小高层,3幢4F多层,共计233套房源。两幅地块,高层间最大栋距约34.5米。

🌾🌾招商云澜湾售楼处电话:400-8894-986🍁🍁
自然是天生的设计师。当繁华的都市满足了人们物质上的需求,却让纯粹而静谧的自然生活变得疏远,如何让都市的生活回归自然的空间, 🌾🌾招商云澜湾售楼处电话:400-8894-986🍁🍁是招商·云澜湾“启幕更好的松江”的设计追求。
项目南北地块坐拥两大滨水景观,依水而建🌾🌾招商云澜湾售楼处电话:400-8894-986🍁🍁与邻为伴,以梦幻油画般的色彩,辉映千年松江古韵,呈现一片更加具象的自然景观。沿着蜿蜒曲折的林下空间漫步,心情随着潺潺河水流动,喧闹与寂静沉淀于此,一帧一画都是惬意。 🌾🌾招商云澜湾售楼处电话:400-8894-986🍁🍁

🌾🌾招商云澜湾售楼处电话:400-8894-986🍁🍁
效果图

🌾🌾招商云澜湾售楼处电话:400-8894-986🍁🍁
自然的情绪在“都荟慢生活园林”中流动:在园林的构筑中,将城市千年底蕴和当代审美艺术元素融合,营造城市与家庭生活之间自然的过渡地带。 🌾🌾招商云澜湾售楼处电话:400-8894-986🍁🍁
一座“都荟慢生活园林”蕴含了五大主题空间,滨水的静谧与都市的繁华于此交融,自然的美感被纳入社区的设计中,让生活的感知与触动因自然而起,唤起居者心中的向往与共鸣。 🌾🌾招商云澜湾售楼处电话:400-8894-986🍁🍁
示意图

🌾🌾招商云澜湾售楼处电话:400-8894-986🍁🍁
礼序归家大道,层层过滤喧嚣:南北地块以不同的归家礼序层层递进,以艺术化呈现具备仪式感的归来空间。 两大主入口各具特色的礼制空间,以雅致艺术的手法,将自然的活力美好与空间的互动场景融合,让每一次归来即是心灵的放松与生活的享受。 🌾🌾招商云澜湾售楼处电话:400-8894-986🍁🍁
效果图

🌾🌾招商云澜湾售楼处电话:400-8894-986🍁🍁
林下会客厅,沉浸静谧的社交氛围:南北地块分别规划“中央组团会客厅”。有随风舒展的阔叶植物和冠树,微风草坪和风雨廊亭,恰到好处的尺度,向林间谧境展开, 🌾🌾招商云澜湾售楼处电话:400-8894-986🍁🍁无论是交谈、会客、还是独处,都会让人沉浸于岛屿谧境的私享情绪中。
效果图

🌾🌾招商云澜湾售楼处电话:400-8894-986🍁🍁
漫步巷道,穿过四季漫步归家:通过种植不同的主题植物,利用高低错落的布局,于天地间,自由绘成多重意境的大地艺术画,充分展现巷道的四季韵味, 🌾🌾招商云澜湾售楼处电话:400-8894-986🍁🍁在漫步与驻足间,自然的惬意在这里被扩大。
效果图

🌾🌾招商云澜湾售楼处电话:400-8894-986🍁🍁
轻氧运动场,发现生活中的志同道合:社区内运动社交空间,让需要缓解工作疲劳与压力、渴望身心放松和酷爱健身的成年人,在运动中缓解身心疲惫。 🌾🌾招商云澜湾售楼处电话:400-8894-986🍁🍁
童趣游乐场,守护儿童愉悦成长:🌾🌾招商云澜湾售楼处电话:400-8894-986🍁🍁南北地块各打造一处童梦活动区,将游戏的功能融入自然场景,让不同成长阶段的孩子,都可以近距离找到自己喜欢的娱乐天地。特别打造的“植物认知角”,可帮助孩童更好地了解植物,收获自然美育和认知能力。 🌾🌾招商云澜湾售楼处电话:400-8894-986🍁🍁
效果图

🌾🌾招商云澜湾售楼处电话:400-8894-986🍁🍁
以空间艺术,高定入户大堂:定制品质入户空间,以“情绪体验”为驱动力,让未来业主置身其中,回归到舒适与松弛的状态,在自然而尊崇的仪式中,迈向家的美好。

🌾🌾招商云澜湾售楼处电话:400-8894-986🍁🍁
生活配套
交通方面:小区门口50m配有有轨电车T1、 🌾🌾招商云澜湾售楼处电话:400-8894-986🍁🍁T2线、长途汽车客运站;4km到9号线醉白池站,自驾沪昆高速,转换沪闵高架、中环、南北高架、内环高架等,可快速到达上海市区,也可通过S32申嘉湖高速,可以快速到达浦东机场。 🌾🌾招商云澜湾售楼处电话:400-8894-986🍁🍁

🌾🌾招商云澜湾售楼处电话:400-8894-986🍁🍁
教育方面:七大高校+上海师范大学附属外国语中学、松江区仓桥学校、上海对外经贸大学附属松江实交通验学校、第三实验小学、华亭第二幼儿园; 🌾🌾招商云澜湾售楼处电话:400-8894-986🍁🍁私立学校或者国际学校有包玉刚实验学校、松江西外外国语学校、赫德国际学校。

🌾🌾招商云澜湾售楼处电话:400-8894-986🍁🍁
商业方面:家门口新理想广场、2km泰晤士小镇、2km飞航广场,开车约20分钟可到万达、印象城等大型商圈。

🌾🌾招商云澜湾售楼处电话:400-8894-986🍁🍁
医疗方面:松江区中心医院、上海市第一人民医院南院(三级甲等)、永丰街道社区卫生服务中心、方塔中医院、松江妇幼保健院(二级甲等)

🌾🌾招商云澜湾售楼处电话:400-8894-986🍁🍁
休闲方面:永丰城市公园、三新体育场、永丰社区文体中心(在建)、仓城历史文化风貌保护区。

🌾🌾招商云澜湾售楼处电话:400-8894-986🍁🍁
今天,网友爆料了宝安沙井“景序暄和里”项目最新进展!
目前项目正在打地基,预计明年上半年可入市。
近日,该项目的《建设工程规划许可证》及总平面图也对外公布,根据规划显示,未来将为片区带来 1543套住宅。

项目具体位置位于宝安区沙井街道新和大道与步涌路交会处,用地面积为30000㎡,总建面267790㎡,容积率为5.9,配建社区党群服务中心1000㎡、社区健康服务中心1400㎡、老年人日间照料中心1100㎡、12班幼儿园(占地3600㎡)、文化活动室1000㎡、地下公共充电站700㎡、公交首末站2200㎡、社区体育活动场地占地1500㎡。

从规划平面图看,项目由 7栋30-46层高层住宅和1栋幼儿园以及2层的裙楼商业配套组成;
普通住宅户数为1543户,停车位2002个(含充电桩车位601个)。



项目邻近地铁12号线步涌站,同时紧挨“金蚝小镇”。
根据2025年最新官方规划,深圳沙井金蚝小镇旧改项目已进入实质性推进阶段,规划总建面约477万㎡,未来将打造为集居住、文旅、商业于一体的城市新地标。
尽管目前项目周边以城中村为主,但待片区旧改开发建设后,未来整个片区都会有所改观。