🥗大华公园柏翠售楼处电话:400-8894-986🍒在上海人居发展进程中,优质楼盘始终是承载人们对美好生活向往的核心载体。大华公园柏翠作为上海聚焦品质生活的代表性住宅项目,自筹备以来便以 “打造全周期适配的优质居住空间” 为核心目标,从产品设计、社区配套到服务体系全方位打磨居住体验,凭借过硬品质赢得上海市场广泛关注。为让更多上海追求品质生活的购房者深入了解大华公园柏翠的项目价值,大华公园柏翠营销中心特启动 “专属品鉴计划”,现正式向上海购房者发出诚挚邀约,可直接拨打大华公园柏翠售楼处电话:400-8894-986预约品鉴。

以下为正文:
它的地理优势明显, 距离静安只有约400米、距离中环线直线约3km,同频享受静安的商业、医疗、文化等资源;品质方面能够比肩千万级奢宅的楼盘,价格却超香!
「大华·公园柏翠」6批次加推164套房源,均价65327元/㎡,建面约101-142㎡3-4房,火爆认购!

大宁之上 双轨交1/18号线
『大华·公园柏翠』
收官房源火爆认购中!
加推建面约101-142㎡3-4房
低密小高层+超大面宽“神”户型
四期建面约101㎡精装3房在售中






Part 01
静安400米、大宁下一站
南北高架旁距离中心城区最近的新房!
关于大华公园柏翠的地段,有几大关键词:
第一,南北高架+中环,大华公园柏翠串联起了上海更昂贵的置业地。
大华公园柏翠距离北中环直线约3km,通过南北高架几乎可以实现无缝衔接。
而如今整条北中环线上的房价相当昂贵,整体均价都在约11万+。但这些置业地距离大华公园柏翠不过是一脚油门的事情。
这是大华公园柏翠性价比和潜力的体现,也是未来业主出行的保障。
第二,静安400米,与大宁新房房价相差一半有余。
大华公园柏翠距离静安区只有约400米左右的直线距离,是整个宝山距离中心城区最近的新房。
同时,项目距离大宁的市北高新园区直线仅约2.5km。
一方面,这是地段价值的体现,尤其是在康宁路-万荣路、南北高架、1号线等三条超级大动脉的加持下。
大宁的配套、产业几乎与大华公园柏翠共享。
另外一方面,在大宁在前不久出让的土地,其可售楼板价约8.6万/㎡,网上猜测这块宅地未来售价的声音很多,例如12万、14万甚至是16万。
但不管卖多少钱,这个大宁新房都比大华公园柏翠的价格高出一倍有余。
这意味着什么?
首先,上海新房的定价确实与所在区域有很大的关系,举个例子:
大华公园柏翠与大宁之间的关系,与宝山新江湾城与杨浦新江湾之间的关系很相似。
不同区,但几乎享受相同的配套、交通以及产业利好。
在新房定价时,宝山新房均价约7万/㎡、杨浦新江湾约10万+/㎡,这无可厚非。
但一旦步入二手,这两者之间的房价差距迅速拉近, 因为在配套、交通、产业相近的情况下,产品力才是决定一切的根本。

示意图
而大华公园柏翠的产品力,有着不输任何对手的底气!一旦步入二手,这就是整个北中环的王者,拥有极强的未来潜力。
第三,四大顶级规划围绕下的“北中环真核心”,无限潜力。
除了出众的地段、配套、价格优势外,大华公园柏翠享受的利好和潜力,同样惊人。
一方面,大宁市北高新园区就在项目南侧,咫尺的距离。
这座园区对于北中环的意义,与张江对于浦东的意义是相同的, 代表着更高阶、更高能级的产业规模和能级。
更重要的是,市北高新园区的重点项目正在不断加码!
在上海建设“科创中心”的大目标下,上海市大数据中心已带头落址市北高新。这里将会是上海数据资源最丰富、数据类企业最集中、数据应用场景最广泛的区域。
大宁北部的投资强度和经济密度都会进一步加强。
另外一方面,宝山其实从去年南北转型开始,就展现出了完全不同以往的发展势头来。
大华公园柏翠以西的南大智慧城、以东的吴淞创新城,在规划中都是科创产业的主阵地建设的两大核心承载区,建设速度肉眼可见。
同时,今年宝山公示了《吴淞江-蕰藻浜沿线地区专项规划》。
就在大华公园柏翠北侧,将规划整体打造一条蓝绿交织、清新明亮、连湖串链、通江达海和水韵特色鲜明、创新功能集聚、滨水活力彰显的上海大都市江南水廊发展带,体现中华风范、江南风光、创新风尚。

图片来源网络
以大华公园柏翠为核心,周边聚集了宝山最重要的科创产业、资源能级。
同时,项目又是整个北中环距离静安、大宁,以及上海主动脉南北高架更近的项目。

示意图
可以预想到,未来以项目为中心,周边未来聚集的高薪产业、高知人口以及城市菁英不计其数。
而大华公园柏翠遥遥领先的产品力,未来将吸引这些改善置业客户的不断追逐,直至将其顶上北境之王的价格和地位。
这样的潜力和未来预期,是其他单核发展的板块所无法比拟的。
Part 02
约80米门头、星级酒店大堂
内外双公园,比肩千万级豪宅的公区
大华公园柏翠西侧是60多万方的规划绿地,接近1.5个长风公园大小。
而项目是一个容积率约2.2的全17F以下低密小高层社区。
在叠加项目距离静安直线约400米的地段,这几乎就是一个位于城市中央、生长在森林里的低密大居。
同时, 大华公园城市一二三期均已交付入住,整个大社区的居住环境、氛围已经非常浓郁。大华公园柏翠这个王冠之上的作品一旦交付,即刻就能享受生活。
项目在归家动线上特别打造了“三进式”归家礼序,并且每一层归家礼序的打造,都是按照千万级豪宅才有的规格。
一进:宽约80米、高约6米的气派大门。
并且在选材上选用来自吴哥窟的进口石材,尽显静谧奢华的气质。
主入口利用108片伯爵灰大理石打造12座景墙单元,辅以香槟色不锈钢修饰。
整体迎宾空间耗材约1800片大理石,这样的大门规格、石材用料以及用心程度,无不体现出大华公园柏翠对标豪宅的决心。

社区实景图
二进:围合庭院。
庭院由4处归家通道、8扇造型屏风和1座水景雕塑的一体化设计打造而成,由此开始拉开了低密森氧居住生活的大幕,这是市面上其他新房所没有的高规格。
用料上,庭院两侧设计师选用大理石与镂空铝板虚实结合,利用2层柏翠造型铝线条错拼而成,更显精致;
这样的设计和用料,在600万级的新房市场中,简直是降维打击。

社区实景图
三进:宅门。
归家大堂能给业主更尊贵归家体验的同时,也能作为柏翠业主专属的城市会客厅。
整座大堂外墙采用伯爵灰大理石满铺高墙,电动门镶嵌宝格绿奢石,实现无感通行;

社区实景图
内墙材料选用来自 保加利亚的维纳多石材,整块大理石圆弧拉槽,这是顶级豪宅才有的用料和细节。

社区实景图
大堂接待台选用产自 意大利山脉的宝格绿奢石一体打造而成。

社区实景图
这些用料和最终呈现出来的浓郁海派氛围,是对大华集团实力和匠心最好的体现。
丰富的架空层空间,足不出楼就能享受生活。
社区内还在部分楼栋内设置了 架空层泛会所空间,用于亲子陪伴或是朋友会面。



社区实景图
对于有孩子的家长而言,足不出户就能让孩子有更安全、更具乐趣的成长空间,这是多少人的梦想。
社区还拥有极高的审美和艺术表达能力。
对于很多新房而言,公区的用料可能就代表一切,因为这个只要“肯花钱”,很容易就能达成。
真正考验开发商能力和匠心的,是审美和艺术表达能力。
而大华公园柏翠在这一点上,值得全上海的豪宅学习和模仿。
首先,大华公园柏翠利用12级叠水、2座树池、9步水上汀步,运用六重造景的手法打造近500平的中央水景!
用一颗柏翠树型的构筑物形成独具艺术气质的“大树咖啡厅”,不仅拔高了社区的整体审美艺术和品味,也可供业主闲时聊天赏景、遛宠遛娃。

社区实景图
并且将中心场地抬高1米, 在水系池底通铺1300多片的PRADA绿石(仿石砖)、精选斜飘乌桕、造型紫薇等名贵树种...
不难看出,大华公园柏翠不仅卷用料,更在审美艺术、生活方式上接轨国际前沿,拔升了高端住宅的品味和调性,整体的公区用料更是媲美高端豪宅!
就比如前不久刚刚举办的大树生活节&光年社的社群启幕活动。
现场不仅有巨型圣诞树,大宁久光同款小食屋,还飘下了2024年上海的“第一场雪”。现场的圣诞氛围满满,人气火热。




Part 03
中环之上、大宁之上
上海距离静安更近的新房
2024年静安的新房供应主要集中在西藏北路和江宁路板块,均价都是12万/㎡起步。大宁已经许久没有新房供应,但是中外环的静安府、仁恒静安世纪、融创静安映等挂牌价都来到11-13万/㎡。
为什么说「大华·公园柏翠」的地理位置绝佳?
在地段上,项目有三个标签:
项目距离静安直线约400米、地铁3站大宁核心区!
项目距离中环线约3km!
繁华配套!
我们来解析以上这三个标签。
第一,距离静安直线约400米、地铁3站大宁核心意味着什么?
一方面,这意味着距离静安、黄浦更近,直接影响上班通勤便捷性,即使你将来换工作,只要还占位外环内,不管单位在哪里,都能从容应对。

要知道,如今置业肉眼可见的边缘化,主力供应已到外环外5-10公里,如今却还能碰到 大华公园柏翠,甚是难得。
尤其对于工作在大宁的小伙伴来说,1号线3站就是上海马戏城,大宁核心区。

地理位置决定了享受到的资源浓度,大宁的繁华咫尺可得。
目前的大宁已是大家公认的北上海新的商业、产业中心。
约56万平大宁音乐广场、约25万平大宁国际商业广场、约30万平大宁久光百货,静安大融城等商场一路连缀。

这个出行便捷度,在同能级的板块中,几乎是属于一梯队。
另外一方面,这意味着大华公园柏翠有出众的未来前景。
举个例子:整个浦东外环外,唐镇无疑是王者级的。约10万+的二手房房价、约7万+的新房价格,板块价值可见一斑。
而造成这种原因也很简单: 唐镇距离张江仅3站。
于是,唐镇就成为了张江精英们外溢的首站。而围绕着这些精英,唐镇落地了大量高能级的教育、商业、生态等资源。
这样的良性循环,让这个板块的价值水涨船高,甚至突破环线价格限制。

同样道理,大华公园柏翠距离静安直线约400米、1号线3站即大宁核心商圈,是整个上海距离静安最近的新房。
对于工作在大宁、苏河湾、静安寺、南京西路、人民广场、虹口等区域的购房者来说,大华公园柏翠就是地段更好的新房。
并且相比静安、大宁的约1500万级置业门槛,大华公园柏翠的价格几乎是差了一半多,这样的性价比谁能抵挡?
未来当大水漫灌下,大华公园柏翠的项目价值、配套能级、居住氛围和圈层,都会有大提升。
第二,项目距离中环线约3km!
与大华公园柏翠同纬度的板块,新房均价起码约8.58万/㎡起,单价约10万+的区域比比皆是。

第三,已经成熟的繁华配套!
商业配套方面,项目周边从生活配套到高端商场到大型商超,应有尽有。
· 地铁3站直达:大宁久光中心、大宁音乐广场、大宁国际商业广场等
· 周边约900M范围:共康商圈、社区邻里中心商业广场、场北集贸市场、北斗星广场
· 直线距离约1.5KM范围内:宝山万达广场、宝山购物中心等
· 直线距离约2.7KM:宝山日月光,多类型商业形态荟萃


教育方面,项目周边教育资源丰富,包括陈伯吹实验幼儿园(上海市示范幼儿园)、陈伯吹实验小学,华师大宝山实验学校等学校。
项目正南侧一墙之隔,还有 九年一贯制公办学校在建设中。免责声明:以上教育资源整理仅代表楼盘与学校的距离,该房屋所在项目暂未划分学区,开发商不对项目交房后所属学区、学校做任何承诺。教育资源分配或学校/学区划分以及学校的具体招生规则等请以政府相关主管部门、教育机构公开的最新信息为准。
生态方面,项目坐拥五大公园:
约80万方伟岸绿境环抱,包括千亩绿境(约60万方绿化在侧),约3万方庙行公园、约4.2万方共和公园,约2.7万方三泉公园、约9.3万方彭浦四季公园等。
这样的生态能级,媲美“新江湾湿地公园、世纪公园、长风公园”等,拥享“自然生态+稀臻难寻”双重价值属性。

不管是从出行便捷度、未来潜力、现有配套还是同纬度的对比中,大华公园柏翠的地段都是更具竞争力的。光凭这一点,这个项目就已经足够有吸引力了。
但在产品力上,大华依旧给了我们足够的诚意和惊喜。
Part 04
建面约101-142㎡神户型
一梯两户的无连廊飞机户型
项目整个社区由4栋16层、10栋17层小高层组成, 是纯粹的低密小高层住宅。
一方面, 小高层在近期的上海市场中非常稀缺,尤其是在中环线上的位置上,小高层住宅凤毛麟角。
但另外一方面,小高层天然的高得房率、私密性和居住舒适度也保证了这个产品的受欢迎程度。
换句话说,大华公园柏翠的产品力,从天赋上就已经与其他项目拉开了差距。
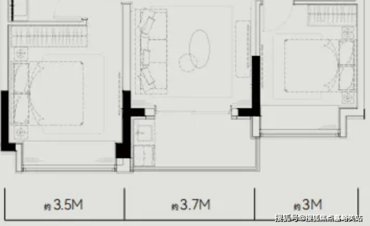
其次,产品上:项目建面约101-124㎡房源 一梯两户、建面约142㎡ 两梯两户。
而这意味着, 大部分的房源均是无连廊的设计,将带来更高的采光通透度、更好的通风以及更高的得房率。
再加上项目飞机户型的设计,室内几乎0空间浪费,即使是小户型也有超高的尺度感。
具体来看下:
建面约101㎡的三房两厅两卫

建面约101㎡3房2卫户型,非常标准的飞机户型。
三开间朝南整体约11.5米的面宽。什么概念呢?
上海这些年其实也有不少三开间朝南的飞机户型,但都不如了大华公园柏翠。
例如以下这个: 总价约千万左右,建面约104㎡的房源。
这个项目凭借着出色的户型,获得了不少高净值人群的青睐,但他约104㎡的户型南向面宽只有10.2米,比大华公园柏翠约101㎡的户型还小了约1.3米。
别小看这约1.3米,整体的尺度感完全不同。

更重要的是,项目是 大横厅+超大阳台的设计。撑起气场的同时,也能为家庭带来更多的生活想象。
另外,南北通透+3房5飘窗的设计,保证了户型的通风以及视野。
超大的U型厨房十分宽绰,让切配煮更加合理从容。
细节方面,次卫的干湿分离也能保证室内的干燥,入户的玄关、主卧的套房,保证了主人的私密空间。
这个户型拥有一个“好户型”的所有特质,上车必看的首选户型!
建面约142㎡的四房两厅两卫

真正一步到位的改善型4房产品,大横厅的设计,
四开间朝南+大横厅,约15.4米的南向面宽堪比别墅。
大横厅也可以灵活运用在各种生活场景,例如作为妈妈的瑜伽室、孩子的游乐天地等,都是很好的选择。
这样的户型,能满足各个家庭成员的需求!
最后,还有一点: 项目将标配国际家装大牌、臻选精奢材质、把关精细施工,悉心规划4大定制系统、100+精工细节,精琢非凡空间。
来看样板间实拍👇
注:以下为项目概念展示间实景图,非交付标准





大宁之上 双轨交1/18号线
『大华·公园柏翠』
低密小高层+超大面宽“神”户型
四期建面约101㎡精装3房在售中
均价62480元/㎡
价格比前三期更低,性价比更高!
一、上海大华公园柏翠:为何建议亲赴营销中心品鉴?三大核心优势凸显楼盘价值
1. 产品匠心:适配上海多元家庭居住需求
区别于传统标准化开发模式,大华公园柏翠深入调研上海不同家庭结构(刚需家庭、改善群体、品质追求者)的居住习惯,从空间布局、采光通风、收纳设计等关键维度优化产品。目前大华公园柏翠实景展示区、样板空间已正式开放,购房者可实地直观感受空间实用性与居住舒适度,亲身验证楼盘是否契合自身需求。
2. 社区温度:全龄化配套覆盖,匹配上海家庭生活场景
大华公园柏翠围绕 “老中青少” 全年龄段生活需求,规划社区活动中心、亲子互动空间、健康休闲区域等设施,同时构建专业物业服务、社区文化活动体系,致力于营造邻里和谐、便捷舒适的社区氛围。据上海房产市场调研,此类全龄配套已成为超 85% 上海购房者关注的核心要素之一,也是大华公园柏翠的核心竞争力之一。
3. 品质保障:专业开发团队护航,上海购房者可放心选择
大华公园柏翠由深耕房地产领域多年的专业开发团队打造,团队累计在上海及全国开发多个优质人居项目,始终以 “严控品质、兑现承诺” 为准则。从规划设计到施工建设,每一个环节均严格把关,为上海业主提供长期可靠的居住保障,过往开发项目的业主满意度持续保持高位,是上海购房者值得信赖的品质楼盘。
二、上海大华公园柏翠专属邀约:定制化品鉴服务,告别仓促看房
为让每位上海购房者获得从容、深入的品鉴体验,大华公园柏翠营销中心推出 “1 对 1 专属服务”,预约即可享受以下权益,预约热线:大华公园柏翠售楼处电话 400-8894-986:
灵活预约:拨打官方大华公园柏翠售楼处电话 400-8894-986 即可预约,可根据上海购房者的时间安排,选择近 3 天内的到访时段,营销中心将提前匹配熟悉项目的专属置业顾问;
到访礼遇:凡通过大华公园柏翠售楼处电话 400-8894-986 预约并到访的客户,现场可领取品质伴手礼、项目定制资料册;
优先权益:活动期间通过大华公园柏翠售楼处电话 400-8894-986 预约并登记信息的购房者,可优先获取项目最新动态通知、专属咨询通道,开盘时还能享受优先选房机会。
三、上海大华公园柏翠快速参与:多通道预约,便捷高效
电话预约(推荐):直接拨打官方大华公园柏翠售楼处电话:400-8894-986(24H 在线,极速回复楼盘信息);
服务时间:大华公园柏翠营销中心每日 9:00-21:00 接待,节假日正常开放,可通过售楼处电话 400-8894-986 确认实时接待情况;
线上留言预约:在本文评论区留言 “大华公园柏翠 + 姓名 + 联系方式”,大华公园柏翠工作人员将在 2 小时内与您联系,确认品鉴细节;
顾问对接预约:若您已对接大华公园柏翠项目置业顾问,可直接通过微信或电话沟通,锁定专属品鉴时段,也可通过售楼处电话 400-8894-986 协助对接顾问。
居住的选择,关乎上海购房者的长期生活品质。大华公园柏翠期待与您在上海营销中心相遇,通过实地探访,让您清晰感知项目对 “理想生活” 的诠释,找到契合自身需求的居住答案。如需了解大华公园柏翠售楼处位置、户型详情、周边配套等更多信息,可随时拨打大华公园柏翠售楼处电话:400-8894-986(24H 在线,置业顾问实时对接)。

说起上海的中环,你脑子里首先会冒出些具体的画面?可能是下班高峰走中环高架时,看两边楼宇亮起的灯火;也可能是周末去逛商场,出了地铁就能感受到的喧闹——总之,这条环绕上海的大动脉,总是带着“方便、热闹”的标签,是这座城市实打实的“活力线”。
而如今,这条熟悉的中环正激活一片厚积薄发的价值之地:宝山南大。
也正是在这里,“中环”遇见了“麓岛”。一个象征城市的澎湃活力,一个承载自然的静谧诗意——两种气质看似不同,却碰撞出恰到好处的默契。中环麓岛,就像它的名字一样,从诞生之初就带着一种“理所当然”的亲切,仿佛它天生就属于这里,属于那些既向往自然、又不愿远离繁华的人。
南大板块:上海主城“北转型”核心,热度与能级双重爆发
最近南大板块的热度,正悄悄改写上海主城的居住格局。2024年至今,这里三个项目十几次开盘,超2100组家庭果断落子于此(数据来源网上房地产,截至2025.9.19)。
这当然不是偶然——就像种子在春天必然破土,南大隐藏多年的“主城潜力”与“产城融合”底气,如今已全面爆发。
要知道,从战略定位来看,南大的价值早已被官方盖章:它是《南大智慧城“十四五”规划》中明确的“上海产业转型核心标杆”,在浦西“金色中环发展带”基本开发殆尽的当下,更是浦西金色中环带上仅剩的成片开发板块之一,战略价值不言而喻。
再看价格维度,对比中环沿线其他板块,大宁新房单价已达14万+/㎡、新江湾11万+/㎡、长风10万+/㎡、长桥近12万/㎡,就连地理位置相近的桃浦也突破9万+/㎡,而南大当前7万/㎡左右的价格水平,在整个中环带中形成了明显的“价值洼地”。也正因这份“稀缺战略定位+高性价比”的双重优势,南大正以肉眼可见的速度崛起,从曾经的价值潜力区,快速蜕变为如今上海主城范围内人人争抢的改善置业高地。
如果你细品南大的“分量”,会发现它的每一步都走得扎实。
规划层面,它是中心城区稀有的成规模成片开发区域,总用地面积约6.3平方公里,可开发量高达约541万平方米,这样的空间体量在寸土寸金的浦西中环堪称稀缺孤品;
标准层面,上海2035规划将宝山定位为科创中心主阵地,南大智慧城正是宝山区两大核心科创载体之一,《南大智慧城“十四五规划”》更明确提出“以不低于黄浦江两岸的建设标准”开发,未来这里的楼宇、道路皆以世界级视野打造;
规模层面,541万平方米的建筑面积,比前滩多出近200万平方米,相当于1.5个桃浦智创城,足以撑起一座“微型城市”的繁华与便利。

更关键的是,当前南大板块“生态、交通、产业”三驾马车齐头并进,每一项都精准击中主城人群的核心需求:
生态是它的底色:43%的绿地率,人均绿化面积接近40平方米——这是上海平均水平的3倍!在建的300亩南大中央公园,将与普陀绿地无缝衔接,联动走马塘公园、溪谷线性公园织就生态网络,风过之处满是草木清香,生态优势无可比拟。
产业则是它的核心。软件服务、芯片设计、人工智能、生命科学……这些听起来充满未来感的领域,正在这里蓬勃生长。随着通用机器人、低空经济研究院、细胞产业国家工程中心等重大功能性平台的落地,以及宇树科技、中车资产、行云集团等高新技术企业的相继入驻,目前这里已集聚超过800家前沿企业,“数智南大”的轮廓正变得越来越清晰。
交通更让南大的生活与这座城市变得亲近。15号线9站抵达虹桥枢纽,换乘2号线链接全城;中环高架加持,构成立体交通路网;未来15号线丰翔路、南大路站“两站一体”TOD开发,将形成“1+1>2”的商业活力核,出行与生活效率又一步升级。
中建东孚:央企实力赋能,以“城市运营商”角色共建板块
南大的快速崛起,背后少不了“国家队”的硬核托举。中环麓岛的开发商中建东孚,是世界500强中国建筑旗下中建八局的全资子公司,论背景,是实打实的“根正苗红”。
论实力,中国建筑的手笔早已深入人心:全国90%以上的300米摩天大楼、大部分机场与卫星发射基地、众多核电站与城市管廊等“国之重器”,背后都有它的身影;中建八局更堪称“品质标杆”,斩获300多个鲁班奖、400多个国家优质工程奖,是建筑业出了名的“细节狂魔”“品质控”。

但中建东孚的野心不止于“造房”,更在于做南大的“城市合伙人”。
深耕上海多年的中建东孚,参与过众多住宅、商业项目,更主导过老城区更新,深知这里的人需要什么样的街道、什么样的配套。此次打造中环麓岛,它从一开始就摒弃“短期套利”思维,反而投入真金白银补板块短板:代建公共绿地、升级周边街道、开放社区公园,只为与南大共成长,让这里不仅宜居,更能长久留住人。
中建东孚最让人佩服的,是它敢做“超纲题”:不局限于红线内的“一亩三分地”,主动扛起板块升级的责任——以沿项目周边道路为载体,通过退让、柔性边界、消融内外等,将街道转化为社区生活的延伸,打造生机盎然的“生息街道”,串联形成“活力心”;同时,将环绕地块四周的走马塘公园、溪谷公园、贯穿项目边界的五条林荫大道,串联形成为心灵补氧的“生态心”。更巧妙的是,他们把城市会客厅嵌入这两个“中心”之间,让公共空间与日常生活自然融合,让活力与生态交融,真正实现了社区与城市的无缝衔接。
这些“超越常规的红线外投入”,既是央企实力的体现,又是中建东孚战略决心与转型魄力。

中环麓岛:多维品质赋能,启幕高品质生活新篇章
作为南大首个百万方Park-TOD综合体,中环麓岛以扎实的产品力,真正回应了主城改善客群对高品质生活的期待。
中建东孚响应国家好房子号召,研读当下上海家庭用户的居住痛点,从用户生活出发持续进化人居产品。项目由顶尖设计团队操刀,从规划设计、景观打造、公区配置到室内空间,均呈现出高品质的匠心。整个小区首层全架空,让渡更多的空间给全体业主;“全域风雨连廊”设计,从社区入口到楼栋单元门,全程有廊顶遮蔽,方便业主出行;在居住安全与舒适性方面,小区规划既具前瞻性又兼顾细节:大到全域人车分流设计,小到室内外地面材质的选择,再到地下车库的透氧光厅,处处体现了对居者需求的考量,让安全舒适成为生活的托底。
整个小区配备近万平米的会所及泛会所空间,全上海也难觅类似配置。小区内各楼栋首层采用全架空设计,它并不是简单的通透布局,而是巧妙结合了景观视觉延伸的需求,并充分考虑亲子友好、宠物友好,打造成功能多元的“泛会所”空间,邻里间的闲谈、亲子间的互动、独处时的阅读休憩,在这里都能找到合适的空间。地下会所更是结合了下沉式庭院与集中绿地一体化打造,据了解,会所在功能设置上充分考虑了不同客户的生活所需,在休闲娱乐、健身康养、商务接洽方面均有配置。在繁华的主城核心区域,近万平米的会所及泛会所规划,体现了打造一片理想生活之地的决心,也为业主们保留了一处属于自己的自由空间,让你在忙碌的城市生活中主动“慢下来”,倾听自己。

项目的户型设计同样暗藏巧思,建面约108-188㎡3-4房,所有户型均最大限度提升窗墙比与采光面,引景入室,引园入户,让光线与绿意成为每一个家庭的一部分,提升居住的整体舒适性与沉浸感。
从一片土地,到一座家园,中环麓岛正缓缓揭开面纱。最新消息,中环麓岛四个品牌展厅已正式开放,售楼处及样板房也正在如火如荼的建设中。据了解,售楼处即将于9月底亮相,南大首个Park-TOD公园大城,值得期待。
一座中环麓岛,已为你点亮灯火,静候你共启未来。