首页_和樾长宁(和樾长宁售楼处)首页网站-2025和樾长宁售楼处欢迎您|楼盘评测_最新价格|配套户型_交房时间长宁欢迎您|2025楼盘评测-详情|户型配套
扫描到手机,新闻随时看
扫一扫,用手机看文章
更加方便分享给朋友




项目 拟建4幢可售住宅,总高12-14层,楼间距30米,每幢楼都可以拥有不错的采光和视野,部分楼栋底部架空/局部架空。
小区内部有下沉式庭院,南侧沿街布置了商业配套,人行、车行出入口布局合理,但未完全实现人车分流,致力打造长宁新标杆——摩登、精致、艺术感的国际先锋住区。
「约120㎡3房2厅2卫」 该户型为三房两厅两卫,从明亮的入户,南北通透,采光效果佳。

厨房采用U型布局,操作台面宽敞,合理的餐厨关系,让烹饪与用餐更加便捷。厨房借助飘窗延伸出部分台面,这部分台面下方的收纳空间相对有限,且厨房顶面可能并非平整,这或许会给厨房的收纳和装修带来一些挑战。另外需要注意的是,本户型将冰箱放置在餐厅区域,有点压缩了餐厅空间。
主卧空间以这个面积段的户型来说不算宽裕,且不能布置衣帽间。南次收纳能力不错。北次卧比较小,需要借助飘窗摆放家具。北次卧的门正对干区的镜子,稍显尴尬,不过这可以通过选择内置镜片型镜柜来巧妙化解。三个房间由于配有等面宽且无墙垛的飘窗,所以实际感受放大不少。
两个卫生间面积都比较小,尤其是主卫,但功能齐全,能满足日常使用需求。公卫的湿区布置稍怪,门打开正对马桶,淋浴房没有外窗。一般来说,淋浴房布置在开窗处,这样可以便于湿气及时排放。
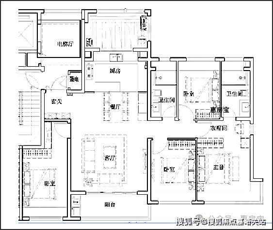
这是一套四房两厅两卫的飞机布局户型,四面宽朝南,采光与通风条件堪称完美,可以说是是为三代同堂的二胎家庭量身定制。

客餐厅采用一体化大空间设计,等面宽客厅面宽宽敞,视野开阔,搭配大面宽的薄C型厨房,动线流畅使用便利,类岛台的台面设计,进一步拓宽了餐厅空间。需要注意一下,水槽这一段台面可能是借用了飘窗,能利用的收纳空间有限。
阳台与客厅等面宽,功能多样,既能满足日常的衣物洗晒需求,又可打造成一个惬意的休闲角落,摆上一张藤椅,一杯香茗,让生活的每一刻都充满情趣。
房间布局上,三间朝南卧室让三代同堂的每一位家庭成员都能尽享阳光的温暖。朝北次卧安静舒适,可以与主卧打造成带书房的超大主卧套。
主卧采用套房设计,配有衣帽空间和卫生间,充分保障了主人的隐私与便捷。次卧的空间尺度都比较适宜,可放置双人床,满足日常居住需求。
户型内六个空间均设有等面宽飘窗,这不仅拓宽了采光面,还巧妙地增加了实用空间。
总体而言,该户型布局合理,各空间舒适惬意,是三代同堂家庭或者二胎购房者的上佳改善之选。


首先是产业方面,在虹桥古北之后,长宁是抓住了互联网风口的。
最出名的当然是位于娄山关路523号的金虹桥国际中心,也就是拼多多总部,是上海税收百亿楼! 另一个重点则是2号线淞虹路站附近的临空经济园区 崛起。
在上世纪90年代,临空园区还是典型的江南水乡景象,彼时的古北已经一片欣欣向荣,中山公园也蓄势待发。
2010年后,依托于虹桥优势,临空经济园区迎来蓬勃发展。截止最新,园区已吸引超3千家企业入驻,集聚了联合利华、德国博世 等一批国内外知名企业总部,以及爱立信、史泰博、携程网 等知名信息服务业企业。俨然是长宁甚至整个西上海的产业源动力之一。 以 娄山关路和淞虹路为产业支点,一东一西, 长宁西正在形成一整条高端商业办公链条。 2号线娄山关路除了已成型商办,西侧还有 晶耀虹桥 项目。总投资约80亿元,是由铁狮门公司,新长宁集团和三菱地所共同合作开发的大型商业办公综合体项目。项目已于2023年年初开工,预计2025年建成。2号线威宁路站上来就能看到缤谷广场,体量很大运营较为成熟,属于长宁比较知名的区级商业中心。内部的业态和门类相当丰富。 2号线淞虹路站附近, 依托于临空经济园区,这里是西长宁商业爆发的重点,前几年长宁ArtPark大融城开业,人气相当不错。
刚开业的上海荟聚综合体号称长宁最大商业体,总建筑面积超过43万方,包括长宁区最大的购物中心“上海荟聚购物中心”、宜家临空商场以及5栋办公楼。 整体来看,西长宁的产业和商业近几年的发展速度是非常快的。



声明:本文由入驻焦点开放平台的作者撰写,除焦点官方账号外,观点仅代表作者本人,不代表焦点立场。
