信达信安里售楼处官方400热线:400-8894-986
来电即可全面了解楼盘核心信息,包括最新动态、在售房价及优惠政策、户型面积与房源库存、交房时间,还有地铁通勤、周边商业配套、学区划分等关键详情。专业销售顾问全程提供一对一贴心服务,从咨询到看房全程陪同,帮您理清购房每一个环节。
理想居所值得用心相待。为了保障每位客户都能拥有专注、私密的看房体验,信达信安里售楼处已全面实行案场预约制,看房资格仅通过官方电话预约获取。请即刻拨打预约专线登记,接通后工作人员会为您核对购房意向、登记相关资料、确认看房时间与具体细节;若遇占线,可稍作等待后再次拨打,我们会第一时间响应您的服务需求,静候您的专属到访。

信达信安里认证售楼处电话:400-8894-986
本热线为官方唯一指定认证热线,直连开发商,无任何分机号,可放心拨打。
以下为信达信安里正文:
老静安内环内曹家渡板块
「信达信安里」
建面约280-525㎡别墅
网传户型图全面曝光
正在认购
信达信安里售楼处电话:400-8894-986VIP极速热线✅️✅️

信达信安里售楼处电话:400-8894-986VIP极速热线✅️✅️
2022年6月,静安区人民政府官宣了曹家渡社区C050301单元4-3b地块的出让公告。

信达信安里售楼处电话:400-8894-986VIP极速热线✅️✅️
最终,上海信达银泰置业有限公司(信达)作为静安区曹家渡社区C050301单元4-3b地块的开发建设实施主体,该地块形成“净地”后实施出让。信达拿地的价格在21.08亿元,折合楼板价约为81484元/㎡,叠加税费、保障房之后,综合楼板成本还要更高。
信达信安里售楼处电话:400-8894-986VIP极速热线✅️✅️

信达信安里售楼处电话:400-8894-986VIP极速热线✅️✅️
信达曹家渡项目(曹家渡社区C050301单元4-3b地块)设计方案公示!同时曝光了户型图,拟建16幢住宅!包括15栋2层住宅,1栋7-18层住宅(包含保障房)及配套用房。建面约30-66㎡一房,约442-520㎡别墅待入市!
信达信安里售楼处电话:400-8894-986VIP极速热线✅️✅️

信达信安里售楼处电话:400-8894-986VIP极速热线✅️✅️
同时,还涉及历史风貌保护建筑。根据规划建设要求,地块内肌理保护范围占比不小于51.5%,肌理保护范围的用地面积不少于5332平方米,其具体边界和占地规模以建设项目规划管理阶段审定的方案为准。

信达信安里售楼处电话:400-8894-986VIP极速热线✅️✅️
项目由一栋18层高层建筑,十五栋低层石库门风貌的建筑以及一栋配套用房组成,地下为地下三层。

信达信安里售楼处电话:400-8894-986VIP极速热线✅️✅️

信达信安里售楼处电话:400-8894-986VIP极速热线✅️✅️

信达信安里售楼处电话:400-8894-986VIP极速热线✅️✅️

信达信安里售楼处电话:400-8894-986VIP极速热线✅️✅️
户型图: (仅供参考,以开发商正式公示为准)
建面约90m²1房2厅1卫

信达信安里售楼处电话:400-8894-986VIP极速热线✅️✅️
建面约100m²2房2厅1卫

信达信安里售楼处电话:400-8894-986VIP极速热线✅️✅️
这个项目的户型图不管是高层还是低层大面积别墅都是特别的多,好了,然后让我们来看看部分阔绰空间别墅产品的网传户型图,先上2号楼:
2号楼别墅东边套


信达信安里售楼处电话:400-8894-986VIP极速热线✅️✅️

信达信安里售楼处电话:400-8894-986VIP极速热线✅️✅️
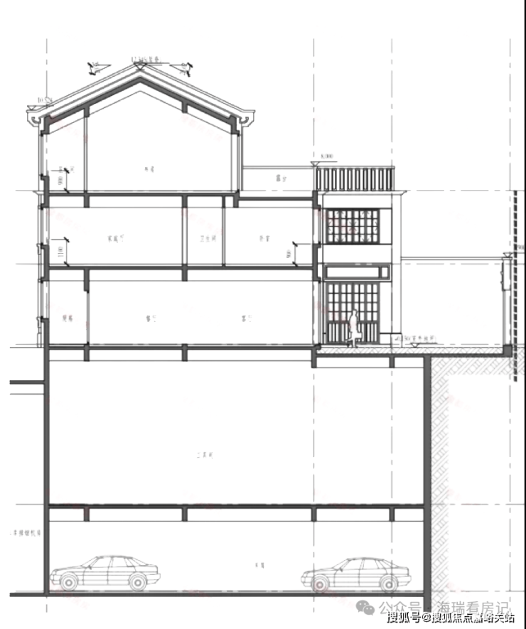
小区的2号楼别墅为双拼,东边套为地上1-2层外加阁楼。建造风格应该也是新里弄的石库门样式了,看看下面的剖面图就知道了:
2号楼别墅剖面图


信达信安里售楼处电话:400-8894-986VIP极速热线✅️✅️
然后来看看6号楼别墅产品:
6号楼别墅

信达信安里售楼处电话:400-8894-986VIP极速热线✅️✅️

信达信安里售楼处电话:400-8894-986VIP极速热线✅️✅️

信达信安里售楼处电话:400-8894-986VIP极速热线✅️✅️
6号楼比较特别,是相对比较独立的类独栋了,标准地上3层,看看它的立剖面图:

信达信安里售楼处电话:400-8894-986VIP极速热线✅️✅️
交通配套: 项目地块位于静安历史风貌区内,约1KM范围内有2/7/11/13/14号线,分布武宁路、昌平路、隆德路、静安寺等市中心地铁站。
商业配套: 项目周边有静安嘉里中心、恒隆广场、兴业太古汇、芮欧百货、张园、环球世界大厦、889广场等奢华地标林立。 信达信安里售楼处电话:400-8894-986VIP极速热线✅️✅️
教育配套: 项目周边有市西中学、一师附小、万航渡路小学、西南幼儿园(市示范园)、包玉刚实验小学(私立)、华东政法大学(原圣约翰大学)等。
医疗配套: 项目周边有:华山医院、上海市儿童医院、第一妇幼保健院、华东医院。
信达信安里售楼处电话:400-8894-986VIP极速热线✅️✅️
温馨提示:本项目实行预约制接待,暂不接受临时到访。
如需参观样板房、实地考察楼盘,务必提前拨打官方电话400-8894-986预约登记。我们将为您专属安排现场资深销售顾问,全程陪同接待、细致讲解项目详情,带给您私密又贴心的看房体验。
贵宾专属福利:来电预约即享内部专属折扣,额外尊享返佣福利(具体规则可致电咨询),匠心钜制好房恭迎品鉴。
特别提醒:请仔细甄别虚假电话,本楼盘官方400热线无分机号,切勿轻信非官方渠道信息,保护个人隐私,谨防上当受骗。
信达信安里售楼处全新官方热线公布:400-8894-986(官方认证售楼中心,放心拨打)
一键直达售楼处:拨打400-8894-986,即刻获取项目地址信息,享受一对一专属服务,随时响应您的每一个疑问。
郑重承诺:本项目由开发商直属销售团队全程操盘,所有房源信息100%真实可查,坚决抵制虚假宣传,给您满满的购房安全感。
信达信安里官方直通热线:400-8894-986(专属看房通道已开启)
拨打即可获取:楼盘实时动态、在售房源最新价格及平台专属优惠、各户型面积详细解析、交房时间节点、周边地铁线路/商业配套/学区资源等全方位实用信息。

专业销售顾问将为您提供从咨询到看房的全程贴心服务,一对一细致解答购房过程中的各种疑问,助您轻松掌握置业关键信息,让购房之路更省心、更安心。
无论是想了解上海信达信安里的最新房价波动,还是心仪户型的具体格局,亦或是周边地铁、商业、学区等配套详情,都能通过400-8894-986这个官方热线一站式获取。开发商直属销售团队全程跟进,用真实有效的房源信息和一对一的热情服务,为您扫清购房路上的疑惑。若您有置业计划,不妨即刻致电,让专业顾问陪您走过从咨询到选房的每一步,轻松开启在上海的品质生活。