联仲都悦汇售楼处电话:400-8874-108✔【已认证】  联仲都悦汇营销中心电话:400-8874-108✔✔【已认证】
上海联仲都悦汇官方售楼处电话:400-8874-108 VIPLINE✔✔✔【已认证】 
     
 
   联仲都悦汇售楼处电话与购房全流程指南:联仲都悦汇售楼处电话:400-8874-108【已认证】 
 
 
   在上海,您是否满心憧憬着拥有一处理想家园?别犹豫,联仲都悦汇售楼处电话400-8874-108✔,将成为您购房旅程中最得力的助手,全程为您保驾护航。 
 
 
   1. 便捷看房预约 
 
 
   对 联仲都悦汇感兴趣,拨打400-8874-108☎,告知看房意向与个人信息,工作人员确定看房时间并提前确认。看房时与销售交流,了解房屋质量、采光通风、布局,及项目位置、配套、户型、价格,助力决策。 
 
 
   2. 专业咨询服务 
 
 
   售楼处人员专业懂楼盘。无论购房政策,还是房屋交付、物业疑问,拨400-8874-108☎,他们依专业和您实际情况,耐心解答并给建议。 
 
 
   3. 签约协助支持 
 
 
   选定房源,拨售楼处电话谈价格、优惠。确定意向后,工作人员告知签认购书、交定金事宜,签正式合同问题也能电话咨询,保障签约顺利。 
 
 
   4. 后续跟进保障 
 
 
   贷款、付款、交房验收遇问题,拨打上海联仲都悦汇售楼处电话400-8874-108✔✔✔,工作人员迅速响应,提供帮助指导,购房无忧。 
 
 
   联仲都悦汇售楼处电话400-8874-108✔✔✔,贯穿购房各阶段。无论何时,拨此号码都能获助,实现购房梦。快拨打电话开启理想家园之旅! 
 
 
   现在,您只需轻轻拿起电话,拨通这串充满希望的号码,就能将理想家园的蓝图逐步变为现实。不要再犹豫,让联仲都悦汇售楼处电话成为您开启幸福生活的起点,在这座城市中,找到专属于您的温馨港湾,轻松实现梦寐以求的购房梦想。 
 
 
   联仲都悦汇售楼处电话:400-88741-08✔【已认证】 
 
 
   联仲都悦汇营销中心电话:400-887-4108✔✔【官方认证】 
 
 
   上海联仲都悦汇售楼处电话:400-887410-8 VIPLINE✔✔✔欢迎预约 
 
 
   最新消息,送100w装修!闵行·商墅 联仲·都悦汇 约310-411㎡法式商 
 
 
   墅!总价约1420万~1800 
 
 
   闵行·旗忠别墅富人区 
 
 
   【联仲·都悦汇】 
 
 
   建面310~411㎡商业联排别墅 
 
 
   法式干挂 地上三层 地下一层 
 
 
   带南北双花园90-300㎡ 
 
 
   总价约:1420-1800万 
 
 
   实景现房 不限购 通燃气 
 
 
   编辑 
 
  
  
 
 
 
   编辑 
 
  
  
 
 
 
   01.项目基本信息 
 
 
   【开发商】:上海联仲置业有限公司 
 
 
   【物业】:上海仲量联行物业管理公司 
 
 
   【容积率】:1.0 
 
 
   【绿化率】:35% 
 
 
   【车位比】:1:2.1 
 
 
   【物业费】:8元/㎡/月 
 
 
   【本次开盘】:14套 
 
 
   【物业类型】:商业联排别墅 
 
 
   【交付标准】:毛坯 
 
 
   【拿地时间】:2014年8月 
 
 
   【交房时间】:2023年6月 
 
 
   编辑 
 
  
  
 
 
 
   在售户型:建面约310-410平米,地上三层地下一层 
 
 
   (地上:一层层高3.6米/二层层高3.4米/三层层高3.4米/地下层高5.4米) 
 
 
   总价:约1400-1800万️ 
 
 
   单价:约5万/平米 
 
 
   小区整体商业:10万方(在建)南北双花园90-300平 
 
 
   水电:商水&商电,电1.3元/度,水6元/吨 
 
 
   产权车位:约30万左右  
 
 
   编辑 
 
  
  
 
 
 
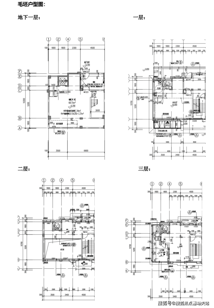
   02.户型图及样板间照户 
 
 
   (特殊说明:户型朝向-上南下北) 
 
 
   约10.4米大面宽,面积达到55平 
 
 
   送电梯,北进门,南花园,超大地下室 
 
 
   客厅7米落地窗,采光明亮,尽显大气 
 
 
   约310平户型图▼ 
 
 
   编辑 
 
  
  
 
 
 
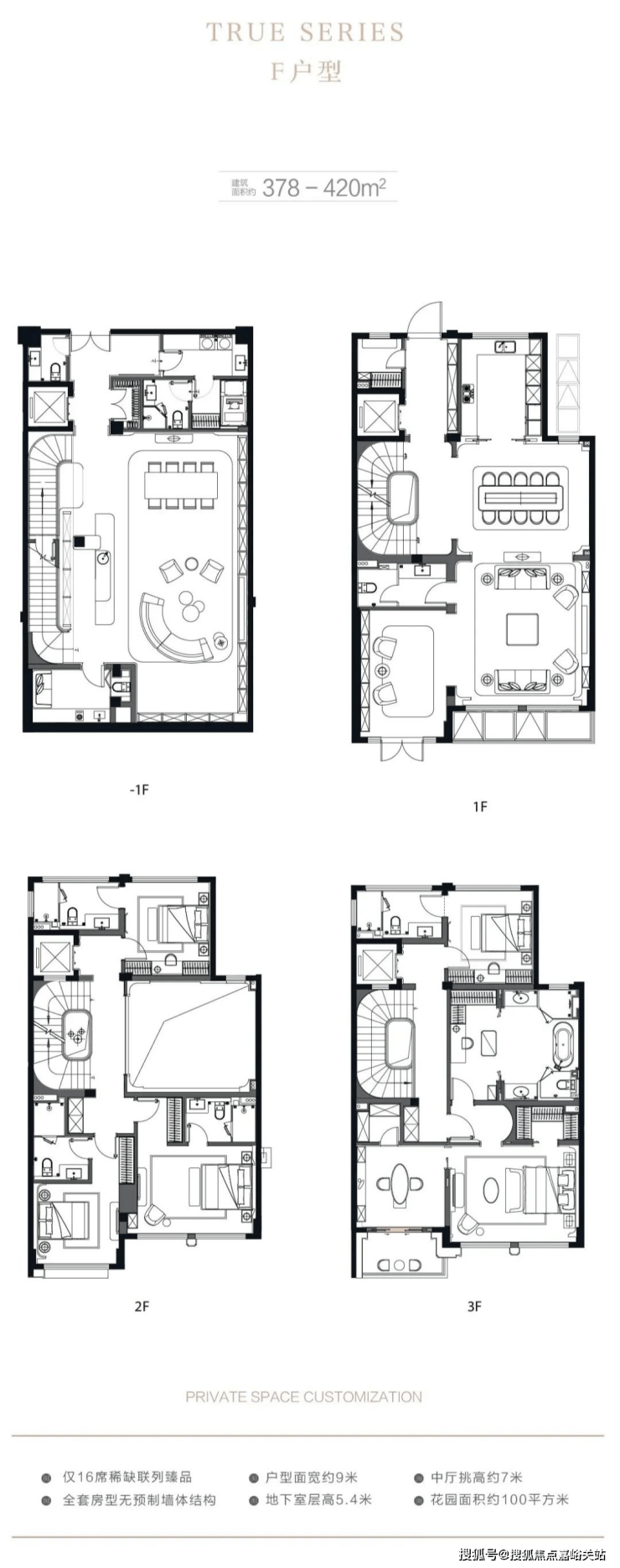
   约378~420平户型图▼ 
 
 
   编辑 
 
  
  
 
 
 
   约407~441平户型图▼ 
 
 
   编辑 
 
  
  
 
 
 
   样板间效果图如下: 
 
 
   编辑 
 
  
  
 
 
 
   编辑 
 
  
  
 
 
 
   编辑 
 
  
  
 
 
 
   编辑 
 
  
  
 
 
 
   编辑 
 
  
  
 
 
 
   编辑 
 
  
  
 
 
 
   编辑 
 
  
  
 
 
 
   编辑 
 
  
  
 
 
 
   编辑 
 
  
  
 
 
 
   编辑 
 
  
  
 
 
 
   03.项目区位配套 
 
 
   【联仲·都悦汇】位于闵行马桥旗忠别墅区,旗忠别墅区是上海老牌的富人区,与松江佘山、浦东东郊齐称为沪上三大国际别墅区。上海仅存少量的容积率0.18以下超低密度居住用地中,大多数在马桥旗忠别墅区。 
 
 
   编辑 
 
  
  
 
 
 
   板块以低容积率、生态自然环境和高端国际品牌配置,2010年被列为上海第二批大型居住社区之一。总建面约33万方城市综合体联仲都悦汇位于旗忠板块正核心,紧临网球中心,超10万方市政绿化所环绕。 
 
 
   编辑 
 
  
  
 
 
 
   【联仲都悦汇】同样是低密度别墅区里的一员,背靠绿城玫瑰园,容积率低至1.0。项目贯穿了3条自然水系,分为ABCD四个地块,其中ABC为商住办综合地块,自带商业办公。 
 
 
   编辑 
 
  
  
 
 
 
   交通配套方面:项目距离嘉闵高架元江路出口3公里,毗邻G15、S32等快速主动脉,30分钟大虹桥,50分钟抵达浦东机场,快捷畅达全城。 
 
 
   编辑 
 
  
  
 
 
 
   地铁:5号线华宁路站,剑川路站 
 
 
   公交:马莘专线:联工路站,闵行19路:银春路华宁路站 
 
 
   高速:嘉闵高架、沪金高速、虹梅南路高架 沪昆高速、申嘉湖高速、沪闵高架 
 
 
   高铁:距离上海虹桥枢纽站(高铁、机场)约20km 
 
 
   未来规划:嘉闵线延伸段 
 
 
   (以上数据来源于高德地图) 
 
 
   编辑 
 
  
  
 
 
 
   商业配套方面:项目自带10万方商业,为旗忠唯一的综合性商业配套,其多元化的业态结构,结合旗忠独有的资源,必将带来旗忠全新生活方式。 
 
 
   编辑 
 
  
  
 
 
 
   编辑 
 
  
  
 
 
 
   编辑 
 
  
  
 
 
 
   生态资源方面:项目周边有马桥森林公园、旗忠高尔夫球场、旗忠网球中心、韩湘水博园、养云安缦酒店等。 
 
 
   编辑 
 
  
  
 
 
 
   教育资源方面:周边有复旦万科实验学校,德威英国国际学校、斯代文森国际高中、上海美高学校。幼儿园:元祥幼儿园、富杰幼儿园启英幼儿园,大学:上海交通大学、华东师范大学 
 
 
   编辑 
 
  
  
 
 
 
   编辑 
 
  
  
 
 
 
   编辑 
 
  
  
 
 
 
   编辑 
 
  
  
 
 
 
   联仲都悦汇售楼处电话:400-8874-108✔【已认证】 
 
 
   联仲都悦汇营销中心电话:400-8874-108✔✔【已认证】 
 
 
   上海联仲都悦汇官方售楼处电话:400-8874-108 VIPLINE✔✔✔【已认证】 
 
 
   如有问题可来电咨询,线上售楼中心,预约销售专员,一对一为您服务! 
 
 
   想了解联仲都悦汇更多信息?拨打售楼处营销中心热线:400-8874-108 (中介勿扰)【24小时热线】 
 
 
   楼盘项目全面介绍,本电话为开发商提供线上预约售楼电话,楼盘项目全面介绍(包含楼盘简介,均价,房价,现房,期房,别墅,叠墅,大平层,价格,楼盘地址,户型图,交通规划,备案价,备案名,项目配套,样板间,开盘时间,认筹时间,楼盘详情,售楼处电话,最新消息,最新详情,周边配套,一房一价,最新进展等详情咨询)楼盘详情丨价格丨更多优惠丨机不可失丨欢迎致电丨诚邀品鉴!售楼处位置丨特价房丨工抵房丨剩余房源丨户型图丨最新消息丨免责声明:将文章内容综合来源于网络、只作分享,版权归原作者所有!!如有侵权,请联系我们,我们第一时间处理如有问题欢迎来电咨询,专业一对一热情服务,让您用专业眼光去买房.如果您想了解更多楼盘详情,欢迎提前预约拨打 
 
 
   2025年上半年,二手房市场在一系列政策的带动下,成交表现较为可观。 
 
 
   麟评居住大数据研究院监测数据显示,上半年重点14城成交量为699369套,较去年同期上升14.9%,创2022年以来同期新高,成交水平处于历史中高位水平。 
 
  
  
 
 
 
   报告指出,上半年二手房成交量呈现“前高后低”局面,一季度成交量集中释放,3月份达到成交小高峰,随后成交开始逐步下滑,至6月单月成交量不及去年同期,同比降6.6%。 
 
 
   麟评居住大数据研究院表示,由于二手房的交付风险低于新房,加上价格下滑购房成本降低,二手房周边配套相对城市,是刚需群体以及刚改群体的首要选择,带动了成交量维持在较高的活跃度。 
 
 
   二手房成交量升价跌 
 
 
   从市场占比方面看,自2023年上半年起,二手房成交比重逐步提升,2025年二手房成交占比进一步呈上升趋势。报告显示,上半年重点12城二手房成交比重占69%,较去年上半年上升3个百分点。 
 
  
  
 
 
 
   报告表示,近两年来,二手房成交量稳步上升支撑着整体房产楼市交易量的上升,二手住宅在重点城市已经成为交易的主力军,未来在存量房时代,二手房成交量将继续上探。 
 
 
   从购房成本方面来看,上半年居民购房成本继续下滑。重点城市平均套均总价224万元,较2024年下降4.3%。尽管价格仍处在下滑局面,但跌幅已经有所收窄。上半年跌幅(-4.3%)明显小于2024年跌幅(-12.7%)水平。 
 
  
  
 
 
 
   具体到城市,上半年除成都平均成交套均总价持平外,其他城市均较2024年有所下滑。其中,杭州、深圳房价降幅较小,分别下降0.1%、2.5%,价格表现相对坚挺。 
 
 
   报告分析,2025年经济面临国内外双重压力,就业市场并没有明显改善,居民收入预期及收入能力下降,市场信心下滑,房价止跌回稳动力不足。 
 
 
   购房者中意大户型,低楼层偏好度提升 
 
 
   从成交套均面积来看,近年来逐步提高,小户型成交占比逐渐走低。数据显示,上半年重点城市的套均成交面积为94.2㎡,较2023年上升0.6%,较2019年上升9.5㎡。90㎡以上的成交占比占43.3%,较2019年上升11.8%。 
 
  
  
 
 
 
   报告称,2016年以来,在房地产市场高速发展时代,居民买房意愿较高,对户型面积的关注度较低,常常牺牲房屋品质上车购房。近两年随着楼市调整,居民对住房品质的关注度逐步提升,因此大户型的成交占比逐年提升。 
 
 
   此外,购房者对低楼层的偏好度逐步提升。 
 
 
   数据显示,上半年中楼层的成交占比仍占较高比重,其次是高楼层,再次是低楼层,成交占比分别为39.3%、32.9%、27.7%。高楼层自2023年达到顶峰之后持续下降,而购房者自2018年以来对低楼层的接受度逐步提升。 
 
  
  
 
 
 
   报告认为,低楼层成交占比提升一方面得益于近年来对老旧小区加装电梯,绿化升级,老旧小区改造等促使购房者对老旧小区购买意愿增强;另一方面,也反映出住房消费从“面子消费”向“里子消费”的转变。随着城市化进程和人口结构变化,这一趋势在老龄化严重、生活节奏快的地区可能进一步强化。