华润外滩瑞府 (售楼处) 官方 - 华润外滩瑞府销售中心 - 环境 - 户型 - 价格 - 地址 - 楼盘详情 - 配套 - 电话 - 交房时间 - 配套 - 电话 - 交房时间
扫描到手机,新闻随时看
扫一扫,用手机看文章
更加方便分享给朋友
尊敬的客户朋友们,咱们预约看房之前,要了解那些?才能尽量避免预约售楼处看房时遇到信息不对称、销售过度推销、实际房源与宣传不符等问题,提前了解可更好规避风险。外滩瑞府售楼处vip贵宾预约热线:400-118-5086√√√【已认证】
●预约后无人对接:部分售楼处管理松散,线上预约后可能未及时安排销售跟进,导致到店后等待时间过长,影响看房体验。
●时间协调困难:热门楼盘或周末看房高峰时,销售接待档期紧张,可能无法按你期望的时间安排看房。
●强制绑定信息:部分售楼处预约渠道要求填写过多隐私信息(如详细收入、购房预算),否则无法完成预约,存在信息泄露风险。
●隐私保障声明:上海外滩瑞府官方售楼处电话:400-118-5086√√√【已认证】您填写的所有个人信息仅用于售楼处预约对接及置业服务,我们将严格遵守《个人信息保护法》,绝不泄露或用于其他商业用途,您可放心填写。上海外滩瑞府官方售楼处电话:400-118-5086√√√【已认证】
建议看房前明确自身需求(预算、户型、配套),并准备好关键问题(如产权年限、不利因素、交付标准)。
最新消息:
外滩1公里,外滩瑞府二批次加推建面约240-195-164-123㎡3-4房,均价148300元/㎡,将于本周末开盘!
值得一提,外滩瑞府售楼处vip贵宾预约热线:400-118-5086√√√【已认证】在外滩板块豪宅门槛普遍达6000万+的当下,外滩瑞府以3000万级起(建面约195㎡户型)的总价,为买家打开了进驻顶豪圈的“稀缺窗口”。无需承担过高门槛,即可与外滩共享城市核心资源、共赴长期价值增长,这样的机会,错过难再寻,195/240㎡只有这批次。
最新一房一价分析如下:
外滩瑞府售楼处vip贵宾预约热线:400-118-5086√√√【已认证】
外滩瑞府售楼处vip贵宾预约热线:400-118-5086√√√【已认证】
外滩瑞府售楼处vip贵宾预约热线:400-118-5086√√√【已认证】
3000-3500万级入席外滩!
外滩瑞府告诉你:买外滩买的是这些硬实力
外滩瑞府售楼处vip贵宾预约热线:400-118-5086√√√【已认证】
买外滩买的是什么?
1、买外滩,买的是全国富豪,共识下的顶级价值锚点
当下上海内环,看似豪宅琳琅满目,但纵观市场起伏,真正能穿越周期的,唯有“公认豪宅圈”的核心资产。
上海三大豪宅圈——外滩、新天地、陆家嘴已成型。而外滩是其中更具全国号召力的“价值标杆”。此前,金陵华庭以套均约8200万实现“日光”,这份热度的背后是来自全国高净值人群的集体认可:
外滩不仅是上海地理意义上的城市核心,更是全国财富圈层心中默认的“资产安全区”与“身份符号”。
在这个圈子里,外滩瑞府售楼处vip贵宾预约热线:400-118-5086√√√【已认证】豪宅的价值不依赖短期市场波动,而是靠全国共识级的认可度、不可再生的稀缺资源聚合度双重托底。
无论房价保值性、外滩瑞府售楼处vip贵宾预约热线:400-118-5086√√√【已认证】资产流动性,还是圈层纯粹性,都远超普通豪宅板块——因为选择这里的,不止上海本地买家,更是遍布全国的顶尖购买力,他们对“外滩”二字的价值认同,让这片土地的资产始终拥有稳固的支撑。
而外滩瑞府核心竞争力,在于其对“外滩核心圈”的精准占位(直线外滩约1公里)。
意味,外滩瑞府售楼处vip贵宾预约热线:400-118-5086√√√【已认证】项目从根源上享受外滩独有“全国级价值基因”,这是非核心板块楼盘难以企及的“硬底气”。
2、选择外滩,不止是居所,更是全球级价值与身份的象征
选择外滩,外滩瑞府售楼处vip贵宾预约热线:400-118-5086√√√【已认证】另一原因是其全球级商业文化底蕴与“上海名片”价值。这份吸引力,有数据为证:据上海发布统计,截至10月4日,今年十一假期超220万人次游客涌向外滩,这里始终是上海必游地标。

图片来源上海黄浦
而客流背后,外滩瑞府售楼处vip贵宾预约热线:400-118-5086√√√【已认证】是外滩“城市核心引擎”的硬实力——百年文化底蕴、52幢万国建筑群承载的金融高度,再加沪上半数奢牌酒店,构成独一无二的价值场。
但对外滩瑞府业主,这不是需要规划的旅程,而是日常:
外滩的风景是下楼散步的背景,外滩瑞府售楼处vip贵宾预约热线:400-118-5086√√√【已认证】这里的繁华是骑行途中的寻常。选择这里,就是把全球级资源,私享成生活配套。

外滩板块实景图
更关键的是,外滩瑞府售楼处vip贵宾预约热线:400-118-5086√√√【已认证】外滩瑞府对望上海“世界级黄金三角”——外滩(世界级滨水区、全球会客厅)、陆家嘴(国际金融中心)、北外滩(世界级会客厅),三者均为世界级定位,是上海作为全球城市的核心动力源。在3000-3500万级市场,论地段价值,外滩瑞府独领风骚,无出其右。
3、买外滩,买的是上海顶阶的城市更新红利
如今入手市中心外滩瑞府售楼处vip贵宾预约热线:400-118-5086√√√【已认证】,“城市更新”是绕不开的核心考量—— 即便贵如金陵华庭,也在期待金陵路焕新带来的价值升级。而外滩,无疑是上海城市更新能量更强的板块,于外滩瑞府,板块内大规模更新,更是外滩板块未来5年的“价值爆破点”。
过程方案示意图,以实际交付为准
这份红利,体现在两大维度:
①、九龙路滨水空间焕新
据最新阶段性方案外滩瑞府售楼处vip贵宾预约热线:400-118-5086√√√【已认证】(非终版,过程示意图,以实际交付为准),这里将打造红砖艺术长廊、迎宾树阵、文化景墙、全龄及宠物友好花园,融合漫步、社交、休闲功能。未来业主下楼即享慢时光,这里更有望成为媲美徐汇滨江、受全城Citywalk爱好者追捧的滨水地标。

过程方案示意图,以实际交付为准
②、约7000㎡邻里风貌底盘赋能
不仅让历史建筑重获生机,外滩瑞府售楼处vip贵宾预约热线:400-118-5086√√√【已认证】更能强力拉升板块价值——这种由文化底蕴驱动的价值提升,远比新建商业、景观更具穿透力与持久性。
据悉,外滩瑞府售楼处vip贵宾预约热线:400-118-5086√√√【已认证】风貌底盘将引入社区咖啡馆、瑞府邻里客厅、便民综合体(含超市)及社区公共服务中心等,既满足日常便捷需求,更联动周边风貌,推动整片区域的城市界面革新,带来全新生活方式。
过程方案示意图,以实际交付为准
在城市更新过程中,外滩瑞府售楼处vip贵宾预约热线:400-118-5086√√√【已认证】一条亿级TOP圈层也在成型。不同于其他新房仅能成为板块内的价格高点,外滩瑞府从起点就站在了这条亿级圈层脉络上,这份先天优势,是同价位项目难以企及的。
4、买外滩,买的是“收藏”的稀缺资产
外滩的珍贵,更藏在其不可复制的稀缺性里——自2010年至今,外滩瑞府售楼处vip贵宾预约热线:400-118-5086√√√【已认证】外滩1公里核心圈内仅供应1889套新房,占全市新房总量比例低至约0.15%。
如此稀少的供应,让外滩资产早已超越“居住”属性,更添“收藏”价值;选择这里,本质是拥有一份可传承的外滩臻稀资产。
稀缺性之下,外滩的价值也直接体现在价格上。
外滩板块正全面迈向20万/㎡,新房套均普遍达5000万+,甚至8000万+;关键,外滩后续可供土地少,未来产品大概率是风貌或超级大平层,想进驻外滩的机会只会越来越少。
因此,外滩瑞府当下的机会更显难得:
195/240㎡约3000-3500万级总价是当前能跻身外滩核心圈的稀缺窗口。这样的门槛,在全面高净值化的外滩板块中,或难再出现——错过此刻,大概率就错过了进驻外滩的最后机遇。
240㎡新品+3500万级总价
解锁塔尖圈层入场券
为何说外滩瑞府是外滩核心资产?
不仅依靠稀贵地段,更在于本次加推的240㎡新品,总价3500万级,让“进驻外滩”从“地段占有”升级为“圈层融入”。
①、约240㎡尺度,精准匹配外滩塔尖居住需求,区隔普通内环项目
在外滩,“面积”是对高阶生活方式的深度匹配。当前内环非黄浦区域180㎡以下刚改户型占比约73%(2025年数据),240㎡及以上户型仅占约10%。
外滩瑞府此次不仅有240㎡,更还有约280、330㎡产品,全方位覆盖塔尖人群对“居住质感”的严苛要求。不仅凸显户型的稀缺性,更从产品根源上区隔了内环普通刚改项目,奠定了项目的高阶调性。
②、3500-6000万级总价,锚定外滩塔尖圈层,填补市场空白
总价,是圈层的天然筛选器,更是跻身外滩核心资产的关键。
据小胖君统计,内环非黄浦区域超九成项目主力总价集中在3000万以下,难以匹配塔尖人群的资产配置与圈层需求;而外滩板块内,多数新房面积超350㎡,总价太贵,难寻入场机会。
外滩瑞府3500-6000万级的总价定位,恰好填补这一市场空白:一方面,这个总价段远超内环普通新房总价,筛选出财富实力、生活品味、资源需求同频的塔尖人群;
另一方面,它避免了外滩板块内“超高总价”的门槛压力,让渴望融入外滩核心圈层的塔尖人士,不必为“非必要面积”承担额外成本,以更合理的总价锁定外滩核心资产。
但要注意,本次加推的240㎡户型仅这一批次供应,席位稀缺且再无补仓可能,一旦错过,便意味彻底错失以这一尺度与总价入住外滩核心、融入塔尖圈层的机会。
约270°IMAX 厅堂+超级主卧+国际大牌奢装!
外滩瑞府 240㎡户型太惊艳
我们再看240户型,从专属入户仪式到全景生活场景,从国际奢材甄选到功能细节打磨,这款户型都尽显高奢。
1、专属入户礼序:塔尖仪式感从进门开始
一梯一户,推门即享专属电梯厅,搭配气派双开门入户设计,归家仪式感拉满;进入室内,超阔绰玄关厅不仅能容纳海量收纳需求,更以科学左右分区设计实现动线分流,让每一次出入都尽显从容与尊贵。
2、约270°IMAX超级厅堂:把城市天际线装进家里
客厅以超大尺度惊艳亮相,若打通北向X空间,可拓展为约90㎡超级厅堂,家族宴请or高端社交,皆能轻松承载;约270°环幕视野将采光与观景效果推向极致,中高楼层可眺望陆家嘴三件套。
厅内空间充裕,既容得下大家庭聚餐的超大圆桌,也有独立西厨岛台,满足高净值家庭多元烹饪需求。
3、灵活X空间:为成长型家庭定制更多可能
户型预留的灵活 空间,可根据家庭成员需求随时变换功能——书房、琴房,专属化妆室...每一种场景都能精准适配,让空间随生活成长而进化。
4、主卧小家化:私享级奢居体验
南向双套房设计,其中主卧以“小家化”理念打造超大私人空间:就寝区面宽开阔,搭配独立梳妆台,满足日常精致需求;L型大衣帽间收纳容量充足,轻松容纳四季衣物;主卫亮点十足,不仅做到南向采光,还配置双台盆、独立马桶、淋浴区与浴缸四件套,堪比五星级酒店的配置。
5、配独立家政间:让家庭井然有序
家政间彻底释放了阳台,让阳台成为观景配套或者志趣空间;且位置在进门处,离两个卫生间很近,“洗烘一体”的动线高效。
6、细节配置与奢材:国际大牌+高定选材,同级品质天花板
✔装修品牌:全系采用国际一线大牌,中西厨配置嘉格纳9件套;博洛尼橱柜搭配定制拉篮与调味架,让厨具收纳井然有序,尽显细节质感。
✔高定选材:玄关地面选用“白雪公主”玉石,质感温润高级;地面延展祥云灰水墨岩,与外滩华尔道夫酒店同源材质,瞬间提升空间格调;主卧背景墙更以威尼斯安缦酒店同款树瘤木,搭配巴黎宝格丽酒店同源羊皮纸,将全球顶奢酒店的居住质感搬进家中,每一处选材都彰显塔尖人居的高奢基因。
细节太多,可参考建面约240㎡样板间视频:
而这些贯穿户型的高端元素,更是外滩瑞府整个项目的品质缩影。
作为华润置地上海的顶级标杆作品,它从根源上为居者赋予顶豪级的公区质感、审美格调与仪式感。要知道,公区不同于室内装修,后期难再耗费成本升级,华润置地直接以“顶配标准”打造,牢牢奠定了高端生活的基石。
这份打造顶豪的底气,从其集结的顶级设计天团可见一斑:GOA大象设计、渡边智昭、泰国TROP事务所、无间设计吴滨、李益中等行业顶尖力量,共同为外滩瑞府的高端基因保驾护航。
其中,汤臣一品御用设计师渡边智昭操刀的泛会所尤为亮眼。他突破传统局限,不仅打造了独立“室内外双幕水剧场”,更创新地将高阶社交功能分散于四栋塔楼之下,规划出温莎廊吧、公啡花房、子恺乐园与Gym CLUB四大主题泛会所,满足不同人群的社交与生活需求。
过程方案示意图,以实际交付为准
社区景观同样是艺术杰作,外滩瑞府特邀国际景观大师Pok Kobkongsanti打造,大师将对印象派光影的理解,化作可步入、可触摸的“印象派自然秘境”。六大主题花园错落分布,全域风雨连廊串联四季景致,让居者在繁华都市中,也能享受惬意。
过程方案示意图,以实际交付为准
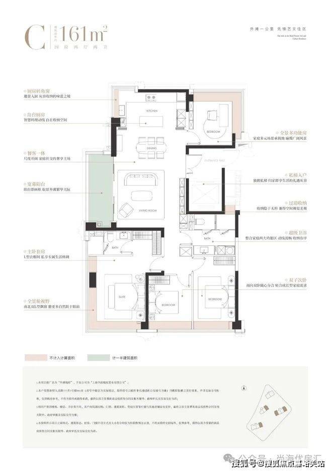
最后,项目还有建面约195-164-123㎡3-4房:
尊敬的客户:
感谢您对 [外滩瑞府] 官方售楼处电话:400-118-5086√√√【已认证】的关注与认可!为向您提供更精准、高效的置业咨询服务,如需到访售楼处,可通过填写信息完成预约,我们将第一时间为您安排专属顾问对接。上海外滩瑞府官方售楼处电话:400-118-5086√√√【已认证】
在购房决策中,新房与二手房的选择需结合预算、需求和偏好综合判断。相较于二手房,新房的核心优势主要体现在居住体验、产权安全性、个性化空间、长期成本等多个维度。
从城市来看,一线城市和强二线城市,有持续的人口流入和产业支撑,住房需求坚实,且当前政策环境友好,如降低贷款利率、放松限购条件等,对于刚需群体,在经济条件允许的情况下,可能是购房窗口期。而三四线城市,普遍面临人口流出、库存高企的问题,房价支撑力较弱,除非有实际居住需求,否则不建议盲目入市。
从个人情况和购房目的来看,如果工作稳定,收入能覆盖月供,首付充足,且是刚需自住,那么可以考虑买房。但如果是投资,就需要更加谨慎,只有部分城市的优质房产才具有一定的投资价值。
如果您对外滩瑞府有任何疑问,都可以拨打售楼处电话进行咨询。目前案场仅接待预约客户,参观本项目时需提前至少1小时拨打售楼处电话进行线上预约,可享受专属优惠折扣。上海外滩瑞府营销中心电话:400-118-5086√√√【已认证】
声明:本文由入驻焦点开放平台的作者撰写,除焦点官方账号外,观点仅代表作者本人,不代表焦点立场。
