大华梧桐樾售楼处电话:4 00-8874-108✔【已认证】⭐⭐⭐⭐⭐ 大华梧桐樾营销中心电话:400-88
74-108✔✔【已认证】⭐⭐⭐⭐⭐ 上海大华梧桐樾官方售楼处电话:400-8874-10 8 VIPLINE✔✔✔【已认证】⭐⭐⭐⭐⭐
大华梧桐樾售楼处电话与购房指南(大华梧桐樾售楼处电话:400-8874-108【官方发布】)√√√
在上海,若你渴望拥有理想家园,牢记大华梧桐樾售楼处电话 400-8874-108,它将助力你开启无忧购房之旅。
便捷看房预约
被大华梧桐樾房源吸引,拨打 400-8874-108【官方预约】√√√,向工作人员表明看房意向,留下姓名与电话。他们会结合你的日程,确定看房时间,并提前确认,确保你顺利抵达。实地看房时,你可与销售人员交流,了解房屋质量、采光通风、空间布局,掌握项目位置、周边配套、户型特色及价格,为购房决策提供依据。
专业咨询服务
售楼处工作人员经专业培训,熟知楼盘详情。拨打 400-8874-108(官方发布)✅✅,无论你对购房政策,还是房屋交付、物业服务有疑问,工作人员都会凭借专业知识耐心解答,依据你的经济状况与居住需求,给出购房建议。
签约协助支持
选定心仪房源后,拨打售楼处电话,可与销售人员商讨价格、优惠政策。确定购房意向,工作人员会告知你签订认购书、缴纳定金事宜。后续签订正式购房合同的时间、所需证件资料,也能通过电话咨询,保障签约顺利。
后续跟进保障
办理贷款、付款及房屋交付验收时,若遇问题或有疑惑,拨打上海大华梧桐樾售楼处电话 400-8874-108(官方发布),工作人员会迅速提供帮助与指导,消除你的顾虑。
大华梧桐樾售楼处电话 400-8874-108(官方预约)✅✅,是你购房全程的得力助手,无论处于哪个阶段,拨打此号码,都能获取所需信息,实现购房梦想。
大华梧桐樾售楼处电话:400-88741-08✔【官方预约】✅✅
大华梧桐樾营销中心电话:400-887-4108✔✔【官方发布】✅✅
上海大华梧桐樾售楼处电话:400-887410-8 VIPLINE✔✔✔欢迎预约✅✅
想了解大华梧桐樾更多信息?拨打售楼处营销中心热线:400-8874-108 (中介勿扰)【24小时热线】✅✅



大华梧桐樾优缺点:
大华梧桐樾,在售84、92、102平,有现房,有准现房(2026年3月交房),精装交付,目前折扣下来92平在310万上下,102平在350万上下。
学区:已经确定下面 对口嘉定同济实验学校,初中是一梯队。
缺点:小区东南侧靠近高压线,西侧有个加油站,以上可以通过选楼栋避开;周边距离11号线2.8公里,周边缺少大型商业,需要到附近的安亭嘉亭荟(17万方)。
优点:小区附近有1800亩高尔夫球场+1200亩汽车博览公园,空气环境很好。规划有14号线延伸线,目前在审批,还没正式下来。300万级别的学区房这个是独一档,周边产业也很多,房价相对更加健康。
下面是具体资料,看一下:
不论是上海还是昆山,没有人不知道大虹桥板块的价值。
在上海的十三五规划中,大虹桥板块将成为重要的商务经济战略支撑中心,这也是过去十年来上海向西发展战略最大的成果。可以说,它是上海面向长三角、面向世界的门户枢纽。


示意图
1、坐享价值核心地段,红利加速兑现!
大华·梧桐樾所在的区域,正是上海西北门户——安亭,更近虹桥,亦享大虹桥辐射红利。
以上海人民广场为中心,周边25公里范围内,唯有安亭的均价在3万+,同等距离的嘉定、赵巷、泗泾等区域的新房均价,早已突破5万+。
如此对比之下,安亭的性价比毋庸置疑。


示意图
2、将目光聚焦到大虹桥板块,项目优势更加明显!
从位置来看,大华·梧桐樾与虹桥主城直线距离仅约5公里,通过嘉闵高架路,驱车前往非常便利。因此,深受大虹桥的辐射红利。
而事实上,大华·梧桐樾通往虹桥的便利程度,甚至要超出同纬度的九亭、赵巷等地;相比九亭这种只有一条地铁的板块,大华·梧桐樾有望坐拥双地铁,11号线现已通车,未来14号线也有延伸规划研究,规划研究从江桥封浜延伸至安亭!


示意图
从价格来看,大华·梧桐樾虽然坐拥如此优秀的地段,却有着超级惊喜的价差。高层+叠墅的房地联动价,约3.7万即可上车,总价最低300万起!性价比堪称优秀!
相较之下,大华·梧桐樾拥有非常诱人的价差,在惊人的性价比下,难怪热度如此之高!可以想象,未来势必又会是一场抢房大战。


示意图
3、产业势能爆发!全球领先的汽车研发地
既然说到了安亭,那不得不提的是,安亭的高能级产业——TOP汽车产业中心核心承载区!
上海国际汽车城作为全球领先的汽车研发地,在嘉定2035规划中,将基本建成产城全面融合的世界级汽车产业中心。


安亭汽车产业园
凭借着新能源、无人驾驶、车联网等绿色高新技术产业。吸引蔚来、上汽、大众等300多家汽车企业、7大国家级公共服务平台、100多家研发机构、5万多名研发人才等汇聚。
这里以产赋能,带动整个板块的能级提升、经济提升及人口结构优化,所聚集的能量,丝毫不输于张江、漕河泾等产业高地。
1项目简介
优越的地段、齐全的配套、触手可得的生态,为大华·梧桐樾夯实了市场认可度,宽奢的产品设计更是圈粉无数。不仅拥有强硬的外在实力,内在气质也是拿捏的死死的。
1、买房就选大品牌!35载匠心精筑
大华集团,成立于1988年,是中国最早起步、最大规模的城市更新运营商之一,更是中国房地产百强企业、上海企业100强。毫不夸张的说,他是最懂上海的开发商,上海每一百个人,就有1个住过大华开发的社区,其地位可见一斑。


示意图
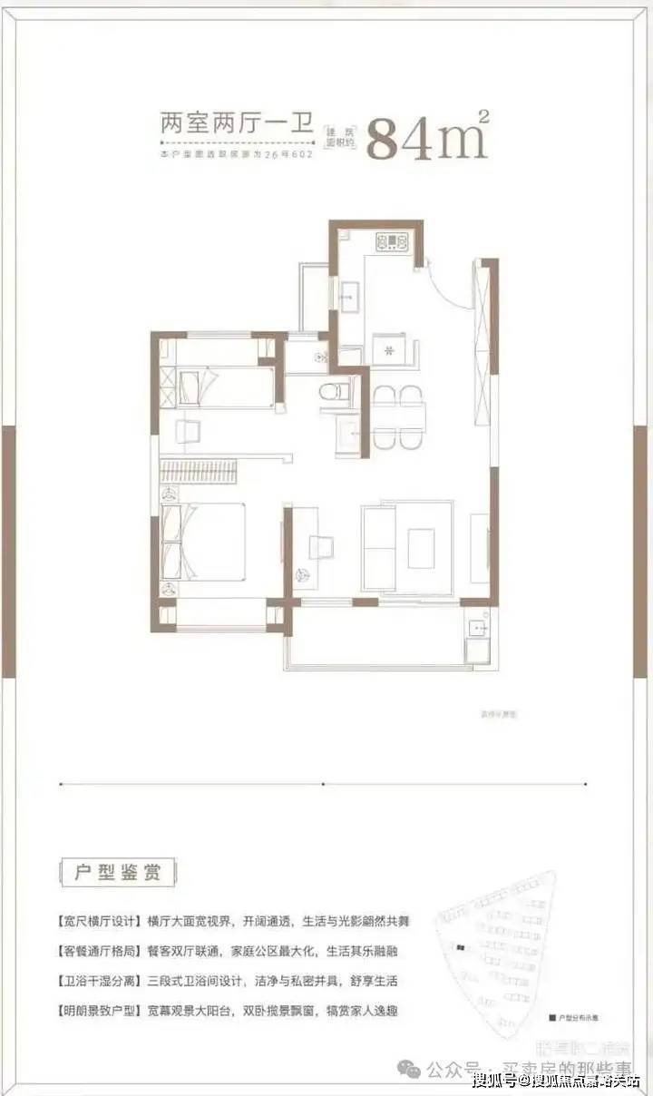
大华·梧桐樾由大华集团匠心雕琢,规划有26F高层、4F别墅、6F叠墅,社区共2097户,其中,高层住宅623套,别墅住宅368套。主力户型建筑面积约91-145㎡,涵盖瞰景高层和低密叠墅(复式住宅)产品。


2、全龄社区景观园林!诠释向往的生活
项目的颜值,也是一眼万年的存在,现代美学立面,窗棱格构,满满都是现代化的雅致。


效果图
在社区景观的打造上,将大华城墅九制、墅居六艺的法则融入其中,营造了“门、街、坊、巷、院”五重空间序列、匠筑“春、夏、秋、冬”四季主题园境。
以“鲲鹏乐园”主题儿童乐园、鲲鹏书院、老人颐乐空间、多元艺术花园、约760m“汽车文化”主题跑道、森林漫步道等,匠筑全龄美好社区。


效果图
2项目配套
大华·梧桐樾带给你的,远远不止于超强超前的兑现力,TA更是一个均好性强者。项目1.5km半径范围内,周边教育、生态、商业、交通等,个个都是重量级!


区位图
1、文脉正芯,未来可期!正统“同济”血脉
在邻校与居住环境之间寻找一个平衡点,是无数开发商探讨的方向。而在这一点上,大华·梧桐樾掌握得恰到好处。
说到上海同济大学,想来都不会陌生。与大华·梧桐樾一路之隔的同济大学附属嘉定实验学校,正是延续了正统“同济”血脉,打造的与“母校”品牌一体化、管理一体化、培养一体化(信息源于嘉定区教育局官网)的9年制公办学校。
其中,同济实验中学位居嘉定公办初中第一梯队,一脉同源教育理念与资源,升学率常年稳居嘉定前位,2022年嘉定“名额到校均分”更是排行前三;
同济附小由嘉定区“十佳校园长”王建芳担任校长,中高级教师占比约为68%(数据来源于网络)。


同济附属实验学校
不仅如此,大华·梧桐樾深谙人居向往,项目所在板块3km直距范围内(来源百度地图),同济大学嘉定校区、安亭师范附属小学、上海同济黄渡学校等8所学校环伺,坐享区域核芯教育圈福利,入席即与高素质、高净值教育圈层住户为邻。


示意图
书香氤氲的成长环境影响着孩子的交友抉择,以及未来家风走向。这背后强大的“附加值”光环,正是大华·梧桐樾如此火热的重要原因!
2、近3000亩天然氧吧!把家搬进公园里
大华·梧桐樾,占据着不可复制的自然资源。与项目一路之隔的,是约1800亩的颖奕高尔夫球场,直线距离约1100米的地方还有约1150亩开放式汽车博览公园。近3000亩的自然绿意,真正的把家搬进公园里!


汽车博览公园
如果你对这个数据没有概念,那kb君就帮你算一算,与昆山城市生态森林公园大小相当,约等于3.5个亭林园,生态价值尽显!


颖奕高尔夫球场
3、速度开挂!轨交+高速+高架,帷幄一城繁华
纵观城市发展史,交通如同流动的血液,推动城市不断向前。
项目出门就是博园路城市主干道,可快速连接嘉闵高架、嘉松北路、沈海高速、京沪高速等,30分钟就能抵达虹桥主城、市中心等。还有11、14号线(规划)、嘉虹3号线(规划)轨交加持,一线直达市区核心,瞬息全城无界生活。
从公路到高铁的立体复合式交通,带来的不仅是城市的便捷,更是对城市发展维度的诠释。


示意图
便捷交通带来的,是无限繁华的生活。对向往在上海居住的昆山人来说,大上海的繁华配套,有着致命的吸引力!
项目直线4公里范围内,约40万㎡缤纷商业配套,包括嘉亭荟城市广场、三德广场和安亭财富广场。商业氛围浓到“化不开”,无论走到哪都能放肆消费。


嘉亭荟城市生活广场
大华·梧桐樾
嘉定 安亭
物业类别:普通住宅
建筑类别:板楼
装修状况:精装修
产权年限:普通住宅产权为70年
开发商:大华集团
交房时间:2025年6月之前
在售均价:34700元/㎡
售楼处: 952358425(可+V)
建筑面积:183000㎡
占地面积:92672.3 ㎡
车位信息:车位数 2736
容积率:2.3
绿化率:35%
物业公司:大华物业
物业费:3.85元/㎡-月
3户型图














发布于 2025-05-20 14:25・江苏
赞同 2添加评论
分享
收藏喜欢
收起
更多回答

刘云齐

链家 员工
关注
大华梧桐樾
楼盘介绍
占地面积:92673平米
建筑面积:约30万方
均价:高层3.1万/㎡起,叠墅4.2万/㎡
高层:92-101㎡
叠墅:122-130-145㎡
大华梧桐樾售楼处电话:4 00-8874-108✔【已认证】⭐⭐⭐⭐⭐
大华梧桐樾营销中心电话:400-88 74-108✔✔【已认证】⭐⭐⭐⭐⭐
上海大华梧桐樾官方售楼处电话:400-8874-10 8 VIPLINE✔✔✔【已认证】⭐⭐⭐⭐⭐
如有问题可来电咨询,线上售楼中心,预约销售专员,一对一为您服务!
想了解大华梧桐樾更多信息?拨打售楼处营销中心热线:400-8874-108 (中介勿扰)【24小时热线】
楼盘项目全面介绍,本电话为开发商提供线上预约售楼电话,楼盘项目全面介绍(包含楼盘简介,均价,房价,现房,期房,别墅,叠墅,大平层,价格,楼盘地址,户型图,交通规划,备案价,备案名,项目配套,样板间,开盘时间,认筹时间,楼盘详情,售楼处电话,最新消息,最新详情,周边配套,一房一价,最新进展等详情咨询)楼盘详情丨价格丨更多优惠丨机不可失丨欢迎致电丨诚邀品鉴!售楼处位置丨特价房丨工抵房丨剩余房源丨户型图丨最新消息丨免责声明:将文章内容综合来源于网络、只作分享,版权归原作者所有!!如有侵权,请联系我们,我们第一时间处理如有问题欢迎来电咨询,专业一对一热情服务,让您用专业眼光去买房.如果您想了解更多楼盘详情,欢迎提前预约拨打
2025年三季度,中央部委进一步完善稳市场政策的顶层设计。
城市高质量发展方面,7月份中共中央时隔十年召开城市工作会议,部署7方面重点任务,包括构建房地产发展新模式,推进城中村和危旧房改造等。此后中央部委在多次重要场合表态,要求各部门和地方要落实好会议精神,高质量开展城市更新,并在8月末将推动城市高质量发展的意见正式成文下发,进一步细化落实相关发展目标。这一系列政策体现了对房地产市场稳定的重视,以及通过城市更新来推动房地产市场和城市高质量发展的决心。
与此同时,房地产增值税留抵退税、支持人口发展、外汇购房便利、城市存量空间盘活规划等配套性政策也在同步推进。
地方层面,也在积极落实一系列稳市场政策,城市更新类新政发布频次显著提升,公积金优化政策持续推进,尤其是北京、上海、深圳均在期间放松了限购政策,成为了2025年下半年地方稳楼市的重要政策风向标。
从中央政策快速细化落实与地方配套持续跟进的节奏来看,年内房地产政策仍将保持较高发力强度。随着盘活存量用地规划逐步落实,以及保障性住房和高品质住房建设进一步推进,预计四季度行业库存压力有望缓解。在中央与地方政策协同发力、双向驱动的背景下,房地产发展新模式的构建进程将进一步提速。

2025年7月15日,中央城市工作会议在北京举行,这是建国以来第五次中央城市工作会议,上一次召开中央城市工作会议,还是在10年前。此次中央城市工作会议提到了两个变化——“我国城镇化正从快速增长期转向稳定发展期,城市发展正从大规模增量扩张阶段转向存量提质增效为主的阶段。”会议提到,加快构建房地产发展新模式,稳步推进城中村和危旧房改造;严格限制超高层建筑,全面提升房屋安全保障水平;创新城市治理的理念、模式、手段,用好市民服务热线等机制,高效解决群众急难愁盼问题等。
此后政治局、央行、国资委等多部委进一步落实了会议精神,如住建部召开理论学习中心组学习(扩大)会议,传达学习中央城市工作会议精神,要求把城市更新摆在更加突出位置。各地主管部门也纷纷发文表态跟进,7月下半月即有16省市公开发文,表态将加快推进城市高质量发展相关工作。
并且在一个多月之后的8月下旬,中共中央和国务院将城市工作会议要求明确落实成文,发布了关于推动城市高质量发展的意见,文件中再度明确了“两个转向”的判断。构建房地产新模式被归于第四个板块任务“营造高品质城市生活空间”中,与系统推进“好房子”和完整社区建设密切相关。8月30日住建部也表态,将推动城市规划创新促城市高质量发展,积极研究构建一套与城市高质量发展新阶段相适应的城市规划制度体系。
城市化发展进程与城市承载力和居民生活条件改善息息相关,城市工作的优化发展,也必然带来更多高质量的新增投资和有效住房供给,并进一步挖潜有待释放的存量住房需求,有助于当前房地产市场加快企稳进程。

2025年三季度,财政部围绕提振消费、优化人口结构、激发市场活力等关键领域密集出台政策,通过财政贴息、税费减免等措施,在扩大内需与改善民生间实现精准平衡。
其一,消费贷款贴息政策发力,拉动消费规模增长。8月4日,财政部发布《个人消费贷款财政贴息政策实施方案》。该政策对单笔5万元以下日常消费贷款,以及单笔5万元及以上的家用汽车、养老生育、文化旅游等七大重点领域消费贷款,按年给予1%贴息,且单笔5万元以上消费以5万元为贴息上限。政策实施中,通过线上系统自动匹配消费场景、线下人工核验的方式,实现贴息资金自动结算。以家居家装消费为例,借款人通过手机银行提交申请后,系统可自动扣减贴息。按相关测算,该政策可直接降低居民融资成本约30%,预计能拉动超万亿级消费规模增长,推动经济恢复,利好居民收入水平提升。
其二,优化人口发展政策,减轻家庭养育教育负担。针对人口发展新形势,财政部8月推出系列政策,完善生育支持体系。《育儿补贴制度实施方案》明确,2025年起对3周岁以下婴幼儿按每孩每年3600元标准发放补贴,2025年前出生的婴幼儿可按剩余月份折算申领。同时,国务院《关于逐步推行免费学前教育的意见》落地,秋季学期起免除公办幼儿园大班儿童保育教育费,民办幼儿园参照同类型公办园标准减免,财政对差额部分给予专项补助。叠加个人所得税专项附加扣除提高至每月2000元/孩的政策,预计每年可减轻家庭养育成本超千亿元。
其三,完善增值税退税政策,支持房地产行业发展。8月22日,财政部、税务总局出台政策,优化增值税期末留抵退税。房地产开发经营业纳税人,若与2019年3月31日期末留抵税额相比,申请退税前连续六个月期末新增留抵税额均大于零,且第六个月期末新增留抵税额不低于50万元,可申请退还第六个月期末新增留抵税额的60%。政策还允许纳税人缴回已退税款后重新选择优惠方式,增强企业自主选择权,有效缓解企业资金压力,尤其是房地产开发经营企业的项目建设资金压力。
三季度出台的这些政策,体现了财政政策在稳增长、调结构、惠民生中的重要作用。通过需求端拉动消费、供给端支持经营主体、民生端减轻家庭负担的联动措施,为经济复苏培育了内生动力,也为人口长期均衡发展奠定基础,长期而言有利于房地产市场的需求侧稳定。

9月11日,国务院批复了全国部分地区要素市场化配置综合改革试点实施方案。同意2年内开展北京城市副中心、苏南重点城市、杭甬温、合肥都市圈、福厦泉、郑州市、长株潭、粤港澳大湾区内地九市、重庆市、成都市等10个要素市场化配置综合改革试点。并印发了10个地区的试点改革方案。
在土地要素方面,自然资源部自然资源开发利用司司长孔维东表示,探索内容主要包括三个方面:一是深化土地管理制度改革。放权地方管理,可自主判断人地挂钩;二是创新产业用地供应,完善供应体系、探索用地类型转换等;三是盘活存量土地和低效用地再开发,鼓励国企事业单位低效用地再开发等。
对比十区域改革方案来看,共性在于:所有试点地区均围绕产业用地市场化改革、盘活存量土地、农村集体经营性建设用地入市等方面推进改革,意在不断提高土地要素市场化配置水平。
差异化方面,各试点地区根据自身地理、经济、产业特点,在海域资源利用、飞地经济、分层设权、TOD/EOD开发、混合用地等方面进行了特色化探索。如杭甬温推行“限地价竞贡献”出让方式,土地出让更重视后续地均产值,而非单纯的比拼拿地价格。
随着要素市场化配置试点的落实,势必将进一步加快提高各地的土地使用效率,地方层面有望迎来更多实质性利好的细化政策和项目推进。尤其是进一步放权地方管理,以及允许探索用地类型转换等举措,将在供给侧为当前行业止跌回稳提供更多助力。


2025年三季度,北京、上海、深圳三座核心城市密集出台房地产需求扶持政策,围绕限购解绑、公积金松绑、商业贷款优化及人才专项支持等维度精准发力,旨在缓解市场调整压力、满足合理住房需求。
从限购解绑情况来看,三城均采用“分区域差异化松绑”策略,但宽松力度与范围各有侧重。
北京以五环为界划分调控梯度,五环外对京籍及社保满2年的非京籍全面不限购,五环内则维持京籍限购2套、非京籍社保满3年限购1套的标准,同时取消离婚购房3年限购限制,二孩家庭二套房可按首套贷款,既保障核心区域市场稳定,又释放外围区域需求;
上海以外环为界,外环外对沪籍及社保满1年的非沪籍不限购,外环内保持沪籍限购2套、非沪籍社保满3年限购1套,且将单身人士纳入家庭购房政策范畴,非沪籍首套房还可免征房产税,进一步降低外地居民在沪购房门槛,并且青浦区在9月19日进一步升级了限购放开,外来无房人才即便社保未满1年,也可通过人才绿色通道申报购房资格;
深圳的限购松绑力度相对更大,非核心区(8区)对深籍及社保满1年的非深籍不限购,无社保的非深籍也可购2套,盐田、大鹏两区完全取消限购,核心区(福田、南山等)则仅对纳税100万以上且员工10人以上的企业有限制,更侧重激活全域住房需求。
公积金政策方面,三城均从贷款额度、首付比例、提取规则三方面同步松绑,且多向多子女家庭、绿色建筑倾斜。
北京首套公积金贷款最高160万、二套100万,缴存年限每满1年可贷15万(上限160万),城六区多子女家庭额度最高达168万,同时支持提取公积金支付首付且不影响贷款额度;
上海首套公积金最高贷184万、二套149.5万,绿色建筑贷款额度上浮15%,多子女家庭最高可贷216万,灵活就业人员连续缴存12个月即可申请贷款;
深圳个人公积金最高贷60万、家庭110万(按账户余额16倍计算),首套及多子女家庭最高可贷154万,叠加保障房或绿色建筑优惠后额度可达231万,首套房可全额提取公积金付首付,二套房提取比例为60%,还支持提取支付契税,政策灵活性更强。
商业贷款与税收优惠层面,三城均有降息降首付动作,且统一执行“满2年免征增值税”政策。
北京首套商业贷款利率为LPR-45BP(3.05%),二套五环内3.45%、五环外3.25%,首付比例首套五环外15%、二套统一30%;
上海取消首套与二套商业贷款利率区分,实际利率普遍低于4%,首付比例首套20%,二套外环外30%、外环内35%;
深圳则统一执行LPR-45BP(3.05%)的商业贷款利率,首套与二套首付比例均低至15%,在降低购房成本上力度更突出。
其他支持政策方面,上海非沪籍人才首套房免征房产税,青浦区对社保未满1年的人才开放购房资格,且可享受市场价优惠。
在三季度行业止跌回稳面临阶段性调整,行业销售同比降幅再度扩大的周期性背景下,北上深三城在2025年三季度集中放宽限购政策,不仅有利于提振各自的城市供求预期,也标志着地方稳市场已经进入新阶段,各地主管部门还需进一步加强出台可感可及的有效新政。其示范效应与政策传导逻辑对房地产行业止跌回稳具有里程碑式的风向标意义。


2025年三季度,地方层面共有84个省市167次出台稳市场政策,前三季度累计出台稳市场政策556次,与2024年同期基本持平。面对下半年以来行业波动的挑战,在中央要求“结合城市更新推进城中村和危旧房改造,多管齐下释放改善性需求”的指引下,地方主管部门一方面积极落实城市高质量发展,提高土地要素使用效率,减轻供需负担;另一方面在需求侧积极出台稳市场新政,以优化公积金政策为主要抓手,并同时加强购房税费减免和补贴,而三季度北京、上海、深圳相继松绑限购,更是意味着地方稳市场政策进入了新阶段。

2025年三季度地方房地产政策聚焦六大方向:
一、公积金优化成为政策发力的重点领域,43省市55次发布相关政策。各地通过调整贷款额度、首付比例、放松异地限制及拓展使用场景,减轻购房者负担。
二、31省市36次发布补贴与税费利率优惠政策,激活住房消费需求。通过人才补贴、多子女支持、契税优惠及“以旧换新”等方式直接刺激消费。
三、27省市36次发文推进保障安居工作,通过增加保障房供应、放宽申请门槛、规范运营管理,完善住房保障网络。配售型保障房建设加速推进。
四、27省市33次深化推进城市更新行动,挖掘存量住房与城市发展潜力。
五、21省市26次强调提升“好房子”建设标准,聚焦品质与绿色智能。以技术导则、规划限制、实施方案为抓手,提升住宅品质。
六、16省市18次优化房地产供给侧管理,促进供需平衡。通过规范销售流程、盘活存量库存、整治市场乱象,优化供给结构。
其他稳市场政策方面,比较值得关注的有北上深解绑限购,苏州、成都限售松绑,加快积压住房需求流动。荆门、衡阳、广州从化区修改预售条件,推进现房、准现房销售,降低相关风险。河南、成都、武汉、南阳支持购房“送学区”,强化住房的配套属性。

四季度,预计中央政策将延续“顶层设计深化+政策协同发力”的主线,聚焦城市高质量发展与房地产新模式构建两大核心方向持续发力。重点关注以下三方面领域:
一、城市高质量发展政策从框架到细则,强化落地性:针对8月《关于推动城市高质量发展的意见》,部委或进一步落实相关细则,明确高品质住宅控规指标,城市更新“留改拆”分类实施流程,同时细化房地产新模式与保障房体系的衔接规则,解决地方执行中的“模糊地带”。
二、土地要素试点从探索到规范,提炼可复制经验:围绕10省市要素市场化配置试点,进一步规范国企低效用地再开发、产业用地类型转换的审批流程;总结杭甬温“限地价竞贡献”、重庆TOD开发等特色模式,形成可推广的试点案例库,为后续全国推广奠定基础。
三、财政金融双向协同,精准缓解行业资金压力:财政政策的民生与行业支持属性将进一步强化,个人消费贷款贴息、育儿补贴等政策或结合四季度消费旺季优化执行细节,企业经营税费等方面也有望迎来更多利好消息。同时央行或配合出台专项信贷工具,支持保障性住房与城市更新项目融资,形成“财政+金融”的政策合力,加速行业库存去化与新模式构建。