象屿天宸雅颂售楼处电话→2025象屿天宸雅颂售楼中心电话→天宸雅颂楼盘百科→首页网站→售楼处电话→售楼中心电话→楼盘百科→首页网站→24小时热线电话
扫描到手机,新闻随时看
扫一扫,用手机看文章
更加方便分享给朋友
4月29日,上海楼市目光聚焦南上海,「象屿·天宸雅颂」在万众期待中迎来盛大首开。房源一经推出,便引发抢购热潮,捷报频传,首开即实现热罄,✅✅象屿·天宸雅颂售楼处电话➡☎:400 - 8824 - 258(看房专线)✅✅以现象级热度成为上海高端住宅市场当之无愧的焦点,重新定义了高端人居的价值标准。
✅✅象屿·天宸雅颂售楼处电话➡☎:400 - 8824 - 258(看房专线)✅✅
所有的潜心营造,只为今天盛启。
首开当日现场人潮涌动,人声鼎沸等候区座无虚席,火热的场面印证着高品质住宅的强大号召力。据了解,首开去化率91.9%,总销售金额达10.2亿。这场开盘盛典,✅✅象屿·天宸雅颂售楼处电话➡☎:400 - 8824 - 258(看房专线)✅✅不仅彰显了项目的强大吸引力,更让「象屿·天宸雅颂」成为南上海楼市焦点,开启品质人居新篇。
【象屿·天宸雅颂】首开告捷,一房难求。为回应市场热情,二批次房源加推在即,再启沪上高端人居热势。
✅✅象屿·天宸雅颂售楼处电话➡☎:400 - 8824 - 258(看房专线)✅✅
✅✅象屿·天宸雅颂售楼处电话➡☎:400 - 8824 - 258(看房专线)✅✅
小高层为89/102/107/128/139平(89-107为3房,128-139为4房);
叠加预计145-156平,联排预计190-230平,(具体户型和面积以实际为准)。
建面约89㎡ 3房2厅1卫▼
✅✅象屿·天宸雅颂售楼处电话➡☎:400 - 8824 - 258(看房专线)✅✅
✅✅象屿·天宸雅颂售楼处电话➡☎:400 - 8824 - 258(看房专线)✅✅
项目建面约128㎡4房同样出彩。
延续3S墙和双270°全景双舱亮点的同时,尺度感极大提升,南向四开间,保证了更充沛的阳光。
客餐厅+超大尺度阳台贯穿南北,进门视野无遮挡,大宅气度油然而生!
✅✅象屿·天宸雅颂售楼处电话➡☎:400 - 8824 - 258(看房专线)✅✅
项目建面约139㎡4房则是集大成的终极改善户型。
该户型是独立电梯入户,保证了业主的私密性和尊崇感!
不止是四开间朝南,更是大宽厅设计,采光无敌。
飘窗数量来到了惊人的7个:4个房间、2个卫生间、还有厨房,仅飘窗带来的灵动空间就秒杀同面积段其他产品,要知道这个户型还配备了超大尺度的阳台!
项目高层户型硬核,装修更硬核!
据销售人员透露,大件方面,项目中央空调/地暖两联供、新风系统一应俱全。
厨房方面,除了灶具、吸油烟机等常规配置,还将加配蒸烤一体机、洗碗机、冰箱和厨房凉霸,全方位提升便捷性和品质感。
卫生间方面,项目洗脸盆、座便器、淋浴龙头或直接上豪宅专属唯宝品牌(或同等档次品牌)。
从选材、选牌到施工工艺,项目装修每个环节都非常考究,呈现的居住品质足以媲美其他市区千万级豪宅!
另外,项目使用了智能化系统,从社区到单元门和入户整体的无接触归家,单元门自动呼梯到户内装标配置的智能化系统,为业主带来全方位的科技便捷生活!

✅✅象屿·天宸雅颂售楼处电话➡☎:400 - 8824 - 258(看房专线)✅✅
(过程稿仅供参考,最终以实际为准)
项目基本信息
✅✅象屿·天宸雅颂售楼处电话➡☎:400 - 8824 - 258(看房专线)✅✅
去年10月25日,上海市第六批涉住地块供地中,闵行区MHP0-1316单元01-03、01-02、03-02地块,东至浦星公路,南至姚家浜,西至大寨河,北至昌林路。
项目分为三个住宅地块开发,提供建面约89-140㎡的3-4房户型。
✅✅象屿·天宸雅颂售楼处电话➡☎:400 - 8824 - 258(看房专线)✅✅
01-02地块规划约524套可售住宅,无保障房拟建8栋17-18F高层住宅。
以及若干社区配套用房,全部为两梯四户带连廊;地面无车位,全人车分流,规划有风雨连廊以及大量的架空层,预计打造泛会所概念(公共活动空间);
01-03地块规划约466套可售住宅
地块拟建9栋17-18F高层住宅、1栋20F保障房以及若干社区配套用房;其中1#为两梯三户带连廊、4#、6#、8#为一梯两户,其余楼栋为两梯四户带连廊;
03-02地块为别墅产品,其中叠墅约147套,联排约35套。
该地块拟建4栋7F多层住宅、4栋4F住宅、5栋3F多层住宅以及若干社区配套用房,其中4-7F住宅为叠墅,3F住宅为联排。
项目产品信息
产品力卷出天际,600万级预算越级享受千万级豪宅品质的机会!
项目实景呈现的硬核品质和超高颜值比起市区千万级的豪宅有过之而无不及!
项目恢弘大气的门头,项目设计师以浮岛为灵感,将几根立柱化作悬浮的雕塑,撑起一片轻盈的仪式感。
✅✅象屿·天宸雅颂售楼处电话➡☎:400 - 8824 - 258(看房专线)✅✅
门头顶部的500多片镂空透光铝板雕花花瓣,皆由项目LOGO精琢演化而来。当阳光倾泻,光与影在镂空间起舞,在地面织就一幅不断变幻的自然画作。这是3000万重金雕琢的细节,更是对品质的无声承诺。
它不仅是社区的入口,更是城市界面的艺术展馆 。当访客驻足,当业主归来,这道门,以当代美学重新定义归家即度假的奢适体验。
进门之后,恍若走进一幅立体绽放的画卷。地面采用了石材拼花,纹理如行云流水般舒展,在光影交错间勾勒出 低调的奢华。
最令人屏息的设计,莫过于倒置的花园,与传统墙上挂画或桌上摆花不同,这种反重力美学让视线不由自主地上扬,创造出仰视仙境的震撼体验。
✅✅象屿·天宸雅颂售楼处电话➡☎:400 - 8824 - 258(看房专线)✅✅
穿过大堂可以走浪漫的旋转楼梯去到B1层的会所。从上往下看去,这个唯美的旋转楼梯像永生的花瓣,也像凝固的巴兰钦芭蕾。有一瞬间我仿佛感觉这不是楼梯,而是连接现实与诗意的时空隧道。
✅✅象屿·天宸雅颂售楼处电话➡☎:400 - 8824 - 258(看房专线)✅✅
虽然目前开放的公区只有这些,但项目展现的品质已足够惊艳,让客户对于象屿·天宸雅颂其他地方的兑现充满期待。
比如,项目打造的约2500㎡下沉式会所,预计包含等泳池、健身房、瑜伽室、水吧台、私宴厅等功能,满足业主全龄多元需求。

✅✅象屿·天宸雅颂售楼处电话➡☎:400 - 8824 - 258(看房专线)✅✅
另外,项目地上三分之二的楼栋有架空层,最高层高约4.5米,合计约3000㎡架空层作为泛会所,在室内外交叠过渡的空间中,以自然之景点缀,营造全龄共享的丰盛聚场。

✅✅象屿·天宸雅颂售楼处电话➡☎:400 - 8824 - 258(看房专线)✅✅
再比如项目的外立面。
当其他外环外新房还在纠结用涂料还是真石漆,象屿·天宸雅颂直接上了对标千万级豪宅的铝板。精致的铝板装饰+通透大窗的美学立面设计(局部涂料),打造弧面窄框艺术之镜,将来无疑又是一道靓丽的风景线!

✅✅象屿·天宸雅颂售楼处电话➡☎:400 - 8824 - 258(看房专线)✅✅
项目在园林景观方面结合郊野公园特色做的浮岛美学园林惊艳无比,层层递进的秩序之美,传递生活与归心的仪式感。让业主享受内外皆胜境的生态居住体验!
✅✅象屿·天宸雅颂售楼处电话➡☎:400 - 8824 - 258(看房专线)✅✅
而且项目3个地块全部都是人车分流设计,开车归家的业主在社区外就直接进入车库,保证地面行人安全以及安静绿色的居住体验。
另外,项目用归家风雨连廊局部巧妙连接着高层核心景观节点和功能空间,让业主能重温“户外风雨连绵,廊下月华如水”的诗意瞬间。
✅✅象屿·天宸雅颂售楼处电话➡☎:400 - 8824 - 258(看房专线)✅✅
全系神户型搭配魔鬼化细节装修!
项目预计首开建面约89-139㎡3-4房,尤其值得一提的是,项目户型采用“一生之宅”的理念设计,高层户型均设置可拓展空间,保证不同年龄段都可以进行不同功能调整。
✅✅象屿·天宸雅颂售楼处电话➡☎:400 - 8824 - 258(看房专线)✅✅
分户型来看:
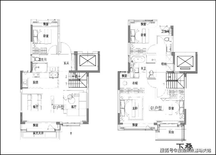
①建面约89㎡3房2厅1卫户型:
这个建面约89㎡户型妥妥的性价比之选,预计总价500万级即可上车!
功能性上符合市场需求!同时利用科学的收纳和S墙设计保障了室内空间的井井有条,又通过大量飘窗和阳台等提升尺度感,尤其是厨房带飘窗!!!
✅✅象屿·天宸雅颂售楼处电话➡☎:400 - 8824 - 258(看房专线)✅✅
②建面约107㎡3房2厅2卫户型:
这个建面约107㎡刷新了我对百平三房的新认知,据悉该户型或将申请专利,实至名归!
客厅的面宽被拉长到了约4.7米,呈现了可成长的X空间,适配更长家庭周期;
足足5个飘窗,3个卧室2个卫生间全部“扩容”,尤其是主卧、主卫双270°全景飘窗的设计前所未见,未来窗外郊野公园的胜境将一览无余。
✅✅象屿·天宸雅颂售楼处电话➡☎:400 - 8824 - 258(看房专线)✅✅
该户型的收纳,大量S墙的设计简直见缝插针,极大的扩容了家的储物角落,消减了业主生活的繁琐。
✅✅象屿·天宸雅颂售楼处电话➡☎:400 - 8824 - 258(看房专线)✅✅
✅✅象屿·天宸雅颂售楼处电话➡☎:400 - 8824 - 258(看房专线)✅✅
首先是进门的3S墙设计,可以做出一个“700库”的超大收纳空间。原先的冰箱则挪到了厨房旁,不仅方便料理取用食材,侧面还设计了洞洞板,日常衣物、小包和挂件可以轻松摆放。
项目建面约128㎡4房同样出彩。
次卫的S墙则安排在了干湿分离的干区,算上台盆上面的收纳柜足以放下各类洗护用品。而且次卫台盆下方还预留了扫地机器人上下水。
北向卧室的S墙设计,则可以做成一整面的收纳架,书籍或玩具都有了足够的盛放空间。
✅✅象屿·天宸雅颂售楼处电话➡☎:400 - 8824 - 258(看房专线)✅✅
最后一个S墙则是在主卧,等于直接增加了一个衣柜,直接击中了女主人的心趴!
③建面约128㎡4房2厅2卫户型
项目建面约128㎡4房户型延续了前作3S墙的设计,保证了收纳空间的丰富性。
格局上进化为南向四开间,保证了更充沛的阳光。客餐厅+超大尺度阳台贯穿南北,进门视野无遮挡,大宅气度油然而生!
✅✅象屿·天宸雅颂售楼处电话➡☎:400 - 8824 - 258(看房专线)✅✅
建面约128㎡户型此次开放了样板间,参观下来客户对该户型的厨房的配置和飘窗的设计赞不绝口。
✅✅象屿·天宸雅颂售楼处电话➡☎:400 - 8824 - 258(看房专线)✅✅
✅✅象屿·天宸雅颂售楼处电话➡☎:400 - 8824 - 258(看房专线)✅✅
✅✅象屿·天宸雅颂售楼处电话➡☎:400 - 8824 - 258(看房专线)✅✅
首先厨房是半开放式的岛台,让整个公区的视野更开阔,尺度更具豪宅气度。其次敞开式的厨房能让家人沟通更顺畅,温馨感提升。最后,厨房的选品也是坚持使用主义,采购了方太的市售款,隐形油烟机颜值非常高,灶具和蒸烤箱则做了完全的联动。
另一个亮点则是主卧的双270°飘窗,整体的“实用”面积几乎大了一圈,通透性和采光性能也更上一层楼。有种花了标准款的钱买到PLUS产品的感觉。
✅✅象屿·天宸雅颂售楼处电话➡☎:400 - 8824 - 258(看房专线)✅✅
④建面约139㎡4房2厅2卫
项目建面约139㎡4房则是集大成的终极改善户型。该户型是独立电梯入户,保证了业主的私密性和尊崇感!不止是四开间朝南,更是大宽厅设计,采光无敌。
飘窗数量来到了惊人的7个:4个房间、2个卫生间、还有厨房,仅飘窗带来的灵动空间就秒杀同面积段其他产品,要知道这个户型还配备了超大尺度的阳台!
项目户型硬核,装修更硬核!
大件方面,项目日立中央空调/地暖两联供、格兰斯柯(或同等品牌)新风系统一应俱全。
厨房方面,除了灶具、吸油烟机等常规配置,还将加配方太(或同等品牌)蒸烤一体机、洗碗机,博世冰箱,以及线性凉霸,全方位提升便捷性和品质感。卫生间方面,项目洗脸盆、座便器、淋浴龙头或直接上豪宅专属唯宝品牌(或同等档次品牌)。
除了配置上不惜成本,项目的装修细节也十分人性化。比如,项目入户门选用的是铸铝门配耶鲁6合1智能门锁,安全性与便捷性兼具!
✅✅象屿·天宸雅颂售楼处电话➡☎:400 - 8824 - 258(看房专线)✅✅
项目的厨房采用金属框+艺术玻璃移门,推拉丝滑颜值颇高!
项目全户型的阳台都做了灯光+隐藏式晾衣杆的吊顶方案,阳台边有按钮可以直接控制晾衣杆的下放和抬升。
项目的天地墙也是细节满满:天花板设计圆弧吊顶,工艺极高颜值自然不俗。客厅整块的背景墙充满质感,卫生间通顶的大面墙砖极抓眼球。客厅选用90*180大板砖恢弘大气,卧室采用人字拼地板,温馨港湾!
✅✅象屿·天宸雅颂售楼处电话➡☎:400 - 8824 - 258(看房专线)✅✅
项目空调风口和户内门把手都是定制LOGO造型,颜值不俗的同时,也体现了项目对于品质与品牌的信心!
另外项目还使用了华为(或同等档次品牌)智能化系统,从社区到单元门和入户整体的无接触归家,单元门自动呼梯到户内装标配置的智能化系统,为业主带来全方位的科技便捷生活!
综合来看从选材、选牌到施工工艺,项目装修每个环节都非常考究,呈现的居住品质足以媲美其他市区千万级豪宅!
✅✅象屿·天宸雅颂售楼处电话➡☎:400 - 8824 - 258(看房专线)✅✅
项目区位配套
浦江恒流,上海恒新。上海迈向卓越全球城市的进程,始终沿着黄浦江展开。黄浦江作为上海重要功能轴,至2035年将黄浦江沿岸打造成为彰显上海城市核心竞争力的黄金水岸和具有国际影响力的世界级城市会客厅。
作为上海中心城辐射区,闵行六大地区中心之一,前滩南门户,浦东四大城镇圈之一,浦江地区中心占据特有的平台区位优势。
新浦江中心沿袭闵东文创中心定位,以蓝绿环绕为基底,历史人文为内涵,产业更新为驱动,新浦江中心将衔接闵行与浦东新区,打造黄浦江沿岸崭新的生态交织、文化自信、产城融合能量聚集地。
✅✅象屿·天宸雅颂售楼处电话➡☎:400 - 8824 - 258(看房专线)✅✅
新浦江新中心将围绕沈杜公路TOD打造创智总部湾、大型商业、艺术街区、文化展览、滨水码头、高端住宅等,以世界前沿Live-Work-PlayShop模式,为上海打造高度复合等职住平衡10分钟生活圈。
轨道交通方面:项目距离8号线沈杜公路站步行约350-600米左右,可快速直达前滩、陆家嘴等核心区域,也算是项目一大卖点;通过浦星公路可直接上南北高架,自驾出行也十分便捷!
商业配套方面:项目高层东侧规划约15万方的商业,该商业地块应于住宅一并打包出让,共同组成真正的TOD项目,但目前做了拆分!另外距离项目约3.3公里有浦江城市生活广场、绿地乐和城,约3.9公里有万达广场、4.4公里有浦江欢乐颂等商业!
✅✅象屿·天宸雅颂售楼处电话➡☎:400 - 8824 - 258(看房专线)✅✅
教育资源方面:项目周边规划有一幅幼儿园用地,参考周边,未来项目对口浦江镇第二小学、第二中学的概率较大,教育资源一般;
另外在项目北侧规划有一所民办学校,该校舍建成后,将迁入上海市民办协和尚音学校(九年一贯制)、上海闵行协和海富幼儿园,由协和教育中心举办。
医疗资源方面:距离项目约4公里有仁济医院南院以及复旦大学附属眼耳鼻喉科医院。
生态资源方面:项目周边被浦江郊野公园环绕,低密宜居。
这个夏天,“好房子”的概念正逐渐从政策文本走入现实生活。
浙江省自然资源网上交易中心官网最新公告中又有6宗杭州宅地挂牌,将在6月底前完成出让,其中5宗在地块建设条件须知中均注明:项目应符合《杭州市住宅品质提升设计导则(试行)》(以下简称《导则》)要求。
在此之前,5月20日、5月29日,杭州主城区三墩、东新、白马湖、运河新城板块已有4宗“好房子”试点项目宅地完成出让,平均溢价率约40%,明显高于今年1-5月宅地平均成交溢价率。其中3宗宅地更是创下同板块楼面价新高。
以杭州拿地到开盘3-6个月的常规周期来算,最快今年下半年这些试点项目即将上市销售——《导则》正式施行不过两个月,“好房子”已离我们如此之近。
今年全国两会上,“好房子”首次写入政府工作报告,随即成为高频词。然而除了安全、舒适、绿色、智慧这样的概念性描述,“好房子”到底长什么样?
要解答这个问题,我们先将视角投向北京——一个已经把“好房子”从纸面落到地面的城市,试图从首个落地项目中,寻找通向理想品质生活的路径。
坐标:北京
全国首个“好房子” 带方案入市
6月5日的北京,迎来了今年第一个高温天,空气里浮动着柏油路面蒸腾的热浪。
转过一个口袋公园,走进位于北京近郊的龙湖·观萃楼盘现场,瞬间感觉温度降了,那是小区绿化搭配的智能喷灌系统根据湿度在调节喷淋频率,细密的水雾缭绕庭院,顺带着让室外休憩区变得没那么燥热。
龙湖·观萃楼盘现场
现场人流并不密集,但结伴而来的购房者接连不断,其间还能看到正对着镜头侃侃而谈的自媒体人,他们中的大多数会目标明确地直奔那套有“6米挑高空中庭院”的样板间,又在穿过中心庭院的时候下意识确认头顶的是风雨连廊,因为“它看起来比想象中气派”。
“这段时间人算少了,刚开放的时候还有全国各地的同行专程赶来参观。”龙湖·观萃营销负责人时光说,一开年观萃的网签套数就排在昌平区前三,实景示范区开放后日均到访量基本保持在300组,“单日最高接待超过400组客户。”
作为全国首个“好房子”试点项目,龙湖·观萃是一个“带方案入市”的楼盘。2023年8月底,全国首届“好房子”设计大赛启动,以“真题、真赛、真建”模式向行业抛出新命题,吸引全国531支设计团队报名参赛,大赛的目标之一就是打造高水平的“好房子”示范作品。龙湖·观萃所在的昌平北四村地块就是当时的北京赛题。
2024年3月,昌平北四村地块挂牌出让时,从176个设计方案中胜出的7个“一等奖”作品就已纳入了入市规划文件。而更让房企感兴趣的是该项目在架空层、风雨连廊和阳台设计方面都开了“绿灯”:1000平方米架空层不计入地块容积率;风雨连廊不计入地块容积率;可结合北方气候特点合理设置阳台。
彼时容积率计算新规尚未出台,这样的“尝新”之举让房企对该项目趋之若鹜,包括保利、中海、中铁建、首开、越秀在内的18家房企报名参与竞拍,29轮竞价后触达地价上限,最终竞得人是现场摇号摇出来的。而同天出让的另1宗北京怀柔宅地却是底价成交。
从北京“好房子”宅地的触顶成交,到杭州“好房子”宅地平均40%的溢价率,其背后是市场的高期待,又何尝不是房企对“好房子”赛道的集体押注?
走在政策前面并不容易。负责观萃项目的华北龙湖设计管理中心负责人范兴雷依然记得每次项目方案优化协调会时的激动,不仅从市到区各级审核单位悉数到场,还有部级专家坐镇把关:风雨连廊怎么设计才能效果最大化;建筑面积1000平方米的架空层怎么处理才能在北方的寒冬里依然适用;阳台怎么设置才能兼顾冬夏……
“因为没有参考项,每一个细节都需要摊开了讨论,又因为政策尚未明确,每一个决定都需要找到依据。”范兴雷说。
风雨连廊连接着龙湖·观萃从入口到楼盘中心的3幢单元楼
2025年2月,《北京市平原多点地区“好房子”规划管理相关技术要点(试行)》(以下简称《技术要点》),明确支持架空层、风雨连廊、开敞阳台等新型设计,并在建筑材料、外立面、空间弹性等方面给予更大自由度。范兴雷在其中看到了观萃项目落地过程中反复探讨的问题、总结的经验。
技术要点明确的好处是什么呢?举个例子,“好房子”能否提高得房率,是购房者普遍关注的问题,如果按照《技术要点》来设计执行,高层、小高层的得房率可以从80%左右提升到90%。
龙湖·观萃部分得房率做到了94%左右,这是“探路者”树立的标杆。“我们不只是在建楼,也是在给未来生活打个样。”在时光看来,让习惯封闭式阳台的北方购房者感受到开放式阳台的美,也是“好房子”该有的样子。
坐标:杭州
“好房子”标准下的本地生活
杭州首批“好房子”试点项目,在热热闹闹的土拍之后进入集体静默期。
曾经创下从拿地到开工最短用时18天纪录的杭州房企,这次在“好房子”试点项目操盘上显得相当谨慎,截至目前4宗已拿地项目尚未有规划方案公示,也没有消息传出。参与竞拍却未成功摘地的房企,也纷纷表示“好房子”涉及建筑、环境等诸多专业内容,无法泛泛而谈。
5月20日,拱墅东新单元“好房子”试点项目宅地由杭州西湖房地产集团有限公司竞得,并刷新同板块楼面价记录。(浙江省自然资源网上交易中心官网图)
倒是一位近期正在看房的行业内人士告诉记者,收到了其中一家拿地房企的消息,建议“持币待购”,因为新产品一定会让市场“眼前一亮”。“杭州的好房子能不能建成这样?”他拿出手机,收藏夹里满是成都、广州、深圳的“空中庭院”式楼盘,得房率普遍超过100%,有的甚至做到了140%,那是他理想中“眼前一亮”应该达到的标准。
“建‘好房子’并不是建大房子、贵房子,‘好’指的是住宅品质。”浙江省城乡规划设计研究院建筑设计分院总建筑师邢海笑说,这些超高得房率的楼盘他也没少看,但大概率不会出现在杭州,“好房子试点项目容积率提升是因为架空层、风雨连廊等部分空间、以及建成后移交相关部门的社区、养老、托育、卫生、文体等公共服务配套设施不计入容积率,所以能在不损失住宅面积的基础上,增加更多公共服务空间、室内外交互空间,并非单纯卷容积率。”
两年多前,北京以“带方案入市”的方式谋划“好房子”试点的时候,浙江也开始探索同一个课题。“到底什么是‘好房子’,‘好’的评价标准是什么?当时的切入点就是问题导向。”邢海是这个调研课题的主要参与者之一,课题的目标很明确,就是要制定适用浙江本土需求的好房子评价标准和指南。
“好房子”需要解决哪些问题呢?
课题组收集了近几年浙江省内关于住宅类产品投诉较多的问题并进行归类,同时通过走访收集居民现实需求。《杭州市住宅品质提升设计导则(试行)》和《浙江省住宅品质提升设计导则(试行)》相继公布后,我们也能发现与全国标准相比,本地化导则具有更强的针对性。“尤其是针对老百姓近年关注的住宅痛点,比如层高、隔音、安全、适老化与无障碍等,都提出了更高品质的标准。”邢海说杭州采用了“国家标准+地方创新”模式来实现住宅品质提升的目标,“比如国家标准要求层高3米,杭州在此基础上将大户型层高标准提升到不低于3.15米,可以使得在地暖、新风系统等设备安装之后空间依旧保持舒适,也可以获得更好的居住体验。”
邢海并不意外杭州首批“好房子”试点项目进入规划设计阶段后步调反而慢了下来——因为面对新规,行业传统的“高周转、高杠杆、规模化复制”已不可持续,传统的矛盾三角“品质-成本-速度”也需要进一步破除,这些都需要时间。如何既落实“好房子”核心要求,又以精细化设计回应本地化生活场景的需求,是摆在所有房企面前的新问题。
杭州《导则》的116条细则中有108条均为“应”字条款,也就是说这些条款都要在设计建设中一一落实,而杭州也早已制定了严格的从设计到图审再到验收的一系列措施,以保证每一条要求都能践行到位。
“我们也在摸着石头过河。”一位国内一线房企杭州公司负责人坦言,“《导则》里的技术参数是死的,但人的居住习惯是活的,这些细节需求不解决,方案报审就要一次次修改,我们宁可把时间花在前面。”
坐标:未来
找到政策与市场的“中间态”
为了适应“好房子”标准,以北京龙湖·观萃为起点,龙湖集团开发了一条全新的“观萃”产品线。
6月9日,龙湖集团发布的2025年5月未经审核营运数据公告显示:截至5月末,该集团累计实现总合同销售金额人民币285.5亿元,合同销售面积209.5万平方米,其中5月单月实现总合同销售金额人民币64.7亿元。
根据克而瑞地产研究发布的数据,5月份TOP100房企成交与4月基本持平,环比增幅仅3.5%。而龙湖的环比增幅高达26.1%,大幅跑赢行业同期均值。
购房者在样板间参观(受访对象供图)
业界将龙湖吃到的这波“红利”归结于抓住了“好房子”的市场窗口期,以观萃为代表的新产品线带动了整体业绩回暖。
有龙湖·观萃珠玉在前,“好房子”落地节奏明显提速,各大房企也跃跃欲试,于是就有了杭州首批“好房子”试点项目出让时,4宗地中有3宗刷新同板块楼面价纪录。
然而“好房子”要从纸面落到地面也不容易。理论上,龙湖·观萃自带7个“一等奖”设计方案入市,但当脱离理想化的模型环境,如何在现实场景下找到方案、成本与售价之间的平衡点?参与其中的人都感叹:“没得选。”
项目部对观萃做过测算,按照“好房子”标准建设,整个项目的成本至少增加15%。“实际执行的施工标准更高,投入也更高。”时光坦言,观萃是“好房子”,但对企业而言或许不是赚钱的项目。
“好房子”的定位是很明确的,就是通过提升最低标准来整体提升居民的住房品质。但好房子的建设必然是个艰难的过程,现在才刚刚开始。
这场席卷楼市的“好房子”试点,是一次没有标准答案的考试。
在《导则》核心编制专家之一、中国联合工程有限公司副总建筑师郭纪鸿看来,“好房子”至少要面对3个挑战,除了明确怎么样才是好房子,更要明确“是谁的好房子”,以及解决“既要好又不能贵”的问题。“随着时间的推移,好房子在规范上要求会越来越高,越来越严格;内涵上也会越来越宽广,以更好地满足不同阶层、不同人对居住文化的要求。房子能真正贴近人的生活,我想那时候才算真正实现好房子的目标。”
建筑是生活的容器。“好房子”的评价标准也不仅仅局限在建筑概念上的“房子”这个单一维度。在《导则》推出之前,杭州就曾针对高品质住宅做课题研究,专家组最一致的意见就是要提升对公共空间、公共要素的要求,将公共空间占比、共享设施配置等社区要素纳入核心标准。
采访中,已经有行业主管部门在探讨建筑边界如何向社区公共空间延伸,以及与公共基础设施衔接的可行性。比如风雨连廊能不能连到小区门口的地铁站、公交站?“好房子”的外延已经在不断扩展,以人为尺度,指向好小区、好社区的更大生活半径。
“好房子”的时间维度也在延展。邢海正在申报一个针对既有建筑改造的新课题。“房子的进化是以人的需求为原点的,老房子也是曾经的‘好房子’,能不能有适当的标准体系来引导和评价既有住宅的提升更新工作?这肯定会比新建小区更复杂,但却是所有住宅最终都要面对的问题。”
“好房子”之所以难,是因为它不是一个可以被标准化量产的产品,而是千万人生的栖居之所,是城市与人的接口,是时代变迁的映照。它必须真实回应个体的需求,又能与城市的发展节奏合拍;既要经得起市场的检验,也要承载对美好生活的想象;它不仅是一座建筑的完成,更是一种生活方式的开始。
声明:本文由入驻焦点开放平台的作者撰写,除焦点官方账号外,观点仅代表作者本人,不代表焦点立场。
