联仲都悦汇售楼处电话:400-8874-108✔【已认证】 联仲都悦汇营销中心电话:400-8874-108✔✔【已认证】
上海联仲都悦汇官方售楼处电话:400-8874-108 VIPLINE✔✔✔【已认证】
——联仲都悦汇——
联仲都悦汇售楼处电话:400-8874-108✔【最新预约】
联仲都悦汇营销中心电话:400-8874-108✔✔【最新认证】
上海联仲都悦汇官方售楼处电话:400-8874-108 VIPLINE✔✔✔【最新发布】
如有问题可来电咨询,线上售楼中心,预约销售专员,一对一为您服务!
想了解联仲都悦汇更多信息?拨打售楼处营销中心热线:400-8874-108 (中介勿扰)【24小时热线】
最新消息,送100w装修!闵行·商墅 联仲·都悦汇 约310-411㎡法式商墅!总价约1420万~1800
闵行·旗忠别墅富人区
【联仲·都悦汇】
建面310~411㎡商业联排别墅
法式干挂 地上三层 地下一层
带南北双花园90-300㎡
总价约:1420-1800万
实景现房 不限购 通燃气


感谢配合!
01.项目基本信息
【开发商】:上海联仲置业有限公司
【物业】:上海仲量联行物业管理公司
【容积率】:1.0
【绿化率】:35%
【车位比】:1:2.1
【物业费】:8元/㎡/月
【本次开盘】:14套
【物业类型】:商业联排别墅
【交付标准】:毛坯
【拿地时间】:2014年8月
【交房时间】:2023年6月

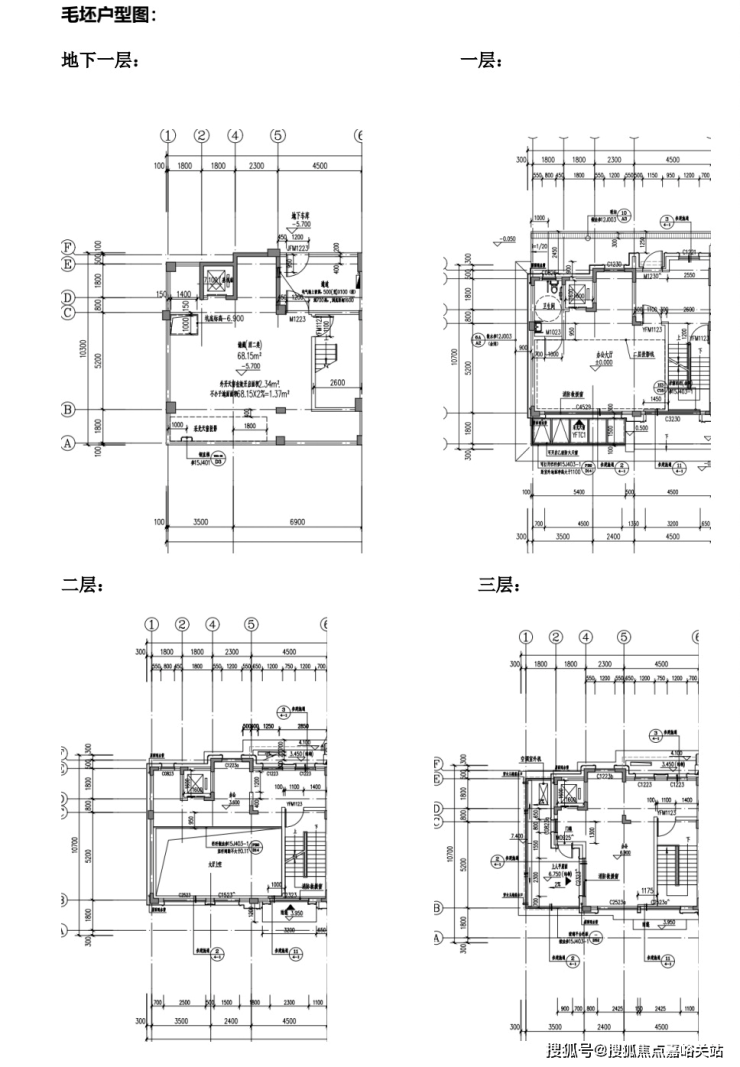
在售户型:建面约310-410平米,地上三层地下一层
(地上:一层层高3.6米/二层层高3.4米/三层层高3.4米/地下层高5.4米)
总价:约1400-1800万️
单价:约5万/平米
小区整体商业:10万方(在建)南北双花园90-300平
水电:商水&商电,电1.3元/度,水6元/吨
产权车位:约30万左右

02.户型图及样板间照户
(特殊说明:户型朝向-上南下北)
约10.4米大面宽,面积达到55平
送电梯,北进门,南花园,超大地下室
客厅7米落地窗,采光明亮,尽显大气
约310平户型图▼

约378~420平户型图▼

约407~441平户型图▼

样板间效果图如下:










板块以低容积率、生态自然环境和高端国际品牌配置,2010年被列为上海第二批大型居住社区之一。总建面约33万方城市综合体联仲都悦汇位于旗忠板块正核心,紧临网球中心,超10万方市政绿化所环绕。

【联仲都悦汇】同样是低密度别墅区里的一员,背靠绿城玫瑰园,容积率低至1.0。项目贯穿了3条自然水系,分为ABCD四个地块,其中ABC为商住办综合地块,自带商业办公。

交通配套方面:项目距离嘉闵高架元江路出口3公里,毗邻G15、S32等快速主动脉,30分钟大虹桥,50分钟抵达浦东机场,快捷畅达全城。

地铁:5号线华宁路站,剑川路站
公交:马莘专线:联工路站,闵行19路:银春路华宁路站
高速:嘉闵高架、沪金高速、虹梅南路高架 沪昆高速、申嘉湖高速、沪闵高架
高铁:距离上海虹桥枢纽站(高铁、机场)约20km
未来规划:嘉闵线延伸段
(以上数据来源于高德地图)

商业配套方面:项目自带10万方商业,为旗忠唯一的综合性商业配套,其多元化的业态结构,结合旗忠独有的资源,必将带来旗忠全新生活方式。



生态资源方面:项目周边有马桥森林公园、旗忠高尔夫球场、旗忠网球中心、韩湘水博园、养云安缦酒店等。

教育资源方面:周边有复旦万科实验学校,德威英国国际学校、斯代文森国际高中、上海美高学校。幼儿园:元祥幼儿园、富杰幼儿园启英幼儿园,大学:上海交通大学、华东师范大学




闵行·旗忠别墅富人区
【联仲·都悦汇】
建面310~411㎡商业联排别墅
法式干挂 地上三层 地下一层
带南北双花园90-300㎡
总价约:1420-1800万
实景现房 不限购 通燃气
联仲都悦汇售楼处电话:400-8874-108✔【已认证】
联仲都悦汇营销中心电话:400-8874-108✔✔【已认证】
上海联仲都悦汇官方售楼处电话:400-8874-108 VIPLINE✔✔✔【已认证】
如有问题可来电咨询,线上售楼中心,预约销售专员,一对一为您服务!
想了解联仲都悦汇更多信息?拨打售楼处营销中心热线:400-8874-108 (中介勿扰)【24小时热线】
楼盘项目全面介绍,本电话为开发商提供线上预约售楼电话,楼盘项目全面介绍(包含楼盘简介,均价,房价,现房,期房,别墅,叠墅,大平层,价格,楼盘地址,户型图,交通规划,备案价,备案名,项目配套,样板间,开盘时间,认筹时间,楼盘详情,售楼处电话,最新消息,最新详情,周边配套,一房一价,最新进展等详情咨询)楼盘详情丨价格丨更多优惠丨机不可失丨欢迎致电丨诚邀品鉴!售楼处位置丨特价房丨工抵房丨剩余房源丨户型图丨最新消息丨免责声明:将文章内容综合来源于网络、只作分享,版权归原作者所有!!如有侵权,请联系我们,我们第一时间处理如有问题欢迎来电咨询,专业一对一热情服务,让您用专业眼光去买房.如果您想了解更多楼盘详情,欢迎提前预约拨打
上海、乌鲁木齐新房涨幅领跑
根据国家统计局数据,7月70个大中城市新建商品住宅环比上涨城市有6个,比上月减少8个,4个城市环比持平;同比上涨城市5个,比上月增加2个。
各线城市房价环比下降,同比降幅整体有所收窄。7月一线城市新建商品住宅销售价格环比下降0.2%,降幅比上月收窄0.1个百分点。二、三线城市新建商品住宅销售价格环比分别下降0.4%和0.3%,降幅分别扩大0.2个百分点和持平。
同比方面,一线城市新建商品住宅销售价格同比下降1.1%,降幅比上月收窄0.3个百分点,二、三线城市新建商品住宅销售价格同比分别下降2.8%和4.2%,降幅分别收窄0.2个和0.4个百分点。
从各城市表现来看,根据国家统计局数据,7月上海、乌鲁木齐以环比0.3%的涨幅领跑,其次是三亚和宜昌,环比涨幅均为0.2%,长春和常德紧随其后,环比涨幅均为0.1%。海口和扬州跌幅居前,环比跌幅为0.8%,其次是武汉、襄阳和兰州,环比跌幅为0.7%。

上海易居房地产研究院副院长严跃进表示,房价环比下跌城市数量增加有淡季因素,但并非唯一原因。根据企业反馈,二季度开始购房需求量确实在减少,提振住房消费需求依然是核心工作。而对于一些降价项目,各地要引导好宣传好。客观上房价调整符合供求关系规律,合理降价会和市场需求更为匹配,但对于剧烈的价格调整则需要密切关注,防范影响市场预期不稳。
严跃进指出,从历次房价指数的数据来看,上海表现一直最好。目前上海市区项目总体销售较好,甚至有日光盘现象,而近郊区具有地铁等配套的项目,也有较好的销售。
另外,根据易居研究院测算,7月份全国70个城市新建商品住宅价格指数环比涨幅为-0.3%,同比涨幅为-3.4%
当前房价指数环比指标下滑,同比指标改善。易居研究院认为,环比指标和房价下跌城市数量增加有关,使得7月份数据表现略差。7月份是市场淡季,淡季阶段降价促销力度有所增大。而同比指标总体改善,进一步说明房价筑底信号持续清晰,对于房价趋稳预期增强有积极作用。
二手房价环比仅太原上涨
二手住宅价格方面,国家统计局数据显示,7月份环比上涨城市有1个,与上月持平;同比上涨城市为0,与上月一致。
从各线城市情况看,一线城市二手住宅销售价格环比下降1.0%,降幅比上月扩大0.3个百分点;二、三线城市二手住宅销售价格环比均下降0.5%,降幅均收窄0.1个百分点。
同比方面,一线城市二手住宅销售价格同比下降3.4%,降幅比上月扩大0.4个百分点。二、三线城市二手住宅销售价格同比分别分别下降5.6%和6.4%,降幅分别收窄0.2个和0.3个百分点。
就城市表现来看,全国仅有太原一个城市二手房价格环比上涨,涨幅为0.2%。北京和武汉领跌,环比跌幅均为1.1%,其次是广州和徐州,环比跌幅均为1%。

从数据来看,二手房价格普遍处于调整态势。严跃进建议,房价距高点基本调整了30%,当前房东处于纠结状态, 应根据房源情况进行定价。虽然部分城市推出单边代理模式,但市场反馈其适用于一些高端项目,普通房源并不适用此类模式。
另据易居研究院测算,7月份全国70个城市二手住宅价格指数环比涨幅为-0.5%,同比涨幅为-5.9%。
易居研究院指出,二手房环比跌幅数据有所收窄,与新房表现略有差异。这与二手房过去跌幅力度较大有关,也是积极信号。不过,目前“房东不愿继续降价销售、购房者不降价就不买”的困局,导致二手房交易面临买卖受困的新问题。从市场规律看,一些非常好的二手房,实际价格可上涨2%,但其他项目总体都需要降价才能销售,否则会加长挂牌周期和交易周期。
市场止跌回稳大趋势不变
业内人士认为,7-8月是房地产市场的惯例淡季,市场仍处于调整阶段。值得一提的是,一线城市新房市场呈现止跌企稳迹象,二、三线城市二手房市场率先释放边际改善信号,未来止跌回稳趋势不变。
广东省住房政策研究中心首席研究员李宇嘉亦认为,止跌回稳的趋势不变。首先,同比来看,无论是新房还是二手房,从去年到现在,70城房价同比指数均持续收窄,寻底态势明显;其次,经历前期连续3年半回调,目前新房销售面积已经降至2010年以来的水平,跌幅已到个位数,考虑到拆迁、改善、城镇化对新房的需求,未来继续大幅度下探的可能性不大;再次,调控政策开始转向修复基本面,包括生育、教育等方面的扶持,兜底就业保障、离退休保障等,从而修复住房消费内生动力,减缓二手房恐慌式挂牌,这是中短期内房价止跌回稳的关键。
此外,严跃进强调,鉴于二季度开始房价回稳的压力有所增大,三季度各地要把稳房价作为一项重要工作。稳房价不代表房价保持不变,对于各批次的项目要灵活定价,更好和市场需求匹配。对于一些价格调整过大的,要科学评估,防范产生预期不稳的风险出现。