大华·梧桐樾(大华·梧桐樾)首页网站丨大华·梧桐樾房价_户型图_地址_楼盘详情 - 环境 - 户型价格 - 地址 - 楼盘详情 - 配套 - 电话 - 交房时间
扫描到手机,新闻随时看
扫一扫,用手机看文章
更加方便分享给朋友
海派大华 时代仰望
大华集团:源起上海 34载初心如磐
大华集团成立于1988年,中国最早起步、最大规模的城市更新运营商之一
全球规划建设8大平方公里新城、17个百万方超大型社区并进行持续运维
34年稳健发展,于近30多个城市,为约70万业主构建美好生活
品牌实力:耀誉时代 城市别墅专家
多年荣膺“中国房地产综合实力50强”“发展潜力top5”
连续8年保持“三道红线”全绿档,财务安全领先行业
匠心雕琢超30城精粹墅区经典,被业内称为“城市别墅专家”
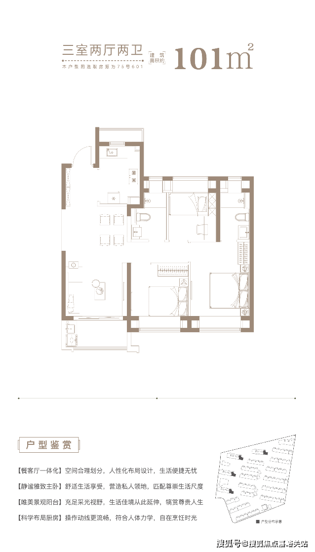
基础信息
规划产品:墅质高层、低密叠墅(复式住宅)
容积率:2.3
绿化率:35%
产品面积:建面约91/101㎡高层,约122/135/145㎡叠墅
迭代墅品 阔景舒居
大华·梧桐樾约30万方静谧墅区,主打墅质高层、低密叠墅(复式住宅)产品。
『建筑立面』:现代美学立面,窗棱格构
『归家礼制』:门、街、坊、巷、院五重归家礼制
『六艺墅居』:复刻宋式生活艺境,演绎礼、乐、艺、诗、茶、御贵族生活场景
『园林规划』:多重绿化体系,打造沉浸式“园林式栖居”生活场景






虹桥北向 置业高地
虹桥是“2035战略规划”明确的主城片区,嘉定占位虹桥国际开放枢纽“北向拓展带”,定位为上海大都市圈的现代化新型城市,拥享商务区发展辐射利好,全面承接大交通、大商务、大会展等溢出效应。
上海国际汽车城产城融合示范区,以产赋能,将带动整个板块的能级提升、经济提升及人口结构优化,成为高精尖人才炙手可热的置业新高地。
天赋贵脉 立序未来
大华·梧桐樾占位虹桥北上海国际汽车城核心区,占位板块内难得一见的大规模开发地块,坐拥不可多得的城市别墅集群。
天赋贵族基因的上海第二大果岭绿肺,周边人居高度难企及,生态氛围更纯粹,距离主城更近,区位土地价值不言而喻,未来更具竞争力。
果岭之上 高阶圈层
禁墅令下,别墅在市场上少之又少,而高尔夫用地不再批复之后,果岭别墅更是罕见。
大华·梧桐樾旁边就是上海第二大高尔夫球场——约1800亩的颖奕高尔夫球场,球道、沙坑、湖泊、树林,生态之美浑然天成。
举目所见尽是企业家、高知圈层的挥杆身影,在这里生活就像是一个纯粹的豪绅贵胄圈层,自带领袖菁英的光环。
交通配套
坐拥多维立体交通,快速通达全城
11 /14号(规划)/嘉虹3号线(规划)轨交加持,一线直达市区核心;G2京沪高速、沪嘉高速、沈海高速、G312至嘉闵高架、外环、中环等纵横交错路网,瞬息全城无界生活。
商业配套
帷幄一城繁华,匹配生活高度
拥享嘉亭荟、财富广场、三德广场3大商业中心,约40万㎡缤纷商业配套,满足吃喝玩乐购一站式生活需求。
教育资源
对口小学&中学:同济大学附属嘉定实验学校(九年制)(2025年学区划分)
(同济附属嘉定实验学校)
九年一贯制公办学校,将打造品牌一体化、管理一体化、培养一体化,特色一流公办学校,2016年9月正式立校,由同济大学委派管理团队,学校依托百年同济的精神文化和底蕴丰厚的嘉定品质教育。
生态环境
大华·梧桐樾旁边就是上海第二大高尔夫球场——约1800亩的颖奕高尔夫球场,球道、沙坑、湖泊、树林,生态之美浑然天成。
除了颖奕高尔夫球场之外,大华·梧桐樾周边还有约1180亩的汽车博览公园,形成了不可复制的约3000亩天然氧吧,推窗即见千亩绿地;
自然水岸比邻,浓荫大道绿境徜徉,还生活以静谧纯静。

声明:本文由入驻焦点开放平台的作者撰写,除焦点官方账号外,观点仅代表作者本人,不代表焦点立场。
